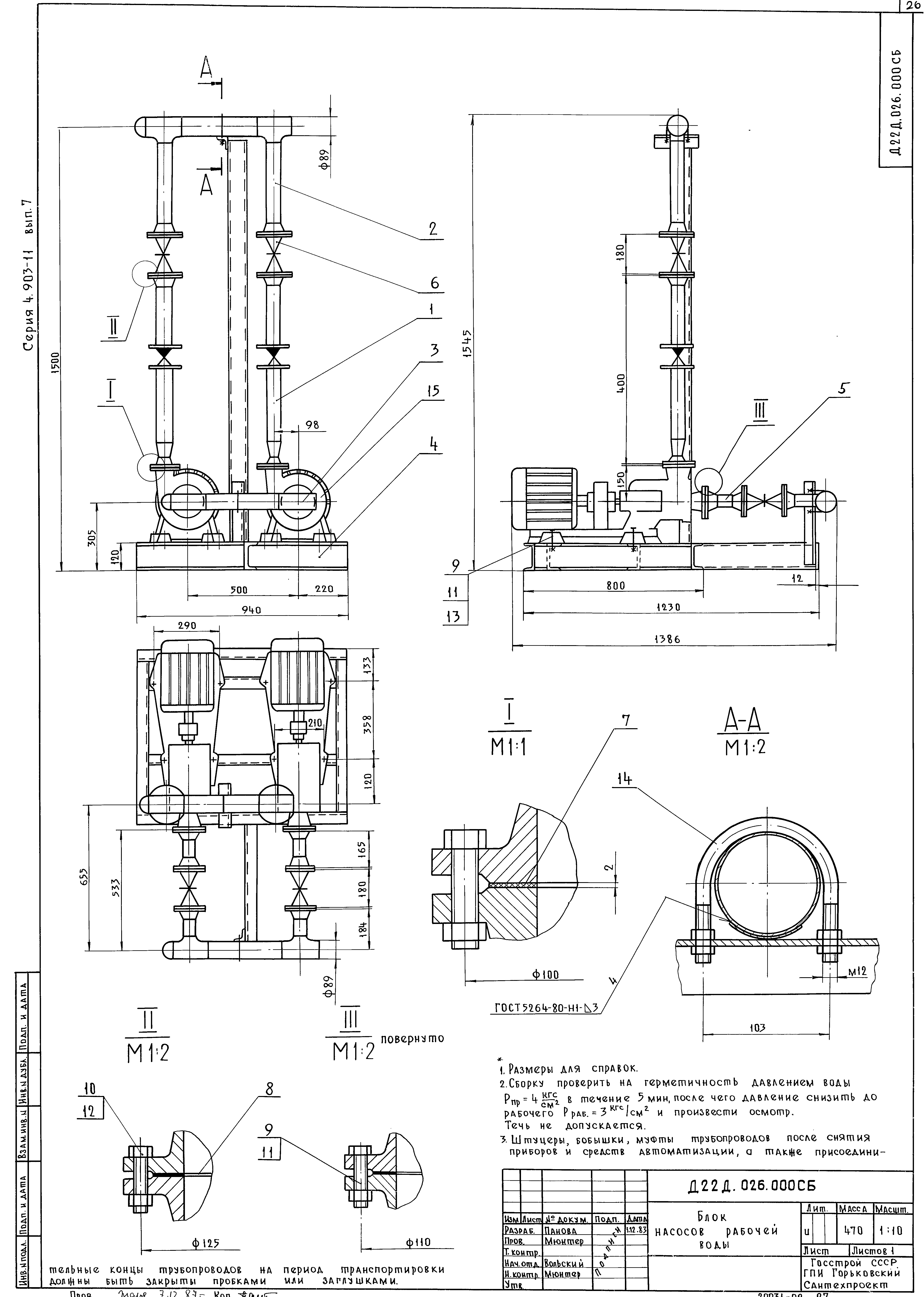
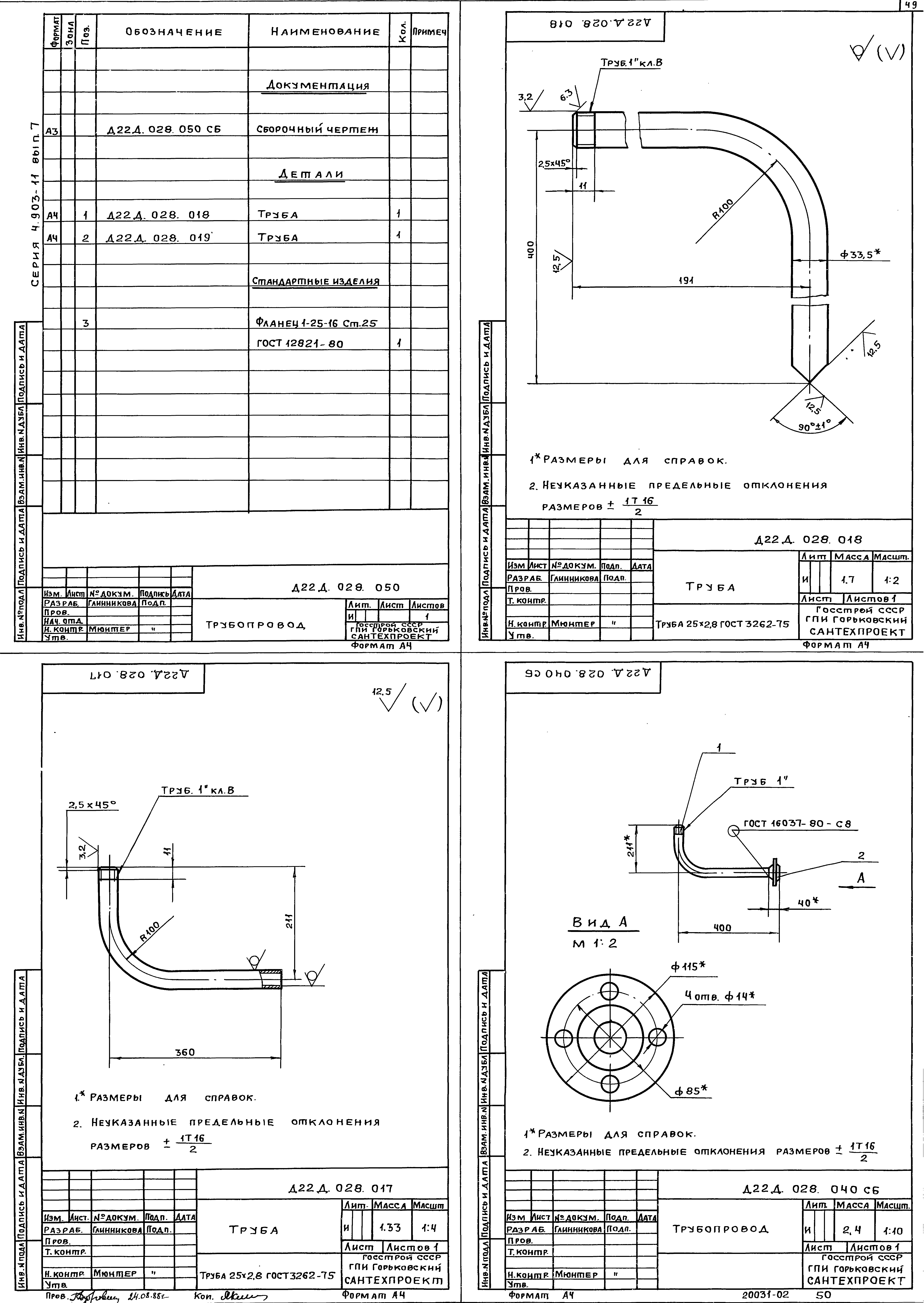
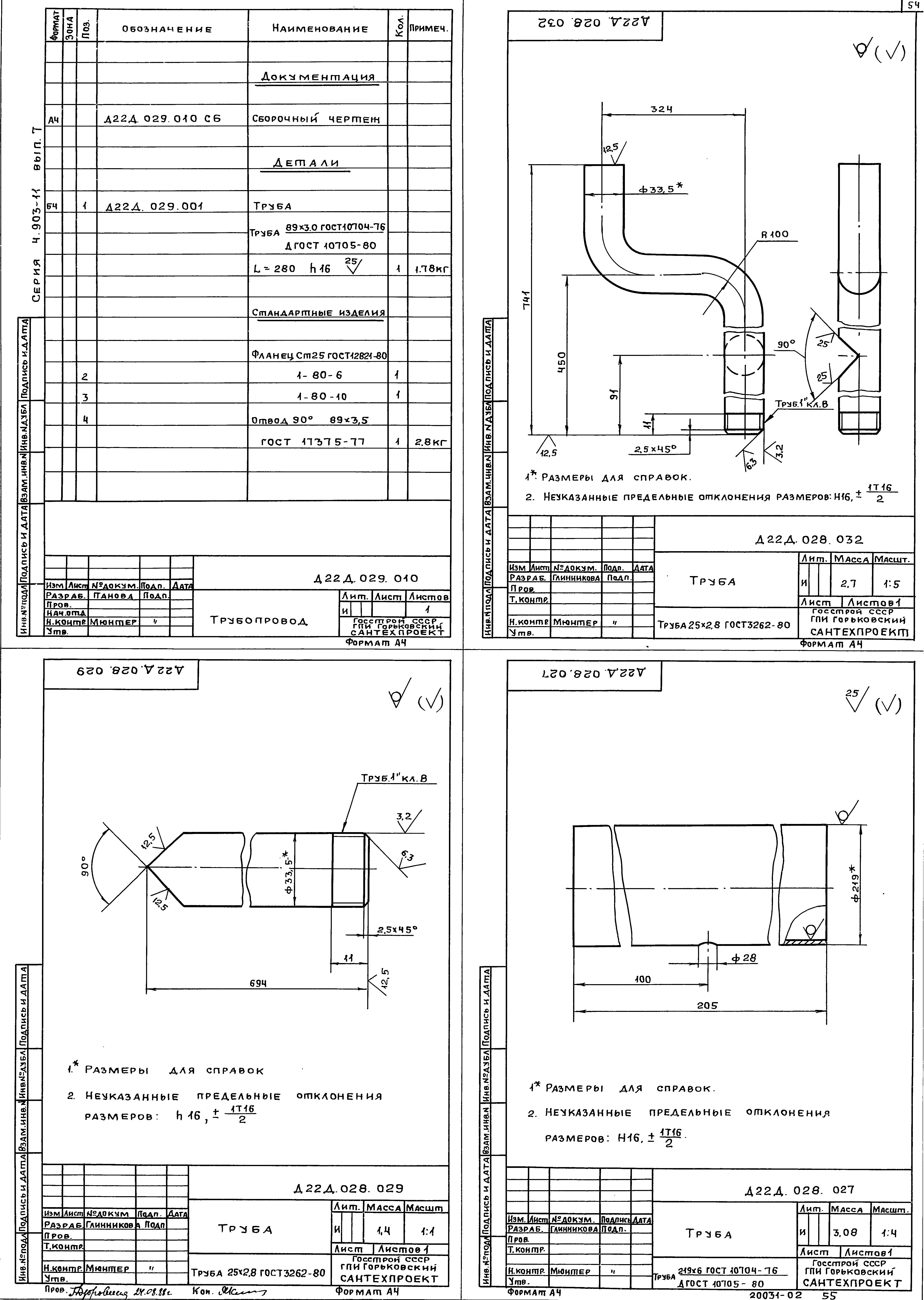
Скачать Серия 4.903-11 Выпуск 7. Блоки оборудования котельной с котлами типа Братск-1Дата актуализации: 10.08.2017 Серия 4.903-11
Выпуск 7. Блоки оборудования котельной с котлами типа " Братск-1"Обозначение: | Серия 4.903-11 | Обозначение англ: | Series 4.903-11 | Статус: | не определен законодательством | Название рус.: | Выпуск 7. Блоки оборудования котельной с котлами типа " Братск-1" | Дата добавления в базу: | 01.09.2013 | Дата актуализации: | 05.05.2017 | Дата введения: | 01.09.1984 | Разработан: | Горьковский Сантехпроект
| Утверждён: | 03.07.1984 Минсельхоз СССР (USSR Minselkhoz 52-ЭГ)
| Расположен в: |
|
                                                                             
|