Информационная система
«Ёшкин Кот»

Скачать базу одним архивом
Скачать обновления
История создания базы
Карта сайта

Скачать Серия 5.903-15 Выпуск 9-2. Часть 1. Блок деаэрационно-подпиточный БДАП-15-4. Рабочие чертежи

Дата актуализации: 10.08.2017

Серия 5.903-15

Выпуск 9-2. Часть 1. Блок деаэрационно-подпиточный БДАП-15-4. Рабочие чертежи

Обозначение: Серия 5.903-15
Обозначение англ: Series 5.903-15
Статус:не определен законодательством
Название рус.:Выпуск 9-2. Часть 1. Блок деаэрационно-подпиточный БДАП-15-4. Рабочие чертежи
Дата добавления в базу:01.09.2013
Дата актуализации:05.05.2017
Дата введения:01.03.1990
Оглавление:БК9.2.1.00.00.000 ГЗ Блок БДАП-15-4. Схема принципиальная
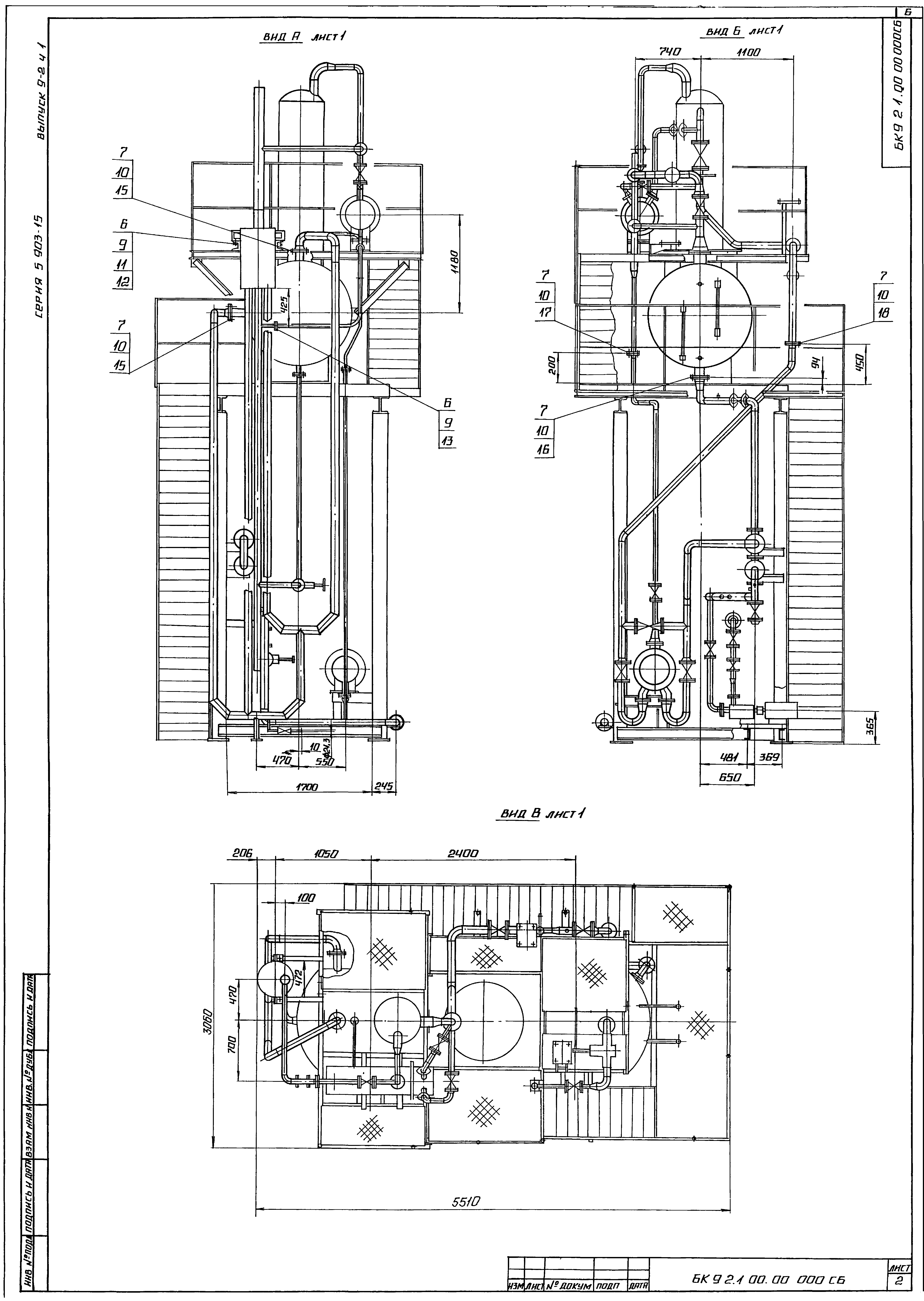
БК9.2.1.00.00.000 СБ Блок БДАП-15-4
БК9.2.1.00.00.000 Блок БДАП-15-4
БК9.2.1.01.00.000 Блок нижний
БК9.2.1.01.00.000 СБ Блок нижний
БК9.2.1.01.00.000 Блок нижний
БК9.2.1.01.01.000 Рама
БК9.1.1.01.01.001 Петля
БК9.2.1.01.01.000 СБ Рама
БК9.1.1.01.01.002 Штырь
БК9.2.1.01.01.001 Кронштейн
БК9.2.1.01.01.002 Полка
БК9.2.1.01.01.003 Полка
БК9.2.1.01.01.100 СБ Лестница
БК9.2.1.01.01.100 Лестница
БК9.1.1.01.01.104 Ступень
БК9.2.1.01.01.101 Стойка
БК9.2.1.01.01.200 Секция перил
БК9.2.1.01.01.200 СБ Секция перил
БК9.2.1.01.01.201 Стойка
БК9.2.1.01.01.202 Полоса оградительная
БК9.2.1.01.01.203 Поручень
БК9.2.1.01.02.000 Трубопровод
БК9.2.1.01.02.000 СБ Трубопровод
БК9.2.1.01.03.000 Трубопровод
БК9.2.1.01.03.000 СБ Трубопровод
БК9.2.1.01.04.000 Трубопровод
БК9.2.1.01.05.000 Трубопровод
БК9.2.1.01.04.000 СБ Трубопровод
БК9.2.1.01.05.000 СБ Трубопровод
БК9.2.1.01.05.000 Трубопровод
БК9.2.1.01.06.000 Трубопровод
БК9.2.1.01.06.000 СБ Трубопровод
БК9.2.1.01.07.000 Трубопровод
БК9.2.1.01.08.000 Трубопровод
БК9.2.1.01.07.000 СБ Трубопровод
БК9.2.1.01.08.000 Трубопровод
БК9.2.1.01.08.001 Труба
БК9.2.1.01.08.000 СБ Трубопровод
БК9.2.1.01.09.000 Трубопровод
БК9.2.1.01.09.000 СБ Трубопровод
БК9.2.1.01.10.000 Трубопровод
БК9.2.1.01.10.000 СБ Трубопровод
БК9.2.1.01.10.000 Трубопровод
БК9.2.1.01.11.000 Трубопровод
БК9.2.1.01.11.000 СБ Трубопровод
БК9.2.1.01.11.001 Труба
БК9.2.1.01.12.000 Трубопровод
БК9.2.1.01.12.000 СБ Трубопровод
БК9.2.1.01.13.000 Трубопровод
БК9.2.1.01.13.000 СБ Трубопровод
БК9.2.1.01.13.000 Трубопровод
БК9.2.1.01.14.000 Трубопровод
БК9.2.1.01.14.000 СБ Трубопровод
БК9.2.1.01.14.001 Труба
БК9.2.1.01.15.000 Трубопровод
БК9.2.1.01.15.000 СБ Трубопровод
БК9.2.1.01.16.000 Трубопровод
БК9.2.1.01.16.000 СБ Трубопровод
БК9.2.1.01.17.000 Трубопровод
БК9.2.1.01.17.000 СБ Трубопровод
БК9.2.1.02.00.000 СБ Блок верхний
БК9.2.1.02.00.000 Блок верхний
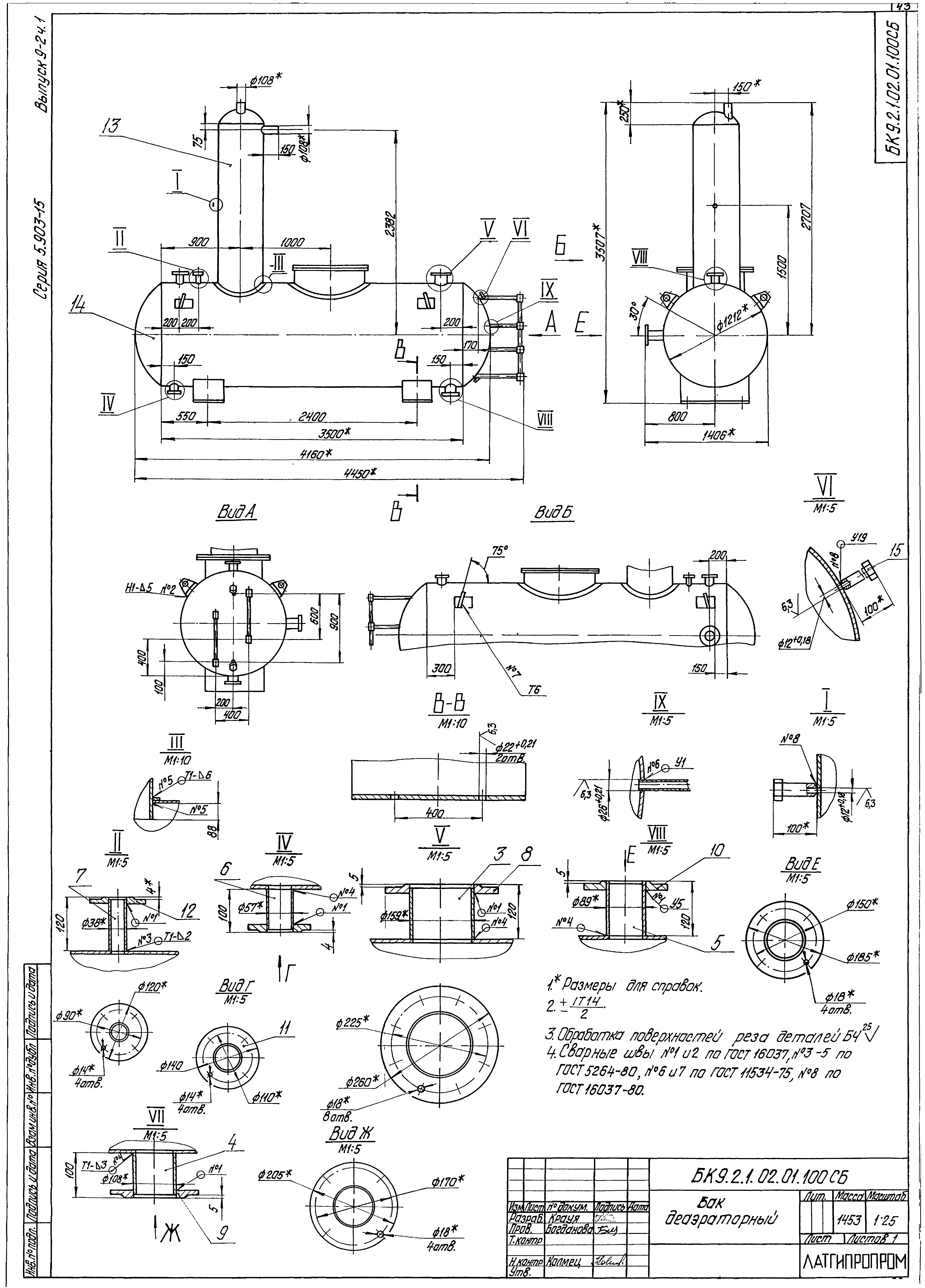
БК9.2.1.02.01.000 Бак деаэраторный
БК9.2.1.02.01.001 Труба
БК9.2.1.02.01.002 Труба
БК9.2.1.02.01.007 Полка
БК9.2.1.02.01.000 Бак деаэраторный
БК9.2.1.02.01.003 полка
БК9.2.1.02.01.004 Кронштейн
БК9.2.1.02.01.005 Кронштейн
БК9.2.1.02.01.006 Полка
БК9.2.1.02.01.008 Полка
БК9.2.1.02.01.009 Стойка
БК9.2.1.02.01.010 Кронштейн
БК9.2.1.02.01.011 Ушко
БК9.2.1.02.01.012 Ребро
БК9.2.1.02.01.013 Оградительная полоса
БК9.2.1.02.01.014 Настил
БК9.2.1.02.01.015 Ребро
БК9.2.1.02.01.016 Ребро
БК9.2.1.02.01.017 Оградительная полоса
БК9.2.1.02.01.100 Бак деаэраторный
БК9.2.1.02.01.100 СБ Бак деаэраторный
БК9.2.1.02.01.101 Накладка
БК9.2.1.02.01.102 Петля
БК9.2.1.02.01.200 Лестница
БК9.2.1.02.01.201 Ступенька
БК9.2.1.02.01.200 СБ Лестница
БК9.2.1.02.01.300 Секция перил
БК9.2.1.02.01.302 Труба
БК9.2.1.02.01.300 СБ Секция перил
БК9.2.1.02.01.301 Труба
БК9.2.1.02.01.303 Стойка
БК9.2.1.02.02.000 Трубопровод
БК9.2.1.02.02.000 СБ Трубопровод
БК9.2.1.02.02.001 Труба
БК9.2.1.02.02.002 Труба
БК9.2.1.02.03.000 Трубопровод
БК9.2.1.02.03.000 СБ Трубопровод
БК9.2.1.02.03.001 Труба
БК9.2.1.02.03.002 Труба
БК9.2.1.02.03.003 Патрубок
БК9.2.1.02.004 000 СБ Трубопровод
БК9.2.1.02.004 000 Трубопровод
БК9.2.1.02.05.000 Тройник
БК9.2.1.02.05.000 СБ Тройник
БК9.2.1.02.06.000 Трубопровод
БК9.2.1.02.06.001 Труба
БК9.2.1.02.06.000 СБ Трубопровод
БК9.2.1.02.07.000 Патрубок
БК9.2.1.02.07.000 СБ Патрубок
БК9.2.1.02.08.000 СБ Трубопровод
БК9.2.1.02.08.000 Трубопровод
БК9.2.1.02.08.001 Труба
БК9.2.1.02.09.000 Отвод
БК9.2.1.02.09.000 СБ Отвод
БК9.2.1.02.09.001 Патрубок
БК9.2.1.02.09.002 Патрубок
БК9.2.1.02.10.000 Трубопровод
БК9.2.1.02.10.000 СБ Трубопровод
БК9.2.1.02.10.001 Патрубок
БК9.2.1.02.10.002 Патрубок
БК9.2.1.02.10.001 Патрубок
БК9.2.1.02.10.004 Труба
БК9.2.1.02.10.005 Труба
БК9.2.1.02.11.000 Трубопровод
БК9.2.1.02.11.000 СБ Трубопровод
БК9.2.1.02.12.000 Трубопровод
БК9.2.1.02.11.001 Отвод
БК9.2.1.02.12.000 СБ Трубопровод
БК9.2.1.02.13.000 Переход
БК9.2.1.02.13.000 СБ Переход
БК9.2.1.02.14.000 Трубопровод
БК9.2.1.02.14.000 СБ Трубопровод
БК9.2.1.02.15.000 Трубопровод
БК9.2.1.02.15.000 СБ Трубопровод
БК9.2.1.02.15.001 Патрубок
БК9.2.1.02.15.002 Патрубок
БК9.2.1.02.16.000 Переход
БК9.2.1.02.16.000 СБ Переход
БК9.2.1.02.17.000 Колено
БК9.2.1.02.17.000 СБ Колено
БК9.2.1.02.18.000 Трубопровод
БК9.2.1.02.18.001 Труба
БК9.2.1.02.18.000 СБ Трубопровод
БК9.2.1.02.19.000 Трубопровод
БК9.2.1.02.19.000 СБ Трубопровод
БК9.2.1.02.19.001 Труба
БК9.2.1.02.19.002 Патрубок
БК9.2.1.02.20.000 Трубопровод
БК9.2.1.02.20.000 СБ Трубопровод
БК9.2.1.02.20.001 Труба
БК9.2.1.02.20.002 Труба
БК9.2.1.02.21.000 Труба
БК9.2.1.02.21.000 СБ Труба
БК9.2.1.03.00.000 Гидрозатвор
БК9.2.1.03.00.001 Накладка
БК9.2.1.03.00.000 СБ Гидрозатвор
БК9.2.1.03.00.002 Патрубок
БК9.2.1.03.01.000 Колено
БК9.2.1.03.01.001 Патрубок
БК9.2.1.03.01.002 Патрубок
БК9.2.1.04.00.000 Трубопровод
БК9.2.1.04.00.000 СБ Трубопровод
БК9.2.2.00.00.000 Блок деарационно-подпиточный БДАП-15-4. Установка приборов контроля и автоматики
Разработан: Латгипропром
Утверждён:14.02.1990 ММСС СССР
Расположен в:Техническая документация Строительство Справочные документы Типовые строительные конструкции, изделия и узлы Общероссийский строительный каталог Строительные конструкции, изделия и узлы зданий и сооружений для всех видов строительства Инженерное оборудование Инженерное оборудование; изделия и узлы инженерного оборудования зданий и сооружений Теплоснабжение Котельное оборудование
Серия 5.903-15Серия 5.903-15Серия 5.903-15Серия 5.903-15Серия 5.903-15Серия 5.903-15Серия 5.903-15Серия 5.903-15Серия 5.903-15Серия 5.903-15Серия 5.903-15Серия 5.903-15Серия 5.903-15Серия 5.903-15Серия 5.903-15Серия 5.903-15Серия 5.903-15Серия 5.903-15Серия 5.903-15Серия 5.903-15Серия 5.903-15Серия 5.903-15Серия 5.903-15Серия 5.903-15Серия 5.903-15Серия 5.903-15Серия 5.903-15Серия 5.903-15Серия 5.903-15Серия 5.903-15Серия 5.903-15Серия 5.903-15Серия 5.903-15Серия 5.903-15Серия 5.903-15Серия 5.903-15Серия 5.903-15Серия 5.903-15Серия 5.903-15Серия 5.903-15Серия 5.903-15Серия 5.903-15Серия 5.903-15Серия 5.903-15Серия 5.903-15Серия 5.903-15Серия 5.903-15Серия 5.903-15Серия 5.903-15Серия 5.903-15Серия 5.903-15Серия 5.903-15Серия 5.903-15Серия 5.903-15Серия 5.903-15Серия 5.903-15Серия 5.903-15Серия 5.903-15Серия 5.903-15Серия 5.903-15Серия 5.903-15Серия 5.903-15Серия 5.903-15Серия 5.903-15Серия 5.903-15Серия 5.903-15Серия 5.903-15Серия 5.903-15Серия 5.903-15Серия 5.903-15

© 2013 Ёшкин Кот :-) Карта сайта