Информационная система
«Ёшкин Кот»

Скачать базу одним архивом
Скачать обновления
История создания базы
Карта сайта

Скачать Серия 5.903-15 Выпуск 2-0. Блоки сетевых насосов. Указания по применению и изготовлению

Дата актуализации: 10.08.2017

Серия 5.903-15

Выпуск 2-0. Блоки сетевых насосов. Указания по применению и изготовлению

Обозначение: Серия 5.903-15
Обозначение англ: Series 5.903-15
Статус:не определен законодательством
Название рус.:Выпуск 2-0. Блоки сетевых насосов. Указания по применению и изготовлению
Дата добавления в базу:01.09.2013
Дата актуализации:05.05.2017
Дата введения:01.03.1990
Оглавление:1. Общая часть
2. Назначение и описание конструкции
3. Рекомендации для подбора
4. Требования к транспортировке
5. Требования к оборудованию и материалам
6. Требования к сборке блока
Приложение 1. Блок БСН-2х45-55. Схема принципиальная
Приложение 2. Блок БСН-2х45-55. Габаритный чертеж
Приложение 3. Блок БСН-2х90-55. Схема принципиальная
Приложение 4. Блок БСН-2х90-55. Габаритный чертеж
Приложение 5. Блок БСН-2х90-85. Схема принципиальная
Приложение 6. Блок БСН-2х90-85. Габаритный чертеж
Приложение 7. Блок БСН-3х90-85. Схема принципиальная
Приложение 8. Блок БСН-3х90-85. Габаритный чертеж
Приложение 9. Блок БСН-4х90-85. Схема принципиальная
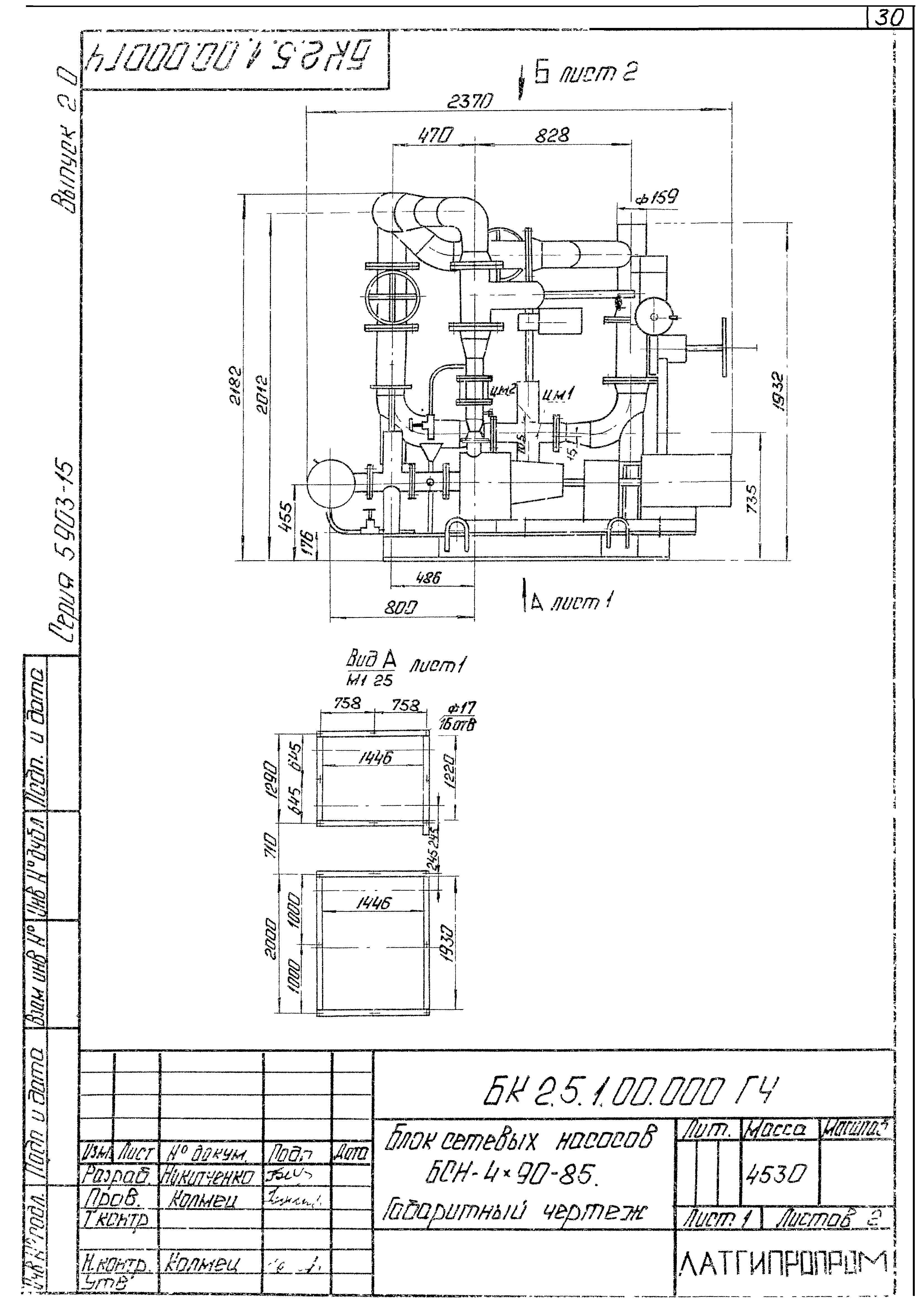
Приложение 10. Блок БСН-4х90-85. Габаритный чертеж
Приложение 11. Блок БСН-2х320-50. Схема принципиальная
Приложение 12. Блок БСН-2х320-50. Габаритный чертеж
Приложение 13. Блок БСН-2х320-70. Схема принципиальная
Приложение 14. Блок БСН-2х320-70. Габаритный чертеж
Приложение 15. Блок БСН-2х320-70Р. Схема принципиальная
Приложение 16. Блок БСН-2х320-70Р. Габаритный чертеж
Приложение 17. Блок БСН-3х200-95. Схема принципиальная
Приложение 18. Блок БСН-3х200-95. Габаритный чертеж
Приложение 19. Блок БСН-2х400-105. Схема принципиальная
Приложение 20. Блок БСН-2х400-105. Габаритный чертеж
Приложение 21. Блок БСН-3х320-70. Схема принципиальная
Приложение 22. Блок БСН-3х320-70. Габаритный чертеж
Приложение 23. Блок БСН-2х500-65. Схема принципиальная
Приложение 24. Блок БСН-2х500-65. Габаритный чертеж
Приложение 25. Блок БСН-2х630-90. Схема принципиальная
Приложение 26. Блок БСН-2х630-90. Габаритный чертеж
Приложение 27. Блок БСН-3х400-105. Схема принципиальная
Приложение 28. Блок БСН-3х400-105. Габаритный чертеж
Приложение 29. Блок БСН-2х1250-125. Схема принципиальная
Приложение 30. Блок БСН-2х1250-125. Габаритный чертеж
Приложение 31. Блок БСН-3х1250-125. Схема принципиальная
Приложение 32. Блок БСН-3х1250-125. Габаритный чертеж
Лист регистрации изменений
Разработан: Латгипропром
Утверждён:14.02.1990 ММСС СССР
Расположен в:Техническая документация Строительство Справочные документы Типовые строительные конструкции, изделия и узлы Общероссийский строительный каталог Строительные конструкции, изделия и узлы зданий и сооружений для всех видов строительства Инженерное оборудование Инженерное оборудование; изделия и узлы инженерного оборудования зданий и сооружений Теплоснабжение Котельное оборудование
Серия 5.903-15Серия 5.903-15Серия 5.903-15Серия 5.903-15Серия 5.903-15Серия 5.903-15Серия 5.903-15Серия 5.903-15Серия 5.903-15Серия 5.903-15Серия 5.903-15Серия 5.903-15Серия 5.903-15Серия 5.903-15Серия 5.903-15Серия 5.903-15Серия 5.903-15Серия 5.903-15Серия 5.903-15Серия 5.903-15Серия 5.903-15Серия 5.903-15Серия 5.903-15Серия 5.903-15Серия 5.903-15Серия 5.903-15Серия 5.903-15Серия 5.903-15Серия 5.903-15Серия 5.903-15Серия 5.903-15Серия 5.903-15Серия 5.903-15Серия 5.903-15Серия 5.903-15Серия 5.903-15Серия 5.903-15Серия 5.903-15Серия 5.903-15Серия 5.903-15Серия 5.903-15Серия 5.903-15Серия 5.903-15Серия 5.903-15Серия 5.903-15Серия 5.903-15Серия 5.903-15Серия 5.903-15Серия 5.903-15Серия 5.903-15Серия 5.903-15Серия 5.903-15Серия 5.903-15Серия 5.903-15Серия 5.903-15Серия 5.903-15Серия 5.903-15Серия 5.903-15Серия 5.903-15Серия 5.903-15Серия 5.903-15Серия 5.903-15Серия 5.903-15Серия 5.903-15Серия 5.903-15Серия 5.903-15Серия 5.903-15Серия 5.903-15Серия 5.903-15Серия 5.903-15Серия 5.903-15Серия 5.903-15Серия 5.903-15

© 2013 Ёшкин Кот :-) Карта сайта