Информационная система
«Ёшкин Кот»

Скачать базу одним архивом
Скачать обновления
История создания базы
Карта сайта

Скачать Серия 5.903-15 Выпуск 3-5. Блок рециркуляционных насосов БРН-3х250-32. Рабочие чертежи

Дата актуализации: 10.08.2017

Серия 5.903-15

Выпуск 3-5. Блок рециркуляционных насосов БРН-3х250-32. Рабочие чертежи

Обозначение: Серия 5.903-15
Обозначение англ: Series 5.903-15
Статус:не определен законодательством
Название рус.:Выпуск 3-5. Блок рециркуляционных насосов БРН-3х250-32. Рабочие чертежи
Дата добавления в базу:01.09.2013
Дата актуализации:05.05.2017
Дата введения:01.01.1990
Оглавление:Блок Рециркуляционных насосов БРН-3х250-32
БК3.5.1.00.000 Блок БРН-3х250-32
БК3.5.1.00.000 Г3 Блок БРН-3х250-32. Схема принципиальная
БК3.5.1.00.000 СБ Блок БРН-3х250-32
БК3.5.1.00.001 Планка
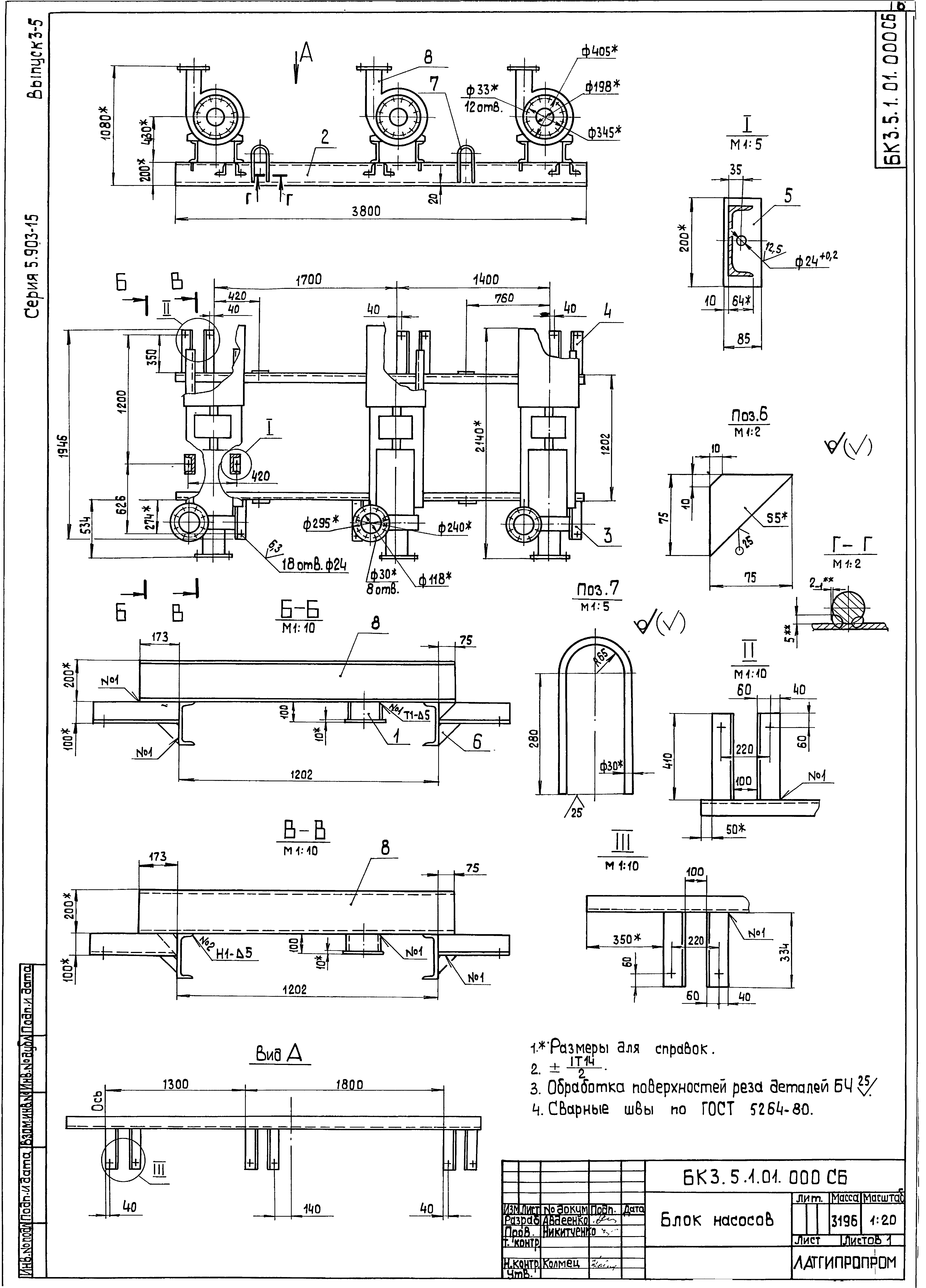
БК3.5.1.01.000 Блок насосов
БК3.5.1.01.000 СБ Блок насосов
БК3.5.1.01.000 Блок насосов
БК3.5.1.02.000 Коллектор
БК3.5.1.02.001 Коллектор
БК3.5.1.02.000 СБ Коллектор
БК3.5.1.02.002 Патрубок
БК3.5.1.03.000 Колено
БК3.5.1.03.001 Труба
БК3.5.1.03.000 СБ Колено
БК3.5.1.04.000 Блок регулятора
БК3.5.1.04.002 Труба
БК3.5.1.04.000 СБ Блок регулятора
БК3.5.1.04.001 Коллектор
БК3.5.1.05.000 Трубопровод
БК1.2.1.11.001 Воронка
БК 3.5.1.05.000 СБ Трубопровод
БК3.5.1.05.001 Труба
БК3.5.1.05.002 Труба
БК3.5.1.06.000 Опора
БК3.5.1.06.000 СБ Опора
Установка приборов контроля м автоматизации блока БРН-3х250-32
БК3.5.2.00.000 Блок БРН-3х250-32. Установка приборов контроля и автоматизации
БК3.5.2.00.000 СБ Блок БРН-3х250-32. Установка приборов контроля и автоматизации
БК3.5.2.00.000 Э3 Блок БРН-3х250-32. Установка приборов контроля и автоматизации
БК3.5.2.00.000 Э4 Блок БРН-3х250-32. Схема соединений
БК3.3.2.00.001 Тяга
БК3.3.2.00.002 Шильник
БК3.3.2.01.000 Вилка
БК3.3.2.01.000 СБ Вилка
БК3.5.2.02.000 Основание
БК3.5.2.02.000 СБ Основание
БК3.3.2.03.000 Тяга
БК3.3.2.03.000 СБ Тяга
БК3.3.2.04.000 Стрелка
БК3.3.2.04.000 СБ Стрелка
Установка электрообуродования блока БРН-3х250-32
БК3.5.3.00.000 Блок БРН-3Х250-32.Установка электрооборудования
БК3.5.3.00.000 СБ Блок БРН-3Х250-32.Установка электрооборудования
БК3.5.3.01.000 Штатив
БК3.5.3.01.000 СБ Штатив
Теплоизоляция блока БРН-3Х250-32
БК3.5.4.00.000 ТИ Блок БРН-3Х250-32. Ведомость теплоизоляционных конструкций
БК3.5.4.00.000 ВМ Блок БРН-3Х250-32. Ведомость теплоизоляционных материалов
БК3.5.4.00.000 ВО Блок БРН-3Х250-32. Ведомость объемов теплоизоляционных работ
Разработан: Латгипропром
Утверждён:22.11.1989 ММСС СССР
Расположен в:Техническая документация Строительство Справочные документы Типовые строительные конструкции, изделия и узлы Общероссийский строительный каталог Строительные конструкции, изделия и узлы зданий и сооружений для всех видов строительства Инженерное оборудование Инженерное оборудование; изделия и узлы инженерного оборудования зданий и сооружений Теплоснабжение Котельное оборудование
Серия 5.903-15Серия 5.903-15Серия 5.903-15Серия 5.903-15Серия 5.903-15Серия 5.903-15Серия 5.903-15Серия 5.903-15Серия 5.903-15Серия 5.903-15Серия 5.903-15Серия 5.903-15Серия 5.903-15Серия 5.903-15Серия 5.903-15Серия 5.903-15Серия 5.903-15Серия 5.903-15Серия 5.903-15Серия 5.903-15Серия 5.903-15Серия 5.903-15Серия 5.903-15Серия 5.903-15Серия 5.903-15

© 2013 Ёшкин Кот :-) Карта сайта