Информационная система
«Ёшкин Кот»

Скачать базу одним архивом
Скачать обновления
История создания базы
Карта сайта

Скачать Серия 5.904-44 Выпуск 4. Глушители шума. Рабочие чертежи

Дата актуализации: 10.08.2017

Серия 5.904-44

Выпуск 4. Глушители шума. Рабочие чертежи

Обозначение: Серия 5.904-44
Обозначение англ: Series 5.904-44
Статус:не определен законодательством
Название рус.:Выпуск 4. Глушители шума. Рабочие чертежи
Дата добавления в базу:01.09.2013
Дата актуализации:05.05.2017
Дата введения:01.07.1988
Оглавление:Глушители всасывания. Рекомендации по применению
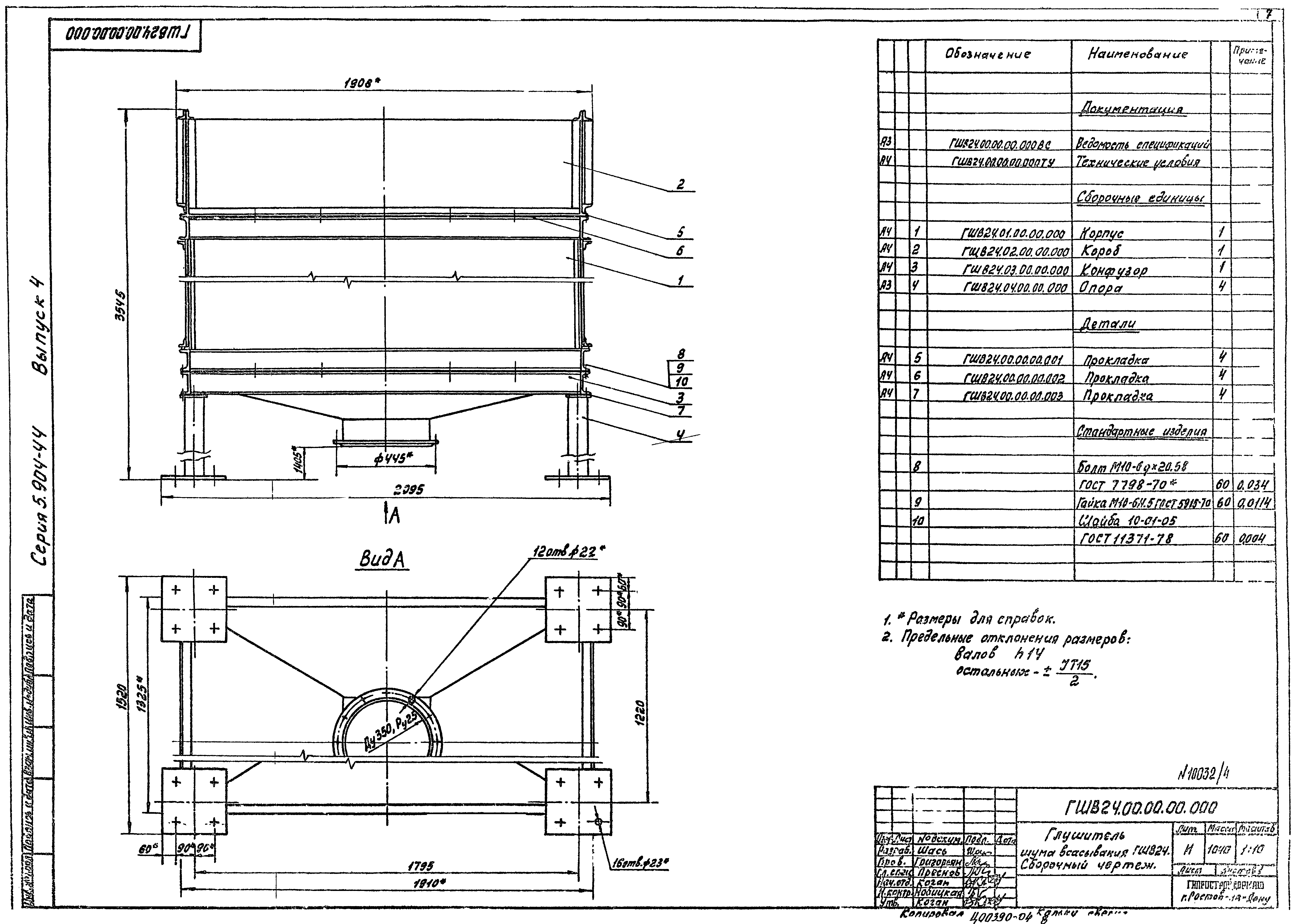
ГШВ 24.00.00.00.000 ВС Глушитель шума всасывания ГШВ 24. Ведомость спецификаций
ГШВ 24.00.00.00.000 ТУ Глушители шума всасывания ГШВ 24, ГШВ 63, ГШВ 100, ГШВ 120. Технические условия
ГШВ 24.00.00.00.000 ТУ Глушители шума всасывания. Технические условия
ГШВ 24.00.00.00.000 Глушитель шума всасывания ГШВ 24. Сборочный чертеж
ГШВ 24.00.00.00.002 Прокладка
ГШВ 24.00.00.00.001 Прокладка
ГШВ 24.00.00.00.004 Накладка
ГШВ 24.00.00.00.003 Прокладка
ГШВ 24.01.01.00.002 Опора
ГШВ 24.01.01.00.004 Перекладина
ГШВ 24.01.00.00.000 Корпус
ГШВ 24.01.00.00.000 СБ Корпус. Сборочный чертеж
ГШВ 24.01.01.00.000 Каркас
ГШВ 24.01.01.00.003 Перекладина
ГШВ 24.01.01.00.000 СБ Каркас. Сборочный чертеж
ГШВ 24.01.02.00.000 Кассета. Сборочный чертеж
ГШВ 24.01.02.00.005 Стенка
ГШВ 24.01.02.01.002 Косынка
ГШВ 24.01.02.01.001 Боковина
ГШВ 24.01.01.00.005 Стойка
ГШВ 24.01.02.01.000 Каркас. Сборочный чертеж
ГШВ 24.01.02.01.004 Перекладина
ГШВ 24.01.02.01.005 Перекладина
ГШВ 24.01.02.02.000 Мат. Сборочный чертеж
ГШВ 24.01.03.00.000 Кассета. Сборочный чертеж
ГШВ 24.01.03.01.000 Каркас. Сборочный чертеж
ГШВ 24.01.04.00.000 Кассета. Сборочный чертеж
ГШВ 24.01.04.01.000 Каркас. Сборочный чертеж
ГШВ 24.01.04.01.002 Перекладина
ГШВ 24.02.01.00.004 Стойка
ГШВ 24.02.00.00.000 Короб
ГШВ 24.02.02.05.000 Каркас
ГШВ 24.02.00.00.000 СБ Короб. Сборочный чертеж
ГШВ 24.02.01.00.000 Жалюзийная стойка. Сборочный чертеж
ГШВ 24.02.02.05.000 СБ Каркас. Сборочный чертеж
ГШВ 24.02.02.00.002 Перекладина
ГШВ 24.02.02.00.003 Перекладина
ГШВ 24.02.02.00.005 Стойка
ГШВ 24.03.00.00.000 Конфузор
ГШВ 24.03.00.00.000 СБ Конфузор. Сборочный чертеж
ГШВ 24.03.00.00.001 Боковина
ГШВ 24.03.00.00.002 Дно
ГШВ 24.03.00.00.004 Перекладина
ГШВ 24.03.00.00.005 Перекладина
ГШВ 24.04.00.00.000 Опора. Сборочный чертеж
ГШВ 24.03.00.00.006 Планка
ГШВ 120.00.00.00.000 ВС Глушитель шума всасывания ГШВ 120. Ведомость спецификаций
ГШВ 120.01.00.00.003 Прокладка
ГШВ 120.00.00.00.000 Глушитель шума всасывания ГШВ 120
ГШВ 120.00.00.00.000 СБ Глушитель шума всасывания ГШВ 120. Сборочный чертеж
ГШВ 120.01.00.00.000 Корпус
ГШВ 120.01.02.01.002 Перекладина
ГШВ 120.01.03.01.002 Перекладина
ГШВ 120.01.00.00.000 СБ Корпус. Сборочный чертеж
ГШВ 120.01.01.01.000 Мат. Сборочный чертеж
ГШВ 120.01.01.00.000 Каркас
ГШВ 120.01.01.00.000 СБ Каркас. Сборочный чертеж
ГШВ 120.01.01.00.003 Лист перфорированный
ГШВ 120.01.01.00.005 Опора
ГШВ 120.01.01.00.006 Опора
ГШВ 120.01.01.00.007 Опора
ГШВ 120.01.01.00.008 Опора
ГШВ 120.01.01.00.011 Стойка
ГШВ 120.01.02.00.004 Стенка
ГШВ 120.01.02.01.001 Боковина
ГШВ 120.01.02.00.000 Кассета. Сборочный чертеж
ГШВ 120.01.02.01.000 Каркас. Сборочный чертеж
ГШВ 120.01.03.00.000 Кассета. Сборочный чертеж
ГШВ 120.01.03.01.000 Каркас. Сборочный чертеж
ГШВ 63.00.00.00.000 ВС Глушитель шума всасывания ГШВ 63. Ведомость спецификаций
ГШВ 63.01.00.00.001 Прокладка
ГШВ 63.01.02.00.005 Стенка
ГШВ 63.00.00.00.000 Глушитель шума всасывания ГШВ 63. Сборочный чертеж
ГШВ 63.01.00.00.000 Корпус
ГШВ 63.01.02.01.001 Боковина
ГШВ 63.01.02.01.003 Перекладина
ГШВ 63.01.00.00.000 СБ Корпус. Сборочный чертеж
ГШВ 63.01.01.00.000 Каркас
ГШВ 63.01.01.00.002 Стойка
ГШВ 63.01.01.00.000 СБ Каркас. Сборочный чертеж
ГШВ 63.01.02.00.000 СБ Кассета. Сборочный чертеж
ГШВ 63.01.02.01.000 СБ Каркас. Сборочный чертеж
ГШВ 100.00.00.000 Глушитель шума всасывания ГШВ 100
ГШВ 100.00.00.000 СБ Глушитель шума всасывания ГШВ 100. Сборочный чертеж
ГШВ 100.01.00.000 Кассета звукопоглощающая
ГШВ 100.01.00.000 СБ Кассета звукопоглощающая. Сборочный чертеж
ГШВ 100.01.01.000 Каркас
ГШВ 100.01.01.000 СБ Каркас. Сборочный чертеж
ГШВ 100.01.00.001 Лист перфорированный
ГШВ 100.01.00.002 Перекладина
ГШВ 100.01.00.003 Перекладина
ГШВ 100.01.02.000 Мат звукоизолирующий
ГШВ 100.01.02.000 СБ Мат звукоизолирующий. Сборочный чертеж
ГШВ 100.02.00.000 Кассета звукопоглощающая
ГШВ 100.02.00.000 СБ Кассета звукопоглощающая. Сборочный чертеж
ГШВ 100.02.01.000 Каркас
ГШВ 100.02.01.000 СБ Каркас. Сборочный чертеж
ГШВ 100.03.00.000 Кассета звукопоглощающая
ГШВ 100.03.00.000 СБ Кассета звукопоглощающая. Сборочный чертеж
ГШВ 100.03.01.000 Каркас
ГШВ 100.03.01.000 СБ Каркас. Сборочный чертеж
ГШС63.00.000 ТУ Глушители шума стравливания ГШС 63; ГШС 120. Технические условия
ГШС63.00.000 ТУ Глушители шума стравливания. Технические условия
Глушители шума стравливания. Рекомендации по применению
ГШС 63.00.000 Глушитель шума стравливания ГШС 63. Сборочный чертеж
ГШС 63.01.001 Дно
ГШС 63.01.002 Дно
ГШС 63.01.000 Патрубок. Сборочный чертеж
ГШС 63.01.003 Конус
ГШС 63.01.004 Обечайка
ГШС 63.01.005 Фланец
ГШС 63.00.002 Прокладка
ГШС 63. 02.000 Секция. Сборочный чертеж
ГШС 63.02.001 Дно
ГШС 63.02.002 Косынка
ГШС 63.02.004 Труба
ГШС 63.03.000 Секция. Сборочный чертеж
ГШС 63.03.001 Дно
ГШС 63.03.002 Конус
ГШС 63.03.003 Обечайка
ГШС 63.03.004 Фланец
ГШС 120.00.000 Глушитель шума стравливания ГШС 120. Сборочный чертеж
ГШС 120.00.001 Козырек
ГШС 120.01.000 Патрубок
ГШС 120.01.000 СБ Патрубок. Сборочный чертеж
ГШС 120.01.001 Дно
ГШС 120.01.002 Конус
ГШС 120.03.001 Конус
ГШС 120.03.003 Обечайка
ГШС 120.02.000 Секция. Сборочный чертеж
ГШС 120.03.004 Фланец
ГШС 120.02.002 Косынка
ГШС 120.02.001 Дно
ГШС 120.02.003 Труба
ГШС 120.03.000 Секция. Сборочный чертеж
Разработан: Гипростройдормаш
Утверждён:20.07.1988 Минстройдормаш (Minstroydormash 346)
Расположен в:Техническая документация Строительство Справочные документы Типовые строительные конструкции, изделия и узлы Общероссийский строительный каталог Строительные конструкции, изделия и узлы зданий и сооружений для всех видов строительства Инженерное оборудование Инженерное оборудование; изделия и узлы инженерного оборудования зданий и сооружений Воздухоснабжение, вентиляция и кондиционирование Воздуховоды, вентиляторы, компрессоры
Серия 5.904-44Серия 5.904-44Серия 5.904-44Серия 5.904-44Серия 5.904-44Серия 5.904-44Серия 5.904-44Серия 5.904-44Серия 5.904-44Серия 5.904-44Серия 5.904-44Серия 5.904-44Серия 5.904-44Серия 5.904-44Серия 5.904-44Серия 5.904-44Серия 5.904-44Серия 5.904-44Серия 5.904-44Серия 5.904-44Серия 5.904-44Серия 5.904-44Серия 5.904-44Серия 5.904-44Серия 5.904-44Серия 5.904-44Серия 5.904-44Серия 5.904-44Серия 5.904-44Серия 5.904-44Серия 5.904-44Серия 5.904-44Серия 5.904-44Серия 5.904-44Серия 5.904-44Серия 5.904-44Серия 5.904-44Серия 5.904-44Серия 5.904-44Серия 5.904-44Серия 5.904-44Серия 5.904-44Серия 5.904-44Серия 5.904-44Серия 5.904-44Серия 5.904-44Серия 5.904-44Серия 5.904-44Серия 5.904-44Серия 5.904-44Серия 5.904-44Серия 5.904-44Серия 5.904-44Серия 5.904-44Серия 5.904-44Серия 5.904-44Серия 5.904-44Серия 5.904-44Серия 5.904-44Серия 5.904-44Серия 5.904-44Серия 5.904-44Серия 5.904-44Серия 5.904-44Серия 5.904-44Серия 5.904-44Серия 5.904-44Серия 5.904-44Серия 5.904-44Серия 5.904-44Серия 5.904-44

© 2013 Ёшкин Кот :-) Карта сайта