Информационная система
«Ёшкин Кот»

Скачать базу одним архивом
Скачать обновления
История создания базы
Карта сайта

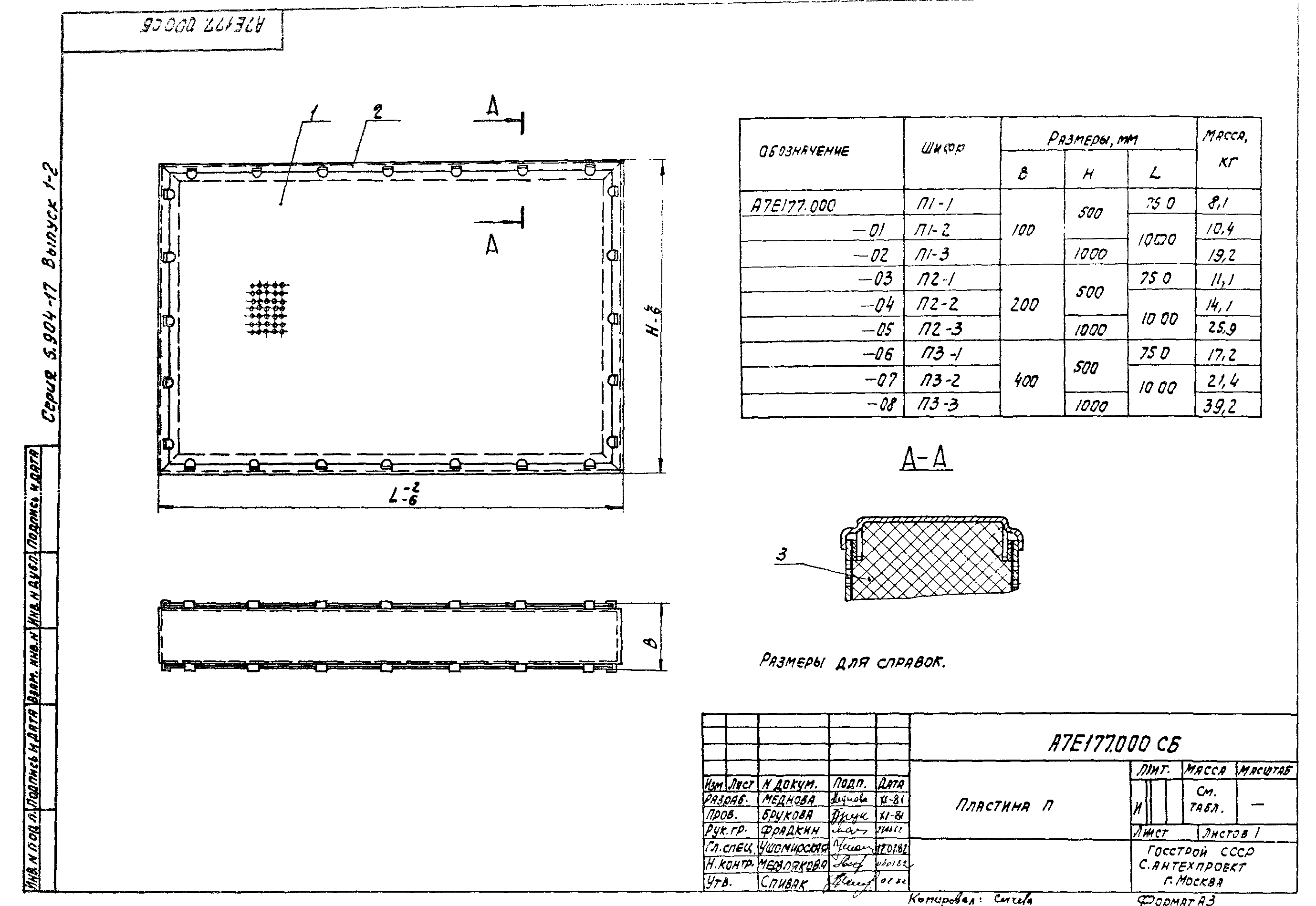
Скачать Серия 5.904-17 Выпуск 1-2. Пластинчатые глушители. Рабочие чертежи

Дата актуализации: 10.08.2017

Серия 5.904-17

Выпуск 1-2. Пластинчатые глушители. Рабочие чертежи

Обозначение: Серия 5.904-17
Обозначение англ: Series 5.904-17
Статус:не определен законодательством
Название рус.:Выпуск 1-2. Пластинчатые глушители. Рабочие чертежи
Дата добавления в базу:01.09.2013
Дата актуализации:05.05.2017
Дата введения:15.11.1982
Разработан: Сантехниипроект Госстроя России
Утверждён:09.11.1982 Главпромстройпроект Госстроя СССР (73)
Расположен в:Техническая документация Строительство Справочные документы Типовые строительные конструкции, изделия и узлы Общероссийский строительный каталог Строительные конструкции, изделия и узлы зданий и сооружений для всех видов строительства Инженерное оборудование Инженерное оборудование; изделия и узлы инженерного оборудования зданий и сооружений Воздухоснабжение, вентиляция и кондиционирование Воздуховоды, вентиляторы, компрессоры
Заменяет собой:
  • Серия 4.904-18/76
Серия 5.904-17Серия 5.904-17Серия 5.904-17Серия 5.904-17Серия 5.904-17Серия 5.904-17Серия 5.904-17Серия 5.904-17Серия 5.904-17Серия 5.904-17Серия 5.904-17Серия 5.904-17Серия 5.904-17Серия 5.904-17Серия 5.904-17Серия 5.904-17Серия 5.904-17Серия 5.904-17Серия 5.904-17Серия 5.904-17Серия 5.904-17Серия 5.904-17Серия 5.904-17Серия 5.904-17Серия 5.904-17Серия 5.904-17Серия 5.904-17Серия 5.904-17Серия 5.904-17Серия 5.904-17Серия 5.904-17Серия 5.904-17Серия 5.904-17Серия 5.904-17Серия 5.904-17Серия 5.904-17Серия 5.904-17Серия 5.904-17Серия 5.904-17Серия 5.904-17

© 2013 Ёшкин Кот :-) Карта сайта