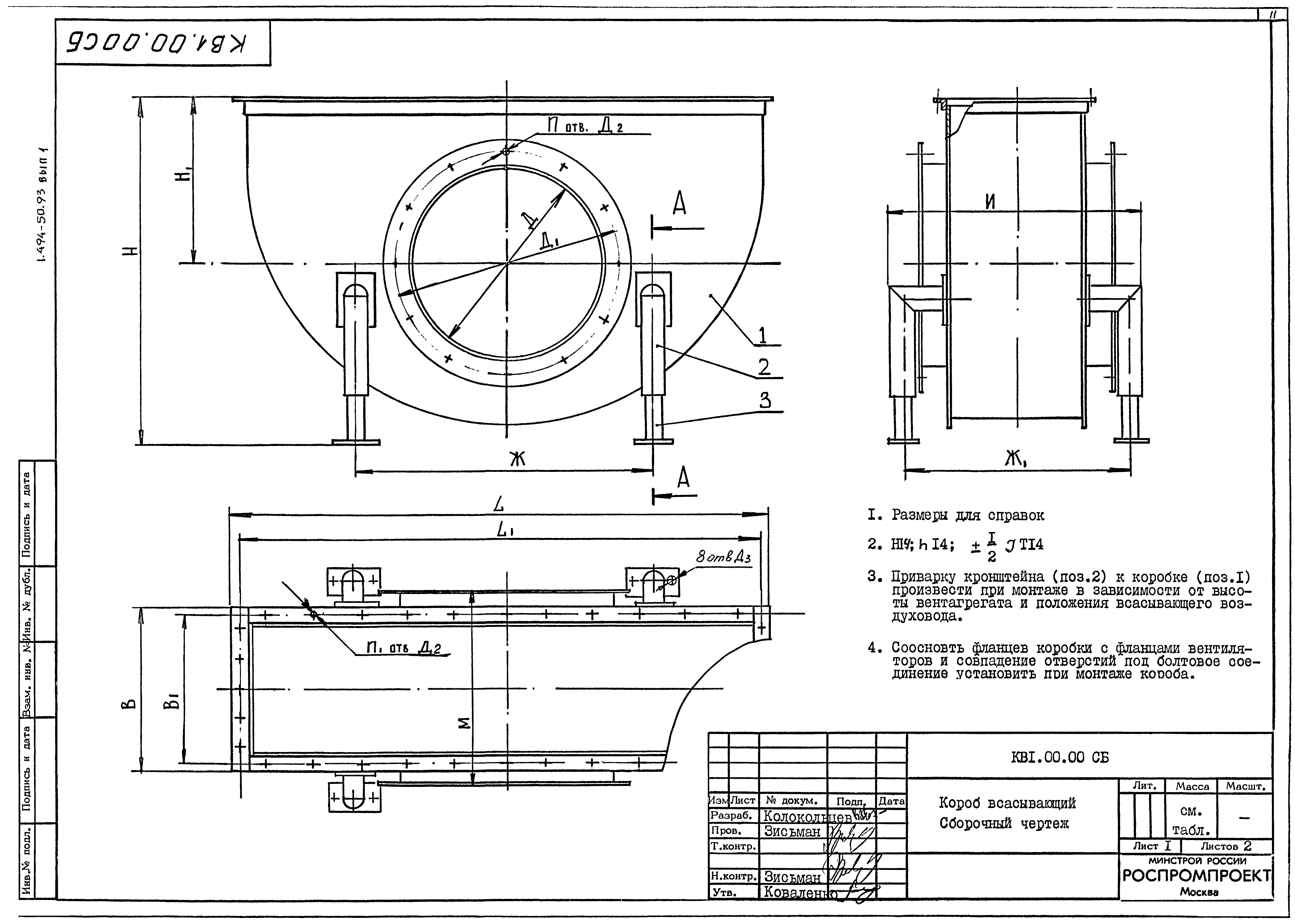
Скачать Серия 1.494-50.93 Выпуск 1. Короб. Рабочие чертежиДата актуализации: 10.08.2017 Серия 1.494-50.93
Выпуск 1. Короб. Рабочие чертежиОбозначение: | Серия 1.494-50.93 | Обозначение англ: | Series 1.494-50.93 | Статус: | не определен законодательством | Название рус.: | Выпуск 1. Короб. Рабочие чертежи | Дата добавления в базу: | 01.09.2013 | Дата актуализации: | 05.05.2017 | Дата введения: | 01.08.1993 | Разработан: | Роспромпроект
| Утверждён: | 02.06.1993 Госстрой России (Russian Federation Gosstroy 9-3-2/109)
| Расположен в: |
|
                           
|