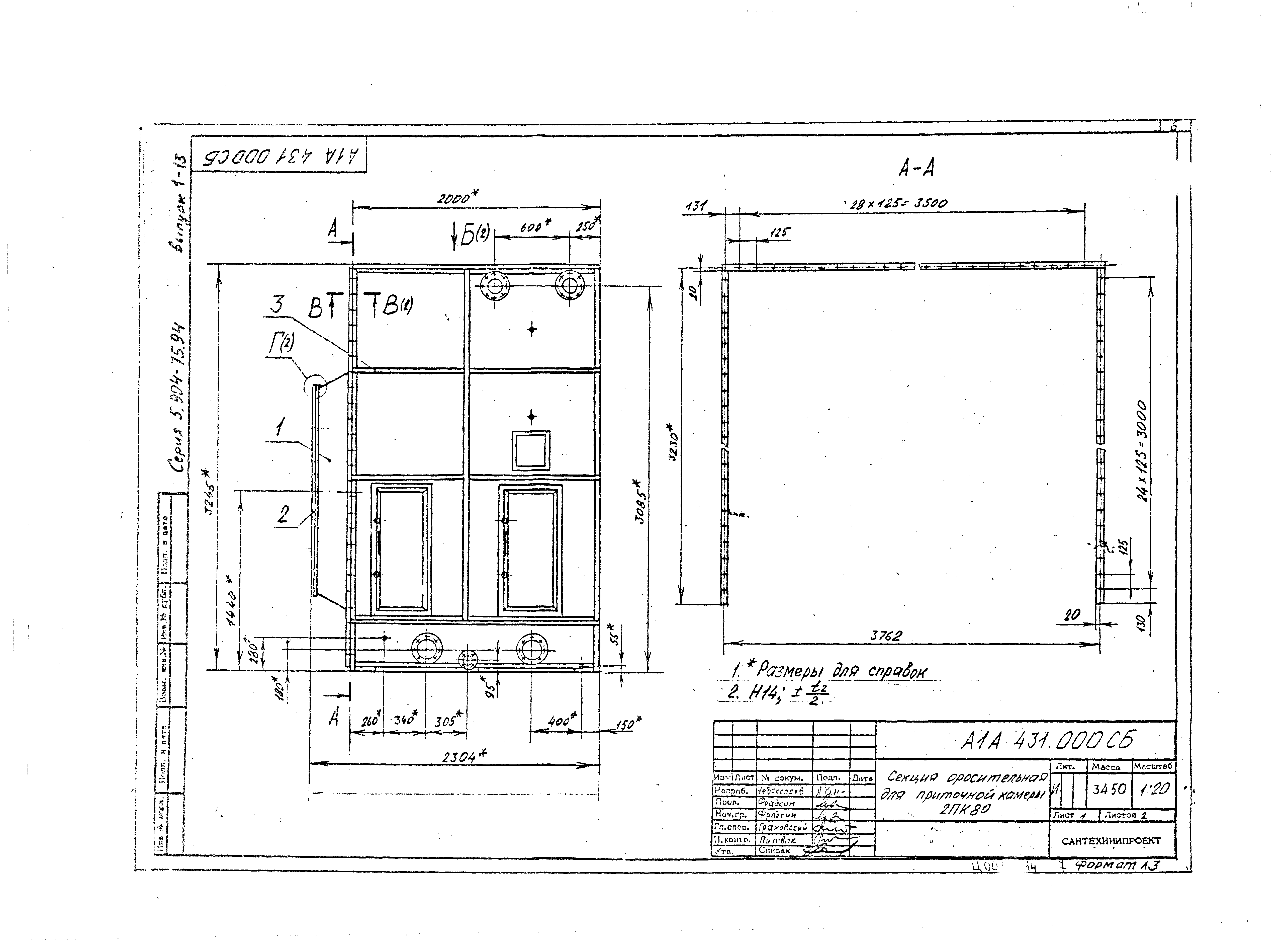
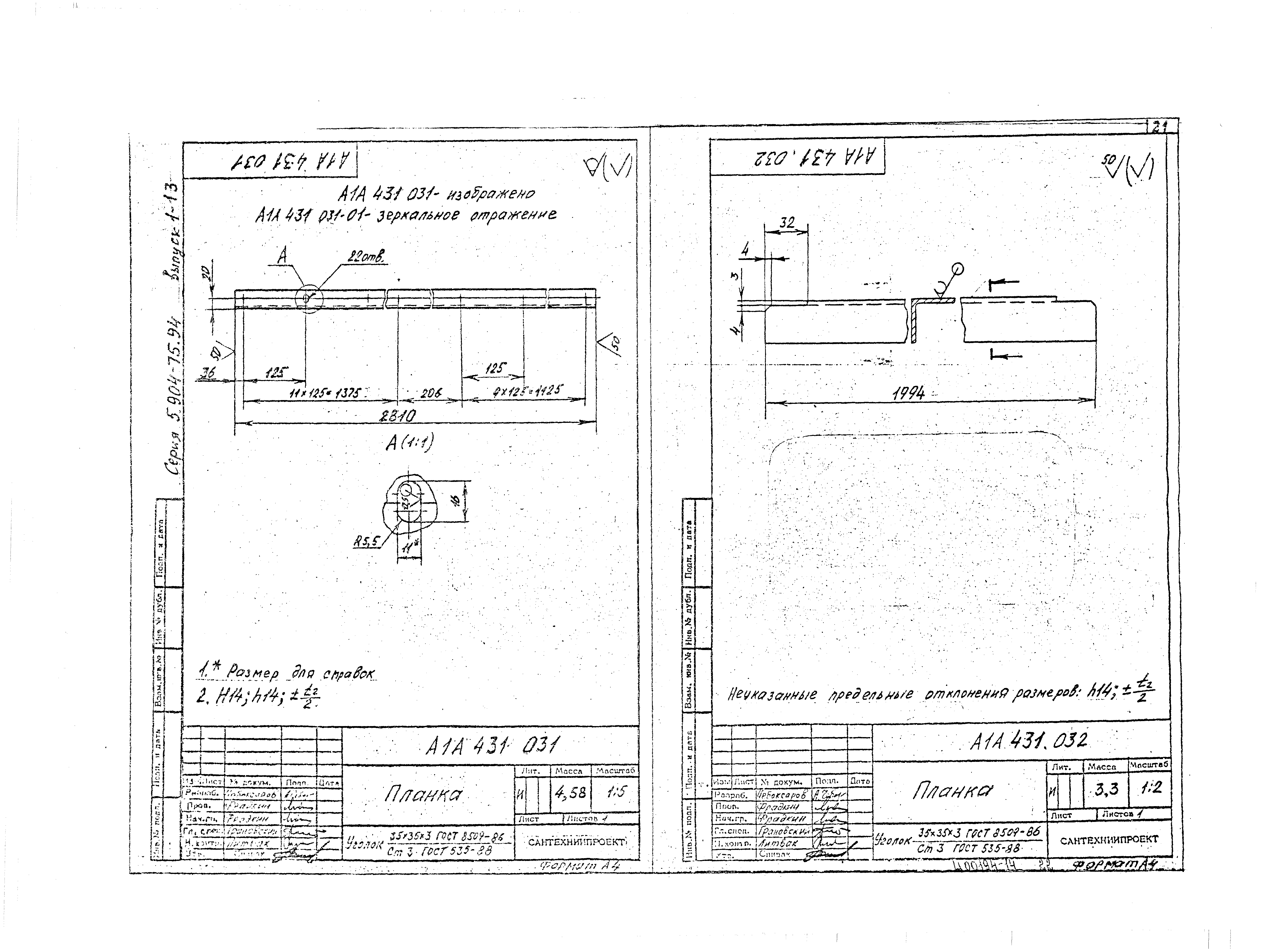
Скачать Серия 5.904-75.94 Выпуск 1-13. Оросительная секция для приточной камеры 2ПК80. Рабочие чертежиДата актуализации: 10.08.2017 Серия 5.904-75.94
Выпуск 1-13. Оросительная секция для приточной камеры 2ПК80. Рабочие чертежиОбозначение: | Серия 5.904-75.94 | Обозначение англ: | Series 5.904-75.94 | Статус: | не определен законодательством | Название рус.: | Выпуск 1-13. Оросительная секция для приточной камеры 2ПК80. Рабочие чертежи | Дата добавления в базу: | 01.09.2013 | Дата актуализации: | 05.05.2017 | Дата введения: | 30.06.1994 | Разработан: | ГПКНИИ Сантехниипроект
| Утверждён: | 25.02.1994 Главпроект Госстроя России (9-3-2/34)
| Расположен в: |
|
                                                  
|