Информационная система
«Ёшкин Кот»

Скачать базу одним архивом
Скачать обновления
История создания базы
Карта сайта

Скачать Серия 1.494-37 Выпуск 1. Рабочие чертежи

Дата актуализации: 10.08.2017

Серия 1.494-37

Выпуск 1. Рабочие чертежи

Обозначение: Серия 1.494-37
Обозначение англ: Series 1.494-37
Статус:не определен законодательством
Название рус.:Выпуск 1. Рабочие чертежи
Дата добавления в базу:01.09.2013
Дата актуализации:05.05.2017
Дата введения:01.02.1979
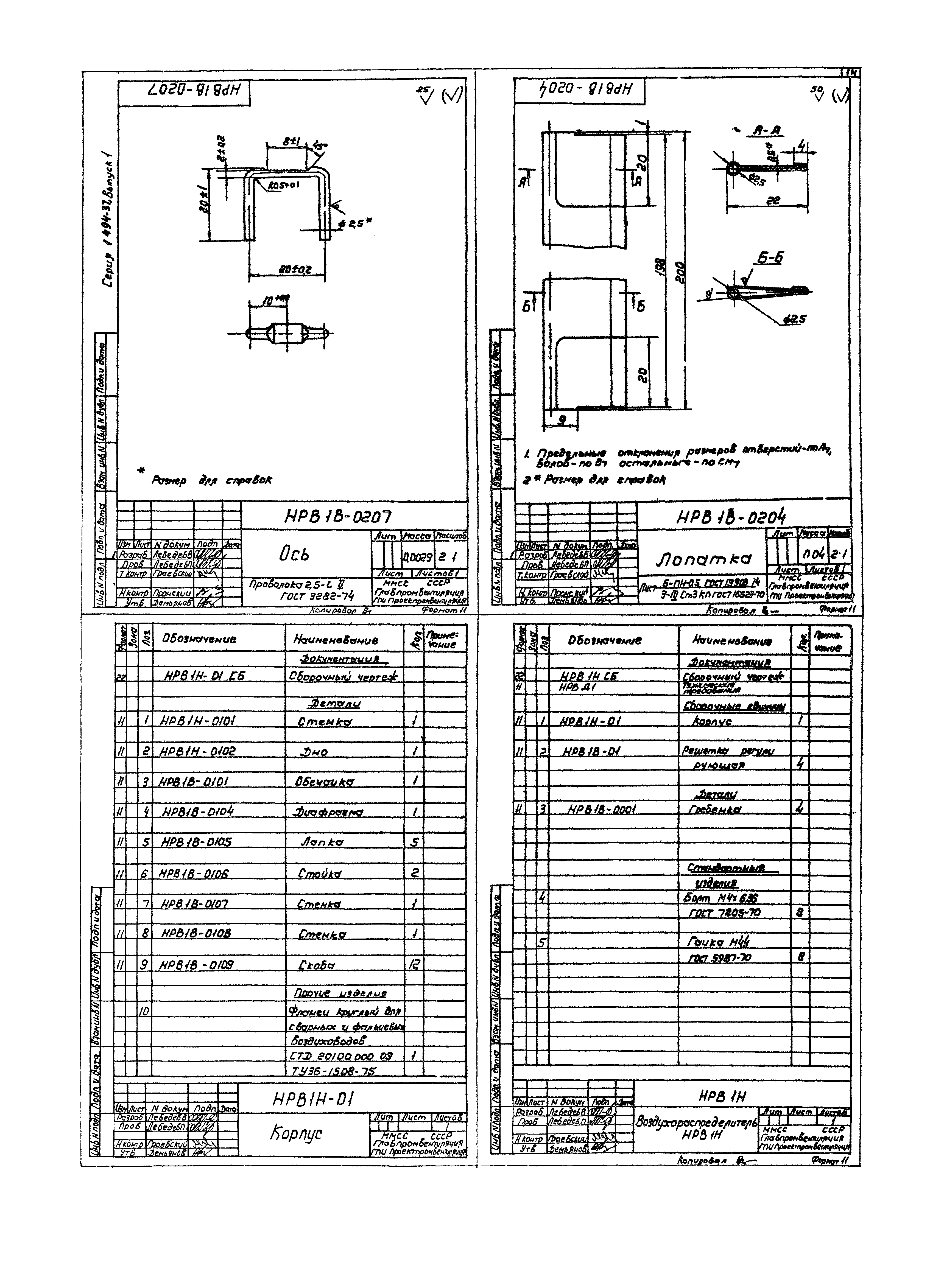
Оглавление:НРВ 1В СБ Воздухораспределитель НРВ 1В. Сборочный чертеж
НРВ 1В Воздухораспределитель НРВ 1В. Спецификация
НРВ 1В-01 Корпус. Спецификация
НРВ 1В-0001 Гребенка. Деталь
НРВ 1В-0109 Скоба. Деталь
НРВ 1В-01СБ Корпус. Сборочный чертеж
НРВ 1В-0101 Обечайка. Деталь
НРВ 1В-0102 Стенка. Деталь
НРВ 1В-0103 Дно. Деталь
НРВ 1В-0104 Диафрагма. Деталь
НРВ 1В-0105 Лапка. Деталь
НРВ 1В-0106 Стойка. Деталь
НРВ 1В-0107 Стенка. Деталь
НРВ 1В-0108 Стенка. Деталь
НРВ 1В-02 Решетка регулирующая. Спецификация
НРВ 1В-02 СБ Решетка регулирующая. Сборочный чертеж
НРВ 1В-0201 Корпус решетки. Спецификация
НРВ 1В-0201 СБ Корпус решетки. Сборочный чертеж
НРВ 1В-020101 Стенка. Деталь
НРВ 1В-020102 Стенка. Деталь
НРВ 1В-020103 Боковина. Деталь
НРВ 1В-0202 Створка. Спецификация
НРВ 1В-0202 СБ Створка. Сборочный чертеж
НРВ 1В-0203 Тяга. Спецификация
НРВ 1В-0203 СБ Тяга. Сборочный чертеж
НРВ 1В-020201 Створка. Деталь
НРВ 1В-020202 Ушко. Деталь
НРВ 1В-0205 Ребро направляющее. Деталь
НРВ 1В-0209 Петля. Деталь
НРВ 1В-0206 Ось. Деталь
НРВ 1В-0208 Полуось. Деталь
НРВ 1В-0210 Пружина. Деталь
НРВ 1В-0211 Втулка. Деталь
НРВ 1В-0204 Лопатка. Деталь
НРВ 1В-0207 Ось. Деталь
НРВ 1Н Воздухораспределитель НРВ 1Н. Спецификация
НРВ 1Н-01 Корпус. Спецификация
НРВ 1Н СБ Воздухораспределитель НРВ 1Н. Сборочный чертеж
НРВ 1Н-01СБ Корпус. Сборочный чертеж
НРВ 1Н-0101 Стенка. Деталь
НРВ 1Н-0102 Дно. Деталь
НРВ 2В Воздухораспределитель НРВ 2В. Спецификация
НРВ 2В-01 Корпус. Спецификация
НРВ 2В СБ Воздухораспределитель НРВ 2В. Сборочный чертеж
НРВ 2В-01 СБ Корпус. Сборочный чертеж
НРВ 2В-0101 Стенка. Деталь
НРВ 2В-0102 Дно. Деталь
НРВ 2В-0103 Диафрагма. Деталь
НРВ 2В-0104 Стенка. Деталь
НРВ 2В-02 Решетка регулирующая. Спецификация
НРВ 2В-02 СБ Решетка регулирующая. Сборочный чертеж
НРВ 2В-0201 Корпус решетки. Спецификация
НРВ 2В-0201 СБ Корпус решетки. Сборочный чертеж
НРВ 2В-020101 Стенка. Деталь
НРВ 2В-020102 Стенка. Деталь
НРВ 2В-020103 Боковина. Деталь
НРВ 2В-0202 Створка. Спецификация
НРВ 2В-0202 СБ Створка. Сборочный чертеж
НРВ 2В-0203 Тяга. Спецификация
НРВ 2В-0203 СБ Тяга. Сборочный чертеж
НРВ 2В-020201 Створка. Деталь
НРВ 2В-0204 Лопатка. Деталь
НРВ 2В-0205 Ребро направляющее. Деталь
НРВ 2В-0206 Полуось. Деталь
НРВ 2В-0001 Гребенка. Деталь
НРВ 2В-0105 Стенка. Деталь
НРВ 2Н Воздухораспределитель НРВ 2Н. Спецификация
НРВ 2Н-01 Корпус. Спецификация
НРВ 2Н СБ Воздухораспределитель НРВ 2Н. Сборочный чертеж
НРВ 2Н-01 СБ Корпус. Сборочный чертеж
НРВ 2Н-0101 Стенка. Деталь
НРВ 2Н-0102 Дно. Деталь
НРВ 3В Воздухораспределитель НРВ 3В. Спецификация
НРВ 3В-01 Корпус. Спецификация
НРВ 3В СБ Воздухораспределитель НРВ 3В. Сборочный чертеж
НРВ 3В-01 СБ Корпус. Сборочный чертеж
НРВ 3В-0101 Стенка. Деталь
НРВ 3В-0102 Стенка. Деталь
НРВ 3В-0103 Дно. Деталь
НРВ 3В-0104 Диафрагма. Деталь
НРВ 3В-0105 Стенка. Деталь
НРВ 3В-0106 Стойка. Деталь
НРВ 3Н Воздухораспределитель НРВ 3Н. Спецификация
НРВ 3Н-01 Корпус. Спецификация
НРВ 3Н СБ Воздухораспределитель НРВ 3Н. Сборочный чертеж
НРВ 3Н-01 СБ Корпус. Сборочный чертеж
НРВ 3Н-0101 Стенка. Деталь
НРВ 3Н-0102 Дно. Деталь
НРВ 4В Воздухораспределитель НРВ 4В. Спецификация
НРВ 4В-01 Корпус. Спецификация
НРВ 4В СБ Воздухораспределитель НРВ 4В. Сборочный чертеж
НРВ 4В-01 СБ Корпус. Сборочный чертеж
НРВ 4В-0101 Стенка. Деталь
НРВ 4В-0103 Диафрагма. Деталь
НРВ 4В-0104 Стойка. Деталь
НРВ 4В-0105 Стенка. Деталь
НРВ 4В-0102 Дно. Деталь
НРВ 4В-0106 Стенка. Деталь
НРВ 4В-02 Решетка регулирующая. Спецификация
НРВ 4В-0201 Корпус решетки. Спецификация
НРВ 4В-02 СБ Решетка регулирующая. Сборочный чертеж
НРВ 4В-0202 Тяга. Спецификация
НРВ 4В-0202 СБ Тяга. Сборочный чертеж
НРВ 4В-0201 СБ Корпус решетки. Сборочный чертеж
НРВ 4В-020101 Стенка. Деталь
НРВ 4В-020102 Стенка. Деталь
НРВ 4В-0203 Лопатка. Деталь
НРВ 4Н Воздухораспределитель НРВ 4Н. Спецификация
НРВ 4Н-01 Корпус. Спецификация
НРВ 4Н-0101 Стенка. Деталь
НРВ 4Н-0102 Дно. Деталь
НРВ 4Н СБ Воздухораспределитель НРВ 4Н. Сборочный чертеж
НРВ 4Н-01 СБ Корпус. Сборочный чертеж
НРВ 5В Воздухораспределитель НРВ 5В. Спецификация
НРВ 5В-01 Корпус. Спецификация
НРВ 5В-0001 Гребенка. Деталь
НРВ 5В-0002 Гребенка. Деталь
НРВ 5В СБ Воздухораспределитель НРВ 5В. Сборочный чертеж
НРВ 5В-01 СБ Корпус. Сборочный чертеж
НРВ 5В-0101 Стенка. Деталь
НРВ 5В-0102 Дно. Деталь
НРВ 5В-0103 Диафрагма. Деталь
НРВ 5В-0104 Стенка. Деталь
НРВ 5В-0105 Стенка. Деталь
НРВ 5Н Воздухораспределитель НРВ 5Н. Спецификация
НРВ 5Н-01 Корпус. Спецификация
НРВ 5Н-0101 Стенка. Деталь
НРВ 5Н-СБ Воздухораспределитель НРВ 5Н. Сборочный чертеж
НРВ 5В-01 СБ Корпус. Сборочный чертеж
НРВ 6В Воздухораспределитель НРВ 6В. Спецификация
НРВ 6В-01 Корпус. Спецификация
НРВ 6В-0001 Гребенка. Деталь
НРВ 6В-0002 Гребенка. Деталь
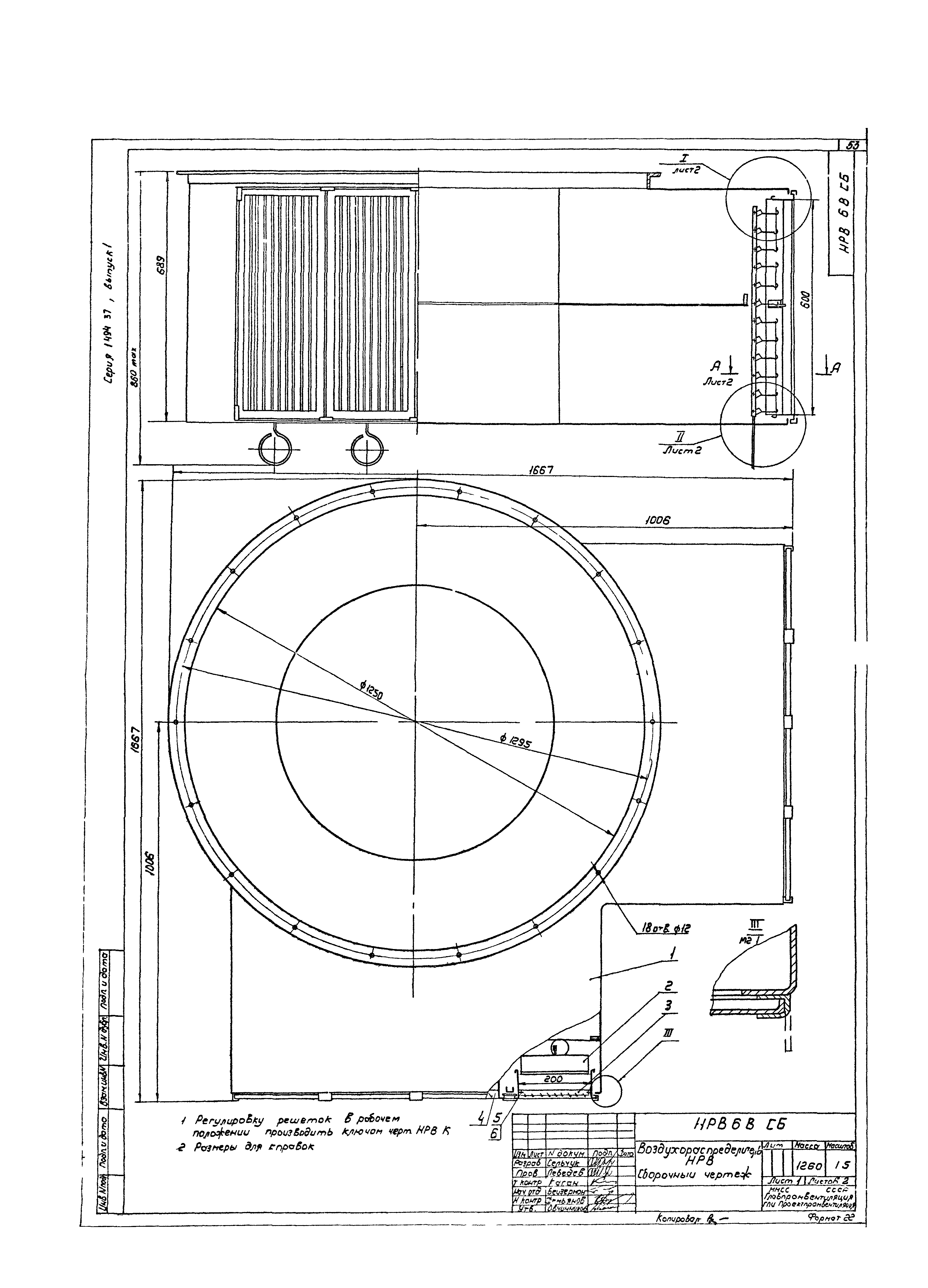
НРВ 6В СБ Воздухораспределитель НРВ 6В. Сборочный чертеж. Лист 1
НРВ 6В СБ Воздухораспределитель НРВ 6В. Сборочный чертеж. Лист 2
НРВ 5Н-0102 Дно. Деталь
НРВ 6Н-0102 Дно. Деталь
НРВ 6В-01 СБ Корпус. Сборочный чертеж
НРВ 6В-0101 Стенка. Деталь
НРВ 6В-0102 Дно. Деталь
НРВ 6В-0103 Диафрагма. Деталь
НРВ 6В-0104 Стенка. Деталь
НРВ 6В-0105 Стенка. Деталь
НРВ 6Н Воздухораспределитель НРВ 6Н. Спецификация
НРВ 6Н-01 Корпус. Спецификация
НРВ 6Н-0101 Стенка. Деталь
НРВ 6Н СБ Воздухораспределитель НРВ 6Н. Сборочный чертеж. Лист 1
НРВ 6Н-01 СБ Корпус. Сборочный чертеж
НРВ 6Н СБ Воздухораспределитель НРВ 6Н. Сборочный чертеж. Лист 2
НРВ 7В Воздухораспределитель НРВ 7В. Спецификация
НРВ 7В-01 Корпус. Спецификация
НРВ 7В СБ Воздухораспределитель НРВ 7В. Сборочный чертеж
НРВ 7В-01 СБ Корпус. Сборочный чертеж
НРВ 7В-0101 Стенка. Деталь
НРВ 7В-0102 Диафрагма. Деталь
НРВ 7В-0103 Дно. Деталь
НРВ 7В-0104 Стенка. Деталь
НРВ 7Н Воздухораспределитель НРВ 7Н. Спецификация
НРВ 7Н-01 Корпус. Спецификация
НРВ 7Н-0101 Стенка. Деталь
НРВ 7Н-0102 Дно. Деталь
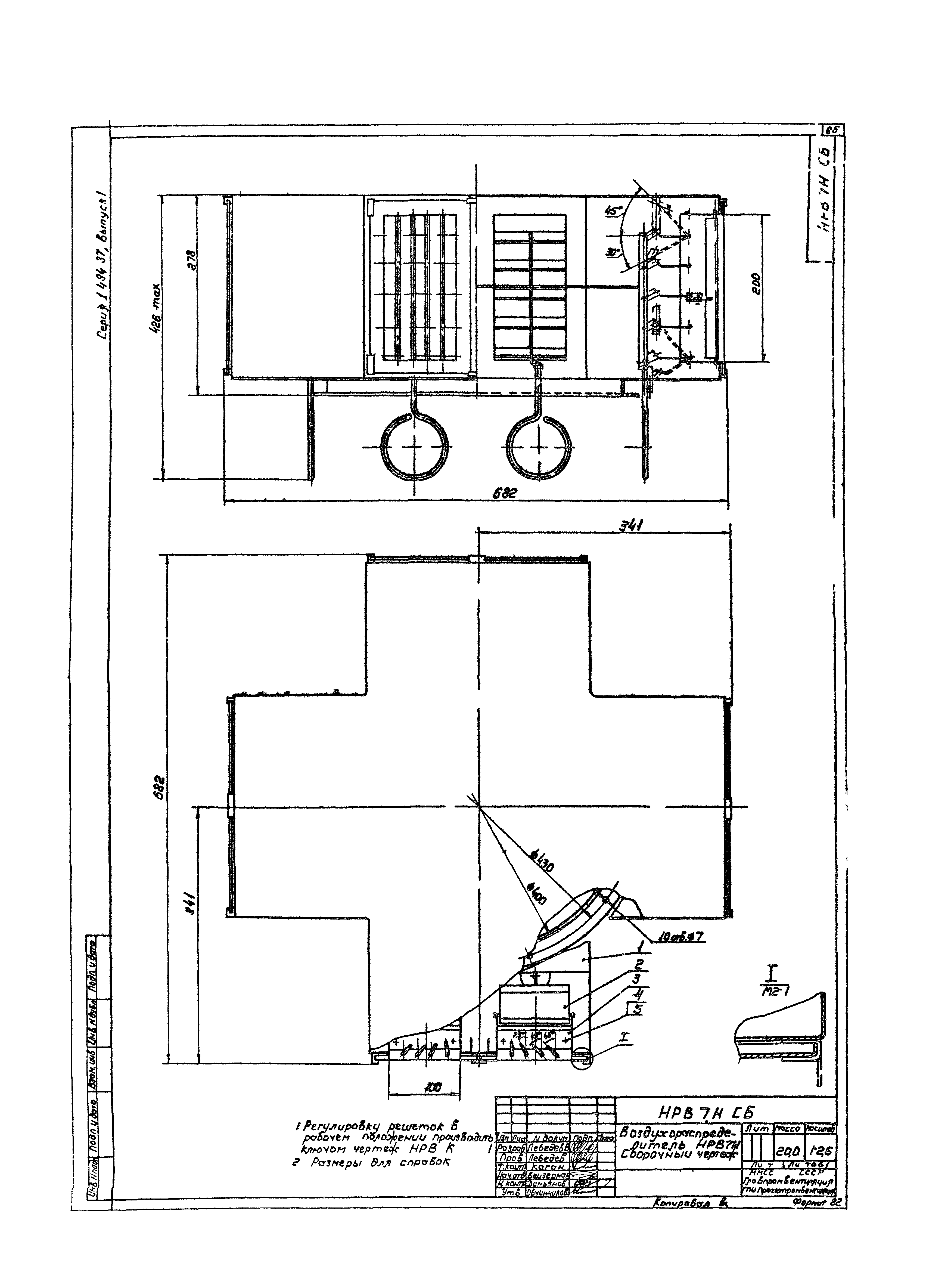
НРВ 7Н СБ Воздухораспределитель НРВ 7Н. Сборочный чертеж
НРВ 7Н-01 СБ Корпус. Сборочный чертеж
НРВ 8В Воздухораспределитель НРВ 8В. Спецификация
НРВ 8В-01 Корпус. Спецификация
НРВ 8Н Воздухораспределитель НРВ 8Н. Спецификация
НРВ 8Н-01 Корпус. Спецификация
НРВ 8В СБ Воздухораспределитель НРВ 8В. Сборочный чертеж
НРВ 8В-01 СБ Корпус. Сборочный чертеж
НРВ 8В-0101 Стенка. Деталь
НРВ 8В-0102 Дно. Деталь
НРВ 8В-0103 Диафрагма. Деталь
НРВ 8В-0104 Стенка. Деталь
НРВ 8Н СБ Воздухораспределитель НРВ 8Н. Сборочный чертеж
НРВ 8Н-01 СБ Корпус. Сборочный чертеж
НРВ 8Н-0101 Стенка. Деталь
НРВ 8Н-0102 Дно. Деталь
НРВ 9В Воздухораспределитель НРВ 9В. Спецификация
НРВ 9Н Воздухораспределитель НРВ 9Н. Спецификация
НРВ 9В СБ Воздухораспределитель НРВ 9В. Сборочный чертеж
НРВ 9В-01 Корпус. Спецификация
НРВ 9Н-01 Корпус. Спецификация
НРВ 9Н-0101 Дно. Деталь
НРВ 3В-0001 Гребенка. Деталь
НРВ9В-01 СБ Корпус. Сборочный чертеж
НРВ 9В-0101 Дно. Деталь
НРВ 9В-0102 Стенка. Деталь
НРВ 9В-0103 Диафрагма. Деталь
НРВ 10В-0102 Стенка. Деталь
НРВ 9Н СБ Воздухораспределитель НРВ 9Н. Сборочный чертеж
НРВ 9Н-01 СБ Корпус. Сборочный чертеж
НРВ 10В Воздухораспределитель НРВ 10В. Спецификация
НРВ 10В-01 Корпус. Спецификация
НРВ 10Н Воздухораспределитель НРВ 10Н. Спецификация
НРВ 10Н-01 Корпус. Спецификация
НРВ 10В СБ Воздухораспределитель НРВ 10В. Сборочный чертеж
НРВ 10В-01 СБ Корпус. Сборочный чертеж
НРВ 10В-0101 Стенка. Деталь
НРВ 10В-0103 Дно. Деталь
НРВ 10В-0104 Диафрагма. Деталь
НРВ 10Н-0101 Стенка. Деталь
НРВ 10Н СБ Воздухораспределитель НРВ 10Н. Сборочный чертеж
НРВ 10Н-01 СБ Корпус. Сборочный чертеж
НРВ 10Н-0102 Дно. Деталь
НРВ 11В Воздухораспределитель НРВ 11В. Спецификация
НРВ 11В-0101 Стенка. Деталь
НРВ 11Н Воздухораспределитель НРВ 11Н. Спецификация
НРВ 11В СБ Воздухораспределитель НРВ 11В. Сборочный чертеж. Лист 1
НРВ 11В СБ Воздухораспределитель НРВ 11В. Сборочный чертеж. Лист 2
НРВ 11В-01 Корпус. Спецификация
НРВ 11Н-01 Корпус. Спецификация
НРВ 11В-01 СБ Корпус. Сборочный чертеж
НРВ 11Н СБ Воздухораспределитель НРВ 11Н. Сборочный чертеж. Лист 1
НРВ 11Н СБ Воздухораспределитель НРВ 11Н. Сборочный чертеж. Лист 2
НРВ 11В-0102 Дно. Деталь
НРВ 11В-0103 Диафрагма. Деталь
НРВ 11Н-01 СБ Корпус. Сборочный чертеж
НРВ 11В-0104 Стенка. Деталь
НРВ 11Н-0101 Стенка. Деталь
НРВ 11Н-0102 Дно. Деталь
НРВ 12В-0101 Стенка. Деталь
НРВ 12В Воздухораспределитель НРВ 12В. Спецификация
НРВ 12В СБ Воздухораспределитель НРВ 12В. Сборочный чертеж. Лист 2
НРВ 12В-01 Корпус. Спецификация
НРВ 12В СБ Воздухораспределитель НРВ 12В. Сборочный чертеж. Лист 1
НРВ 12В-01 СБ Корпус. Сборочный чертеж
НРВ 12В-0102 Дно. Деталь
НРВ 12В-0103 Диафрагма. Деталь
НРВ 12В-0104 Стенка. Деталь
НРВ 12Н-0104 Стенка. Деталь
НРВ 12Н Воздухораспределитель НРВ 12Н. Спецификация
НРВ 12Н СБ Воздухораспределитель НРВ 12Н. Сборочный чертеж. Лист 2
НРВ 12Н-01 Корпус. Спецификация
НРВ 12Н СБ Воздухораспределитель НРВ 12В. Сборочный чертеж. Лист 1
НРВ 12Н-01 СБ Корпус. Сборочный чертеж
НРВ 12Н-0102 Дно. Деталь
НРВ-К Ключ. Спецификация
НРВ-К-01 Крюк. Деталь
НРВ-К-02 Шест. Деталь
НРВ.Д1 Технические требования
Разработан: Проектпромвентиляция
Утверждён:07.02.1979 Госстрой СССР (Государственный комитет Совета Министров СССР по делам строительства) (USSR Gosstroy 5)
Расположен в:Техническая документация Строительство Справочные документы Типовые строительные конструкции, изделия и узлы Общероссийский строительный каталог Строительные конструкции, изделия и узлы зданий и сооружений для всех видов строительства Инженерное оборудование Инженерное оборудование; изделия и узлы инженерного оборудования зданий и сооружений Воздухоснабжение, вентиляция и кондиционирование Эжекторы, воздухораспределители
Серия 1.494-37Серия 1.494-37Серия 1.494-37Серия 1.494-37Серия 1.494-37Серия 1.494-37Серия 1.494-37Серия 1.494-37Серия 1.494-37Серия 1.494-37Серия 1.494-37Серия 1.494-37Серия 1.494-37Серия 1.494-37Серия 1.494-37Серия 1.494-37Серия 1.494-37Серия 1.494-37Серия 1.494-37Серия 1.494-37Серия 1.494-37Серия 1.494-37Серия 1.494-37Серия 1.494-37Серия 1.494-37Серия 1.494-37Серия 1.494-37Серия 1.494-37Серия 1.494-37Серия 1.494-37Серия 1.494-37Серия 1.494-37Серия 1.494-37Серия 1.494-37Серия 1.494-37Серия 1.494-37Серия 1.494-37Серия 1.494-37Серия 1.494-37Серия 1.494-37Серия 1.494-37Серия 1.494-37Серия 1.494-37Серия 1.494-37Серия 1.494-37Серия 1.494-37Серия 1.494-37Серия 1.494-37Серия 1.494-37Серия 1.494-37Серия 1.494-37Серия 1.494-37Серия 1.494-37Серия 1.494-37Серия 1.494-37Серия 1.494-37Серия 1.494-37Серия 1.494-37Серия 1.494-37Серия 1.494-37Серия 1.494-37Серия 1.494-37Серия 1.494-37Серия 1.494-37Серия 1.494-37Серия 1.494-37Серия 1.494-37Серия 1.494-37Серия 1.494-37Серия 1.494-37Серия 1.494-37Серия 1.494-37Серия 1.494-37Серия 1.494-37Серия 1.494-37Серия 1.494-37Серия 1.494-37Серия 1.494-37Серия 1.494-37Серия 1.494-37Серия 1.494-37Серия 1.494-37Серия 1.494-37Серия 1.494-37Серия 1.494-37Серия 1.494-37Серия 1.494-37Серия 1.494-37Серия 1.494-37Серия 1.494-37Серия 1.494-37Серия 1.494-37Серия 1.494-37Серия 1.494-37Серия 1.494-37Серия 1.494-37Серия 1.494-37Серия 1.494-37Серия 1.494-37Серия 1.494-37Серия 1.494-37Серия 1.494-37Серия 1.494-37

© 2013 Ёшкин Кот :-) Карта сайта