Информационная система
«Ёшкин Кот»

Скачать базу одним архивом
Скачать обновления
История создания базы
Карта сайта

Скачать Серия 5.407-117 Выпуск 1. Узлы и изделия. Рабочие чертежи

Дата актуализации: 10.08.2017

Серия 5.407-117

Выпуск 1. Узлы и изделия. Рабочие чертежи

Обозначение: Серия 5.407-117
Обозначение англ: Series 5.407-117
Статус:не определен законодательством
Название рус.:Выпуск 1. Узлы и изделия. Рабочие чертежи
Дата добавления в базу:01.09.2013
Дата актуализации:05.05.2017
Дата введения:01.04.1990
Оглавление:5.407-117.1.10 Установка ящика ЯПП-15У3 на стене
5.407-117.1.20 Установка ящика ЯРП-20У3 на стене
5.407-117.1.30 Установка ящика ВП-20МУ3 на стене
5.407-117.1.40 Установка ящика ЯВ3Ш-31-У2 на стене и ж.-б. колонне
5.407-117.1.50 Установка ящика ЯБПВУ-1МУ3 на стене и ж.-б. колонне
5.407-117.1.60 Установка ящика ЯРП-100ПУ3 на стене и ж.-б. колонне
5.407-117.1.70 Установка ящика ЯБ1-2У3 на стене и ж.-б. колонне
5.407-117.1.80 Установка ящика ЯБПВУ-4У3 на стене и ж.-б. колонне
5.407-117.1.90 Установка ящика ЯК-250У3 на стене и ж.-б. колонне
5.407-117.1.100 Установка ящика серии ЯРП11 УХЛ на стене и ж.-б. колонне
5.407-117.1.110 Установка ящика ЯПП-15У3 на ж.-б. колонне
5.407-117.1.120 Установка ящика ЯРП-20У3 на ж.-б. колонне
5.407-117.1.130 Установка ящика ВП-20МУ3 на ж.-б. колонне
5.407-117.1.140 Установка ящика ЯВЗШ-31-У2 на ж.-б. колонне
5.407-117.1.150 Установка ящика ЯК-250У3 на ж.-б. колонне
5.407-117.1.160 Установка ящика серии ЯРП11УХЛ на ж.-б. колонне
5.407-117.1.170 Установка ящика ЯПП-15У3 на стене с коробом
5.407-117.1.180 Установка ящика ЯРП-20У3 на стене с коробом
5.407-117.1.190 Установка ящика ВП-20МУ3 на стене с коробом
5.407-117.1.200 Установка ящика ЯБПВУ-1МУ3 на стене с коробом
5.407-117.1.210 Установка ящика ЯРП-100ПУ3 на стене с коробом
5.407-117.1.220 Установка ящика ЯБ1-2У3 на стене с коробом
5.407-117.1.230 Установка ящика ЯБПВУ-4У3 на стене с коробом
5.407-117.1.240 Установка ящика ЯК-250У3 на стене с коробом
5.407-117.1.250 Установка ящика серии ЯРП11УХЛ на стене с коробом
5.407-117.1.260 Установка ящика ЯПП-15У3 на стальной колонне
5.407-117.1.270 Установка ящика ЯРП-20У3 на стальной колонне
5.407-117.1.280 Установка ящика ВП-20МУ3 на стальной колонне
5.407-117.1.290 Установка ящика ЯВ3Ш-31-У2 на стальной колонне
5.407-117.1.300 Установка ящика ЯБПВУ-1МУ3 на стальной колонне
5.407-117.1.310 Установка ящика ЯРП-100ПУ3 на стальной колонне
5.407-117.1.320 Установка ящика ЯБ1-2У3 на стальной колонне
5.407-117.1.330 Установка ящика ЯБПВУ-4У3 на стальной колонне
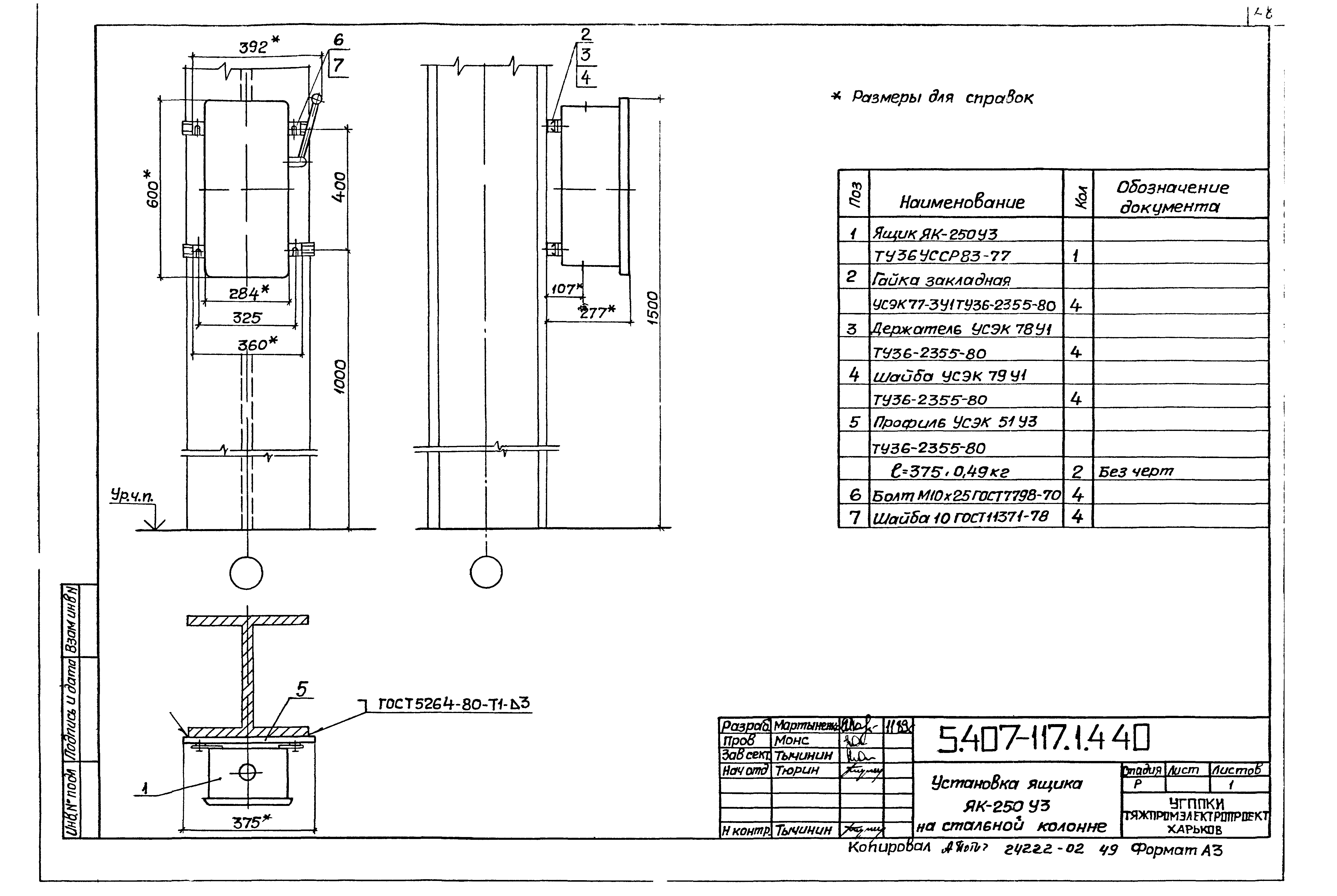
5.407-117.1.340 Установка ящика ЯК-250 У3 на стальной колонне
5.407-117.1.350 Установка ящика серии ЯРП11УХЛ на стальной колонне
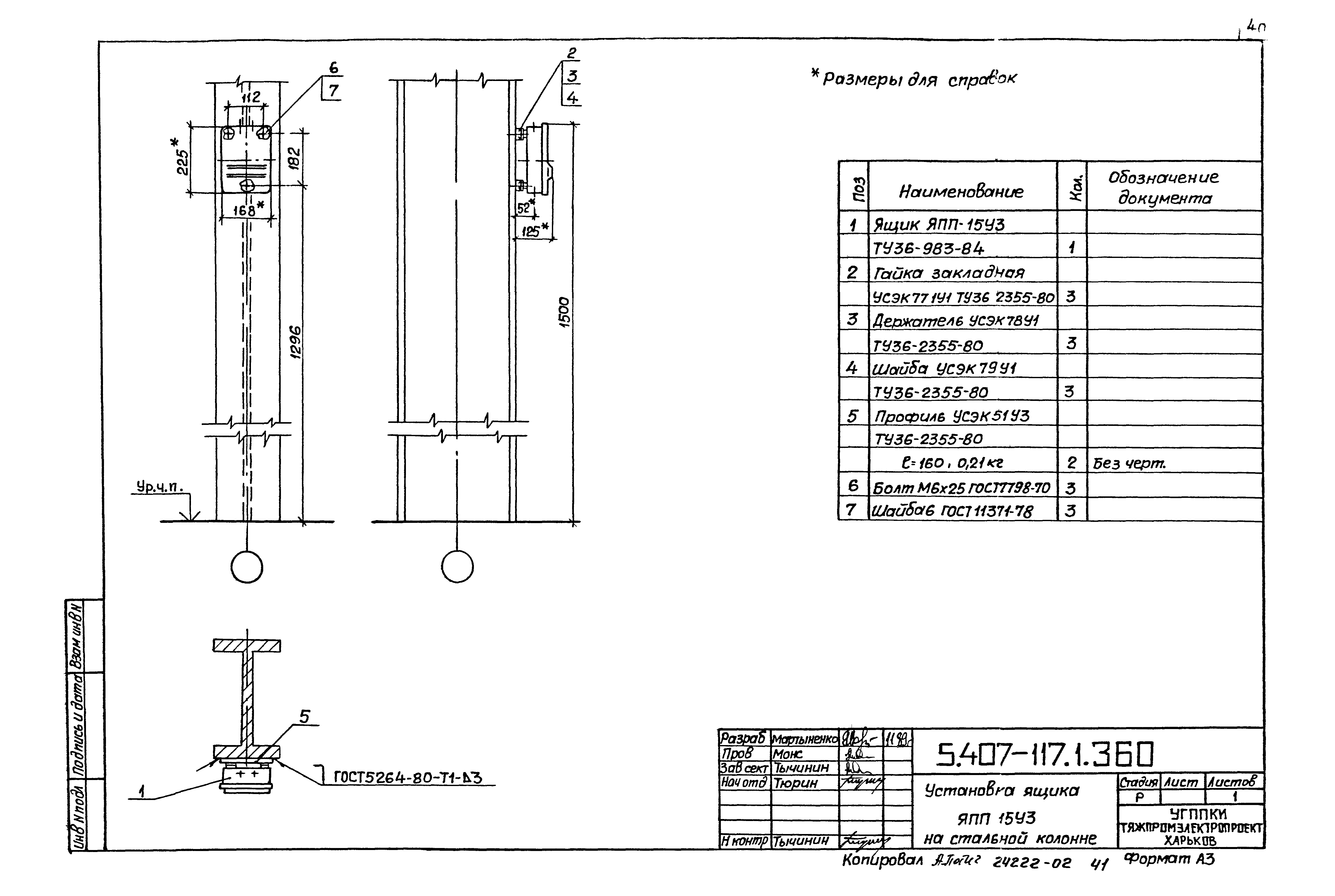
5.407-117.1.360 Установка ящика ЯПП-15 УЗ на стальной колонне
5.407-117.1.370 Установка ящика ЯРП-20У3 на стальной колонне
5.407-117.1.380 Установка ящика ВП-20МУ3 на стальной колонне
5.407-117.1.390 Установка ящика ЯВ3Ш-31-У2 на стальной колонне
5.407-117.1.400 Установка ящика ЯБПВУ-1МУ3 на стальной колонне
5.407-117.1.410 Установка ящика ЯРП-100ПУ3 на стальной колонне
5.407-117.1.420 Установка ящика ЯБ1-2У3 на стальной колонне
5.407-117.1.430 Установка ящика ЯБПВУ-4У3 на стальной колонне
5.407-117.1.440 Установка ящика ЯК-250 У3 на стальной колонне
5.407-117.1.450 Установка ящика серии ЯРП11УХЛ на стальной колонне
5.407-117.1.460 Установка ящика ЯПП-15УЗ на стальной ступенчатой колонне
5.407-117.1.470 Установка ящика ЯРП-20УЗ на стальной ступенчатой колонне
5.407-117.1.480 Установка ящика ВП-20МУЗ на стальной ступенчатой колонне
5.407-117.1.490 Установка ящика ЯВЗШ-31-У2 на стальной ступенчатой колонне
5.407-117.1.500 Установка ящика ЯБПВУ-1МУ3 на стальной ступенчатой колонне
5.407-117.1.510 Установка ящика ЯРП-100ПУ3 на стальной ступенчатой колонне
5.407-117.1.520 Установка ящика ЯБ1-2У3 на стальной ступенчатой колонне
5.407-117.1.530 Установка ящика ЯБПВУ-4У3 на стальной ступенчатой колонне
5.407-117.1.540 Установка ящика ЯК-250У3 на стальной ступенчатой колонне
5.407-117.1.550 Установка ящика серии ЯРП11УХЛ на стальной ступенчатой колонне
5.407-117.1.560 Короб
5.407-117.1.561 Короб
5.407-117.1.570 Скоба в сборе
5.407-117.1.571 Скоба
5.407-117.1.580 Конструкция
Разработан: Украинский Тяжпромэлектропроект
Утверждён:13.04.1989 НПО Электромонтаж ММСС СССР
Издан: ГУП ЦПП (CPP GUP 1997 г. )
Расположен в:Техническая документация Строительство Справочные документы Типовые строительные конструкции, изделия и узлы Общероссийский строительный каталог Строительные конструкции, изделия и узлы зданий и сооружений для всех видов строительства Инженерное оборудование Инженерное оборудование; изделия и узлы инженерного оборудования зданий и сооружений Электрооборудование и электросети Установка светильников, пускателей, выключателей, щитов
Серия 5.407-117Серия 5.407-117Серия 5.407-117Серия 5.407-117Серия 5.407-117Серия 5.407-117Серия 5.407-117Серия 5.407-117Серия 5.407-117Серия 5.407-117Серия 5.407-117Серия 5.407-117Серия 5.407-117Серия 5.407-117Серия 5.407-117Серия 5.407-117Серия 5.407-117Серия 5.407-117Серия 5.407-117Серия 5.407-117Серия 5.407-117Серия 5.407-117Серия 5.407-117Серия 5.407-117Серия 5.407-117Серия 5.407-117Серия 5.407-117Серия 5.407-117Серия 5.407-117Серия 5.407-117Серия 5.407-117Серия 5.407-117Серия 5.407-117Серия 5.407-117Серия 5.407-117Серия 5.407-117Серия 5.407-117Серия 5.407-117Серия 5.407-117Серия 5.407-117Серия 5.407-117Серия 5.407-117Серия 5.407-117Серия 5.407-117Серия 5.407-117Серия 5.407-117Серия 5.407-117Серия 5.407-117Серия 5.407-117Серия 5.407-117Серия 5.407-117Серия 5.407-117Серия 5.407-117Серия 5.407-117Серия 5.407-117Серия 5.407-117Серия 5.407-117Серия 5.407-117Серия 5.407-117Серия 5.407-117Серия 5.407-117Серия 5.407-117Серия 5.407-117Серия 5.407-117Серия 5.407-117

© 2013 Ёшкин Кот :-) Карта сайта