Информационная система
«Ёшкин Кот»

Скачать базу одним архивом
Скачать обновления
История создания базы
Карта сайта

Скачать Серия 5.407-112 Выпуск 0. Материалы для проектирования

Дата актуализации: 10.08.2017

Серия 5.407-112

Выпуск 0. Материалы для проектирования

Обозначение: Серия 5.407-112
Обозначение англ: Series 5.407-112
Статус:не определен законодательством
Название рус.:Выпуск 0. Материалы для проектирования
Дата добавления в базу:01.09.2013
Дата актуализации:05.05.2017
Дата введения:01.01.1990
Оглавление:5.407-112.0.ПЗ Пояснительная записка
5.407-112.0.10ГЧ Щитки и ящики. Габаритный чертеж
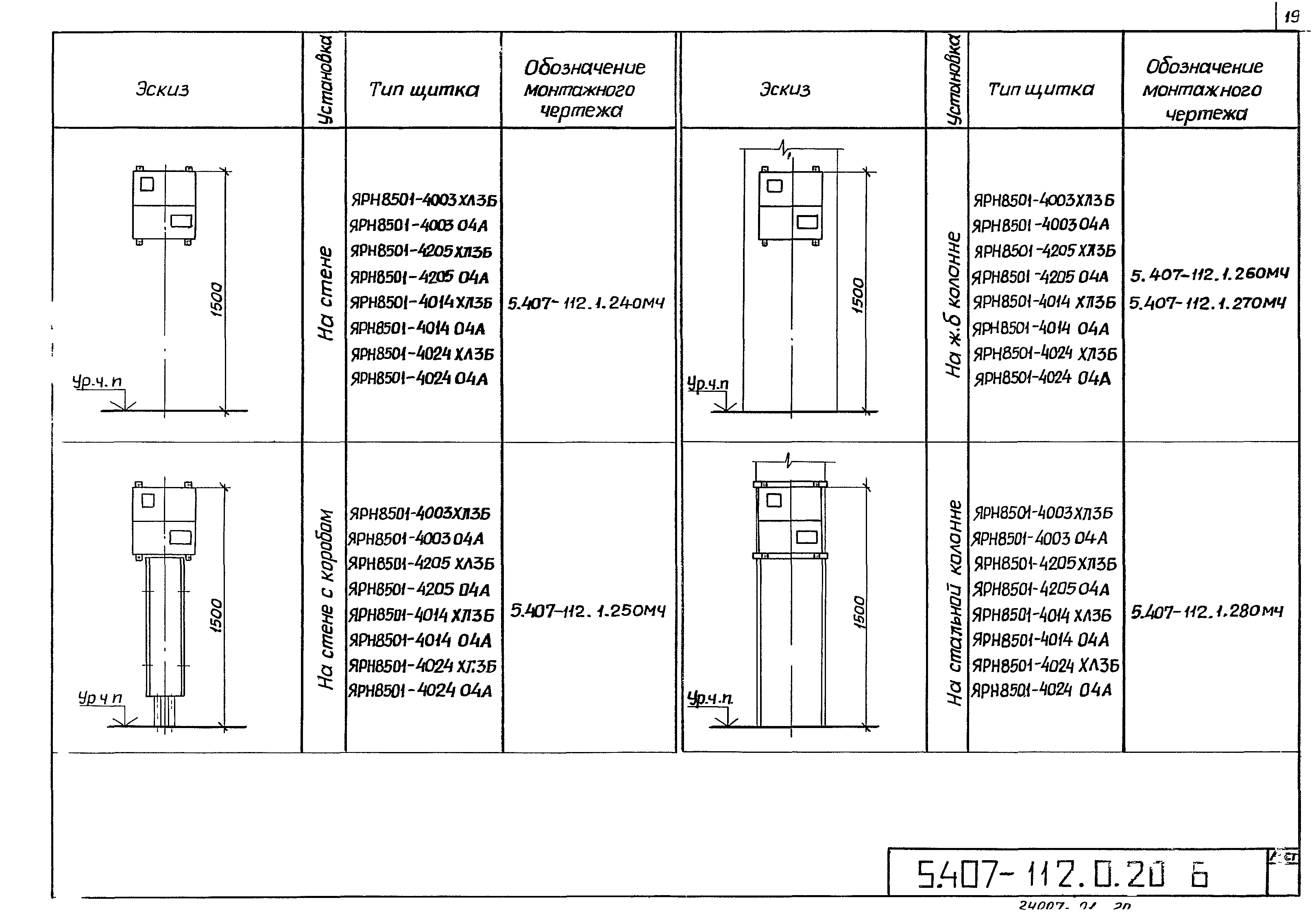
5.407-112.0.20ТБ Таблица выбора чертежей
5.407-112.0.30Д Ведомость потребности в оборудовании, изделиях и материалах
5.407-112.0.40Д Строительное задание на нишу для одного щитка
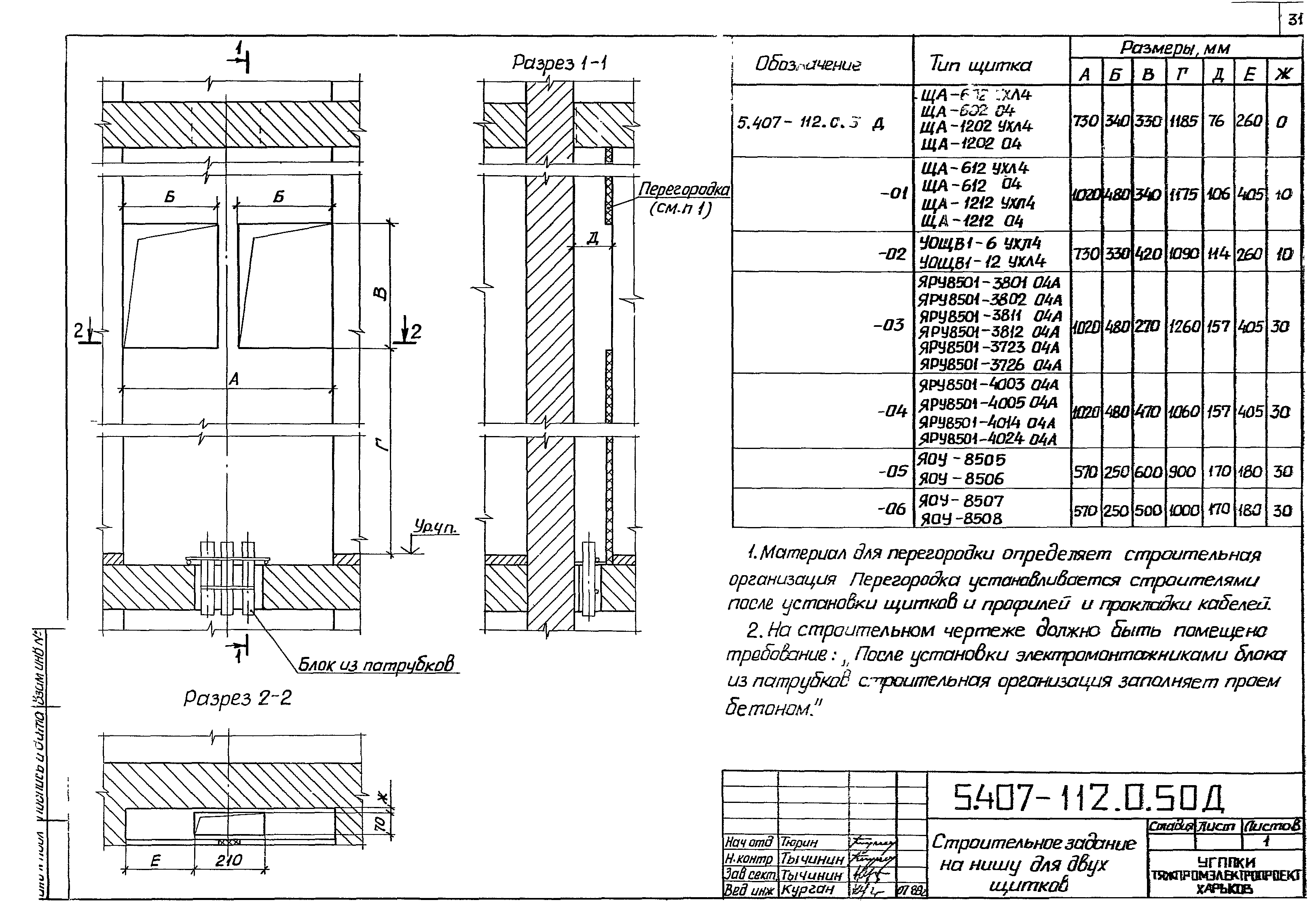
5.407-112.0.50Д Строительное задание на нишу для двух щитков
5.407-112.0.60Д Расположение щитков освещения в цехе (Пример)
Разработан: Украинский Тяжпромэлектропроект
Утверждён:14.02.1989 НПО Электромонтаж ММСС СССР
Издан: ЦИТП Госстроя СССР (CITP, Gosstroy (USSR) 1989 г. )
Расположен в:Техническая документация Строительство Справочные документы Типовые строительные конструкции, изделия и узлы Общероссийский строительный каталог Строительные конструкции, изделия и узлы зданий и сооружений для всех видов строительства Инженерное оборудование Инженерное оборудование; изделия и узлы инженерного оборудования зданий и сооружений Электрооборудование и электросети Установка светильников, пускателей, выключателей, щитов
Серия 5.407-112Серия 5.407-112Серия 5.407-112Серия 5.407-112Серия 5.407-112Серия 5.407-112Серия 5.407-112Серия 5.407-112Серия 5.407-112Серия 5.407-112Серия 5.407-112Серия 5.407-112Серия 5.407-112Серия 5.407-112Серия 5.407-112Серия 5.407-112Серия 5.407-112Серия 5.407-112Серия 5.407-112Серия 5.407-112Серия 5.407-112Серия 5.407-112Серия 5.407-112Серия 5.407-112Серия 5.407-112Серия 5.407-112Серия 5.407-112Серия 5.407-112Серия 5.407-112Серия 5.407-112Серия 5.407-112Серия 5.407-112

© 2013 Ёшкин Кот :-) Карта сайта