Информационная система
«Ёшкин Кот»

Скачать базу одним архивом
Скачать обновления
История создания базы
Карта сайта

Скачать Серия 5.407-31 Ящики с зажимами для контрольных проводов и кабелей. Чертежи изделий

Дата актуализации: 10.08.2017

Серия 5.407-31

Ящики с зажимами для контрольных проводов и кабелей. Чертежи изделий

Обозначение: Серия 5.407-31
Обозначение англ: Series 5.407-31
Статус:не определен законодательством
Название рус.:Ящики с зажимами для контрольных проводов и кабелей. Чертежи изделий
Дата добавления в базу:01.09.2013
Дата актуализации:05.05.2017
Дата введения:01.01.1983
Оглавление:Общие указания
Таблица выбора чертежей
Основные размеры ящиков
Примеры установки ящиков с зажимами
Ящик К654 на 10 наборных зажимов
Ящик К654 на 15 наборных зажимов
Ящик К655 на 20 наборных зажимов
Ящик К655 на 30 наборных зажимов
Ящик К656 на 40 наборных зажимов
Ящик К656 на 50 наборных зажимов
Ящик К656 на 60 наборных зажимов
Ящик К656 на 70 наборных зажимов
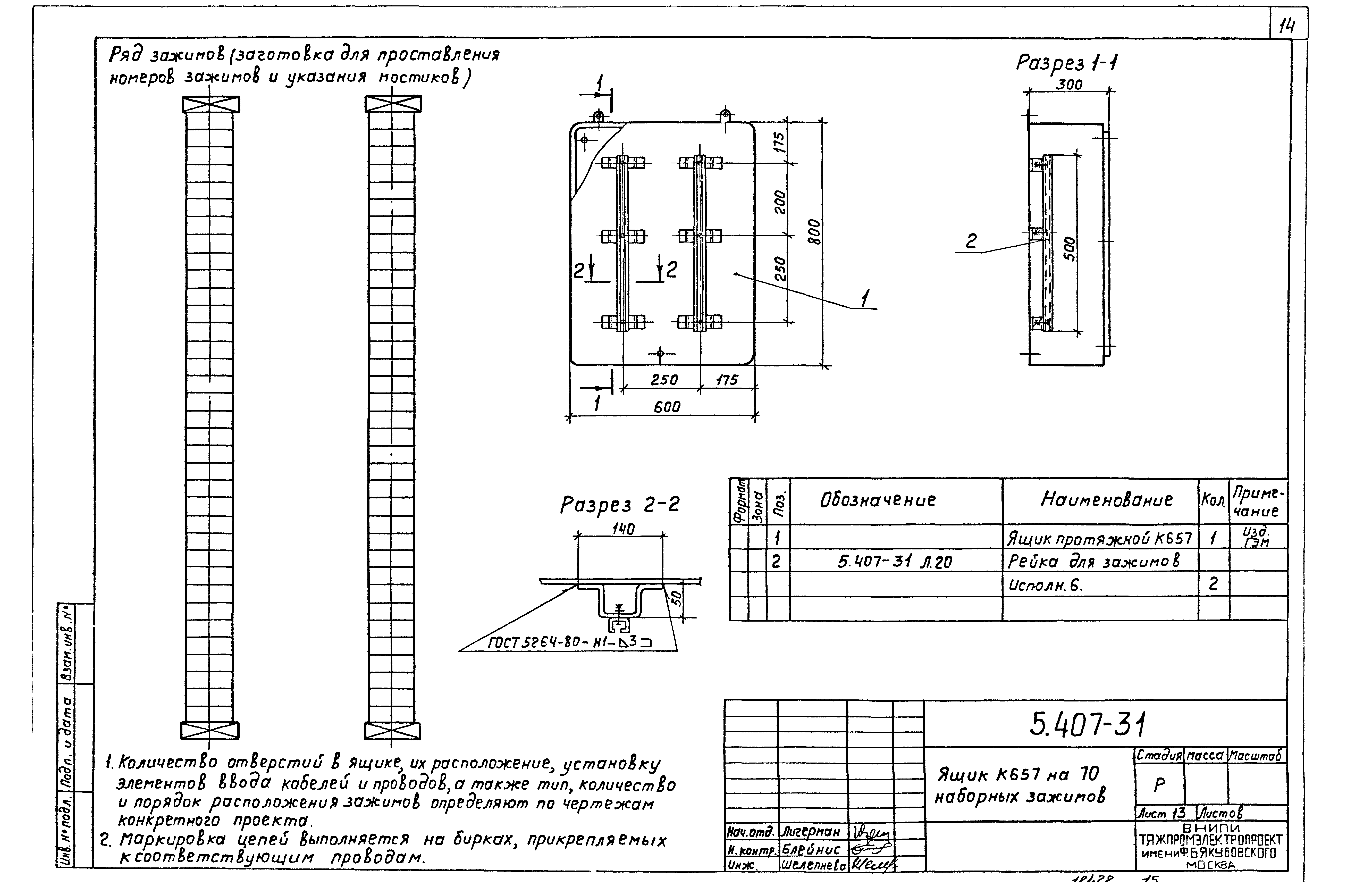
Ящик К657 на 80 наборных зажимов
Ящик К657 на 90 наборных зажимов
Ящик К657 на 100 наборных зажимов
Ящик К659 на 10 наборных зажимов
Ящик К659 на 15 наборных зажимов
Рейка для зажимов. Исполнение 1 … 3
Рейка для зажимов. Исполнение 4 … 9
Ведомость изделий и материалов
Разработан: ВНИПИ Тяжпромэлектропроект им. Ф.Б. Якубовского
Утверждён:27.09.1982 Минмонтажспецстрой СССР (USSR Minmontazhspetsstroy )
Издан: ГП ЦПП (1996 г. )
Расположен в:Техническая документация Строительство Справочные документы Типовые строительные конструкции, изделия и узлы Общероссийский строительный каталог Строительные конструкции, изделия и узлы зданий и сооружений для всех видов строительства Инженерное оборудование Инженерное оборудование; изделия и узлы инженерного оборудования зданий и сооружений Электрооборудование и электросети Прокладка шинопроводов, кабелей, троллеев и электропроводок
Серия 5.407-31Серия 5.407-31Серия 5.407-31Серия 5.407-31Серия 5.407-31Серия 5.407-31Серия 5.407-31Серия 5.407-31Серия 5.407-31Серия 5.407-31Серия 5.407-31Серия 5.407-31Серия 5.407-31Серия 5.407-31Серия 5.407-31Серия 5.407-31Серия 5.407-31Серия 5.407-31Серия 5.407-31Серия 5.407-31Серия 5.407-31Серия 5.407-31Серия 5.407-31

© 2013 Ёшкин Кот :-) Карта сайта