Информационная система
«Ёшкин Кот»

Скачать базу одним архивом
Скачать обновления
История создания базы
Карта сайта

Скачать Серия 5.407-75 Выпуск 2. Чертежи монтажные

Дата актуализации: 10.08.2017

Серия 5.407-75

Выпуск 2. Чертежи монтажные

Обозначение: Серия 5.407-75
Обозначение англ: Series 5.407-75
Статус:не определен законодательством
Название рус.:Выпуск 2. Чертежи монтажные
Дата добавления в базу:01.09.2013
Дата актуализации:05.05.2017
Дата введения:01.01.1987
Оглавление:5.407-75.2.10СБ Конструкция с тремя ящиками ЯВ3-31-1-У2 для установки на стене. Сборочный чертеж
5.407-75.2.20СБ Конструкция с тремя ящиками ЯВ3-32-1-У2, ЯВ3-33-1-У2 и двумя ящиками ЯВ3-33-1-У2 и одним ЯВ3-32-1-У2 для установки на стене. Сборочный чертеж
5.407-75.2.30СБ Конструкция с ящиками ЯВ3-31-1-У2 с обхватом для колонны. Сборочный чертеж
5.407-75.2.40СБ Конструкция с ящиком ЯВ3-32-1-У2, ЯВ3-33-1-У2 с обхватом для колонны. Сборочный чертеж
5.407-75.2.50 Конструкция с блоком типа РУС с обхватом для колонны
5.407-75.2.50СБ Конструкция с блоком типа РУС с обхватом для колонны. Сборочный чертеж
5.407-75.2.60СБ Конструкция с ящиком ЯВ3-31-1-У2 с обхватом для колонны сечение 500х800 мм. Сборочный чертеж
5.407-75.2.70СБ Конструкция с ящиком ЯВ3-32-1-У2, ЯВ3-33-1-У2 с обхватом для колонны сечением 500х800 мм. Сборочный чертеж
5.407-75.2.80СБ Конструкция с блоком типа РУС с обхватом для колонны сечением 500х800 мм. Сборочный чертеж
5.407-75.2.90СБ Конструкция с ящиком ЯВ3-31-1-У2 с обхватом для двухветвевых колонн. Сборочный чертеж
5.407-75.2.100 Конструкция с ящиком ЯВ3-32-1-У2, ЯВ3-33-1-У2 с обхватом для двухветвевых колонн
5.407-75.2.100СБ Конструкция с ящиком ЯВ3-32-1-У2, ЯВ3-33-1-У2 с обхватом для двухветвевых колонн
5.407-75.2.110 Конструкция с блоком типа РУС с обхватом для двухветвевых колонн
5.407-75.2.110СБ Конструкция с блоком типа РУС с обхватом для двухветвевых колонн
5.407-75.2.120СБ Конструкция с ящиком ЯВ3-31-1-У2 для установки на металлической колонне постоянного сечения. Сборочный чертеж
5.407-75.2.130 Конструкция с ящиком ЯВ3-32-1-У2, ЯВ3-33-1-У2 для установки на металлической колонне постоянного сечения
5.407-75.2.130СБ Конструкция с ящиком ЯВ3-32-1-У2, ЯВ3-33-1-У2 для установки на металлической колонне постоянного сечения. Сборочный чертеж
5.407-75.2.140 Конструкция с блоком типа РУС для установки на металлической колонне постоянного сечения
5.407-75.2.140СБ Конструкция с блоком типа РУС для установки на металлической колонне постоянного сечения. Сборочный чертеж
5.407-75.2.150СБ Конструкция с ящиком ЯВ3-31-1-У2 для установки на металлической ступенчатой колонне. Сборочный чертеж
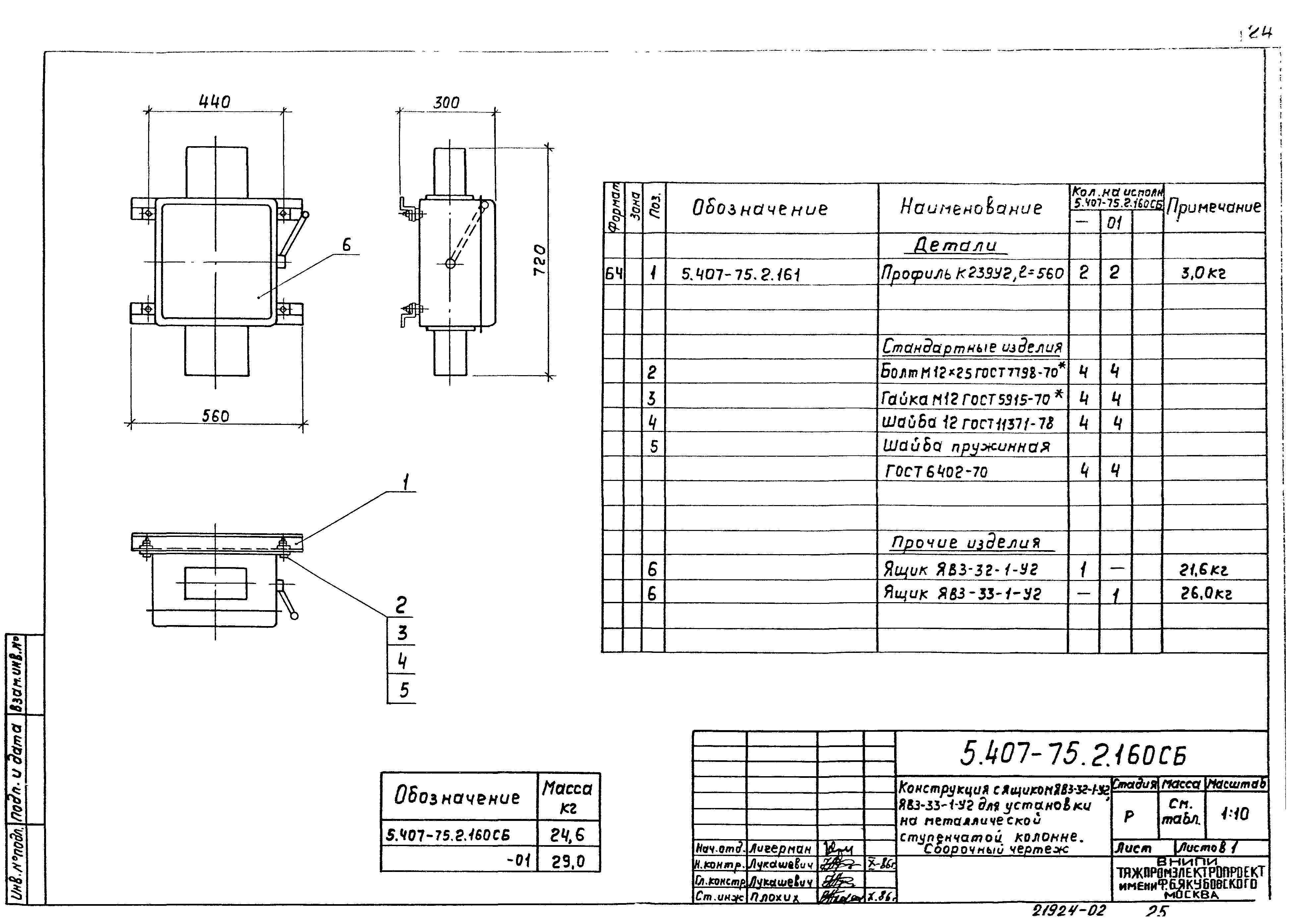
5.407-75.2.160СБ Конструкция с ящиком ЯВ-32-1-У2, ЯВ3-33-1-У2 для установки на металлической ступенчатой колонне. Сборочный чертеж
5.407-75.2.170СБ Конструкция с блоком типа РУС для установки на металлической ступенчатой колонне. Сборочный чертеж
5.407-75.2.180СБ Конструкция с тремя ящиками ЯВ3-31-1-У2 для установки на металлической ступенчатой колонне. Сборочный чертеж
5.407-75.2.190 Конструкция
5.407-75.2.200СБ Конструкция с тремя ящиками ЯВ3-32-1-У2, ЯВ3-33-1-У2 и двумя ящиками ЯВ3-33-1-У2 и одним ЯВ3-32-1-У2 для установки на металлической ступенчатой колонне. Сборочный чертеж
5.407-75.2.210 СБ Конструкция с ящиком ЯВ3-31-1-У2 на стойках. Сборочный чертеж
5.407-75.2.220СБ Конструкция с ящиком ЯВ3-32-1-У2, ЯВ3-33-1-У2 на стойках. Сборочный чертеж
5.407-75.2.230СБ Конструкция с ящиком ЯВ3-31-1-У2 с коробом на стойках. Сборочный чертеж
5.407-75.2.240СБ Конструкция с ящиком ЯВ3-32-У2, ЯВ3-33-1-У2 с коробом на стойках. Сборочный чертеж
5.407-75.2.250СБ Конструкция с тремя ящиками ЯВ3-31-1-У2 на стойках. Сборочный чертеж
5.407-75.2.260СБ Конструкция с тремя ящиками ЯВ3-32-1-У2, ЯВ3-33-1-У2 и двумя ящиками ЯВ3-33-1-У2 и одним ЯВ3-32-1-У2 на стойках. Сборочный чертеж
5.407-75.2.270СБ Конструкция с тремя ящиками ЯВ3-31-1-У2 на стойках с коробом. Сборочный чертеж
5.407-75.2.280СБ Конструкция с тремя ящиками ЯВ3-32-1-У2, ЯВ3-33-1-У2 и двумя ящиками ЯВ3-33-1-У2 и одним ЯВ3-32-1-У2 на стойках с коробом. Сборочный чертеж
5.407-75.2.290СБ Короб. Вариант 1. Сборочный чертеж
5.407-75.2.300СБ Короб. Вариант 2. Сборочный чертеж
5.407-75.2.310СБ Короб. Вариант 3. Сборочный чертеж
5.407-75.2.320СБ Короб. Вариант 4. Сборочный чертеж
Разработан: ВНИПИ Тяжпромэлектропроект им. Ф.Б. Якубовского
Утверждён:01.12.1986 Минмонтажспецстрой СССР (USSR Minmontazhspetsstroy )
Издан: ГУП ЦПП (CPP GUP 2001 г. )
Расположен в:Техническая документация Строительство Справочные документы Типовые строительные конструкции, изделия и узлы Общероссийский строительный каталог Строительные конструкции, изделия и узлы зданий и сооружений для всех видов строительства Инженерное оборудование Инженерное оборудование; изделия и узлы инженерного оборудования зданий и сооружений Электрооборудование и электросети Прокладка шинопроводов, кабелей, троллеев и электропроводок
Серия 5.407-75Серия 5.407-75Серия 5.407-75Серия 5.407-75Серия 5.407-75Серия 5.407-75Серия 5.407-75Серия 5.407-75Серия 5.407-75Серия 5.407-75Серия 5.407-75Серия 5.407-75Серия 5.407-75Серия 5.407-75Серия 5.407-75Серия 5.407-75Серия 5.407-75Серия 5.407-75Серия 5.407-75Серия 5.407-75Серия 5.407-75Серия 5.407-75Серия 5.407-75Серия 5.407-75Серия 5.407-75Серия 5.407-75Серия 5.407-75Серия 5.407-75Серия 5.407-75Серия 5.407-75Серия 5.407-75Серия 5.407-75Серия 5.407-75Серия 5.407-75Серия 5.407-75Серия 5.407-75Серия 5.407-75Серия 5.407-75Серия 5.407-75Серия 5.407-75Серия 5.407-75

© 2013 Ёшкин Кот :-) Карта сайта