Информационная система
«Ёшкин Кот»

Скачать базу одним архивом
Скачать обновления
История создания базы
Карта сайта

Скачать Серия 5.407-68 Выпуск 0. Материалы для проектирования

Дата актуализации: 10.08.2017

Серия 5.407-68

Выпуск 0. Материалы для проектирования

Обозначение: Серия 5.407-68
Обозначение англ: Series 5.407-68
Статус:действует
Название рус.:Выпуск 0. Материалы для проектирования
Дата добавления в базу:01.09.2013
Дата актуализации:05.05.2017
Оглавление:5.407-68.0.ПЗ Пояснительная записка
5.407-68.010ТБ Таблица выбора монтажных чертежей для прокладки троллеев
5.407-68.0.20ГЧ Троллейные секции, указатель троллейный, троллейная планка и шпилька
5.407-68.0.30ГЧ Троллейный кронштейн промежуточный
5.407-68.0.40ГЧ Троллейный кронштейн секционный
5.407-68.0.50ГЧ Габариты стальных подкрановых балок
5.407-68.0.60ГЧ Габариты железобетонных подкрановых балок
5.407-68.0.70Д Комплектация троллейных линий
5.407-68.0.80Д Устройство ремонтных участков на троллейных линиях
5.407-68.0.90Д Размещение троллейных указателей на троллейных линиях
5.407-68.0.100Д Выбор компенсаторов
5.407-68.0.110Д Прокладка главных троллеев на кронштейнах на металлических подкрановых балках (Пример)
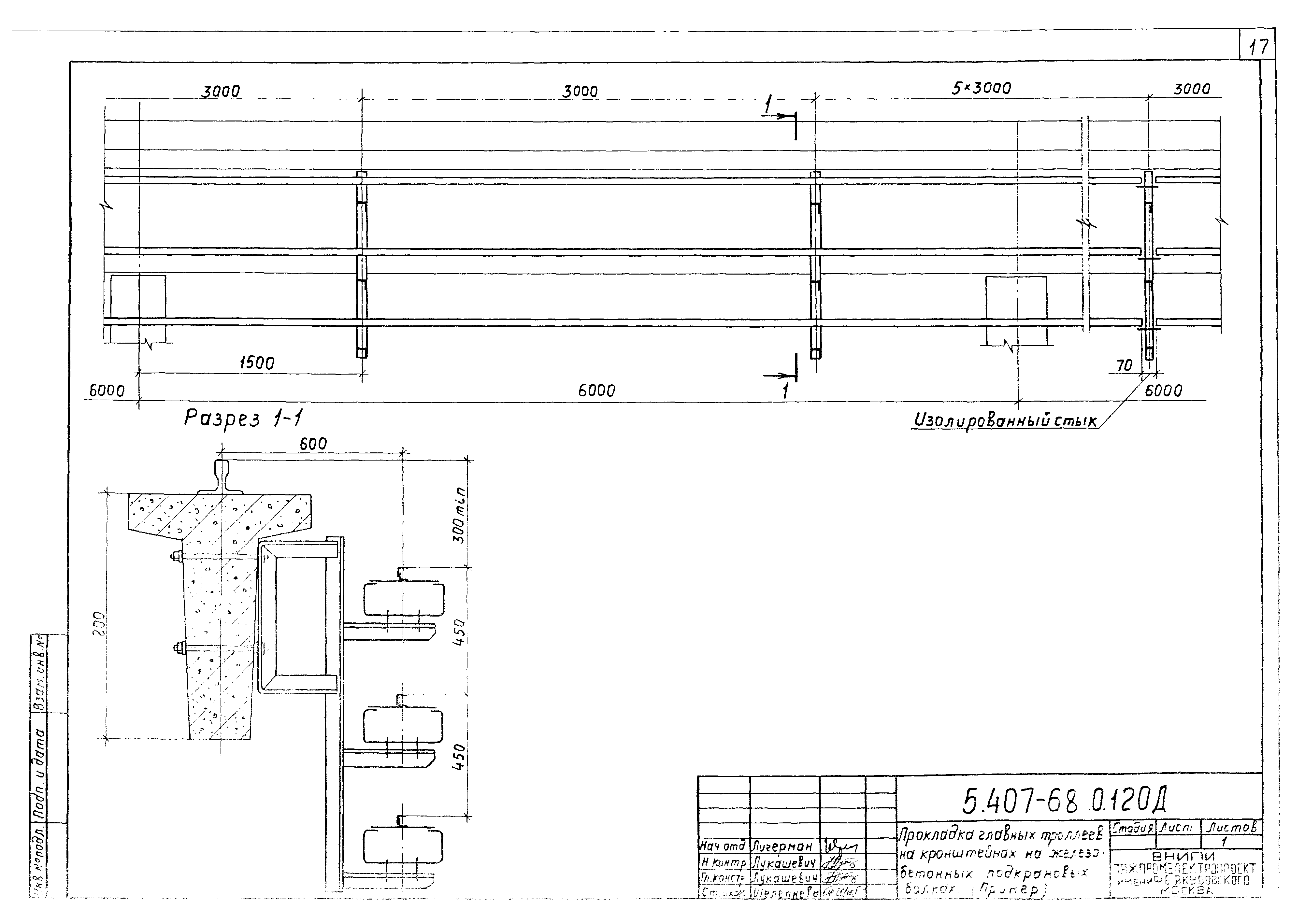
5.407-68.0.120Д Прокладка главных троллеев на кронштейнах на железобетонных подкрановых балках (Пример)
5.407-68.0.130Д Прокладка главных троллеев на кронштейнах на железобетонных подкрановых балках (Пример)
5.407-68.0.140Д Прокладка главных троллеев для кранов. План. (Пример)
Разработан: ВНИПИ Тяжпромэлектропроект им. Ф.Б. Якубовского
Утверждён:12.09.1985 Минмонтажспецстрой СССР (USSR Minmontazhspetsstroy )
Расположен в:Техническая документация Строительство Справочные документы Типовые строительные конструкции, изделия и узлы Общероссийский строительный каталог Строительные конструкции, изделия и узлы зданий и сооружений для всех видов строительства Инженерное оборудование Инженерное оборудование; изделия и узлы инженерного оборудования зданий и сооружений Электрооборудование и электросети Прокладка шинопроводов, кабелей, троллеев и электропроводок
Серия 5.407-68Серия 5.407-68Серия 5.407-68Серия 5.407-68Серия 5.407-68Серия 5.407-68Серия 5.407-68Серия 5.407-68Серия 5.407-68Серия 5.407-68Серия 5.407-68Серия 5.407-68Серия 5.407-68Серия 5.407-68Серия 5.407-68Серия 5.407-68Серия 5.407-68Серия 5.407-68Серия 5.407-68Серия 5.407-68

© 2013 Ёшкин Кот :-) Карта сайта