Информационная система
«Ёшкин Кот»

Скачать базу одним архивом
Скачать обновления
История создания базы
Карта сайта

Скачать Серия 5.407-26 Выпуск 0. Материалы для проектирования

Дата актуализации: 10.08.2017

Серия 5.407-26

Выпуск 0. Материалы для проектирования

Обозначение: Серия 5.407-26
Обозначение англ: Series 5.407-26
Статус:не определен законодательством
Название рус.:Выпуск 0. Материалы для проектирования
Дата добавления в базу:01.09.2013
Дата актуализации:05.05.2017
Дата введения:01.12.1981
Оглавление:Общие указания
Прокладка главных троллеев для кранов. План. (пример)
Выбор троллеев и троллейных кронштейнов
Комплектация троллейных линий
Устройство ремонтных участков на троллейных линиях
Таблица выбора монтажных чертежей для прокладки троллеев
Выбор компенсаторов
Размещение светофоров на троллейных линиях
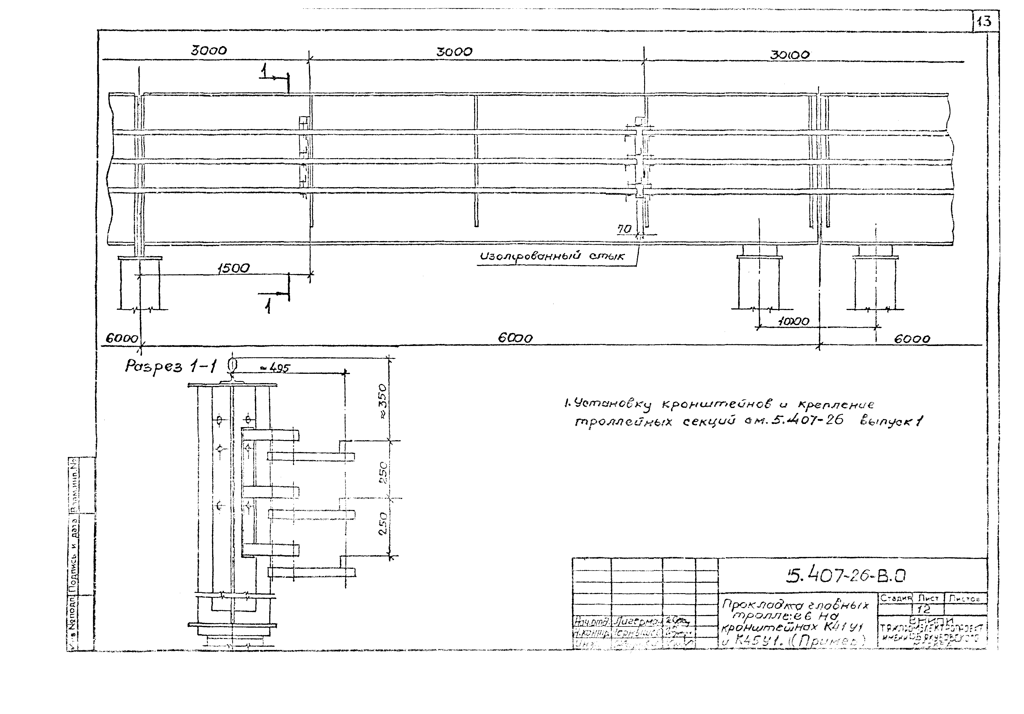
Прокладка главных троллеев на кронштейнах У41У1 и У45У1. (Пример)
Троллейные секции, светофор, троллейная планка
Троллейные кронштейны
Габариты стальных подкрановых балок
Разработан: ВНИПИ Тяжпромэлектропроект им. Ф.Б. Якубовского
Утверждён:02.12.1981 ВНИПИ Тяжпромэлектропроект им. Ф.Б. Якубовского (F.B.Yakubovskiy Tyazhpromelektroproject VNIPI 259)
Расположен в:Техническая документация Строительство Справочные документы Типовые строительные конструкции, изделия и узлы Общероссийский строительный каталог Строительные конструкции, изделия и узлы зданий и сооружений для всех видов строительства Инженерное оборудование Инженерное оборудование; изделия и узлы инженерного оборудования зданий и сооружений Электрооборудование и электросети Прокладка шинопроводов, кабелей, троллеев и электропроводок
Серия 5.407-26Серия 5.407-26Серия 5.407-26Серия 5.407-26Серия 5.407-26Серия 5.407-26Серия 5.407-26Серия 5.407-26Серия 5.407-26Серия 5.407-26Серия 5.407-26Серия 5.407-26Серия 5.407-26Серия 5.407-26Серия 5.407-26Серия 5.407-26Серия 5.407-26

© 2013 Ёшкин Кот :-) Карта сайта