Информационная система
«Ёшкин Кот»

Скачать базу одним архивом
Скачать обновления
История создания базы
Карта сайта

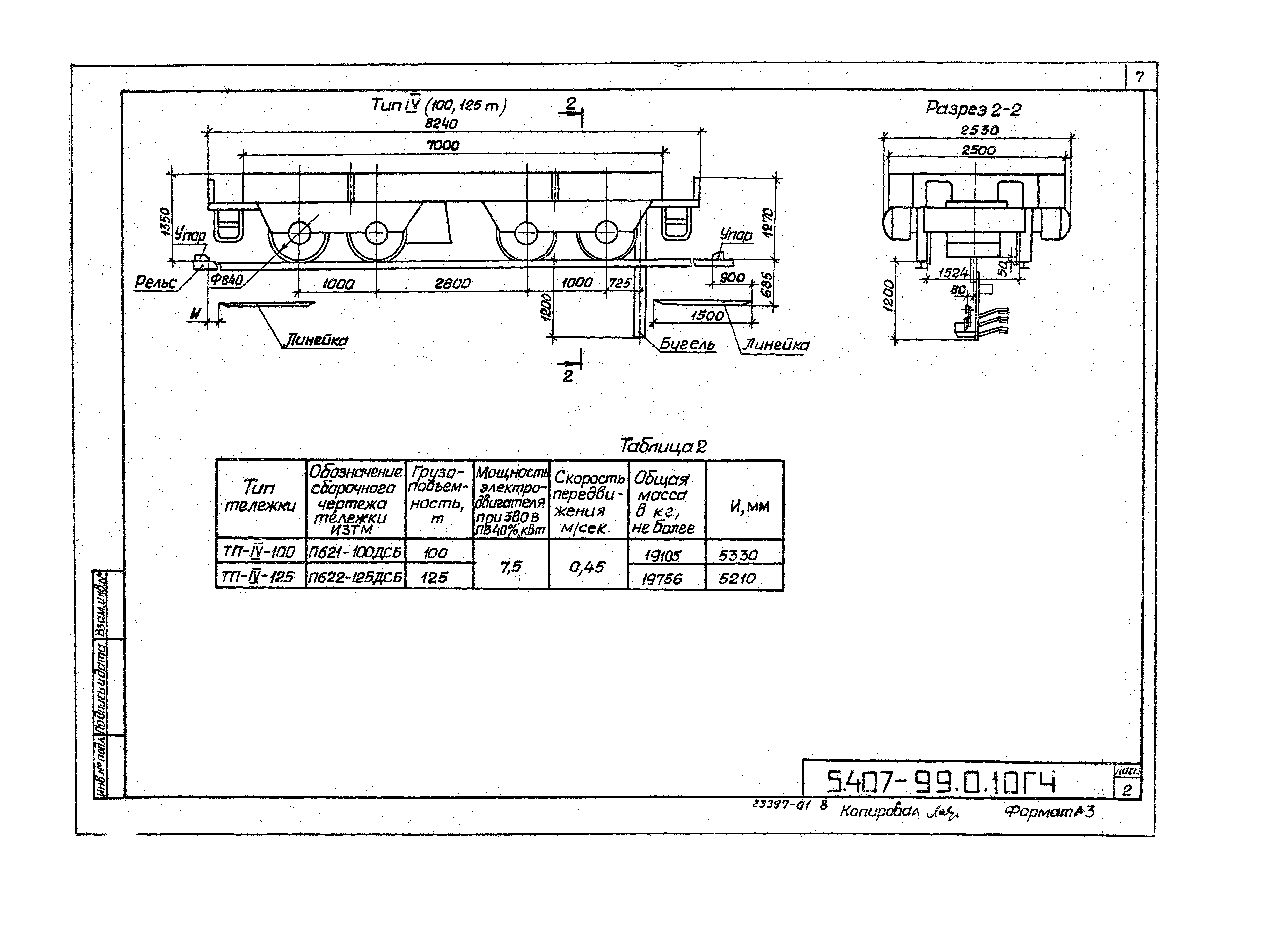
Скачать Серия 5.407-99 Выпуск 0. Материалы для проектирования

Дата актуализации: 10.08.2017

Серия 5.407-99

Выпуск 0. Материалы для проектирования

Обозначение: Серия 5.407-99
Обозначение англ: Series 5.407-99
Статус:не определен законодательством
Название рус.:Выпуск 0. Материалы для проектирования
Дата добавления в базу:01.09.2013
Дата актуализации:05.05.2017
Дата введения:01.01.1989
Разработан: Украинский Тяжпромэлектропроект
Утверждён:14.09.1988 УГППКИ Тяжпромэлектропроект (1398)
Издан: ЦИТП Госстроя СССР (CITP, Gosstroy (USSR) 1989 г. )
Расположен в:Техническая документация Строительство Справочные документы Типовые строительные конструкции, изделия и узлы Общероссийский строительный каталог Строительные конструкции, изделия и узлы зданий и сооружений для всех видов строительства Инженерное оборудование Инженерное оборудование; изделия и узлы инженерного оборудования зданий и сооружений Электрооборудование и электросети Прокладка шинопроводов, кабелей, троллеев и электропроводок
Серия 5.407-99Серия 5.407-99Серия 5.407-99Серия 5.407-99Серия 5.407-99Серия 5.407-99Серия 5.407-99Серия 5.407-99Серия 5.407-99Серия 5.407-99Серия 5.407-99Серия 5.407-99Серия 5.407-99Серия 5.407-99Серия 5.407-99Серия 5.407-99Серия 5.407-99Серия 5.407-99Серия 5.407-99Серия 5.407-99Серия 5.407-99Серия 5.407-99Серия 5.407-99Серия 5.407-99Серия 5.407-99Серия 5.407-99Серия 5.407-99Серия 5.407-99Серия 5.407-99Серия 5.407-99Серия 5.407-99Серия 5.407-99Серия 5.407-99Серия 5.407-99Серия 5.407-99Серия 5.407-99Серия 5.407-99Серия 5.407-99Серия 5.407-99Серия 5.407-99Серия 5.407-99Серия 5.407-99Серия 5.407-99

© 2013 Ёшкин Кот :-) Карта сайта