Информационная система
«Ёшкин Кот»

Скачать базу одним архивом
Скачать обновления
История создания базы
Карта сайта

Скачать Серия 5.407-49 Выпуск 2. Чертежи изделия

Дата актуализации: 10.08.2017

Серия 5.407-49

Выпуск 2. Чертежи изделия

Обозначение: Серия 5.407-49
Обозначение англ: Series 5.407-49
Статус:не определен законодательством
Название рус.:Выпуск 2. Чертежи изделия
Дата добавления в базу:01.09.2013
Дата актуализации:05.05.2017
Дата введения:01.12.1983
Оглавление:Общие указания
Угловая секция. Вариант 1
Угловая секция. Вариант 2
Тройниковая секция. Вариант 1
Тройниковая секция. Вариант 2
Тройниковая секция. Вариант 3
Тройниковая секция. Вариант 4
Крестообразная секция. Вариант 1
Крестообразная секция. Вариант 2
Переходная секция. Вариант 1
Переходная секция. Вариант 2
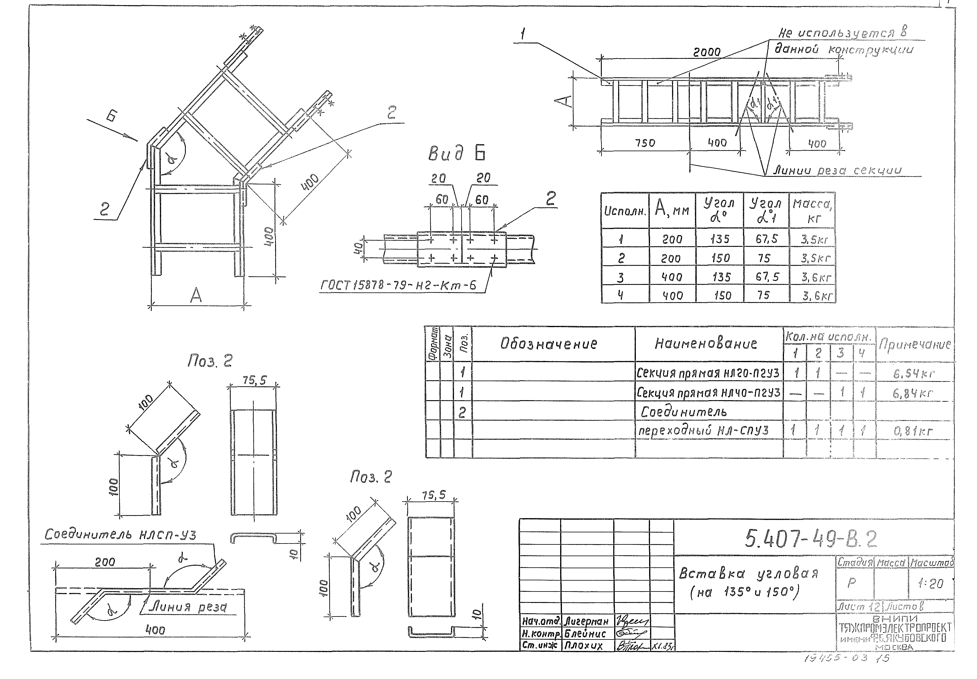
Вставка угловая (на 135 градусов и 150 градусов)
Конструкция для горизонтальной прокладки лотков. Вариант 1
Конструкция для горизонтальной прокладки лотков. Вариант 2
Конструкция для вертикальной прокладки лотков
Кронштейн с одной полкой 250 мм
Конструкция с двумя полками 250 мм
Кронштейн с одной полкой 450 мм
Кронштейн с двумя полками 450 мм
Обхват
Конструкция для соединения отрезков прямых секций НЛ5-П2У3, НЛ10-П2У3
Конструкция для крепления лотков к раме ЩСУ
Таблица сопоставления чертежей
Разработан: ВНИПИ Тяжпромэлектропроект им. Ф.Б. Якубовского
Утверждён:09.12.1983 Минмонтажспецстрой СССР (USSR Minmontazhspetsstroy )
Расположен в:Техническая документация Строительство Справочные документы Типовые строительные конструкции, изделия и узлы Общероссийский строительный каталог Строительные конструкции, изделия и узлы зданий и сооружений для всех видов строительства Инженерное оборудование Инженерное оборудование; изделия и узлы инженерного оборудования зданий и сооружений Электрооборудование и электросети Прокладка шинопроводов, кабелей, троллеев и электропроводок
Серия 5.407-49Серия 5.407-49Серия 5.407-49Серия 5.407-49Серия 5.407-49Серия 5.407-49Серия 5.407-49Серия 5.407-49Серия 5.407-49Серия 5.407-49Серия 5.407-49Серия 5.407-49Серия 5.407-49Серия 5.407-49Серия 5.407-49Серия 5.407-49Серия 5.407-49Серия 5.407-49Серия 5.407-49Серия 5.407-49Серия 5.407-49Серия 5.407-49Серия 5.407-49Серия 5.407-49

© 2013 Ёшкин Кот :-) Карта сайта