Информационная система
«Ёшкин Кот»

Скачать базу одним архивом
Скачать обновления
История создания базы
Карта сайта

Скачать Серия 5.407-106 Выпуск 0. Материалы для проектирования

Дата актуализации: 10.08.2017

Серия 5.407-106

Выпуск 0. Материалы для проектирования

Обозначение: Серия 5.407-106
Обозначение англ: Series 5.407-106
Статус:не определен законодательством
Название рус.:Выпуск 0. Материалы для проектирования
Дата добавления в базу:01.09.2013
Дата актуализации:05.05.2017
Дата введения:01.01.1990
Оглавление:5.407-106.0.01ПЗ Пояснительная записка
5.407-106.0.02ТБ Номенклатура элементов шинопровода ШМА4-2500-44-1У3 на 2500А
5.407-106.0.03ТБ Номенклатура элементов шинопровода ШМА4-3200-44-1У3 на 3200А
5.407-106.0.04ТБ Номенклатура общих элементов для шинопроводов ШМА4-2500 и ШМА4-3200
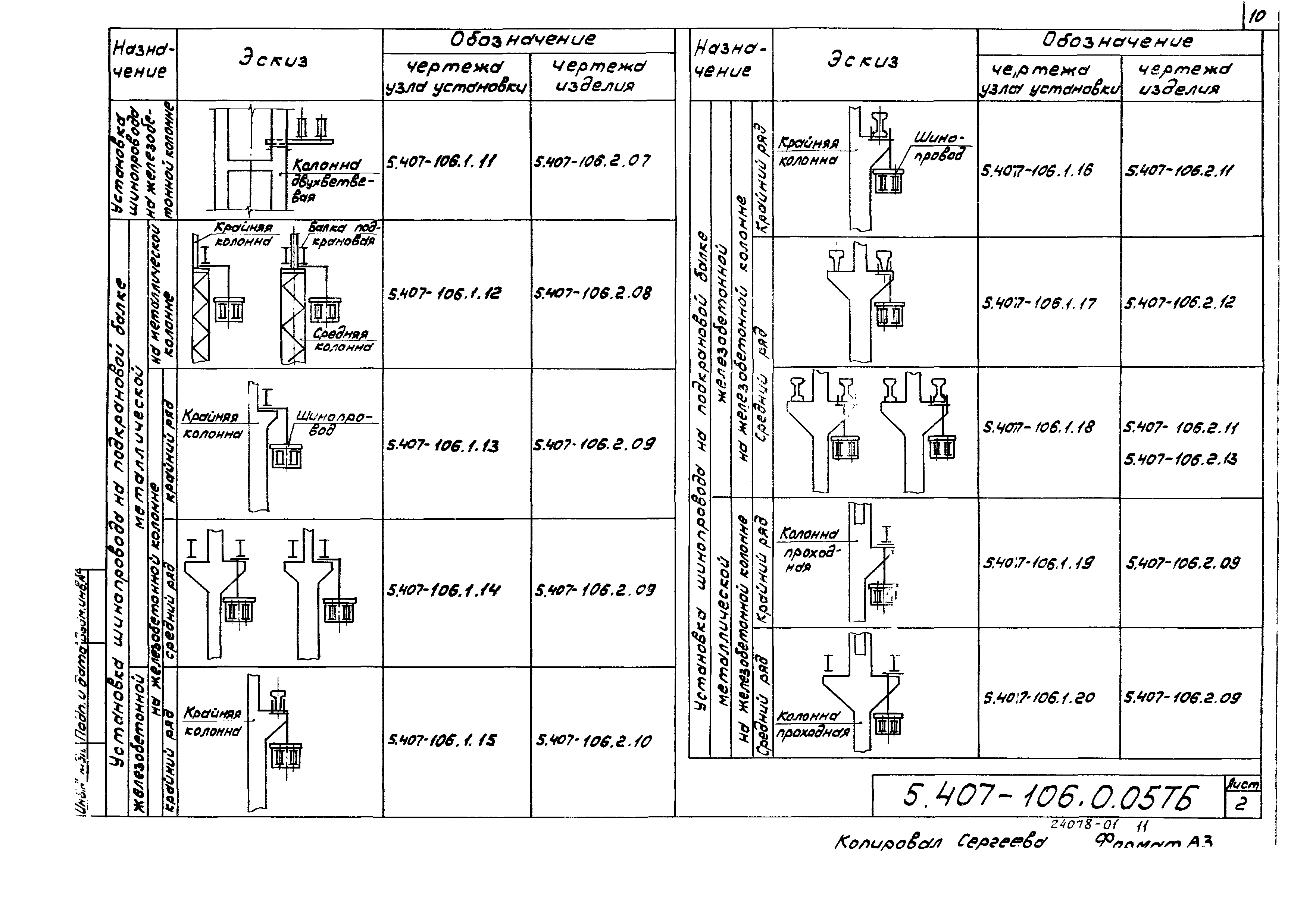
5.407-106.0.05ТБ Таблица выбора чертежей узлов установки и чертежей изделий
5.407-106.0.06В Ведомость изделий и материалов для изготовления электромонтажных конструкций и деталей в МЭЗ
5.407-106.0.07ГЧ Габаритные чертежи магистральных шинопроводов ШМА4-2500-44-1У3 на 2500А и ШМА4-3200-44-1У3 на 3200А
5.407-106.0.08ГЧ Комплект стыковочный У3466У3. У3666У3. Габаритный чертеж
5.407-106.0.09ГЧ Комплект стыковочный У3467У3. У3667У3. Габаритный чертеж
5.407-106.0.10ГЧ Комплект стыковочный У3468У3. У3668У3. Габаритный чертеж
5.407-106.0.11ГЧ Комплект стыковочный У3469У3. У3669У3. Габаритный чертеж
5.407-106.0.12ГЧ Габаритные размеры конструкций для прокладки шинопроводов ШМА4-2500 и ШМА4-3200
5.407-106.0.13Д Прокладка шинопроводов ШМА4-2500. План и разрезы
5.407-106.0.14Д Прокладка шинопровода по стене горизонтально и вертикально. Пример
5.407-106.0.15Д Прокладка шинопровода по колоннам с шагом 6 и 12 м. Пример
5.407-106.0.16Д Прокладка шинопровода с ответвительными секциями по колоннам с шагом 6 м. Пример
5.407-106.0.17Д Прокладка шинопровода через температурный шов здания. Пример
5.407-106.0.18Д Строительное задание на опорную конструкцию для крепления шинопровода в пролете между колоннами с шагом 12 м
Разработан: ВНИПИ Тяжпромэлектропроект им. Ф.Б. Якубовского
Утверждён:14.02.1989 НПО Электромонтаж ММСС СССР
Издан: ЦИТП Госстроя СССР (CITP, Gosstroy (USSR) 1990 г. )
Расположен в:Техническая документация Строительство Справочные документы Типовые строительные конструкции, изделия и узлы Общероссийский строительный каталог Строительные конструкции, изделия и узлы зданий и сооружений для всех видов строительства Инженерное оборудование Инженерное оборудование; изделия и узлы инженерного оборудования зданий и сооружений Электрооборудование и электросети Прокладка шинопроводов, кабелей, троллеев и электропроводок
Серия 5.407-106Серия 5.407-106Серия 5.407-106Серия 5.407-106Серия 5.407-106Серия 5.407-106Серия 5.407-106Серия 5.407-106Серия 5.407-106Серия 5.407-106Серия 5.407-106Серия 5.407-106Серия 5.407-106Серия 5.407-106Серия 5.407-106Серия 5.407-106Серия 5.407-106Серия 5.407-106Серия 5.407-106Серия 5.407-106Серия 5.407-106Серия 5.407-106Серия 5.407-106Серия 5.407-106Серия 5.407-106Серия 5.407-106Серия 5.407-106Серия 5.407-106Серия 5.407-106Серия 5.407-106Серия 5.407-106Серия 5.407-106Серия 5.407-106Серия 5.407-106

© 2013 Ёшкин Кот :-) Карта сайта