Информационная система
«Ёшкин Кот»

Скачать базу одним архивом
Скачать обновления
История создания базы
Карта сайта

Скачать Серия 5.407-36 Выпуск 1. Рабочие чертежи

Дата актуализации: 10.08.2017

Серия 5.407-36

Выпуск 1. Рабочие чертежи

Обозначение: Серия 5.407-36
Обозначение англ: Series 5.407-36
Статус:не определен законодательством
Название рус.:Выпуск 1. Рабочие чертежи
Дата добавления в базу:01.09.2013
Дата актуализации:05.05.2017
Дата введения:01.01.1983
Оглавление:Общие указания
Установка распределительного пункта на полу или перекрытии
Установка распределительного пункта на полу или перекрытии, на цоколе
Установка распределительного пункта на перекрытии
Установка распределительного пункта на полу с кабельным каналом
Установка распределительного пункта на стене. Подвод внешних проводников - сверху
Установка распределительного пункта на стене. Подвод внешних проводников - сверху и снизу
Установка распределительного пункта на стене. Пункт с вводным выключателем. Подвод питающих проводников - снизу
Установка распределительного пункта на стене. Пункт без вводного выключателя. Подвод питающих проводников - снизу
Установка распределительного пункта на колонне шириной 1000 мм. Подвод внешних проводников - сверху
Установка распределительного пункта на колонне шириной 1000 мм. Подвод внешних проводников - сверху и снизу
Установка распределительного пункта на колонне шириной 1000 мм. Пункт с вводным выключателем. Подвод питающих проводников - снизу
Установка распределительного пункта на колонне шириной 1000 мм. Пункт без вводного выключателя. Подвод питающих проводников - снизу
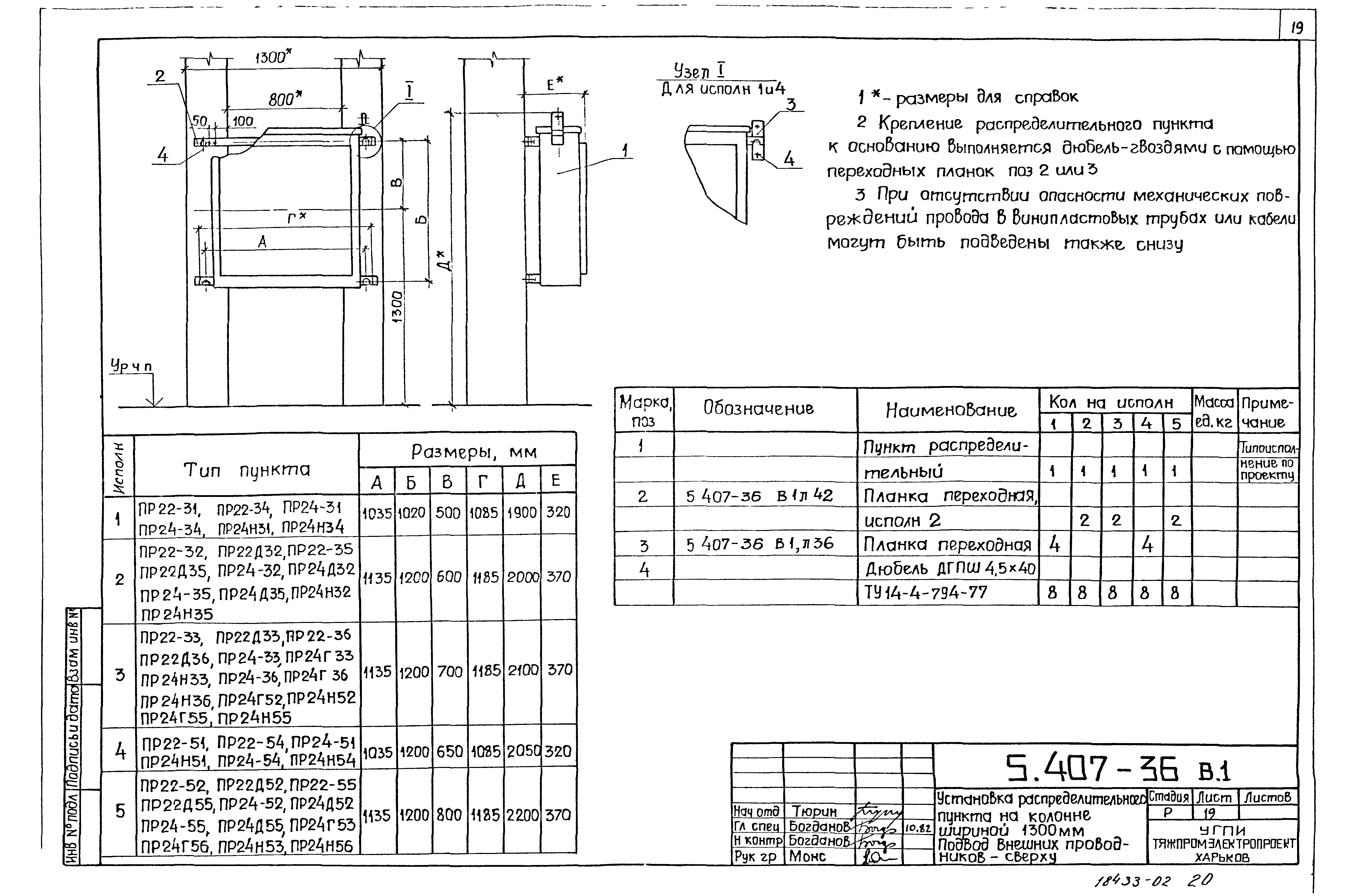
Установка распределительного пункта на колонне шириной 1300 мм. Подвод внешних проводников - сверху
Установка распределительного пункта на колонне шириной 1300 мм. Подвод внешних проводников - сверху и снизу
Установка распределительного пункта на колонне шириной 1300 мм. Пункт с вводным выключателем. Подвод питающих проводников - снизу
Установка распределительного пункта на колонне шириной 1300 мм. Пункт без вводного выключателя. Подвод питающих проводников - снизу
Установка распределительного пункта на колонне шириной 1400 мм. Подвод внешних проводников - сверху
Установка распределительного пункта на колонне шириной 1400 мм. Подвод внешних проводников - сверху и снизу
Установка распределительного пункта на колонне шириной 1400 мм. Пункт с вводным выключателем. Подвод питающих проводников - сверху и снизу
Установка распределительного пункта на колонне шириной 1400 мм. Пункт без вводного выключателя. Подвод питающих проводников - снизу
Установка распределительного пункта на колонне шириной 1900 мм. Подвод внешних проводников - сверху
Установка распределительного пункта на колонне шириной 1900 мм. Подвод внешних проводников - сверху и снизу
Установка распределительного пункта на колонне шириной 1900 мм. Пункт с вводным выключателем. Подвод питающих проводников - снизу
Установка распределительного пункта на колонне шириной 1900 мм. Пункт без вводного выключателя. Подвод питающих проводников - снизу
Блок из патрубка
Блок из двух патрубков
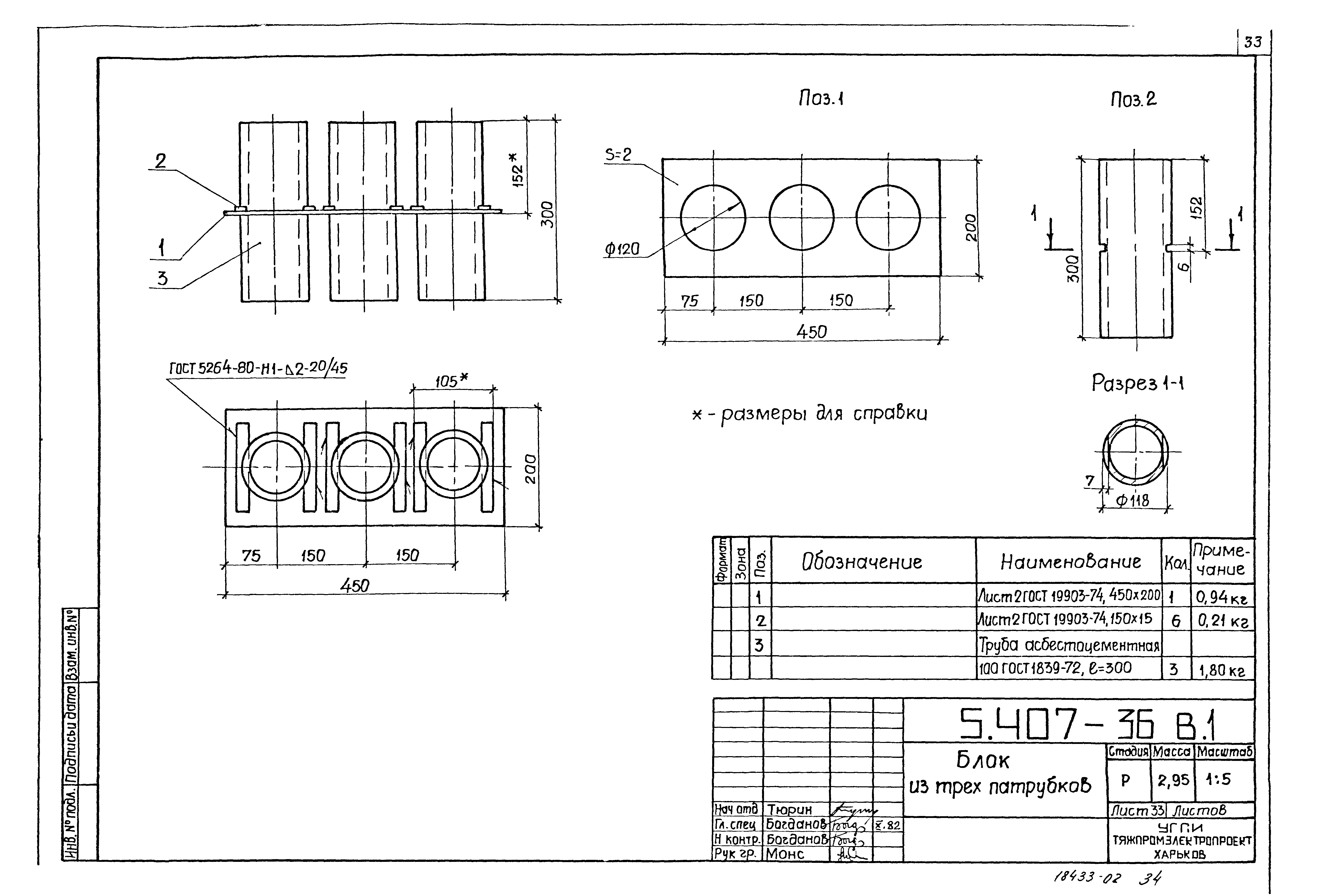
Блок из трех патрубков
Заглушка
Скоба
Планка переходная
Кожух
Лапка
Короб
Планка переходная
Кожух
Планка переходная
Лист
Планка переходная
Разработан: Украинский Тяжпромэлектропроект
Утверждён:30.11.1982 Минмонтажспецстрой СССР (USSR Minmontazhspetsstroy )
Расположен в:Техническая документация Строительство Справочные документы Типовые строительные конструкции, изделия и узлы Общероссийский строительный каталог Строительные конструкции, изделия и узлы зданий и сооружений для всех видов строительства Инженерное оборудование Инженерное оборудование; изделия и узлы инженерного оборудования зданий и сооружений Электрооборудование и электросети Установки трансформаторных подстанций и распределительных устройств
Серия 5.407-36Серия 5.407-36Серия 5.407-36Серия 5.407-36Серия 5.407-36Серия 5.407-36Серия 5.407-36Серия 5.407-36Серия 5.407-36Серия 5.407-36Серия 5.407-36Серия 5.407-36Серия 5.407-36Серия 5.407-36Серия 5.407-36Серия 5.407-36Серия 5.407-36Серия 5.407-36Серия 5.407-36Серия 5.407-36Серия 5.407-36Серия 5.407-36Серия 5.407-36Серия 5.407-36Серия 5.407-36Серия 5.407-36Серия 5.407-36Серия 5.407-36Серия 5.407-36Серия 5.407-36Серия 5.407-36Серия 5.407-36Серия 5.407-36Серия 5.407-36Серия 5.407-36Серия 5.407-36Серия 5.407-36Серия 5.407-36Серия 5.407-36Серия 5.407-36Серия 5.407-36Серия 5.407-36Серия 5.407-36Серия 5.407-36Серия 5.407-36Серия 5.407-36Серия 5.407-36Серия 5.407-36Серия 5.407-36Серия 5.407-36Серия 5.407-36Серия 5.407-36

© 2013 Ёшкин Кот :-) Карта сайта