Информационная система
«Ёшкин Кот»

Скачать базу одним архивом
Скачать обновления
История создания базы
Карта сайта

Скачать Серия 5.407-119 Выпуск 1. Рабочие чертежи

Дата актуализации: 10.08.2017

Серия 5.407-119

Выпуск 1. Рабочие чертежи

Обозначение: Серия 5.407-119
Обозначение англ: Series 5.407-119
Статус:не определен законодательством
Название рус.:Выпуск 1. Рабочие чертежи
Дата добавления в базу:01.09.2013
Дата актуализации:05.05.2017
Дата введения:01.07.1990
Оглавление:5.407-119.1.01 Подвод кабеля 6(10) кВ из канала к коробке глухого ввода
5.407-119.1.02 Подвод кабеля 6(10) кВ через перекрытие к коробке глухого ввода
5.407-119.1.03 Подвод кабеля 6(10) кВ из канала к коробке глухого ввода с защитой кабеля от механических повреждений
5.407-119.1.04 Подвод кабеля 6(10) кВ через перекрытие к коробке глухого ввода с защитой кабеля от механических повреждений
5.407-119.1.05 Подвод кабелей к шкафу ШВВ-2
5.407-119.1.06 Подвод кабелей к шкафу ШВВ-3Л (5Л)
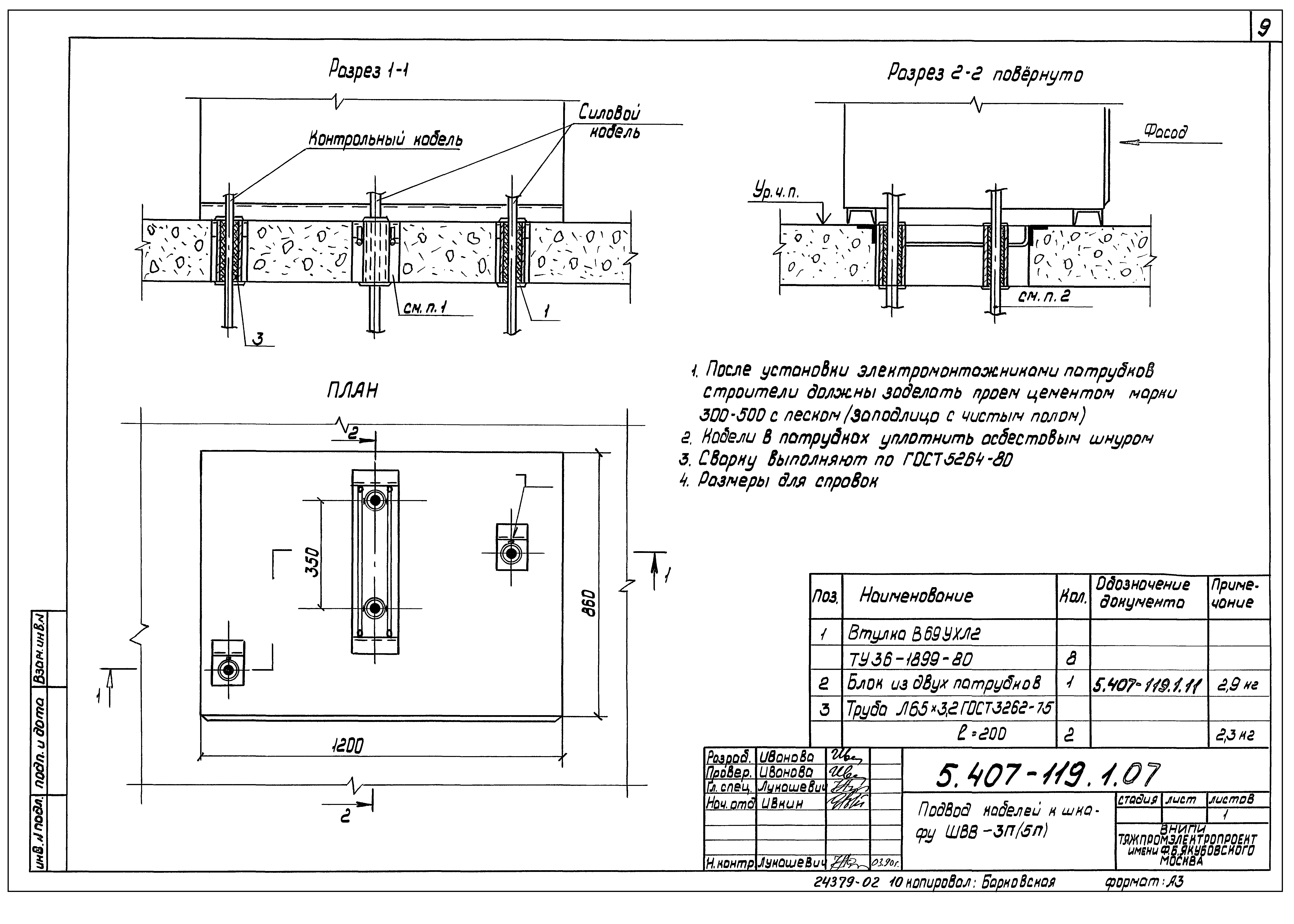
5.407-119.1.07 Подвод кабелей к шкафу ШВВ-3П (5П)
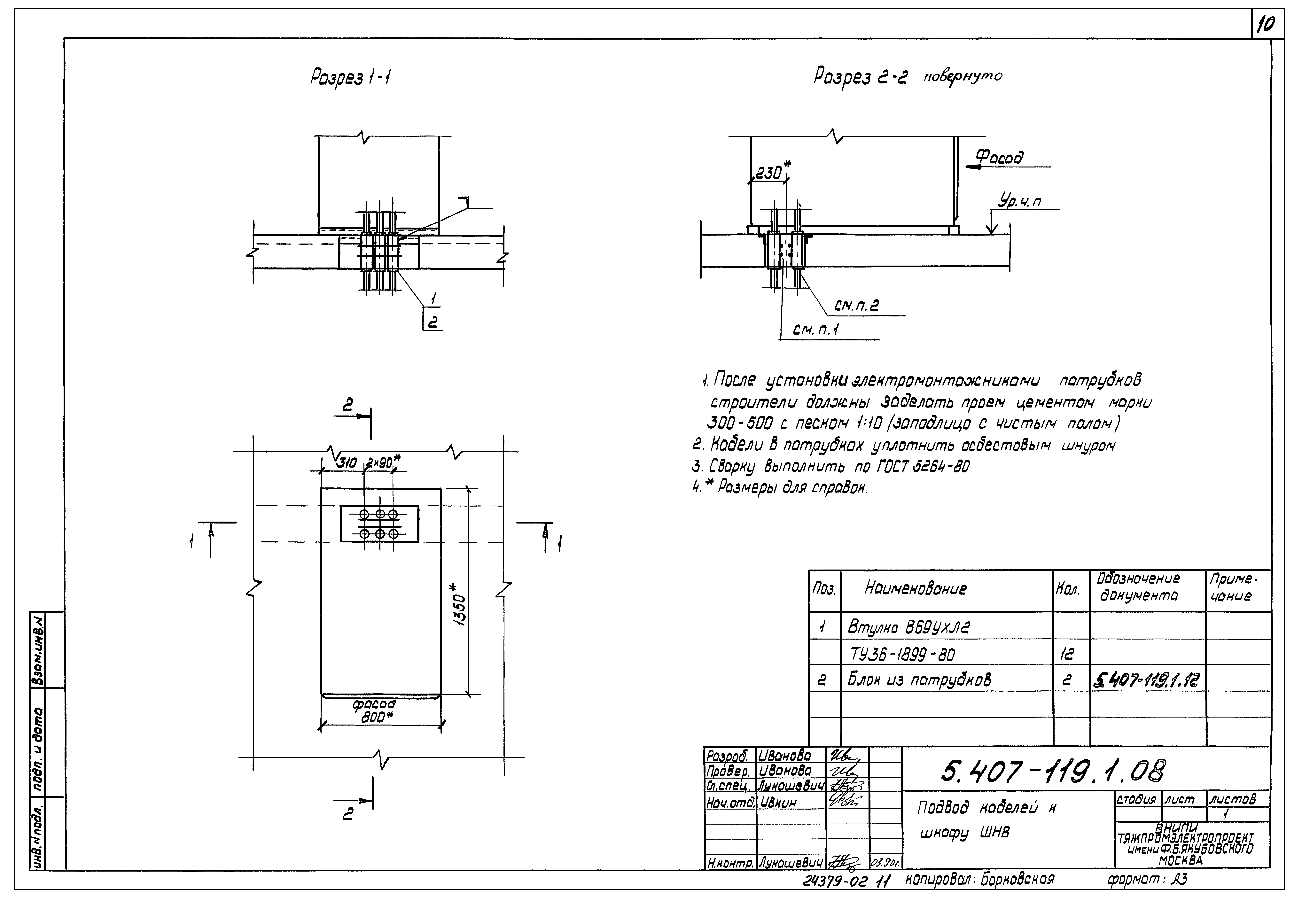
5.407-119.1.08 Подвод кабелей к шкафу ШНВ
5.407-119.1.09 Подвод кабелей к шкафу ШНЛ
5.407-119.1.10 Подвод кабелей к шкафу ШНС
5.407-119.1.11 Блок из двух патрубков
5.407-119.1.12 Блок из трех патрубков
5.407-119.1.13 Блок из пяти патрубков
Разработан: ВНИПИ Тяжпромэлектропроект им. Ф.Б. Якубовского
Утверждён:20.06.1989 НПО Электромонтаж ММСС СССР
Расположен в:Техническая документация Строительство Справочные документы Типовые строительные конструкции, изделия и узлы Общероссийский строительный каталог Строительные конструкции, изделия и узлы зданий и сооружений для всех видов строительства Инженерное оборудование Инженерное оборудование; изделия и узлы инженерного оборудования зданий и сооружений Электрооборудование и электросети Установки трансформаторных подстанций и распределительных устройств
Серия 5.407-119Серия 5.407-119Серия 5.407-119Серия 5.407-119Серия 5.407-119Серия 5.407-119Серия 5.407-119Серия 5.407-119Серия 5.407-119Серия 5.407-119Серия 5.407-119Серия 5.407-119Серия 5.407-119Серия 5.407-119Серия 5.407-119Серия 5.407-119

© 2013 Ёшкин Кот :-) Карта сайта