Информационная система
«Ёшкин Кот»

Скачать базу одним архивом
Скачать обновления
История создания базы
Карта сайта

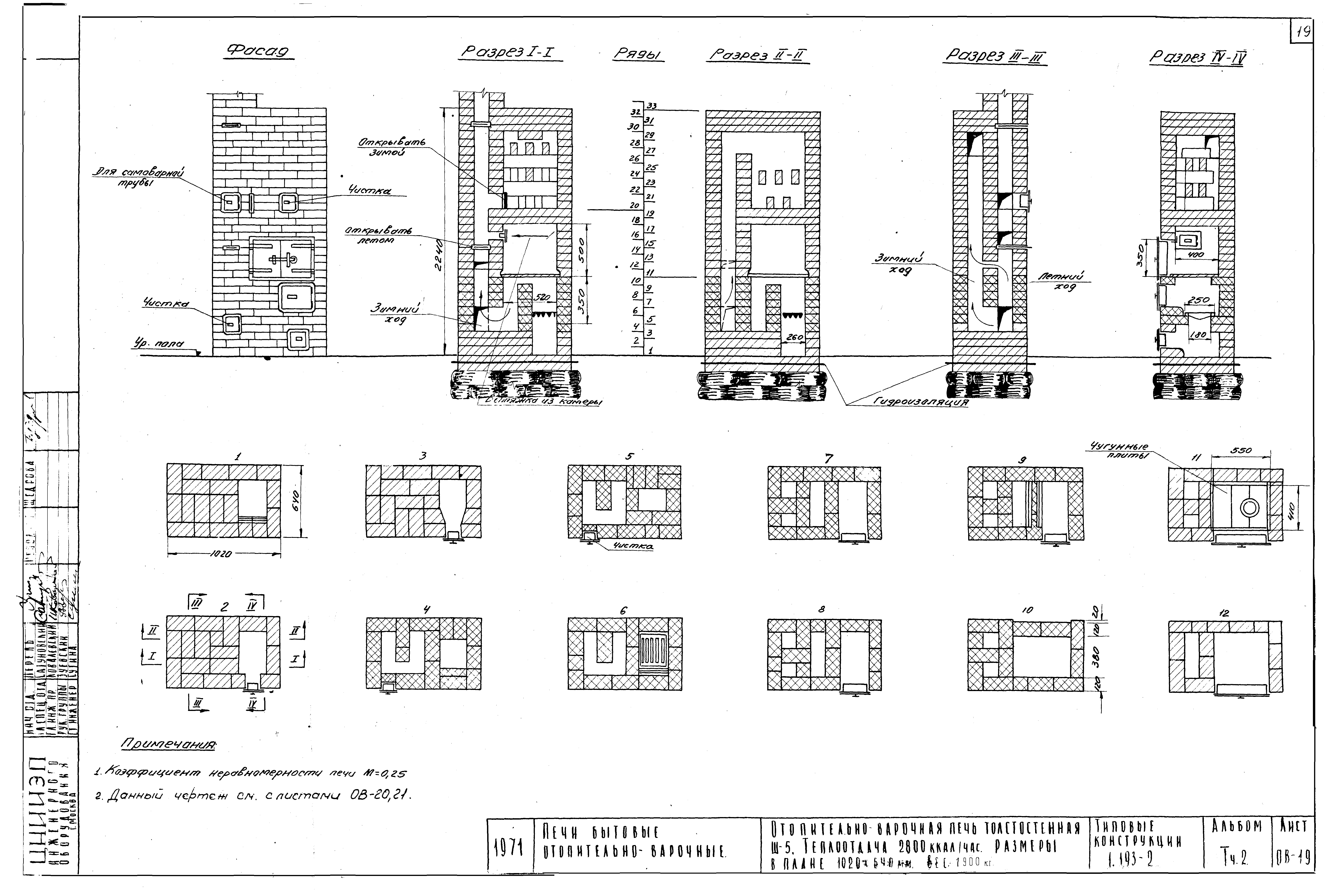
Скачать Серия 1.193-2 Альбом 1. Часть 2. Рабочие чертежи печей

Дата актуализации: 10.08.2017

Серия 1.193-2

Альбом 1. Часть 2. Рабочие чертежи печей

Обозначение: Серия 1.193-2
Обозначение англ: Series 1.193-2
Статус:не определен законодательством
Название рус.:Альбом 1. Часть 2. Рабочие чертежи печей
Дата добавления в базу:01.09.2013
Дата актуализации:05.05.2017
Дата введения:01.02.1971
Разработан: ЦНИИЭП инженерного оборудования Госгражданстроя
Утверждён:25.02.1971 ЦНИИЭП инженерного оборудования (TsNIIEP of Building Service Equipment 21)
Расположен в:Техническая документация Строительство Справочные документы Типовые строительные конструкции, изделия и узлы Общероссийский строительный каталог Строительные конструкции, изделия и узлы зданий и сооружений для всех видов строительства Инженерное оборудование Инженерное оборудование; изделия и узлы инженерного оборудования зданий и сооружений Оборудование жилых и общественных зданий
Серия 1.193-2Серия 1.193-2Серия 1.193-2Серия 1.193-2Серия 1.193-2Серия 1.193-2Серия 1.193-2Серия 1.193-2Серия 1.193-2Серия 1.193-2Серия 1.193-2Серия 1.193-2Серия 1.193-2Серия 1.193-2Серия 1.193-2Серия 1.193-2Серия 1.193-2Серия 1.193-2Серия 1.193-2Серия 1.193-2Серия 1.193-2Серия 1.193-2Серия 1.193-2Серия 1.193-2Серия 1.193-2Серия 1.193-2Серия 1.193-2Серия 1.193-2Серия 1.193-2Серия 1.193-2Серия 1.193-2Серия 1.193-2Серия 1.193-2Серия 1.193-2Серия 1.193-2Серия 1.193-2Серия 1.193-2Серия 1.193-2Серия 1.193-2

© 2013 Ёшкин Кот :-) Карта сайта