Информационная система
«Ёшкин Кот»

Скачать базу одним архивом
Скачать обновления
История создания базы
Карта сайта

Скачать Серия 3.018.2-1 Выпуск 2. Площадки лифта. Чертежи КМ

Дата актуализации: 10.08.2017

Серия 3.018.2-1

Выпуск 2. Площадки лифта. Чертежи КМ

Обозначение: Серия 3.018.2-1
Обозначение англ: Series 3.018.2-1
Статус:не определен законодательством
Название рус.:Выпуск 2. Площадки лифта. Чертежи КМ
Дата добавления в базу:01.09.2013
Дата актуализации:05.05.2017
Дата введения:01.12.1985
Оглавление:3.018.2-1.2-00ПЗКМ Пояснительная записка
3.018.2-1.2-01КМ Схема расположения элементов площадки лифта
3.018.2-1.2-02КМ Панель настила ПН1
3.018.2-1.2-03КМ Панель настила ПН2
3.018.2-1.2-04КМ Панель настила с люком ПНЛ1
3.018.2-1.2-05КМ Балка Б1
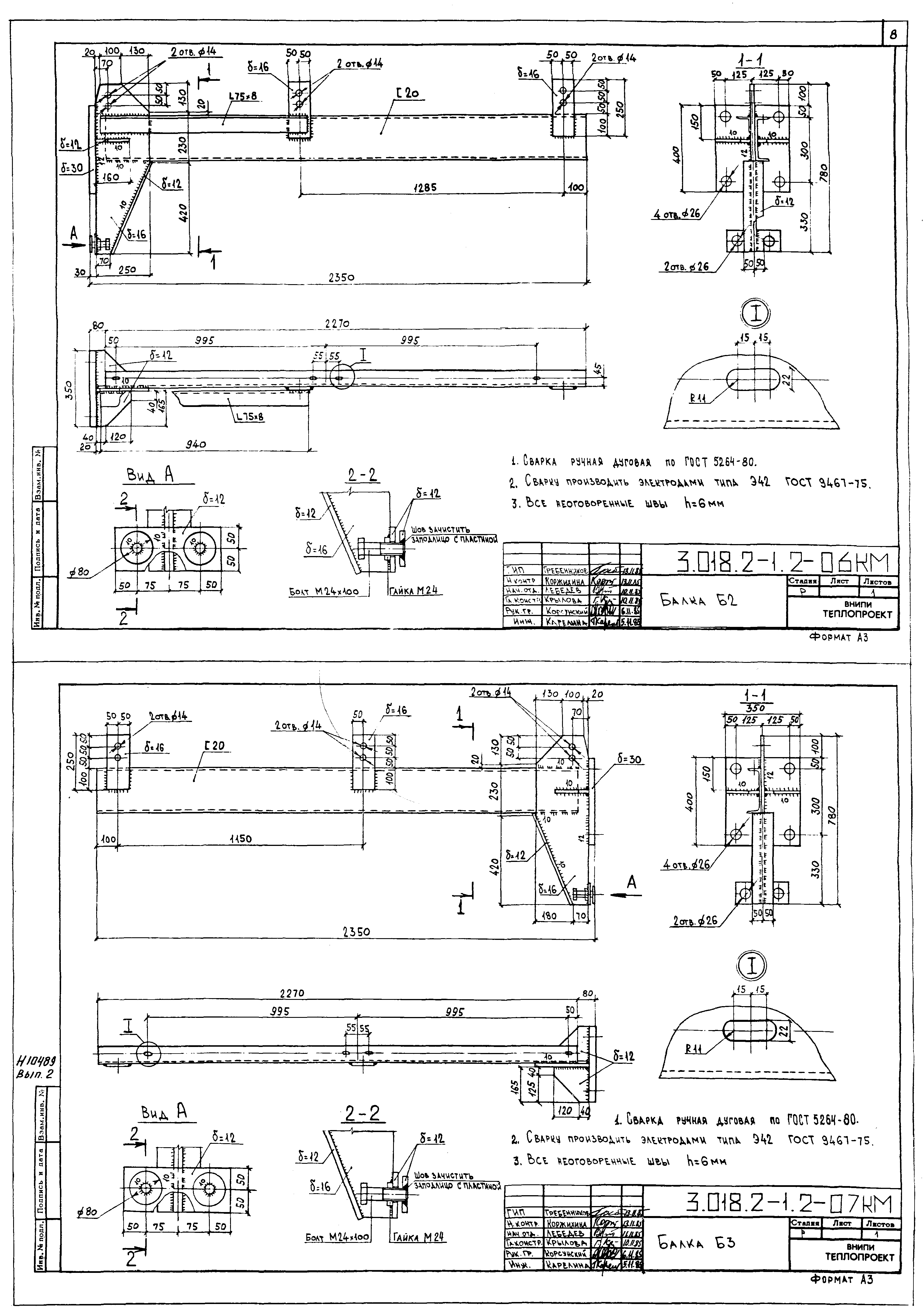
3.018.2-1.2-06КМ Балка Б2
3.018.2-1.2-07КМ Балка Б3
3.018.2-1.2-08КМ Спецификация стали на площадку лифта
3.018.2-1.2-09 Стойка С1
3.018.2-1.2-10 Перила П1
3.018.2-1.2-11 Полоса ограждения ОГ1
3.018.2-1.2-12 Перила ПБ3
3.018.2-1.2-13 Перила ПБ4
3.018.2-1.2-14 Полоса ограждения ОБ1
3.018.2-1.2-15 Полоса ограждения ОБ2
3.018.2-1.2-16 Петля
3.018.2-1.2-17 Деталь петли
3.018.2-1.2-18 Деталь петли
3.018.2-1.2-19 Валик
Разработан: ВНИПИтеплопроект Минмонтажспецстроя СССР
Утверждён:30.12.1985 Минмонтажспецстрой СССР (USSR Minmontazhspetsstroy )
Издан: ВНИПИТеплопроект (1986 г. )
Расположен в:Техническая документация Строительство Справочные документы Типовые строительные конструкции, изделия и узлы Общероссийский строительный каталог Строительные конструкции, изделия и узлы зданий и сооружений для всех видов строительства Конструкции и изделия сооружений и оборудования зданий Надземные сооружения Разные сооружения
Серия 3.018.2-1Серия 3.018.2-1Серия 3.018.2-1Серия 3.018.2-1Серия 3.018.2-1Серия 3.018.2-1Серия 3.018.2-1Серия 3.018.2-1Серия 3.018.2-1Серия 3.018.2-1Серия 3.018.2-1Серия 3.018.2-1Серия 3.018.2-1

© 2013 Ёшкин Кот :-) Карта сайта