Информационная система
«Ёшкин Кот»

Скачать базу одним архивом
Скачать обновления
История создания базы
Карта сайта

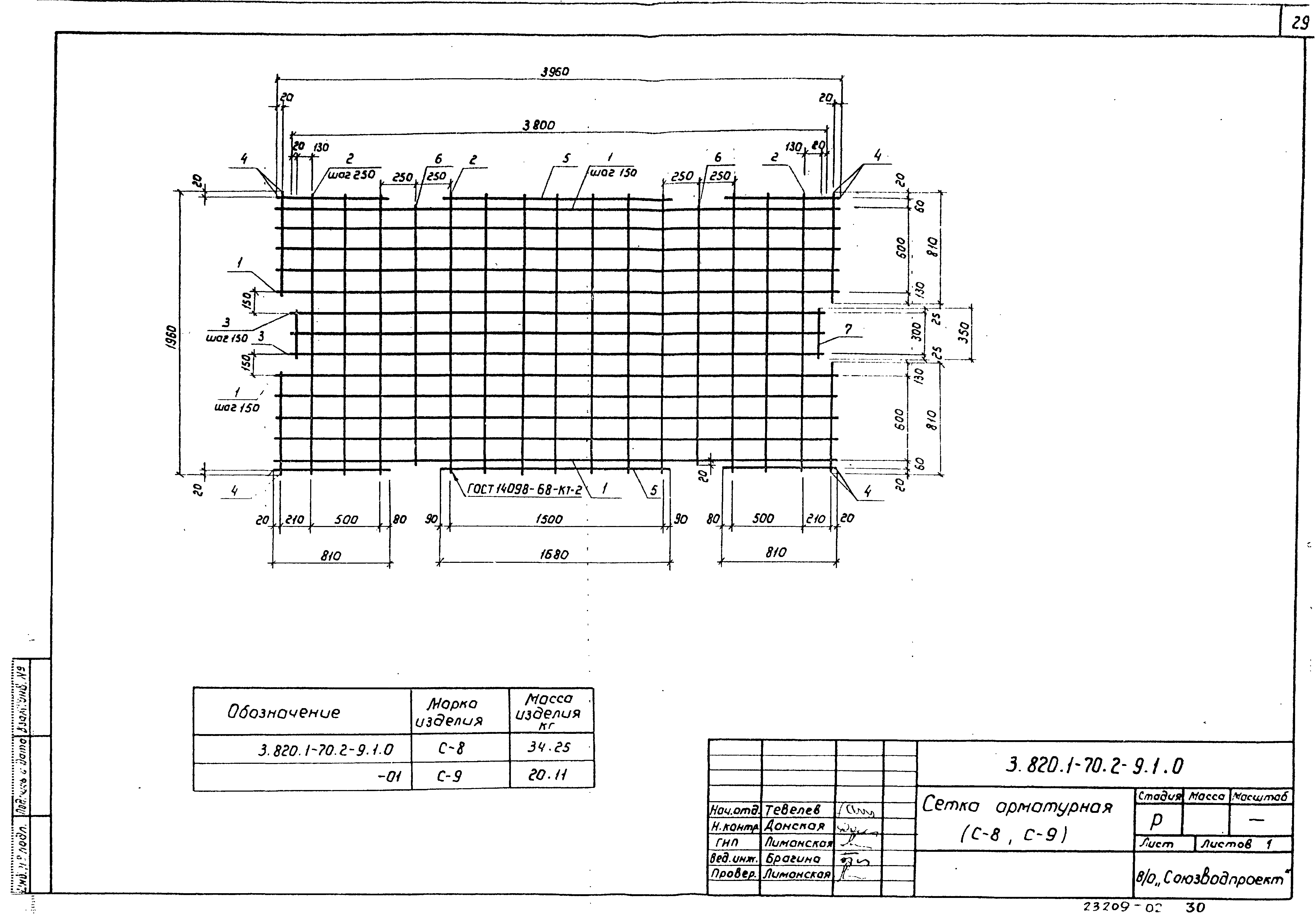
Скачать Серия 3.820.1-70 Выпуск 2. Плиты железобетонные с выпусками арматуры без предварительного напряжения. Указания по применению и рабочие чертежи

Дата актуализации: 10.08.2017

Серия 3.820.1-70

Выпуск 2. Плиты железобетонные с выпусками арматуры без предварительного напряжения. Указания по применению и рабочие чертежи

Обозначение: Серия 3.820.1-70
Обозначение англ: Series 3.820.1-70
Статус:не определен законодательством
Название рус.:Выпуск 2. Плиты железобетонные с выпусками арматуры без предварительного напряжения. Указания по применению и рабочие чертежи
Дата добавления в базу:01.09.2013
Дата актуализации:05.05.2017
Дата введения:01.08.1988
Разработан: Союзводпроект Минводхоза СССР
Утверждён:04.04.1988 Минводхоз СССР (USSR Minvodkhoz 750)
Издан: ЦИТП Госстроя СССР (CITP, Gosstroy (USSR) 1988 г. )
Расположен в:Техническая документация Строительство Справочные документы Типовые строительные конструкции, изделия и узлы Общероссийский строительный каталог Строительные конструкции, изделия и узлы зданий и сооружений для всех видов строительства Конструкции и изделия сооружений и оборудования зданий Надземные сооружения Конструкции водохозяйственных сооружений и систем мелиорации
Заменяет собой:
Серия 3.820.1-70Серия 3.820.1-70Серия 3.820.1-70Серия 3.820.1-70Серия 3.820.1-70Серия 3.820.1-70Серия 3.820.1-70Серия 3.820.1-70Серия 3.820.1-70Серия 3.820.1-70Серия 3.820.1-70Серия 3.820.1-70Серия 3.820.1-70Серия 3.820.1-70Серия 3.820.1-70Серия 3.820.1-70Серия 3.820.1-70Серия 3.820.1-70Серия 3.820.1-70Серия 3.820.1-70Серия 3.820.1-70Серия 3.820.1-70Серия 3.820.1-70Серия 3.820.1-70Серия 3.820.1-70Серия 3.820.1-70Серия 3.820.1-70Серия 3.820.1-70Серия 3.820.1-70Серия 3.820.1-70Серия 3.820.1-70Серия 3.820.1-70Серия 3.820.1-70Серия 3.820.1-70

© 2013 Ёшкин Кот :-) Карта сайта