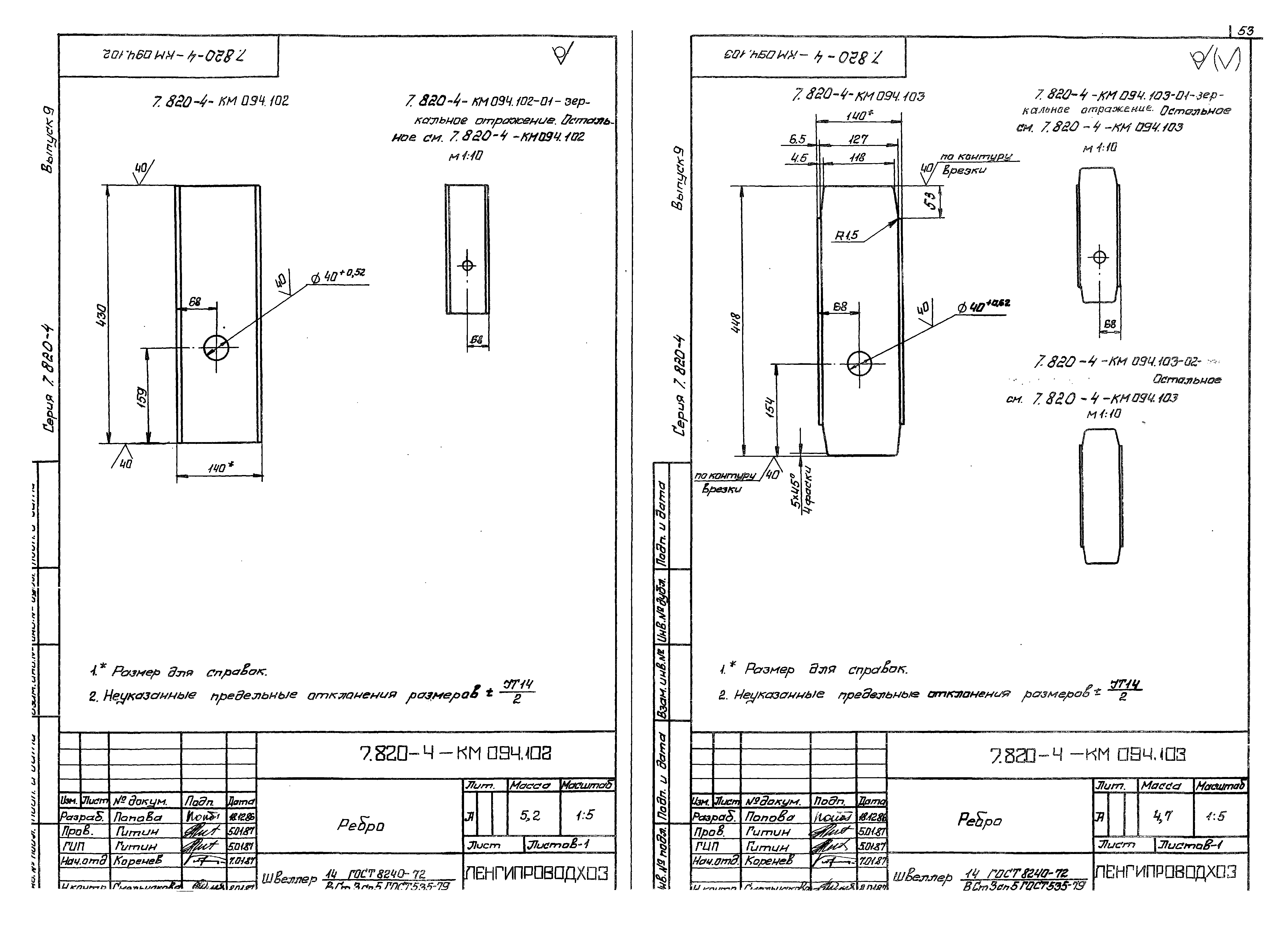
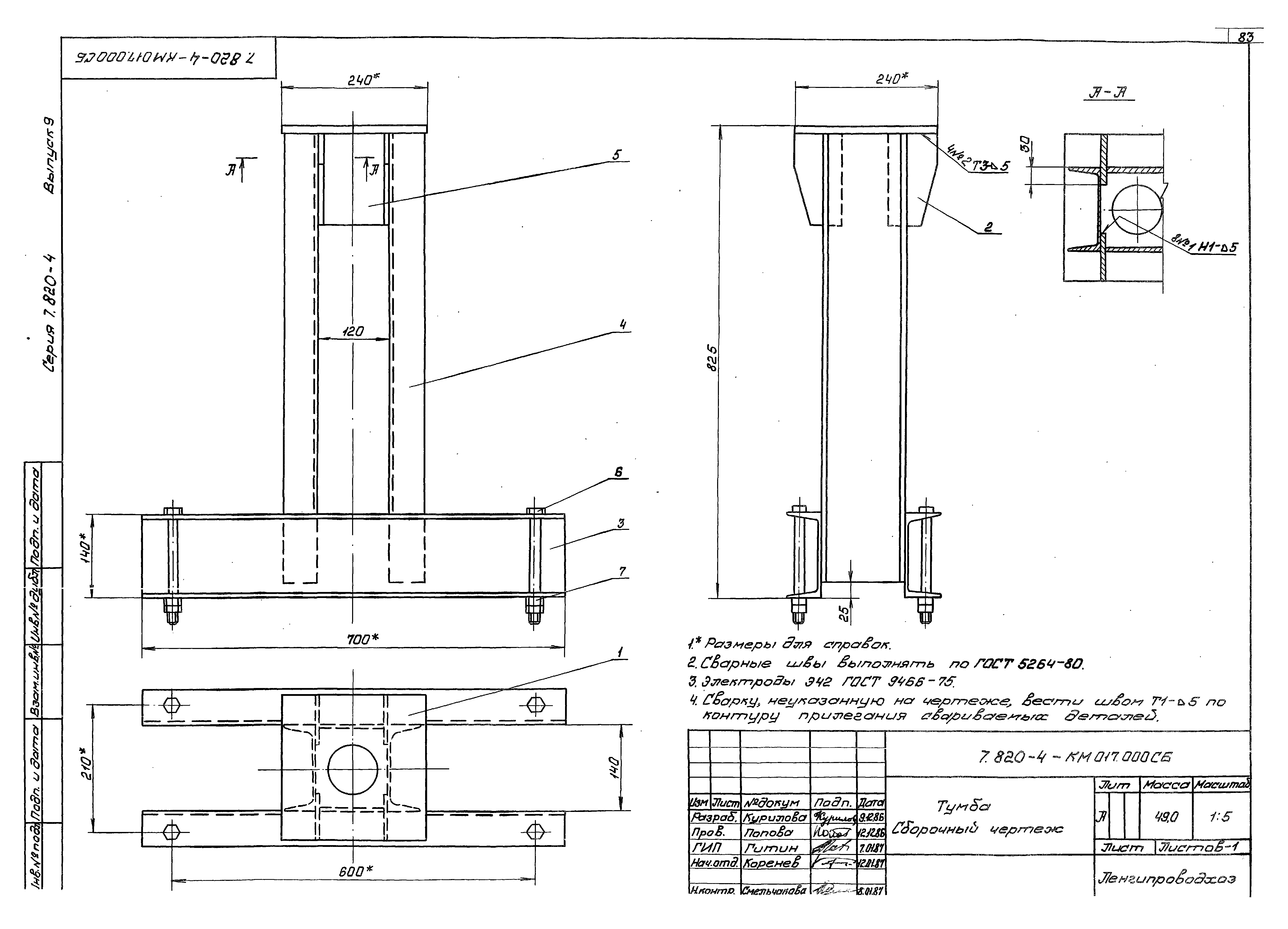
Скачать Серия 7.820-4 Выпуск 9. Затворы для перекрытия отверстий с напорной и безнапорной стороны диаметром 1,4 м при напоре 8 мДата актуализации: 10.08.2017 Серия 7.820-4
Выпуск 9. Затворы для перекрытия отверстий с напорной и безнапорной стороны диаметром 1,4 м при напоре 8 мОбозначение: | Серия 7.820-4 | Обозначение англ: | Series 7.820-4 | Статус: | не определен законодательством | Название рус.: | Выпуск 9. Затворы для перекрытия отверстий с напорной и безнапорной стороны диаметром 1,4 м при напоре 8 м | Дата добавления в базу: | 01.09.2013 | Дата актуализации: | 05.05.2017 | Дата введения: | 01.06.1988 | Разработан: | Ленгипроводхоз Минводхоза СССР
| Утверждён: | 30.11.1987 Минводхоз СССР (USSR Minvodkhoz 563)
| Расположен в: |
|
                                                                                             
|