Информационная система
«Ёшкин Кот»

Скачать базу одним архивом
Скачать обновления
История создания базы
Карта сайта

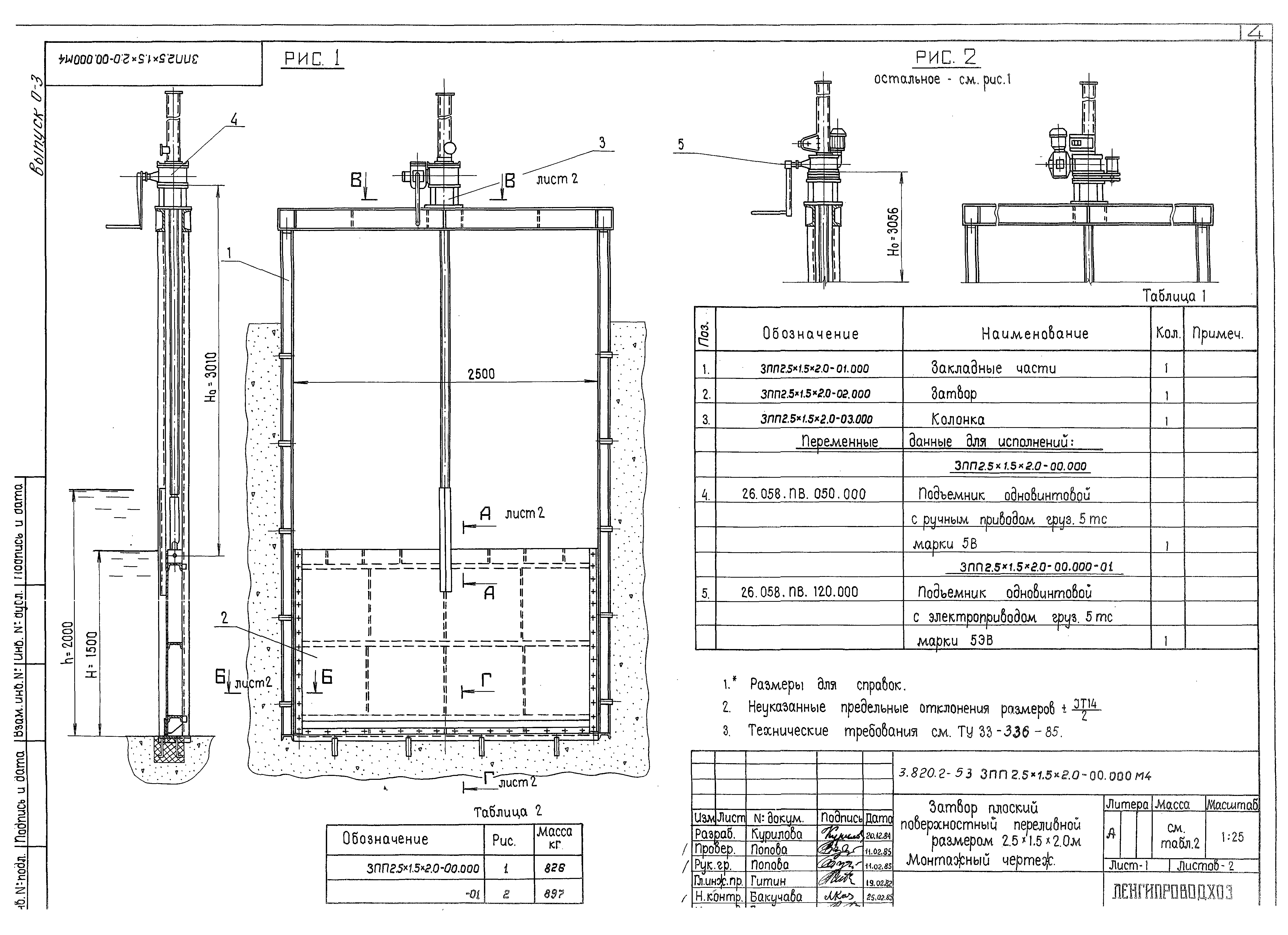
Скачать Серия 3.820.2-53 Выпуск 0-3. Монтажные чертежи

Дата актуализации: 10.08.2017

Серия 3.820.2-53

Выпуск 0-3. Монтажные чертежи

Обозначение: Серия 3.820.2-53
Обозначение англ: Series 3.820.2-53
Статус:не определен законодательством
Название рус.:Выпуск 0-3. Монтажные чертежи
Дата добавления в базу:01.09.2013
Дата актуализации:05.05.2017
Дата введения:01.05.1985
Разработан: Ленгипроводхоз Минводхоза СССР
Утверждён:01.11.1984 Минводхоз СССР (USSR Minvodkhoz 603)
Расположен в:Техническая документация Строительство Справочные документы Типовые строительные конструкции, изделия и узлы Общероссийский строительный каталог Строительные конструкции, изделия и узлы зданий и сооружений для всех видов строительства Конструкции и изделия сооружений и оборудования зданий Надземные сооружения Конструкции водохозяйственных сооружений и систем мелиорации
Серия 3.820.2-53Серия 3.820.2-53Серия 3.820.2-53Серия 3.820.2-53Серия 3.820.2-53Серия 3.820.2-53Серия 3.820.2-53Серия 3.820.2-53Серия 3.820.2-53Серия 3.820.2-53

© 2013 Ёшкин Кот :-) Карта сайта