Скачать Серия 3.820.2-37 Выпуск 10. Рабочие чертежи затвора 2,5х2,0Дата актуализации: 10.08.2017 Серия 3.820.2-37
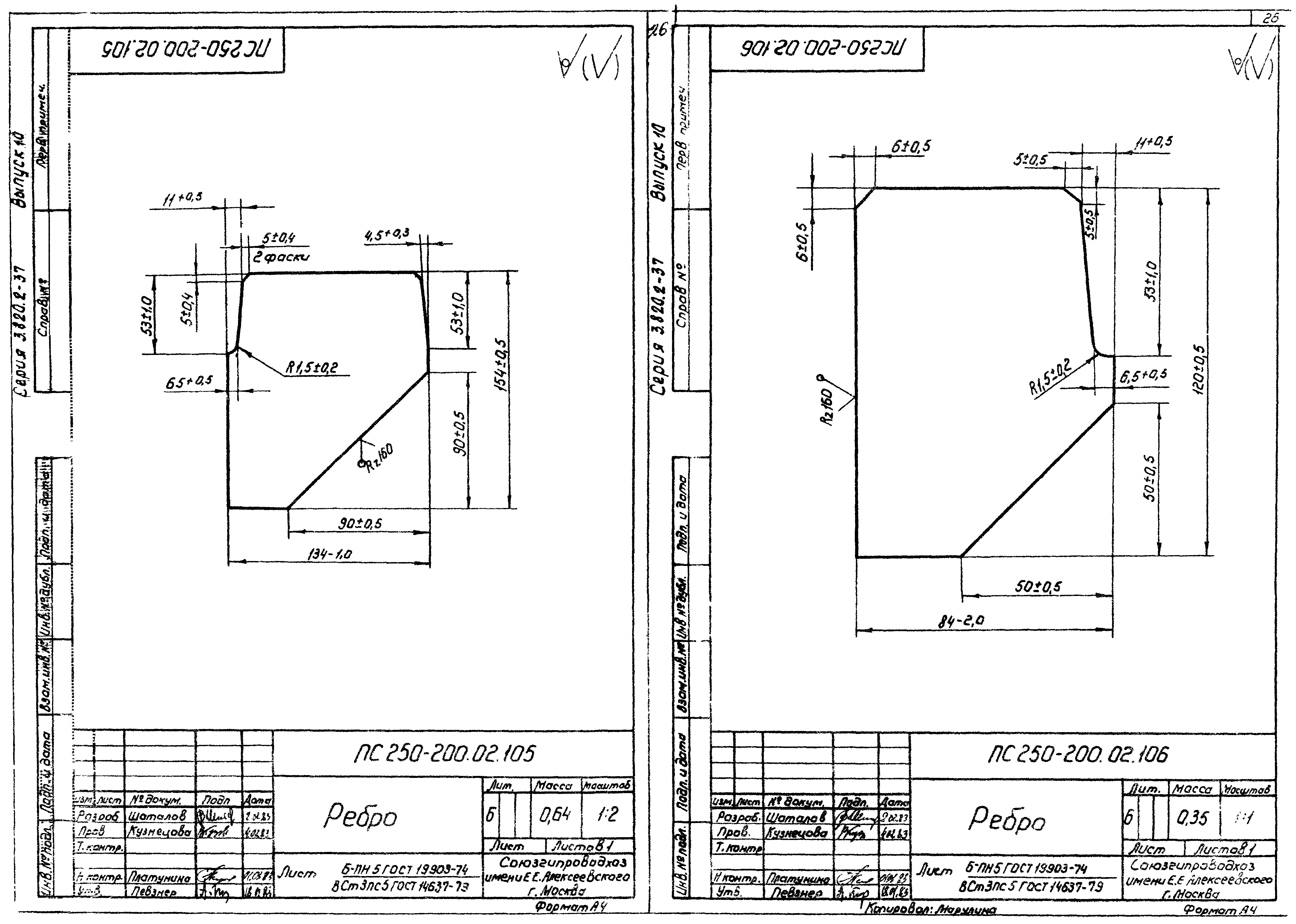
Выпуск 10. Рабочие чертежи затвора 2,5х2,0Обозначение: | Серия 3.820.2-37 | Обозначение англ: | Series 3.820.2-37 | Статус: | не определен законодательством | Название рус.: | Выпуск 10. Рабочие чертежи затвора 2,5х2,0 | Дата добавления в базу: | 01.09.2013 | Дата актуализации: | 05.05.2017 | Дата введения: | 01.04.1983 | Оглавление: | ПС250-200.00.000 Затвор поверхностный скользящий для отверстий 2,5х2,0 м ПС250-200.00.000 СБ Затвор поверхностный скользящий для отверстий 2,5х2,0 м. Сборочный чертеж ПС250-200.00.000 ВС Затвор поверхностный скользящий для отверстий 2,5х2,0 м. Ведомость спецификаций ПС250-200.00.000 ВП Затвор поверхностный скользящий для отверстий 2,5х2,0 м. Ведомость покупных изделий ПС250-200.00.100 Колонка ПС250-200.00.104 Ребро ПС250-200.00.101 Лист верхний ПС250-200.00.100 СБ Колонка. Сборочный чертеж ПС250-200.00.103 Ребро ПС250-200.00.102 Лист монтажный ПС250-200.01.000 Рама ПС250-200.01.103 Ребро ПС250-200.01.000 СБ Рама. Сборочный чертеж ПС250-200.01.100 Стойка ПС250-200.01.100 СБ Стойка. Сборочный чертеж ПС250-200.01.101 Накладка ПС250-200.01.102 Ребро ПС250-200.01.200 Марка донная ПС250-200.01.200 СБ Марка донная. Сборочный чертеж ПС250-200.01.201 Основание ПС250-200.02.109 Ригель ПС250-200.02.000 Затвор ПС250-200.02.000 СБ Затвор. Сборочный чертеж ПС250-200.02.001 Накладка ПС250-200.02.002 Накладка ПС250-200.02.100 Металлоконструкция ПС250-200.02.100 СБ Металлоконструкция. Сборочный чертеж ПС250-200.02.120 Проушина ПС250-200.02.121 Проушина ПС250-200.02.101 Обшивка ПС250-200.02.102 Ребро ПС250-200.02.103 Ребро ПС250-200.02.104 Стойка ПС250-200.02.105 Ребро ПС250-200.02.106 Ребро ПС250-200.02.108 Стрингер ПС250-200.02.107 Ребро ПС250-200.02.200 Упор ПС250-200.02.201 Упор ПС250-200.03.000 ГЧ Подъемник винтовой 5ЭВД. Габаритный чертеж ПС250-200.04.000 ГЧ Подъемник винтовой 5ВД. Габаритный чертеж | Разработан: | Союзгипроводхоз Минводхоза СССР
| Утверждён: | 16.04.1982 Минводхоз СССР (USSR Minvodkhoz 473)
| Расположен в: |
|
                             
|