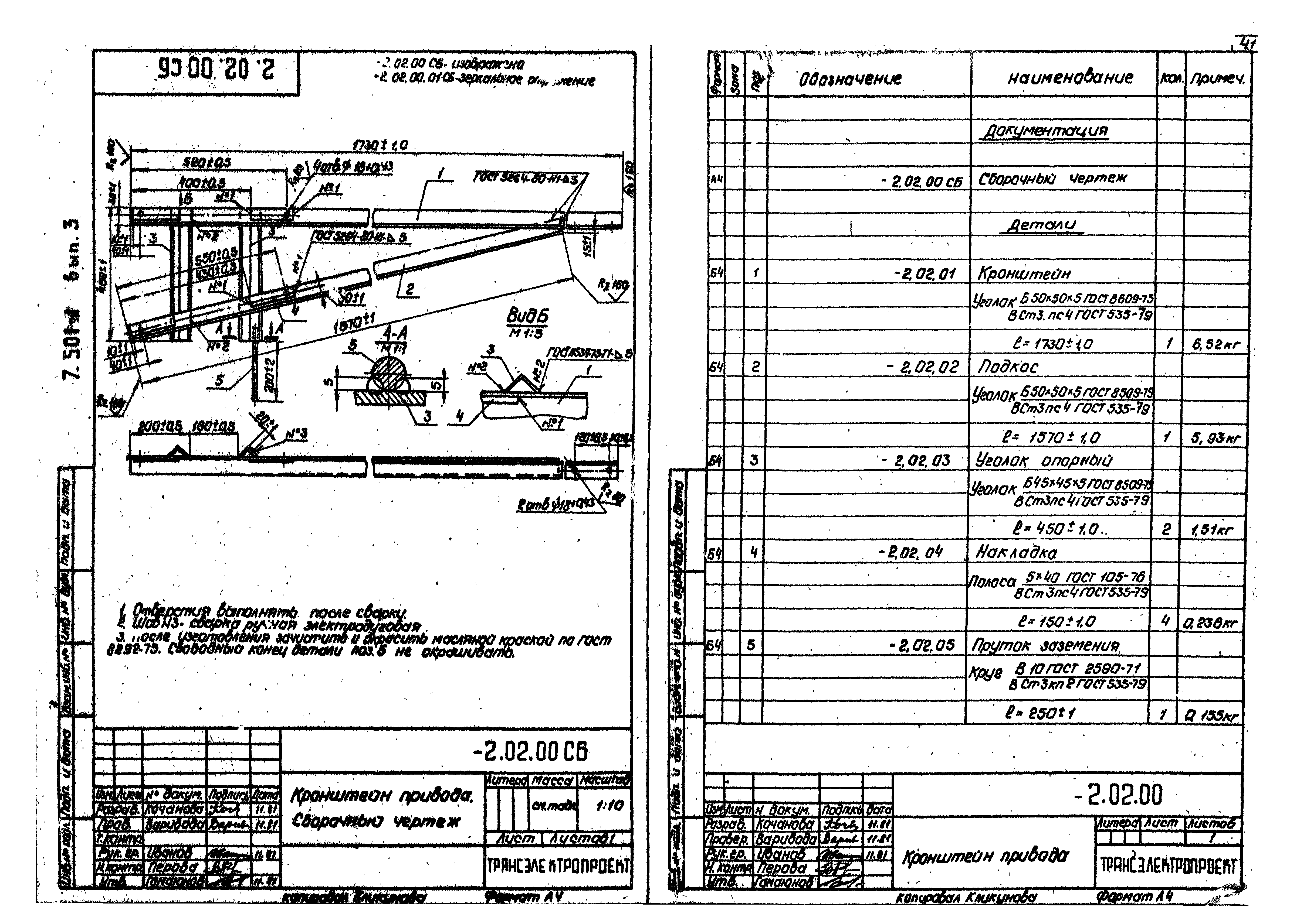
Скачать Серия 7.501-1 Выпуск 3. Установка разъединителей контактной сети переменного тока. Рабочие чертежиДата актуализации: 10.08.2017 Серия 7.501-1
Выпуск 3. Установка разъединителей контактной сети переменного тока. Рабочие чертежиОбозначение: | Серия 7.501-1 | Обозначение англ: | Series 7.501-1 | Статус: | cправочные материалы, мп, тпр | Название рус.: | Выпуск 3. Установка разъединителей контактной сети переменного тока. Рабочие чертежи | Дата добавления в базу: | 01.09.2013 | Дата актуализации: | 05.05.2017 | Разработан: | Трансэлектропроект МПС
| Утверждён: | 09.03.1982 МПС (Ministry of Railroads 18)
| Расположен в: |
|
                                                                    
|