Информационная система
«Ёшкин Кот»

Скачать базу одним архивом
Скачать обновления
История создания базы
Карта сайта

Скачать Серия 3.504.1-24 Выпуск 2. Анкерные сваи АСШ и анкерные плиты АПШ. Рабочие чертежи

Дата актуализации: 10.08.2017

Серия 3.504.1-24

Выпуск 2. Анкерные сваи АСШ и анкерные плиты АПШ. Рабочие чертежи

Обозначение: Серия 3.504.1-24
Обозначение англ: Series 3.504.1-24
Статус:не определен законодательством
Название рус.:Выпуск 2. Анкерные сваи АСШ и анкерные плиты АПШ. Рабочие чертежи
Дата добавления в базу:01.09.2013
Дата актуализации:05.05.2017
Дата введения:01.04.1987
Оглавление:3.504.1-24.2 0000ПЗ Пояснительная записка
3.504.1-24.2 0000Н Номенклатура свай и плит
3.504.1-24.2 1000 Анкерная свая АСШ 80.45…АСШ 110.45
3.504.1-24.2 1000 СБ Анкерная свая АСШ 80.45…АСШ 110.45. Сборочный чертеж
3.504.1-24.2 1100 Анкерная свая АСШ 80.45…АСШ 110.45-с
3.504.1-24.2 1100 СБ Анкерная свая АСШ 80.45…АСШ 110.45-с. Сборочный чертеж
3.504.1-24.2 2000 Анкерная свая АСШ 70.40…АСШ 110.40
3.504.1-24.2 2000 СБ Анкерная свая АСШ 70.40…АСШ 110.40. Сборочный чертеж
3.504.1-24.2 2100 Анкерная свая АСШ 70.40…АСШ 110.40-с
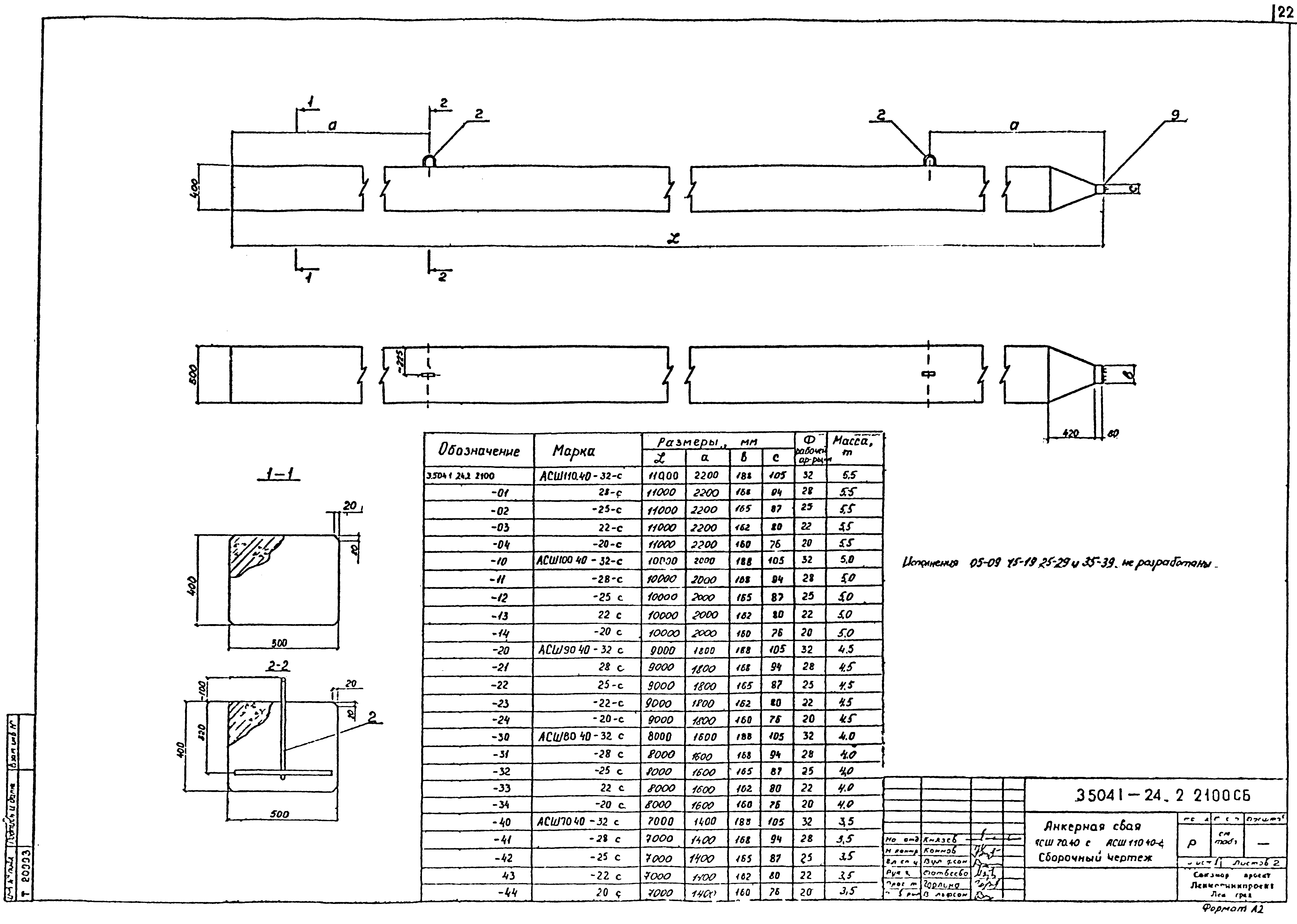
3.504.1-24.2 2100 СБ Анкерная свая АСШ 70.40…АСШ 110.40-с. Сборочный чертеж
3.504.1-24.2 3000 Анкерная свая АСШ 60.35…АСШ 90.35
3.504.1-24.2 3000 СБ Анкерная свая АСШ 60.35…АСШ 90.35. Сборочный чертеж
3.504.1-24.2 3100 Анкерная свая АСШ 60.35…АСШ 90.35-с
3.504.1-24.2 3100 СБ Анкерная свая АСШ 60.35…АСШ 90.35-с. Сборочный чертеж
3.504.1-24.2 4000 Анкерная свая АСШ 50.30…АСШ 70.30
3.504.1-24.2 4000 СБ Анкерная свая АСШ 50.30…АСШ 70.30. Сборочный чертеж
3.504.1-24.2 4100 Анкерная свая АСШ 50.30…АСШ 70.30-с
3.504.1-24.2 4100 СБ Анкерная свая АСШ 50.30…АСШ 70.30-с. Сборочный чертеж
3.504.1-24.2 0010 Сетка С
3.504.1-24.2 0020 Сетка С-с
3.504.1-24.2 0030 Петля
3.504.1-24.2 0040 Обойма
3.504.1-24.2 5000 Анкерная плита АПШ 14…АПШ 28
3.504.1-24.2 5000 СБ Анкерная плита АПШ 14…АПШ 28. Сборочный чертеж
3.504.1-24.2 5010 Каркас К-1
3.504.1-24.2 5050 Сетка С-3
3.504.1-24.2 5030 Сетка С-1
3.504.1-24.2 5040 Сетка С-2
3.504.1-24.2 5020 Каркас К-2
3.504.1-24.2 5070 Петля
3.504.1-24.2 5060 Закладное изделие М1
3.504.1-24.2 5061 Щека
3.504.1-24.2 5062 Подкладка
3.504.1-24.2 0000РС Ведомость расхода стали
3.504.1-24.2 0000РМ Ведомость расхода материалов
Разработан: ЛенморНИИпроект
Утверждён:20.06.1988 Министерство морского флота СССР (USSR Ministry of the Merchant Marine )
Расположен в:Техническая документация Строительство Справочные документы Типовые строительные конструкции, изделия и узлы Общероссийский строительный каталог Строительные конструкции, изделия и узлы зданий и сооружений для всех видов строительства Конструкции и изделия сооружений и оборудования зданий Надземные сооружения Конструкции и сооружения транспорта Набережные и портовые сооружения, навигационные знаки
Серия 3.504.1-24Серия 3.504.1-24Серия 3.504.1-24Серия 3.504.1-24Серия 3.504.1-24Серия 3.504.1-24Серия 3.504.1-24Серия 3.504.1-24Серия 3.504.1-24Серия 3.504.1-24Серия 3.504.1-24Серия 3.504.1-24Серия 3.504.1-24Серия 3.504.1-24Серия 3.504.1-24Серия 3.504.1-24Серия 3.504.1-24Серия 3.504.1-24Серия 3.504.1-24Серия 3.504.1-24Серия 3.504.1-24Серия 3.504.1-24Серия 3.504.1-24Серия 3.504.1-24Серия 3.504.1-24Серия 3.504.1-24Серия 3.504.1-24Серия 3.504.1-24Серия 3.504.1-24Серия 3.504.1-24Серия 3.504.1-24Серия 3.504.1-24Серия 3.504.1-24Серия 3.504.1-24Серия 3.504.1-24Серия 3.504.1-24Серия 3.504.1-24Серия 3.504.1-24Серия 3.504.1-24Серия 3.504.1-24Серия 3.504.1-24Серия 3.504.1-24Серия 3.504.1-24Серия 3.504.1-24Серия 3.504.1-24Серия 3.504.1-24Серия 3.504.1-24Серия 3.504.1-24Серия 3.504.1-24Серия 3.504.1-24Серия 3.504.1-24Серия 3.504.1-24Серия 3.504.1-24Серия 3.504.1-24Серия 3.504.1-24Серия 3.504.1-24Серия 3.504.1-24Серия 3.504.1-24

© 2013 Ёшкин Кот :-) Карта сайта