Информационная система
«Ёшкин Кот»

Скачать базу одним архивом
Скачать обновления
История создания базы
Карта сайта

Скачать Серия 3.504.1-24 Выпуск 0. Материалы для проектирования

Дата актуализации: 10.08.2017

Серия 3.504.1-24

Выпуск 0. Материалы для проектирования

Обозначение: Серия 3.504.1-24
Обозначение англ: Series 3.504.1-24
Статус:не определен законодательством
Название рус.:Выпуск 0. Материалы для проектирования
Дата добавления в базу:01.09.2013
Дата актуализации:05.05.2017
Дата введения:01.04.1987
Оглавление:3.504.1-24 -0 0000 ПЗ Пояснительная записка
3.504.1-24 -0 0100 План, разрез 1-1, узел А
3.504.1-24 -0 0200 Монтажные схемы анкерных тяг
3.504.1-24 -0 0300 Лицевой распределительный пояс. Стык. Пример решения
3.504.1-24 -0 0400 Тыловой распределительный пояс. Стык. Пример решения
3.504.1-24 -0 0500 Распределительная балка РБ при анкеровке лицевой стенки за анкерную плиту АПШ. Пример решения
3.504.1-24 -0 0600 Железобетонная надстройка Н1
3.504.1-24 -0 0700 Тумбовый массив ТМ25
3.504.1-24 -0 0800 Железобетонная надстройка Н2
3.504.1-24 -0 0900 Тумбовый массив ТМ32
3.504.1-24 -0 1000 Железобетонная плита надстройки ПО47.22.1
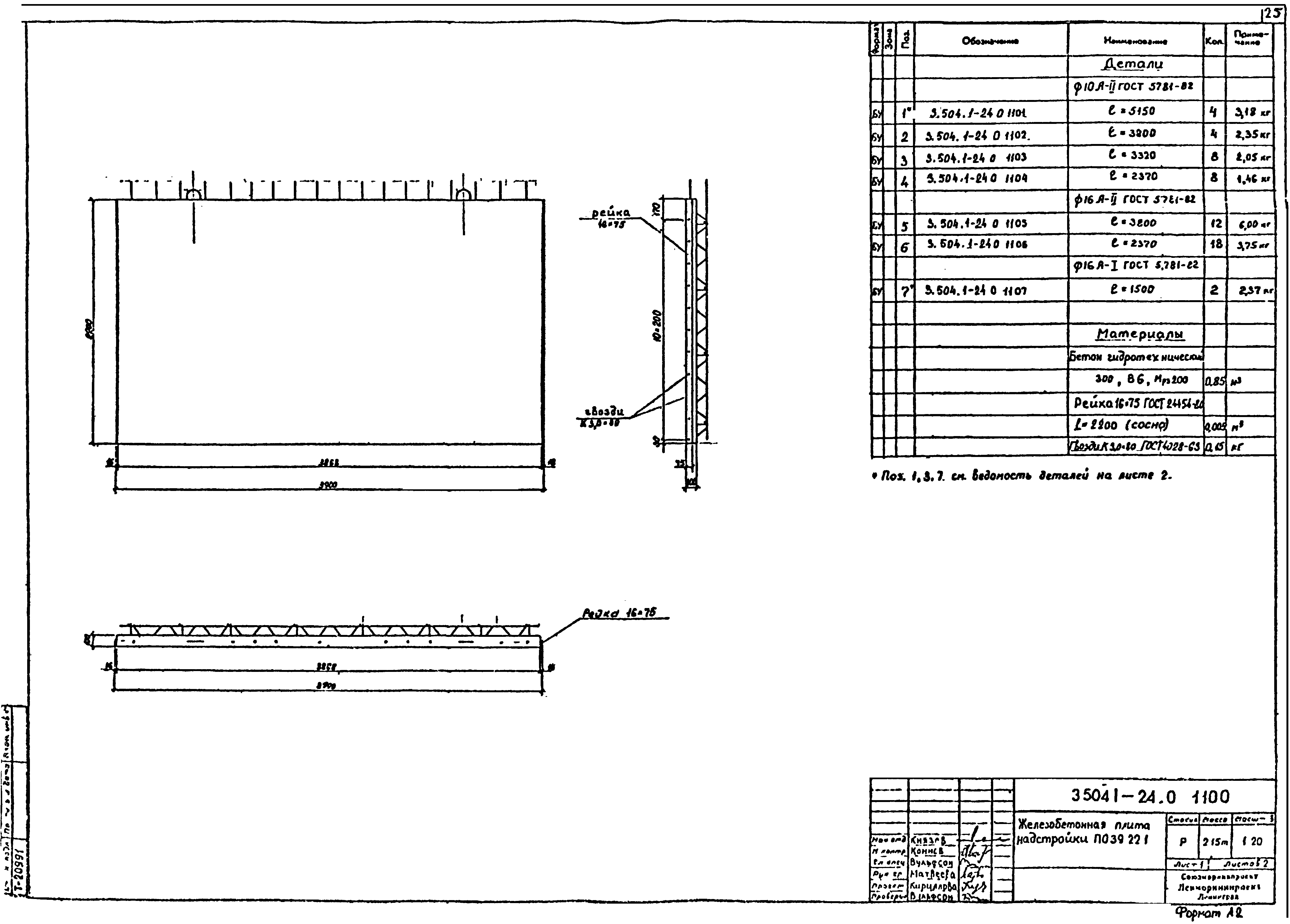
3.504.1-24 -0 1100 Железобетонная плита надстройки ПО39.22.1
3.504.1-24 -0 1200 Железобетонная плита надстройки ПК31.29.4
3.504.1-24 -0 1300 Железобетонная плита надстройки ПК31.29.4-с
3.504.1-24 -0 1400 Железобетонная плита надстройки ПТ31.21.2
3.504.1-24 -0 1500 Железобетонная плита надстройки ПВ31.9.2
3.504.1-24 -0 1600 Железобетонная плита надстройки ПВ31.9.2-л
3.504.1-24 -0 1700 Стык анкерных тяг на накладках
Разработан: ЛенморНИИпроект
Утверждён:20.06.1988 Министерство морского флота СССР (USSR Ministry of the Merchant Marine )
Расположен в:Техническая документация Строительство Справочные документы Типовые строительные конструкции, изделия и узлы Общероссийский строительный каталог Строительные конструкции, изделия и узлы зданий и сооружений для всех видов строительства Конструкции и изделия сооружений и оборудования зданий Надземные сооружения Конструкции и сооружения транспорта Набережные и портовые сооружения, навигационные знаки
Серия 3.504.1-24Серия 3.504.1-24Серия 3.504.1-24Серия 3.504.1-24Серия 3.504.1-24Серия 3.504.1-24Серия 3.504.1-24Серия 3.504.1-24Серия 3.504.1-24Серия 3.504.1-24Серия 3.504.1-24Серия 3.504.1-24Серия 3.504.1-24Серия 3.504.1-24Серия 3.504.1-24Серия 3.504.1-24Серия 3.504.1-24Серия 3.504.1-24Серия 3.504.1-24Серия 3.504.1-24Серия 3.504.1-24Серия 3.504.1-24Серия 3.504.1-24Серия 3.504.1-24Серия 3.504.1-24Серия 3.504.1-24Серия 3.504.1-24Серия 3.504.1-24Серия 3.504.1-24Серия 3.504.1-24Серия 3.504.1-24Серия 3.504.1-24Серия 3.504.1-24Серия 3.504.1-24Серия 3.504.1-24Серия 3.504.1-24

© 2013 Ёшкин Кот :-) Карта сайта