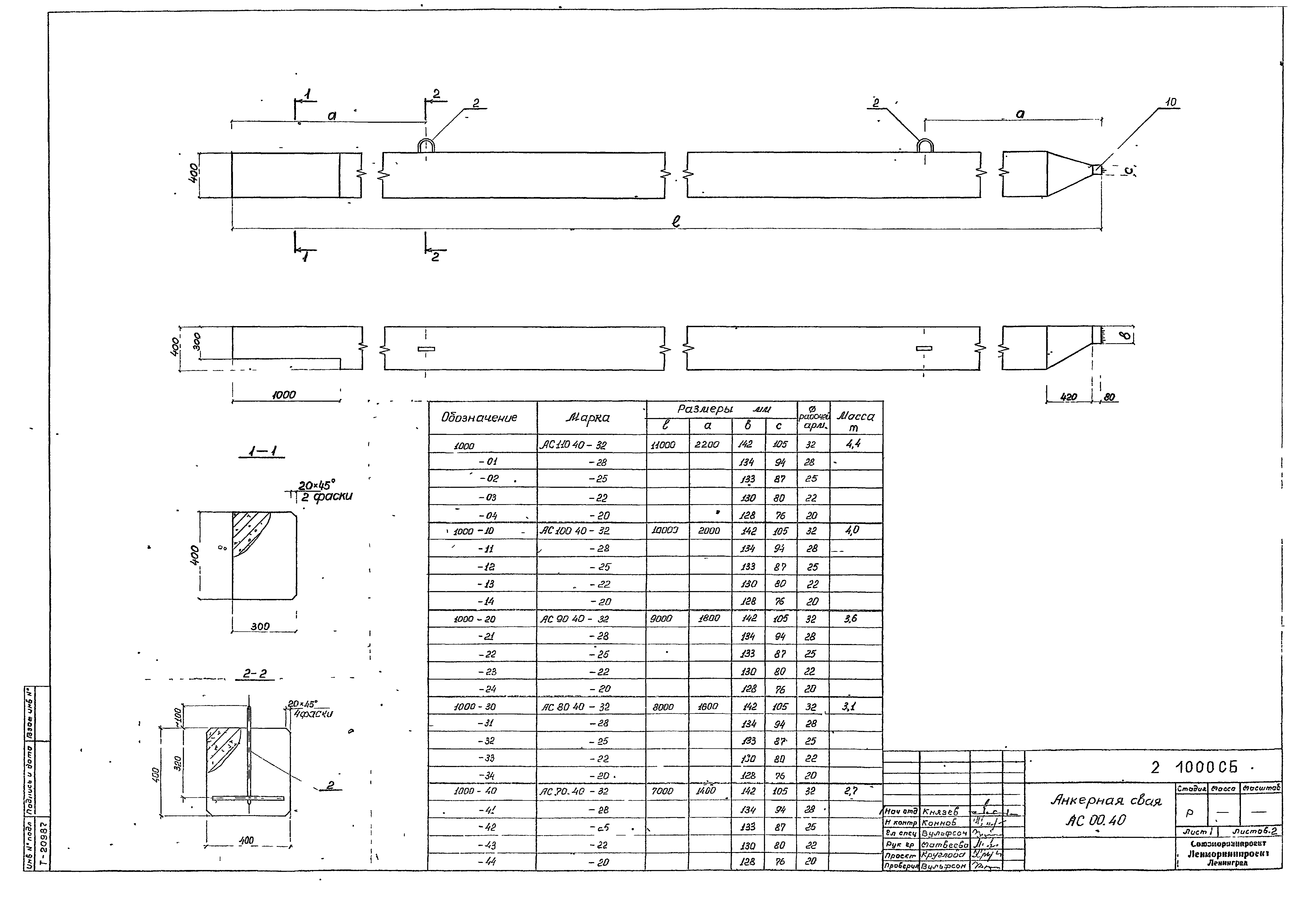
Скачать Серия 3.504.1-23 Выпуск 2. Анкерные сваи АС. Рабочие чертежиДата актуализации: 10.08.2017 Серия 3.504.1-23
Выпуск 2. Анкерные сваи АС. Рабочие чертежиОбозначение: | Серия 3.504.1-23 | Обозначение англ: | Series 3.504.1-23 | Статус: | действует | Название рус.: | Выпуск 2. Анкерные сваи АС. Рабочие чертежи | Дата добавления в базу: | 01.09.2013 | Дата актуализации: | 05.05.2017 | Дата введения: | 01.04.1987 | Разработан: | ЛенморНИИпроект
| Утверждён: | 01.01.1982 Министерство морского флота СССР (USSR Ministry of the Merchant Marine )
| Расположен в: |
|
                                   
|