Информационная система
«Ёшкин Кот»

Скачать базу одним архивом
Скачать обновления
История создания базы
Карта сайта

Скачать Серия 3.503.1-85 Выпуск 1. Блоки. Рабочие чертежи

Дата актуализации: 10.08.2017

Серия 3.503.1-85

Выпуск 1. Блоки. Рабочие чертежи

Обозначение: Серия 3.503.1-85
Обозначение англ: Series 3.503.1-85
Статус:не определен законодательством
Название рус.:Выпуск 1. Блоки. Рабочие чертежи
Дата добавления в базу:01.09.2013
Дата актуализации:05.05.2017
Дата введения:01.07.1988
Оглавление:3.503.1-85.1-000000ТТ Технические требования
3.503.1-85.1-000000НИ Номенклатура блоков
3.503.1-85.1-000000РМ Ведомость расхода материалов
3.503.1-85.1-000000РС Ведомость расхода стали
3.503.1-85.1-010000 Блок трамплина БI-15-1
3.503.1-85.1-010000СБ Блок трамплина БI-15-1. Сборочный чертеж
3.503.1-85.1-020000 Блок трамплина БI-15-2
3.503.1-85.1-020000СБ Блок трамплина БI-15-2. Сборочный чертеж
3.503.1-85.1-030000 Блок трамплина БI-30-1
3.503.1-85.1-030000СБ Блок трамплина БI-30-1. Сборочный чертеж
3.503.1-85.1-040000 Блок трамплина БI-30-2
3.503.1-85.1-040000СБ Блок трамплина БI-30-2. Сборочный чертеж
3.503.1-85.1-050000 Блок трамплина БI-50-1
3.503.1-85.1-050000СБ Блок трамплина БI-50-1. Сборочный чертеж
3.503.1-85.1-060000 Блок трамплина БI-50-2
3.503.1-85.1-060000СБ Блок трамплина БI-50-2. Сборочный чертеж
3.503.1-85.1-070000 Блок трамплина БII-15-1
3.503.1-85.1-070000СБ Блок трамплина БII-15-1. Сборочный чертеж
3.503.1-85.1-080000СБ Блок трамплина БII-15-2. Сборочный чертеж
3.503.1-85.1-080000 Блок трамплина БII-15-2
3.503.1-85.1-090000 Блок трамплина БII-30-1
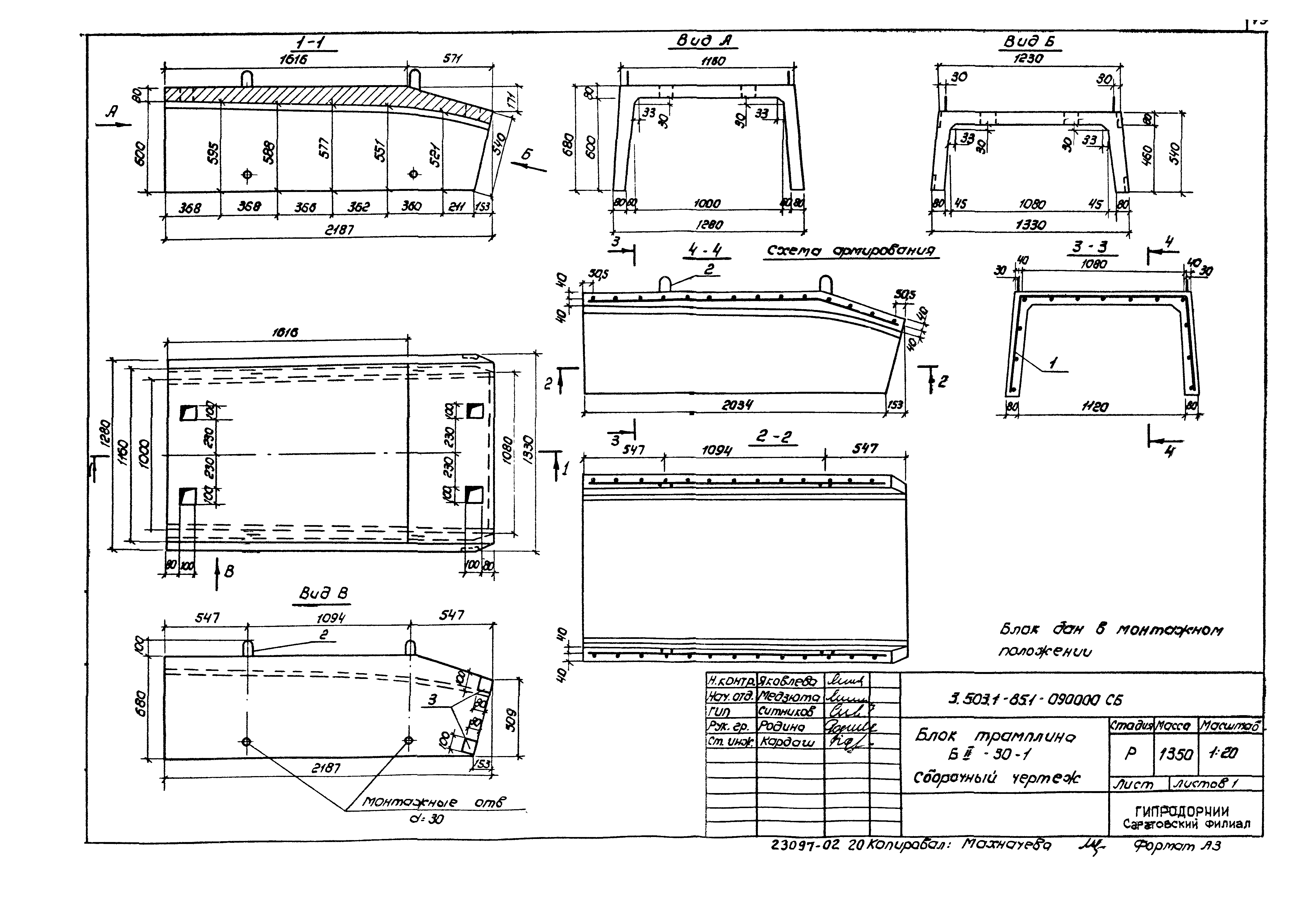
3.503.1-85.1-090000СБ Блок трамплина БII-30-1. Сборочный чертеж
3.503.1-85.1-100000СБ Блок трамплина БII-30-2. Сборочный чертеж
3.503.1-85.1-100000 Блок трамплина БII-30-2
3.503.1-85.1-110000 Блок трамплина БII-50-1
3.503.1-85.1-110000СБ Блок трамплина БII-50-1. Сборочный чертеж
3.503.1-85.1-120000СБ Блок трамплина БII-50-2. Сборочный чертеж
3.503.1-85.1-120000 Блок трамплина БII-50-2
3.503.1-85.1-000100 Каркас арматурный К-1
3.503.1-85.1-000200 Каркас арматурный К-2
3.503.1-85.1-000300 Каркас арматурный К-3
3.503.1-85.1-000400 Каркас арматурный К-4
3.503.1-85.1-000500 Каркас арматурный К-5
3.503.1-85.1-000600 Каркас арматурный К-6
3.503.1-85.1-000700 Каркас арматурный К-7
3.503.1-85.1-000900 Каркас арматурный К-9
3.503.1-85.1-001000 Каркас арматурный К-10
3.503.1-85.1-000800 Каркас арматурный К-8
3.503.1-85.1-001100 Изделие закладное ЗД-1
3.503.1-85.1-000001 Петля строповочная ПС-1
3.503.1-85.1-000002 Отогнутый стержень
3.503.1-85.1-000003 Отогнутый стержень
3.503.1-85.1-000004 Отогнутый стержень
3.503.1-85.1-000005 Отогнутый стержень
3.503.1-85.1-000006 Отогнутый стержень
3.503.1-85.1-000007 Отогнутый стержень
3.503.1-85.1-000008 Отогнутый стержень
Разработан: Саратовский филиал Гипродорнии
Утверждён:01.06.1987 Министерство автомобильных дорог РСФСР (14)
Издан: ЦИТП Госстроя СССР (CITP, Gosstroy (USSR) 1988 г. )
Расположен в:Техническая документация Строительство Справочные документы Типовые строительные конструкции, изделия и узлы Общероссийский строительный каталог Строительные конструкции, изделия и узлы зданий и сооружений для всех видов строительства Конструкции и изделия сооружений и оборудования зданий Надземные сооружения Конструкции и сооружения транспорта Дорожные водопропускные и водоотводные сооружения
Серия 3.503.1-85Серия 3.503.1-85Серия 3.503.1-85Серия 3.503.1-85Серия 3.503.1-85Серия 3.503.1-85Серия 3.503.1-85Серия 3.503.1-85Серия 3.503.1-85Серия 3.503.1-85Серия 3.503.1-85Серия 3.503.1-85Серия 3.503.1-85Серия 3.503.1-85Серия 3.503.1-85Серия 3.503.1-85Серия 3.503.1-85Серия 3.503.1-85Серия 3.503.1-85Серия 3.503.1-85Серия 3.503.1-85Серия 3.503.1-85Серия 3.503.1-85Серия 3.503.1-85Серия 3.503.1-85Серия 3.503.1-85Серия 3.503.1-85Серия 3.503.1-85Серия 3.503.1-85Серия 3.503.1-85Серия 3.503.1-85Серия 3.503.1-85Серия 3.503.1-85Серия 3.503.1-85Серия 3.503.1-85Серия 3.503.1-85

© 2013 Ёшкин Кот :-) Карта сайта