Информационная система
«Ёшкин Кот»

Скачать базу одним архивом
Скачать обновления
История создания базы
Карта сайта

Скачать Серия 3.503.1-85 Выпуск 0. Материалы для проектирования

Дата актуализации: 10.08.2017

Серия 3.503.1-85

Выпуск 0. Материалы для проектирования

Обозначение: Серия 3.503.1-85
Обозначение англ: Series 3.503.1-85
Статус:не определен законодательством
Название рус.:Выпуск 0. Материалы для проектирования
Дата добавления в базу:01.09.2013
Дата актуализации:05.05.2017
Дата введения:01.07.1988
Оглавление:3.503.1-85.0-00ПЗ Пояснительная записка
3.503.1-85.0-01 Схема быстротока с рассеивающим трамплином
3.503.1-85.0-02 Таблица подбора трамплина
3.503.1-85.0-03 Таблица расхода материалов на трамплины
3.503.1-85.0-04 Конструкция трамплина БI-15
3.503.1-85.0-05 Таблица объемов работ на трамплин типа БI-15
3.503.1-85.0-06 Таблица объемов работ на трамплин типа БI-30
3.503.1-85.0-07 Конструкция трамплина БI-30
3.503.1-85.0-08 Конструкция трамплина БI-50
3.503.1-85.0-09 Конструкция трамплина БII-15
3.503.1-85.0-10 Таблица объемов работ на трамплин типа БII-15
3.503.1-85.0-11 Таблица объемов работ на трамплин типа БII-30
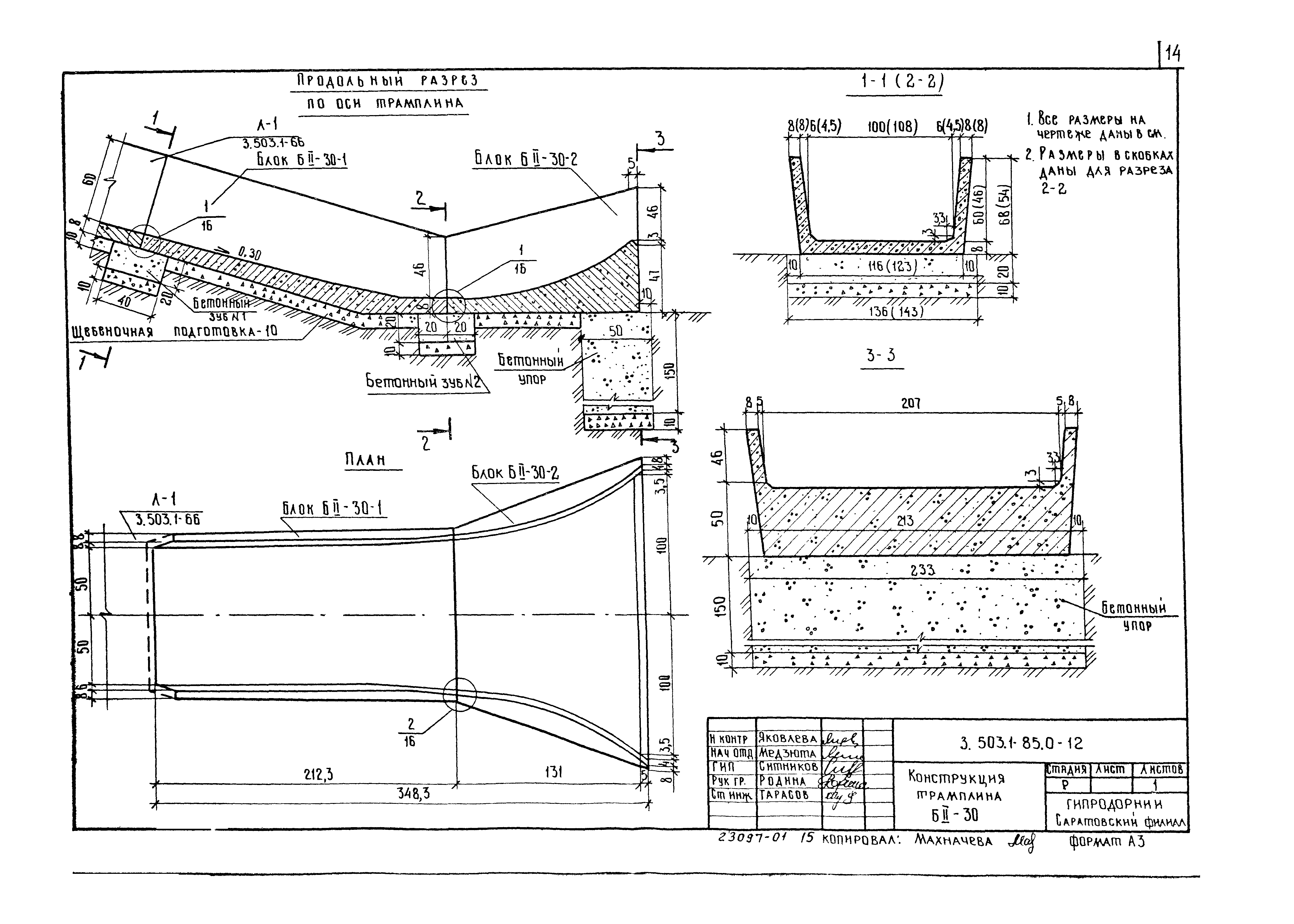
3.503.1-85.0-12 Конструкция трамплина БII-30
3.503.1-85.0-13 Конструкция трамплина БII-50
3.503.1-85.0-14 Таблица объемов работ на трамплин типа БI-50
3.503.1-85.0-15 Таблица объемов работ на трамплин типа БII-50
3.503.1-85.0-16 Схема соединений элементов трамплинов
Разработан: Саратовский филиал Гипродорнии
Утверждён:01.06.1987 Министерство автомобильных дорог РСФСР (14)
Издан: ЦИТП Госстроя СССР (CITP, Gosstroy (USSR) 1989 г. )
Расположен в:Техническая документация Строительство Справочные документы Типовые строительные конструкции, изделия и узлы Общероссийский строительный каталог Строительные конструкции, изделия и узлы зданий и сооружений для всех видов строительства Конструкции и изделия сооружений и оборудования зданий Надземные сооружения Конструкции и сооружения транспорта Дорожные водопропускные и водоотводные сооружения
Серия 3.503.1-85Серия 3.503.1-85Серия 3.503.1-85Серия 3.503.1-85Серия 3.503.1-85Серия 3.503.1-85Серия 3.503.1-85Серия 3.503.1-85Серия 3.503.1-85Серия 3.503.1-85Серия 3.503.1-85Серия 3.503.1-85Серия 3.503.1-85Серия 3.503.1-85Серия 3.503.1-85Серия 3.503.1-85Серия 3.503.1-85Серия 3.503.1-85Серия 3.503.1-85

© 2013 Ёшкин Кот :-) Карта сайта