Информационная система
«Ёшкин Кот»

Скачать базу одним архивом
Скачать обновления
История создания базы
Карта сайта

Скачать Серия 3.503.1-112.97 Выпуск 0. Материалы для проектирования

Дата актуализации: 10.08.2017

Серия 3.503.1-112.97

Выпуск 0. Материалы для проектирования

Обозначение: Серия 3.503.1-112.97
Обозначение англ: Series 3.503.1-112.97
Статус:не определен законодательством
Название рус.:Выпуск 0. Материалы для проектирования
Дата добавления в базу:01.09.2013
Дата актуализации:05.05.2017
Дата введения:01.12.1998
Оглавление:3.503.1-112.97.0-ПЗ Пояснительная записка
3.503.1-112.97.0-01 Номенклатура блоков
3.503.1-112.97.0-02 Гидравлические расчеты
3.503.1-112.97.0-03 Типы оснований и условия их применения
3.503.1-112.97.0-04 Конструкция гидроизоляции и схема засыпки трубы
3.503.1-112.97.0-05 Укрепление монолитным бетоном. Конструкция укреплений
3.503.1-112.97.0-06 Укрепления у труб каменной наброской
3.503.1-112.97.0-07 Средняя часть трубы отв. 1.5 м. Секция длиной 3.5 м
3.503.1-112.97.0-08 Средняя часть трубы отв. 2х1.5 м. Секция длиной 3.5 м
3.503.1-112.97.0-09 Средняя часть трубы отв. 3х1.5 м. Секция длиной 3.5 м
3.503.1-112.97.0-10 Средняя часть трубы отв. 1.5 м. Секция длиной 2.0 м
3.503.1-112.97.0-11 Средняя часть трубы отв. 2х 1.5 м. Секция длиной 2.0 м
3.503.1-112.97.0-12 Средняя часть трубы отв. 3х 1.5 м. Секция длиной 2.0 м
3.503.1-112.97.0-13 Входной оголовок трубы отв. 1.5 м
3.503.1-112.97.0-14 Входной оголовок трубы отв. 2х1.5 м
3.503.1-112.97.0-15 Входной оголовок трубы отв. 3х1.5 м
3.503.1-112.97.0-16 Выходной оголовок трубы отв. 1.5 м
3.503.1-112.97.0-17 Выходной оголовок трубы отв. 2х1.5 м
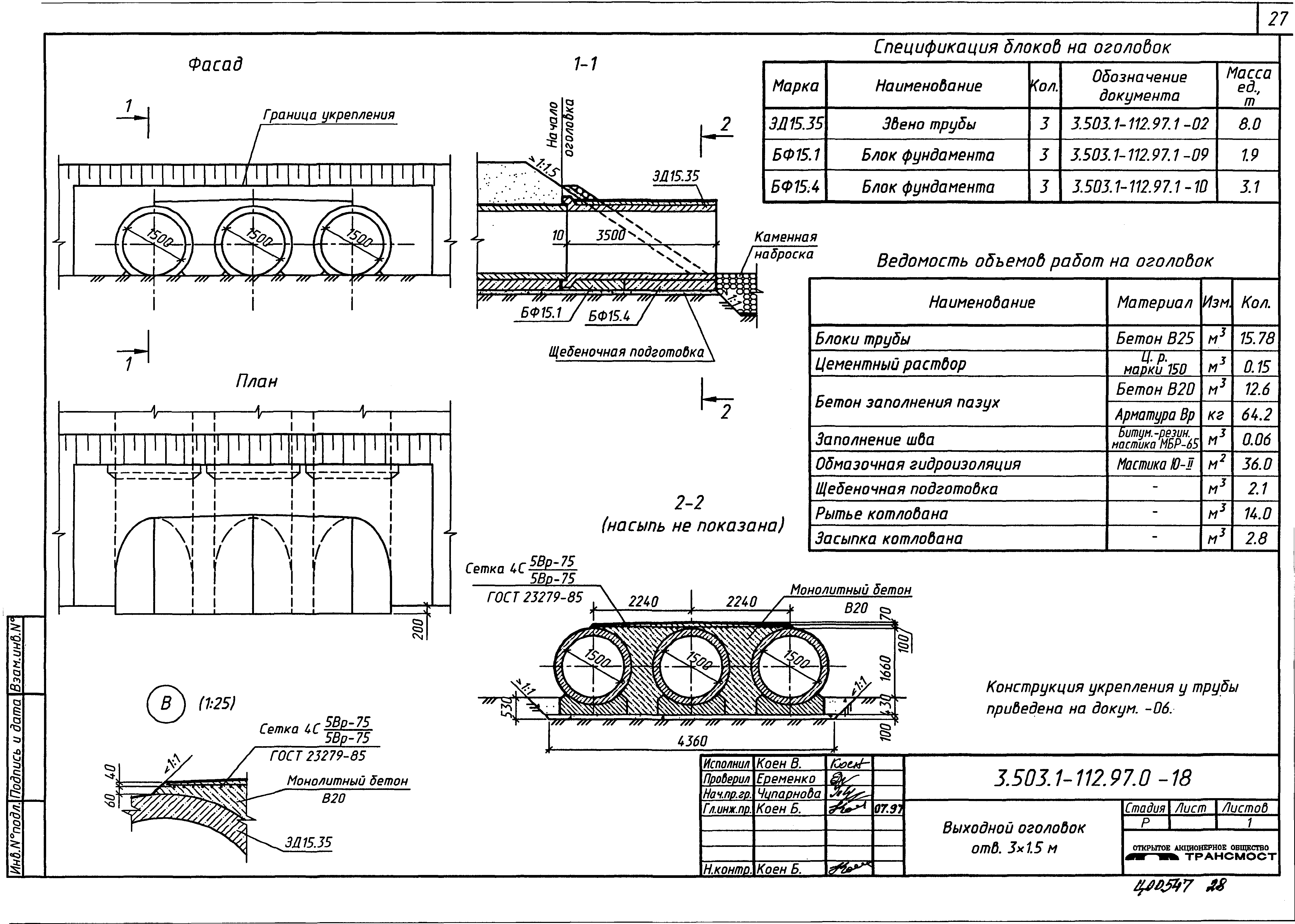
3.503.1-112.97.0-18 Выходной оголовок трубы отв. 3х1.5 м
3.503.1-112.97.0-19 Пример входного оголовка трубы на пучинистых грунтах основания
3.503.1-112.97.0-20 Пример выходного оголовка трубы на пучинистых грунтах основания
3.503.1-112.97.0-21 Пример оголовка трубы при откосе насыпи 1:4
3.503.1-112.97.0-22 Пример конструкции трубы отв. 1.5 м
3.503.1-112.97.0-23 Пример конструкции трубы отв. 1.5 м на слабых грунтах основания
3.503.1-112.97.0-24 Пример конструкции трубы отв. 2х1.5 м
3.503.1-112.97.0-25 Пример конструкции трубы отв. 1.5 м на косогоре
Разработан: ОАО Трансмост
Утверждён:22.09.1998 ОАО Трансмост (22/Т)
Расположен в:Техническая документация Строительство Справочные документы Типовые строительные конструкции, изделия и узлы Общероссийский строительный каталог Строительные конструкции, изделия и узлы зданий и сооружений для всех видов строительства Конструкции и изделия сооружений и оборудования зданий Надземные сооружения Конструкции и сооружения транспорта Дорожные водопропускные и водоотводные сооружения
Серия 3.503.1-112.97Серия 3.503.1-112.97Серия 3.503.1-112.97Серия 3.503.1-112.97Серия 3.503.1-112.97Серия 3.503.1-112.97Серия 3.503.1-112.97Серия 3.503.1-112.97Серия 3.503.1-112.97Серия 3.503.1-112.97Серия 3.503.1-112.97Серия 3.503.1-112.97Серия 3.503.1-112.97Серия 3.503.1-112.97Серия 3.503.1-112.97Серия 3.503.1-112.97Серия 3.503.1-112.97Серия 3.503.1-112.97Серия 3.503.1-112.97Серия 3.503.1-112.97Серия 3.503.1-112.97Серия 3.503.1-112.97Серия 3.503.1-112.97Серия 3.503.1-112.97Серия 3.503.1-112.97Серия 3.503.1-112.97Серия 3.503.1-112.97Серия 3.503.1-112.97Серия 3.503.1-112.97Серия 3.503.1-112.97Серия 3.503.1-112.97Серия 3.503.1-112.97Серия 3.503.1-112.97Серия 3.503.1-112.97Серия 3.503.1-112.97Серия 3.503.1-112.97Серия 3.503.1-112.97Серия 3.503.1-112.97Серия 3.503.1-112.97Серия 3.503.1-112.97Серия 3.503.1-112.97Серия 3.503.1-112.97Серия 3.503.1-112.97

© 2013 Ёшкин Кот :-) Карта сайта