Информационная система
«Ёшкин Кот»

Скачать базу одним архивом
Скачать обновления
История создания базы
Карта сайта

Скачать Серия 3.501.1-179.94 Выпуск 0-1. Трубы для умеренных и суровых климатических условий. Материалы для проектирования

Дата актуализации: 10.08.2017

Серия 3.501.1-179.94

Выпуск 0-1. Трубы для умеренных и суровых климатических условий. Материалы для проектирования

Обозначение: Серия 3.501.1-179.94
Обозначение англ: Series 3.501.1-179.94
Статус:не определен законодательством
Название рус.:Выпуск 0-1. Трубы для умеренных и суровых климатических условий. Материалы для проектирования
Дата добавления в базу:01.09.2013
Дата актуализации:05.05.2017
Дата введения:01.07.1995
Оглавление:3.501.1-179.94.0-1-ПЗ Пояснительная записка
3.501.1-179.94.0-1-01 Блоки перекрытий труб под железную дорогу. Нагрузки и усилия
3.501.1-179.94.0-1-02 Блоки перекрытий труб под железную дорогу на свайном фундаменте или скальном основании. Нагрузки и усилия
3.501.1-179.94.0-1-03 Блоки перекрытий труб под железную дорогу. Подбор сечений
3.501.1-179.94.0-1-04 Блоки перекрытий труб под автомобильную дорогу. Нагрузки и усилия
3.501.1-179.94.0-1-05 Блоки перекрытий труб под автомобильную дорогу на свайном фундаменте или скальном основании. Нагрузки и усилия
3.501.1-179.94.0-1-06 Блоки перекрытий труб под автомобильную дорогу. Подбор сечений
3.501.1-179.94.0-1-07 Стенки труб высотой отверстия 2,0 и 3,0 м. Нагрузки и усилия
3.501.1-179.94.0-1-08 Стенки труб высотой отверстия 3,0 м. Нагрузки и усилия
3.501.1-179.94.0-1-09 Фундаменты труб отв. 4,0х3,0 … 6,0х3,0 м. Нагрузки и усилия
3.501.1-179.94.0-1-10 Расчетное давление на грунт под подошвой фундамента труб под железную дорогу
3.501.1-179.94.0-1-11 Расчетное давление на грунт под подошвой фундамента труб под автомобильную дорогу
3.501.1-179.94.0-1-12 Рекомендации по расчету устойчивости откосов земляного полотна
3.501.1-179.94.0-1-13 Гидравлические расчеты
3.501.1-179.94.0-1-14 Схема засыпки трубы
3.501.1-179.94.0-1-15 Конструкция гидроизоляции
3.501.1-179.94.0-1-16НИ Номенклатура изделий
3.501.1-179.94.0-1-17 Укрепление монолитным бетоном. Конструкция укреплений
3.501.1-179.94.0-1-18 Укрепление монолитным бетоном. Ведомость объемов работ
3.501.1-179.94.0-1-19 Укрепление сборными блоками П-1. Конструкция укреплений
3.501.1-179.94.0-1-20 Укрепление сборными блоками П-1. Ведомость объемов работ
3.501.1-179.94.0-1-21 Укрепление сборными блоками ГП. Конструкция укреплений
3.501.1-179.94.0-1-22 Укрепление сборными блоками ГП. Ведомость объемов работ
3.501.1-179.94.0-1-23 Укрепление камнем. Конструкция укреплений и ведомость объемов работ
3.501.1-179.94.0-1-24 Укрепления у входных оголовков с нормальным звеном
3.501.1-179.94.0-1-25 Конструкция конца укрепления русла
3.501.1-179.94.0-1-26 Трубы со сборными стенками. Ведомость объемов работ на 1 п. м средней части трубы
3.501.1-179.94.0-1-27 Трубы со сборными стенками. Ведомость объемов работ на оголовок с нормальным звеном одноочковых труб
3.501.1-179.94.0-1-28 Трубы со сборными стенками. Ведомость объемов работ на оголовок с нормальным звеном двухочковых труб
3.501.1-179.94.0-1-29 Трубы со сборными стенками. Ведомость объемов работ на оголовок с повышенным звеном одноручковых труб
3.501.1-179.94.0-1-30 Трубы со сборными стенками. Ведомость объемов работ на оголовок с повышенным звеном двуочковых труб
3.501.1-179.94.0-1-31 Трубы со сборными стенками. Средняя часть одноочковых труб
3.501.1-179.94.0-1-32 Трубы со сборными стенками. Средняя часть двухочковых труб
3.501.1-179.94.0-1-33 Трубы со сборными стенками. Армирование фундаментов средней части труб
3.501.1-179.94.0-1-34 Трубы со сборными стенками. Оголовки с нормальным звеном труб отв. 1,5х2,0 … 6,0х3,0 м
3.501.1-179.94.0-1-35 Трубы со сборными стенками. Оголовки труб отв. 2,0х3,0 и 3,0х3,0 м
3.501.1-179.94.0-1-36 Трубы со сборными стенками. Оголовки с повышенным звеном труб отв. 1,5х2,0 … 6,0х3,0 м
3.501.1-179.94.0-1-37 Трубы со сборными стенками. Оголовки с нормальным звеном труб отв. 2х1,5х2,0 … 2х6,0х3,0 м
3.501.1-179.94.0-1-38 Трубы со сборными стенками. Оголовки труб отв. 2х2,0х3,0 и 2х3,0х3,0 м
3.501.1-179.94.0-1-39 Трубы со сборными стенками. Оголовки с повышенным звеном труб отв. 2х1,5х2,0 … 2х6,0х3,0 м
3.501.1-179.94.0-1-40 Трубы со сборными стенками. Армирование фундаментов оголовков
3.501.1-179.94.0-1-41 Трубы из монолитного бетона. Ведомость объемов работ на 1 п. м средней части трубы
3.501.1-179.94.0-1-42 Трубы из монолитного бетона. Ведомость объемов работ на оголовок с нормальным звеном одноочковых труб
3.501.1-179.94.0-1-43 Трубы из монолитного бетона. Ведомость объемов работ на оголовок с нормальным звеном двухочковых труб
3.501.1-179.94.0-1-44 Трубы из монолитного бетона. Ведомость объемов работ на оголовок с повышенным звеном одноочковых труб
3.501.1-179.94.0-1-45 Трубы из монолитного бетона. Ведомость объемов работ на оголовок с повышенным звеном двухочковых труб
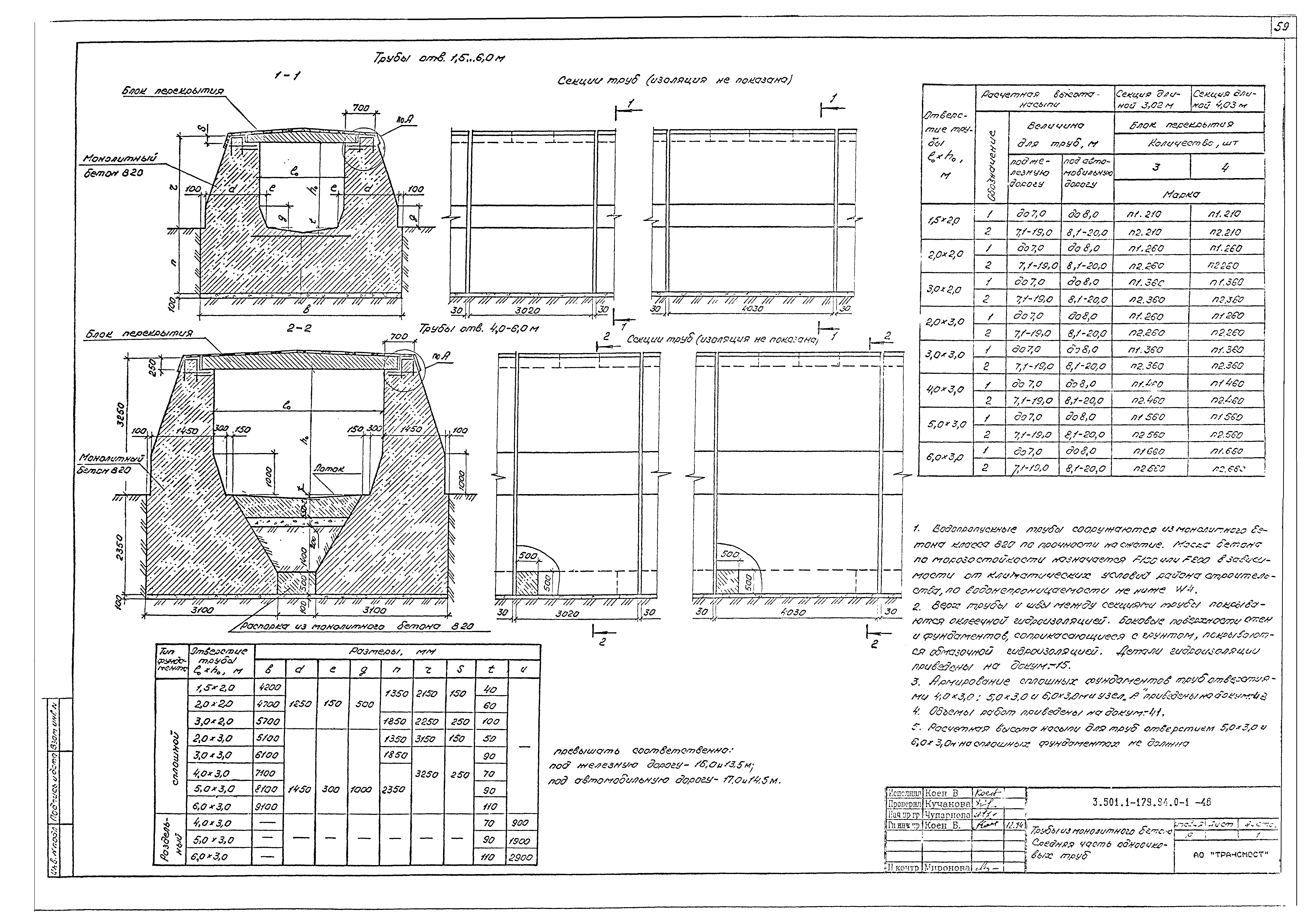
3.501.1-179.94.0-1-46 Трубы из монолитного бетона. Средняя часть одноочковых труб
3.501.1-179.94.0-1-47 Трубы из монолитного бетона. Средняя часть двухочковых труб
3.501.1-179.94.0-1-48 Трубы из монолитного бетона. Армирование стен и фундаментов средней части труб
3.501.1-179.94.0-1-49 Трубы из монолитного бетона. Оголовки с нормальным звеном труб отв. 1,5х2,0 … 6,0х3,0 м
3.501.1-179.94.0-1-50 Трубы из монолитного бетона. Оголовки труб отв. 2,0х3,0 и 3,0х3,0 м
3.501.1-179.94.0-1-51 Трубы из монолитного бетона. Оголовки с повышенным звеном труб отв. 1,5х2,0 … 6,0х3,0 м
3.501.1-179.94.0-1-52 Примеры конструкции труб. Труба отв. 4,0 м из монолитного бетона
3.501.1-179.94.0-1-53 Примеры конструкции труб. Труб отв. 2х2,0х2,0 м со сборными стенками
Разработан: ОАО Трансмост
Утверждён:01.09.1988 Минтрансстрой (Mintransstroy АБ-559)
Расположен в:Техническая документация Строительство Справочные документы Типовые строительные конструкции, изделия и узлы Общероссийский строительный каталог Строительные конструкции, изделия и узлы зданий и сооружений для всех видов строительства Конструкции и изделия сооружений и оборудования зданий Надземные сооружения Конструкции и сооружения транспорта Дорожные водопропускные и водоотводные сооружения
Заменяет собой:
Серия 3.501.1-179.94Серия 3.501.1-179.94Серия 3.501.1-179.94Серия 3.501.1-179.94Серия 3.501.1-179.94Серия 3.501.1-179.94Серия 3.501.1-179.94Серия 3.501.1-179.94Серия 3.501.1-179.94Серия 3.501.1-179.94Серия 3.501.1-179.94Серия 3.501.1-179.94Серия 3.501.1-179.94Серия 3.501.1-179.94Серия 3.501.1-179.94Серия 3.501.1-179.94Серия 3.501.1-179.94Серия 3.501.1-179.94Серия 3.501.1-179.94Серия 3.501.1-179.94Серия 3.501.1-179.94Серия 3.501.1-179.94Серия 3.501.1-179.94Серия 3.501.1-179.94Серия 3.501.1-179.94Серия 3.501.1-179.94Серия 3.501.1-179.94Серия 3.501.1-179.94Серия 3.501.1-179.94Серия 3.501.1-179.94Серия 3.501.1-179.94Серия 3.501.1-179.94Серия 3.501.1-179.94Серия 3.501.1-179.94Серия 3.501.1-179.94Серия 3.501.1-179.94Серия 3.501.1-179.94Серия 3.501.1-179.94Серия 3.501.1-179.94Серия 3.501.1-179.94Серия 3.501.1-179.94Серия 3.501.1-179.94Серия 3.501.1-179.94Серия 3.501.1-179.94Серия 3.501.1-179.94Серия 3.501.1-179.94Серия 3.501.1-179.94Серия 3.501.1-179.94Серия 3.501.1-179.94Серия 3.501.1-179.94Серия 3.501.1-179.94Серия 3.501.1-179.94Серия 3.501.1-179.94Серия 3.501.1-179.94Серия 3.501.1-179.94Серия 3.501.1-179.94Серия 3.501.1-179.94Серия 3.501.1-179.94Серия 3.501.1-179.94Серия 3.501.1-179.94Серия 3.501.1-179.94Серия 3.501.1-179.94Серия 3.501.1-179.94Серия 3.501.1-179.94Серия 3.501.1-179.94Серия 3.501.1-179.94Серия 3.501.1-179.94Серия 3.501.1-179.94Серия 3.501.1-179.94

© 2013 Ёшкин Кот :-) Карта сайта