Информационная система
«Ёшкин Кот»

Скачать базу одним архивом
Скачать обновления
История создания базы
Карта сайта

Скачать Серия 3.501.1-177.93 Выпуск 1-2. Звенья труб, блоки фундаментов и оголовков для особо суровых климатических условий. Технические условия. Рабочие чертежи

Дата актуализации: 10.08.2017

Серия 3.501.1-177.93

Выпуск 1-2. Звенья труб, блоки фундаментов и оголовков для особо суровых климатических условий. Технические условия. Рабочие чертежи

Обозначение: Серия 3.501.1-177.93
Обозначение англ: Series 3.501.1-177.93
Статус:заменен
Название рус.:Выпуск 1-2. Звенья труб, блоки фундаментов и оголовков для особо суровых климатических условий. Технические условия. Рабочие чертежи
Дата добавления в базу:01.09.2013
Дата актуализации:05.05.2017
Дата введения:25.12.2008
Оглавление:3.501.1-177.93.1-2-ТО Техническое описание
3.501.1-177.93.1-2-ТУ Технические условия
3.501.1-177.93.1-2-01ФЧ Звенья ЗП7.100-М … ЗП26.100-М. ЗП7.200-М … ЗП15.200-М. Опалубочный чертеж
3.501.1-177.93.1-2-02ФЧ Звенья ЗП29-М … ЗП38.100-М. Опалубочный чертеж
3.501.1-177.93.1-2-03 Звено ЗП7.100-М; ЗП7.200-М.
3.501.1-177.93.1-2-04 Звено ЗП8.100-М; ЗП8.200-М.
3.501.1-177.93.1-2-05 Звено ЗП9.100-М; ЗП9.200-М.
3.501.1-177.93.1-2-06 Каркас арматурный КР1-М; КР3-М; КР5-М.
3.501.1-177.93.1-2-07 Каркас арматурный КР2-М; КР4-М; КР6-М.
3.501.1-177.93.1-2-08 Звено ЗП10.100-М; ЗП10.200-М.
3.501.1-177.93.1-2-09 Звено ЗП11.100-М; ЗП11.200-М.
3.501.1-177.93.1-2-10 Звено ЗП12.100-М; ЗП12.200-М.
3.501.1-177.93.1-2-11 Каркас арматурный КР7-М; КР9-М; КР11-М.
3.501.1-177.93.1-2-12 Каркас арматурный КР8-М; КР10-М; КР12-М.
3.501.1-177.93.1-2-13 Звено ЗП13.100-М; ЗП13.200-М.
3.501.1-177.93.1-2-14 Звено ЗП14.100-М; ЗП14.200-М.
3.501.1-177.93.1-2-15 Звено ЗП15.100-М; ЗП15.200-М.
3.501.1-177.93.1-2-16 Каркас арматурный КР13-М; КР15-М; КР17-М.
3.501.1-177.93.1-2-17 Каркас арматурный КР14-М; КР16-М; КР18-М.
3.501.1-177.93.1-2-18 Звено ЗП16.100-М.
3.501.1-177.93.1-2-19 Звено ЗП17.100-М.
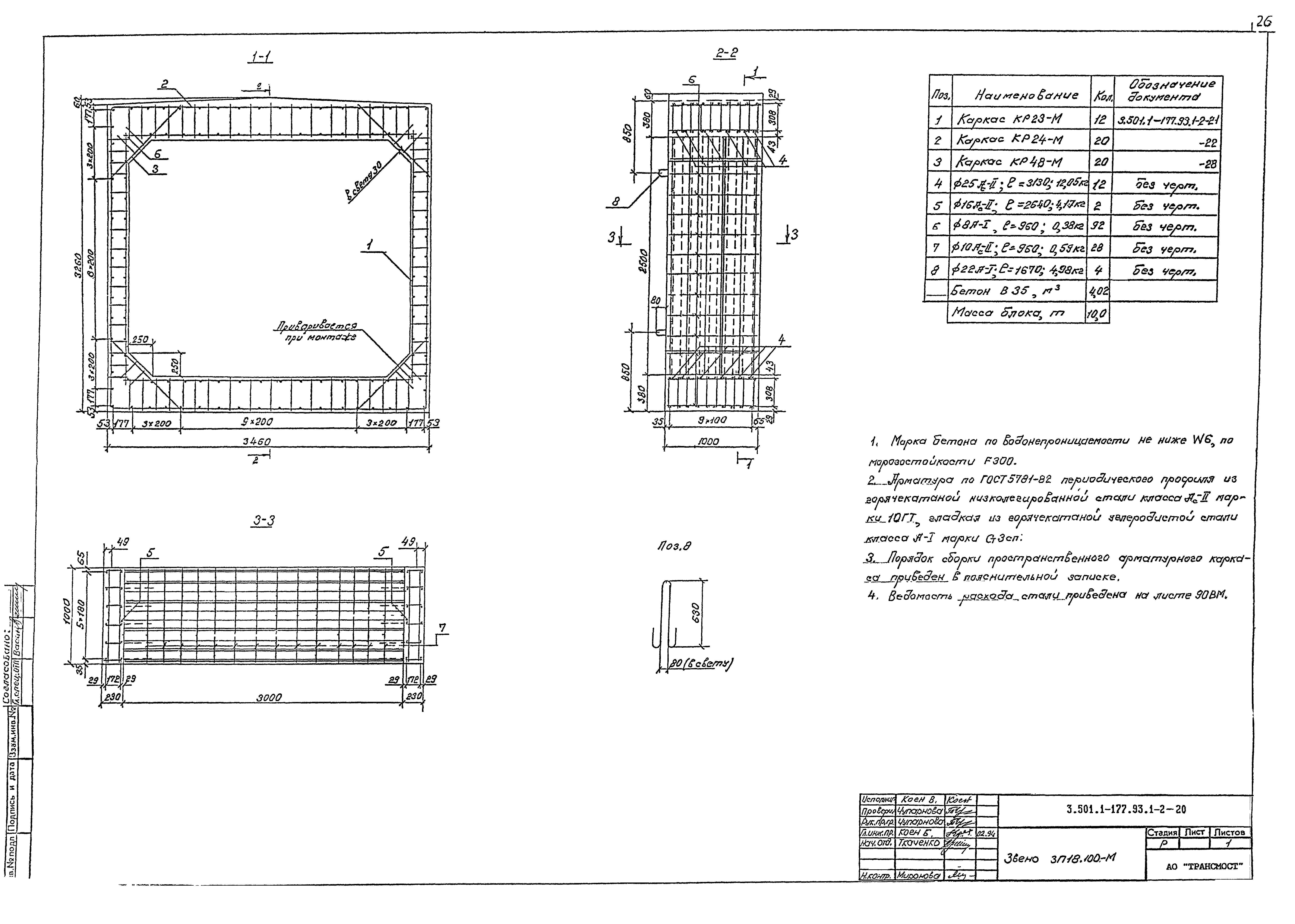
3.501.1-177.93.1-2-20 Звено ЗП18.100-М.
3.501.1-177.93.1-2-21 Каркас арматурный КР19-М; КР21-М; КР23-М.
3.501.1-177.93.1-2-22 Каркас арматурный КР20-М; КР22-М; КР24-М.
3.501.1-177.93.1-2-23 Звено ЗП19.100-М.
3.501.1-177.93.1-2-24 Звено ЗП20.100-М.
3.501.1-177.93.1-2-25 Звено ЗП21.100-М.
3.501.1-177.93.1-2-26 Каркас арматурный КР25-М; КР27-М; КР29-М.
3.501.1-177.93.1-2-27 Каркас арматурный КР26-М; КР28-М; КР30-М.
3.501.1-177.93.1-2-28 Каркас арматурный КР37-М … КР51-М.
3.501.1-177.93.1-2-29 Звено ЗП24.100-М.
3.501.1-177.93.1-2-30 Звено ЗП25.100-М.
3.501.1-177.93.1-2-31 Звено ЗП26.100-М.
3.501.1-177.93.1-2-32 Каркас арматурный КР31-М;  КР33-М; КР35-М.
3.501.1-177.93.1-2-33 Каркас арматурный КР32-М;  КР34-М; КР36-М.
3.501.1-177.93.1-2-34 Звено ЗП29-М.
3.501.1-177.93.1-2-35 Звено ЗП30-М.
3.501.1-177.93.1-2-36 Звено ЗП31-М.
3.501.1-177.93.1-2-37 Звено ЗП34-М.
3.501.1-177.93.1-2-38 Звено ЗП35-М.
3.501.1-177.93.1-2-39 Звено ЗП36-М.
3.501.1-177.93.1-2-40 Звено ЗП37-М.
3.501.1-177.93.1-2-41 Звено ЗП38-М.
3.501.1-177.93.1-2-42 Каркас арматурный КП1-М … КП5-М.
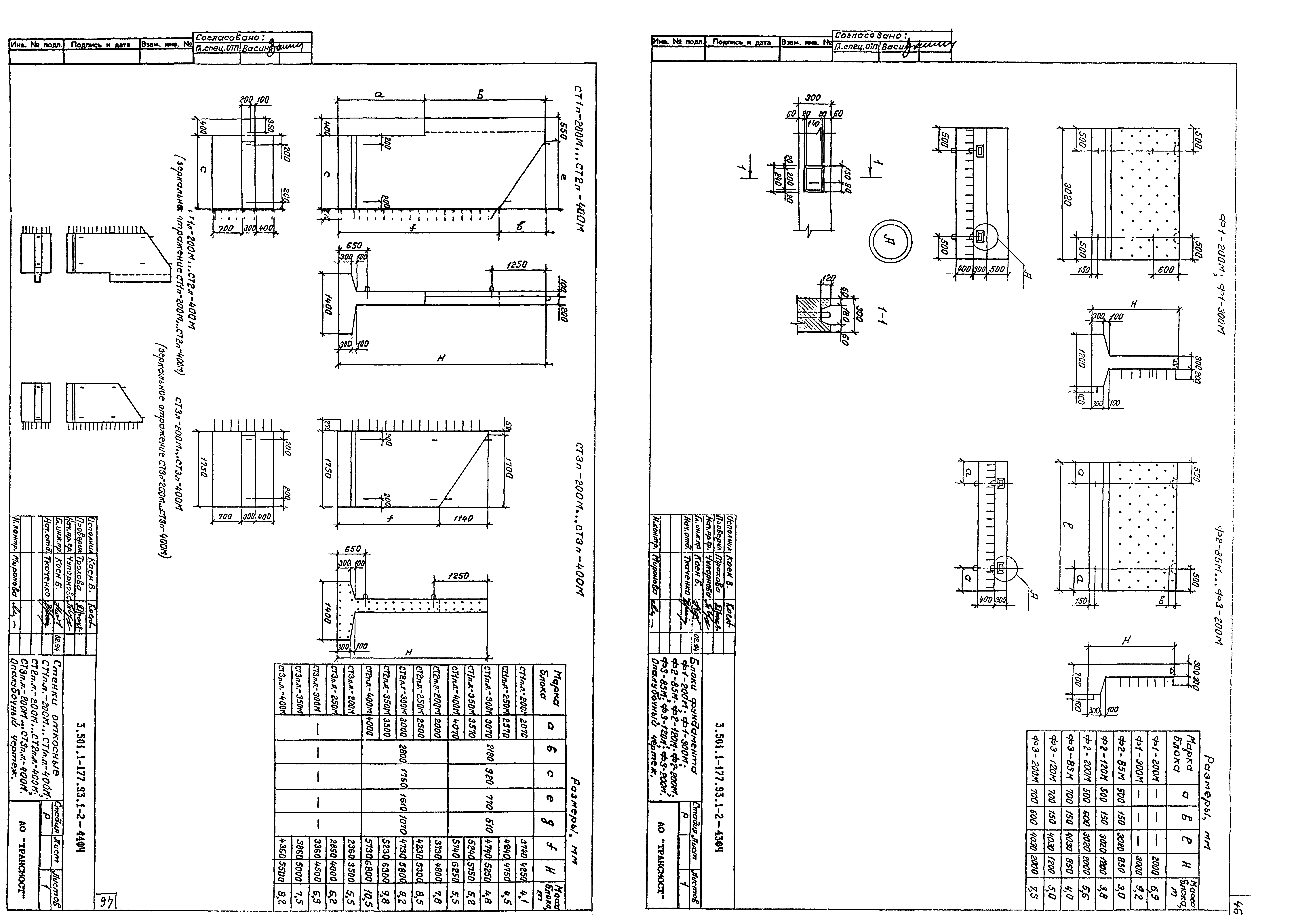
3.501.1-177.93.1-2-43ФЧ Блоки фундамента Ф1-200М; Ф1-300М; Ф2-85М; Ф2-120М; Ф2-200М; Ф3-85М; Ф3-120М; Ф3-200М. Опалубочный чертеж
3.501.1-177.93.1-2-44ФЧ Стенки откосные СТ1п.л.-200М … СТ1п.л.-400М; СТ2п.л.-200М … СТ2п.л.-400М; СТ3п.л.-200М … СТ3п.л.-400М. Опалубочный чертеж.
3.501.1-177.93.1-2-45 Бок фундамента Ф1-200М.
3.501.1-177.93.1-2-46 Бок фундамента Ф1-300М.
3.501.1-177.93.1-2-47 Сетка арматурная С1-М; С6-М.
3.501.1-177.93.1-2-48 Сетка арматурная С2-М; С7-М.
3.501.1-177.93.1-2-49 Сетка арматурная С3-М.
3.501.1-177.93.1-2-50 Сетка арматурная С4-М.
3.501.1-177.93.1-2-51 Блок фундамента Ф2-85М.
3.501.1-177.93.1-2-52 Блок фундамента Ф2-120М.
3.501.1-177.93.1-2-53 Блок фундамента Ф2-200М.
3.501.1-177.93.1-2-54 Блок фундамента Ф3-85М.
3.501.1-177.93.1-2-55 Блок фундамента Ф3-120М.
3.501.1-177.93.1-2-56 Блок фундамента Ф3-200М.
3.501.1-177.93.1-2-57 Сетка арматурная С8-М; С12-М; С14-М; С16-М; С20-М; С22-М.
3.501.1-177.93.1-2-58 Сетка арматурная С9-М; С13-М; С15-М; С17-М; С21-М; С23-М.
3.501.1-177.93.1-2-59 Сетка арматурная С5-М.
3.501.1-177.93.1-2-60 Сетка арматурная С10-М; С18-М.
3.501.1-177.93.1-2-61 Сетка арматурная С11-М; С19-М.
3.501.1-177.93.1-2-62 Стенка откосная СТ1п.л.-200М … СТ1п.л.-400М.
3.501.1-177.93.1-2-63 Стенка откосная СТ2п.л.-200М … СТ2п.л.-400М.
3.501.1-177.93.1-2-64 Сетка арматурная С24-М … С28-М.
3.501.1-177.93.1-2-65 Сетка арматурная С29-М … С33-М.
3.501.1-177.93.1-2-66 Сетка арматурная С34-М; С35-М.
3.501.1-177.93.1-2-67 Сетка арматурная С41-М; С42-М.
3.501.1-177.93.1-2-68 Сетка арматурная С36-М ... С40-М.
3.501.1-177.93.1-2-69 Сетка арматурная С43-М ... С45-М.
3.501.1-177.93.1-2-70 Сетка арматурная С46-М; С47-М.
3.501.1-177.93.1-2-71 Сетка арматурная С48-М ... С52-М.
3.501.1-177.93.1-2-72 Сетка арматурная С53-М; С54-М.
3.501.1-177.93.1-2-73 Сетка арматурная С60-М; С61-М.
3.501.1-177.93.1-2-74 Сетка арматурная С55-М … С59-М.
3.501.1-177.93.1-2-75 Каркас арматурный КР52-М … КР56-М.
3.501.1-177.93.1-2-76 Каркас арматурный КР57-М … КР61-М.
3.501.1-177.93.1-2-77 Каркас арматурный КР62-М … КР66-М.
3.501.1-177.93.1-2-78 Каркас арматурный КР67-М … КР71-М.
3.501.1-177.93.1-2-79 Каркас арматурный КР72-М … КР76-М.
3.501.1-177.93.1-2-80 Стенка откосная СТ3п.л.-200М … СТ3п.л.-400М.
3.501.1-177.93.1-2-81 Сетка арматурная С62-М … С64-М.
3.501.1-177.93.1-2-82 Сетка арматурная С65-М; С66-М.
3.501.1-177.93.1-2-83 Сетка арматурная С67-М … С71-М.
3.501.1-177.93.1-2-84 Сетка арматурная С72-М … С76-М.
3.501.1-177.93.1-2-85 Сетка арматурная С77-М … С78-М.
3.501.1-177.93.1-2-86 Каркас арматурный КР77-М … КР81-М.
3.501.1-177.93.1-2-87 Каркас арматурный КР82-М … КР86-М.
3.501.1-177.93.1-2-88 Каркас арматурный КР87-М … КР91-М.
3.501.1-177.93.1-2-89 Каркас арматурный КР92-М … КР96-М.
3.501.1-177.93.1-2-90ВМ Ведомость расхода материалов
Разработан: АО Трансмост
Утверждён:24.07.1990 Минтрансстрой (Mintransstroy АВ-294)
Расположен в:Техническая документация Строительство Справочные документы Типовые строительные конструкции, изделия и узлы Общероссийский строительный каталог Строительные конструкции, изделия и узлы зданий и сооружений для всех видов строительства Конструкции и изделия сооружений и оборудования зданий Надземные сооружения Конструкции и сооружения транспорта Дорожные водопропускные и водоотводные сооружения
Заменяет собой:
Чем заменён:
  • Шифр 2119 «Трубы водопропускные железобетонные прямоугольные сборные для железных и автомобильных дорог»
Серия 3.501.1-177.93Серия 3.501.1-177.93Серия 3.501.1-177.93Серия 3.501.1-177.93Серия 3.501.1-177.93Серия 3.501.1-177.93Серия 3.501.1-177.93Серия 3.501.1-177.93Серия 3.501.1-177.93Серия 3.501.1-177.93Серия 3.501.1-177.93Серия 3.501.1-177.93Серия 3.501.1-177.93Серия 3.501.1-177.93Серия 3.501.1-177.93Серия 3.501.1-177.93Серия 3.501.1-177.93Серия 3.501.1-177.93Серия 3.501.1-177.93Серия 3.501.1-177.93Серия 3.501.1-177.93Серия 3.501.1-177.93Серия 3.501.1-177.93Серия 3.501.1-177.93Серия 3.501.1-177.93Серия 3.501.1-177.93Серия 3.501.1-177.93Серия 3.501.1-177.93Серия 3.501.1-177.93Серия 3.501.1-177.93Серия 3.501.1-177.93Серия 3.501.1-177.93Серия 3.501.1-177.93Серия 3.501.1-177.93Серия 3.501.1-177.93Серия 3.501.1-177.93Серия 3.501.1-177.93Серия 3.501.1-177.93Серия 3.501.1-177.93Серия 3.501.1-177.93Серия 3.501.1-177.93Серия 3.501.1-177.93Серия 3.501.1-177.93Серия 3.501.1-177.93Серия 3.501.1-177.93Серия 3.501.1-177.93Серия 3.501.1-177.93Серия 3.501.1-177.93Серия 3.501.1-177.93Серия 3.501.1-177.93Серия 3.501.1-177.93Серия 3.501.1-177.93Серия 3.501.1-177.93Серия 3.501.1-177.93Серия 3.501.1-177.93Серия 3.501.1-177.93Серия 3.501.1-177.93Серия 3.501.1-177.93Серия 3.501.1-177.93Серия 3.501.1-177.93Серия 3.501.1-177.93Серия 3.501.1-177.93Серия 3.501.1-177.93Серия 3.501.1-177.93Серия 3.501.1-177.93Серия 3.501.1-177.93Серия 3.501.1-177.93Серия 3.501.1-177.93Серия 3.501.1-177.93Серия 3.501.1-177.93Серия 3.501.1-177.93Серия 3.501.1-177.93Серия 3.501.1-177.93

© 2013 Ёшкин Кот :-) Карта сайта