Информационная система
«Ёшкин Кот»

Скачать базу одним архивом
Скачать обновления
История создания базы
Карта сайта

Скачать Серия 3.501.1-177.93 Выпуск 0-3. Трубы для автомобильных и железных дорог в особо суровых климатических условиях. Материалы для проектирования

Дата актуализации: 10.08.2017

Серия 3.501.1-177.93

Выпуск 0-3. Трубы для автомобильных и железных дорог в особо суровых климатических условиях. Материалы для проектирования

Обозначение: Серия 3.501.1-177.93
Обозначение англ: Series 3.501.1-177.93
Статус:заменен
Название рус.:Выпуск 0-3. Трубы для автомобильных и железных дорог в особо суровых климатических условиях. Материалы для проектирования
Дата добавления в базу:01.09.2013
Дата актуализации:05.05.2017
Дата введения:25.12.2008
Оглавление:3.501.1-177.93.0-3-ПЗ Пояснительная записка
3.501.1-177.93.0-3-01НИ Номенклатура блоков
3.501.1-177.93.0-3-02 Трубы под автомобильную дорогу. Нагрузки на звенья труб
3.501.1-177.93.0-3-03 Трубы под автомобильную дорогу. Нагрузки на звенья труб. Скальные основания и свайные фундаменты
3.501.1-177.93.0-3-04 Трубы под автомобильную дорогу. Нагрузки на звенья труб для особых условий работы
3.501.1-177.93.0-3-05 Трубы под автомобильную дорогу. Нагрузки на повышенные звенья труб
3.501.1-177.93.0-3-06 Трубы под автомобильную дорогу. Подбор сечений звеньев труб отв. 2,0 м
3.501.1-177.93.0-3-07 Трубы под автомобильную дорогу. Подбор сечений звеньев труб отв. 2,5 м
3.501.1-177.93.0-3-08 Трубы под автомобильную дорогу. Подбор сечений звеньев труб отв. 3,0 м
3.501.1-177.93.0-3-09 Трубы под автомобильную дорогу. Подбор сечений звеньев труб отв. 4,0 м
3.501.1-177.93.0-3-10 Трубы под автомобильную дорогу. Подбор сечений повышенных звеньев труб отв. 2,0 м и 2,5 м
3.501.1-177.93.0-3-11 Трубы под железную дорогу. Нагрузки на звенья труб
3.501.1-177.93.0-3-12 Трубы под железную дорогу. Нагрузки на звенья труб. Скальные основания и свайные фундаменты
3.501.1-177.93.0-3-13 Трубы под железную дорогу. Нагрузки на звенья труб для особых условий работы
3.501.1-177.93.0-3-14 Трубы под железную дорогу. Нагрузки на повышенные звенья труб
3.501.1-177.93.0-3-15 Трубы под железную дорогу. Подбор сечений звеньев труб отв. 1,5 м
3.501.1-177.93.0-3-16 Трубы под железную дорогу. Подбор сечений звеньев труб отв. 2,0 м
3.501.1-177.93.0-3-17 Трубы под железную дорогу. Подбор сечений звеньев труб отв. 2,5 м
3.501.1-177.93.0-3-18 Трубы под железную дорогу. Подбор сечений звеньев труб отв. 3,0 м
3.501.1-177.93.0-3-19 Трубы под железную дорогу. Подбор сечений звеньев труб отв. 4,0 м
3.501.1-177.93.0-3-20 Трубы под железную дорогу. Подбор сечений повышенных звеньев труб отв. 1,5; 2,0 и 2,5 м
3.501.1-177.93.0-3-21 Расчет оголовков труб на выпучивание
3.501.1-177.93.0-3-22 Графики давления на грунт под подошвой фундамента труб
3.501.1-177.93.0-3-23 Гидравлические расчеты
3.501.1-177.93.0-3-24 Гидравлические расчеты. Графики водопропускной способности труб
3.501.1-177.93.0-3-25 Рекомендации по расчету устойчивости откосов земляного полотна
3.501.1-177.93.0-3-26 Схема засыпки трубы
3.501.1-177.93.0-3-27 Конструкция гидроизоляции
3.501.1-177.93.0-3-28 Защитная стенка из асбестоцементных плит
3.501.1-177.93.0-3-29 Укрепление монолитны бетоном. Конструкция укреплений
3.501.1-177.93.0-3-30 Укрепление монолитным бетоном. Ведомость объемов работ
3.501.1-177.93.0-3-31 Укрепление сборными блоками П-1. Конструкция укреплений
3.501.1-177.93.0-3-32 Укрепление сборными блоками П-1. Ведомость объемов работ
3.501.1-177.93.0-3-33 Укрепление сборными блоками ГП. Конструкция укреплений
3.501.1-177.93.0-3-34 Укрепление сборными блоками ГП. Ведомость объемов работ
3.501.1-177.93.0-3-35 Укрепление каменной наброской
3.501.1-177.93.0-3-36 Укрепление у оголовков с повышенным входным звеном. Конструкция укреплений
3.501.1-177.93.0-3-37 Укрепление у оголовков с повышенным входным звеном. Ведомость объемов работ
3.501.1-177.93.0-3-38 Конструкция конца укрепления
3.501.1-177.93.0-3-39 Спецификация блоков средней части труб из звеньев длиной 1,0 м
3.501.1-177.93.0-3-40 Спецификация блоков средней части труб из звеньев длиной 2,0 м
3.501.1-177.93.0-3-41 Ведомость объемов работ на 1 п.м средней части труб
3.501.1-177.93.0-3-42 Средняя часть трубы
3.501.1-177.93.0-3-43 Спецификация блоков оголовков труб с нормальным звеном
3.501.1-177.93.0-3-44 Ведомость объемов работ на оголовок с нормальным звеном
3.501.1-177.93.0-3-45 Оголовки труб отв. 1,5; 2,0 и 2,5 м с нормальным звеном
3.501.1-177.93.0-3-46 Оголовки труб отв. 3,0 и 4,0 м с нормальным звеном
3.501.1-177.93.0-3-47 Пример оголовка трубы отв. 1,5 м с нормальным звеном при глубине промерзания 2,0 м
3.501.1-177.93.0-3-48 Пример оголовка трубы отв. 3,0 м при глубине промерзания 4,0 м
3.501.1-177.93.0-3-49 Оголовки труб для сейсмических районов
3.501.1-177.93.0-3-50 Спецификация блоков оголовков труб с повышенным звеном
3.501.1-177.93.0-3-51 Ведомость объемов работ на оголовок с повышенным звеном
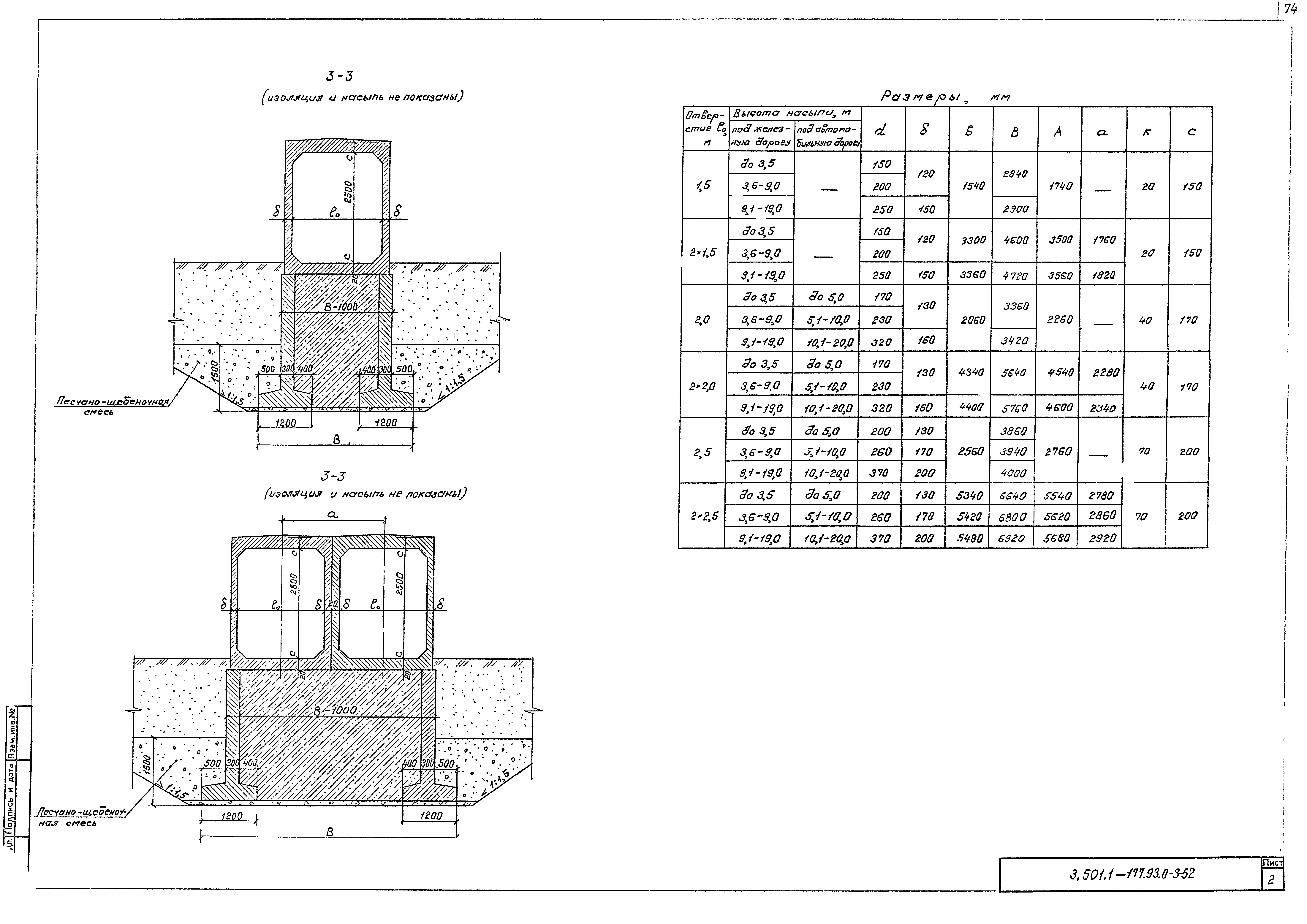
3.501.1-177.93.0-3-52 Оголовки труб отв. 1,5; 2,0 и 2,5 м с повышенным звеном
3.501.1-177.93.0-3-53 Омоноличивание стыков откосных стенок
3.501.1-177.93.0-3-54 Пример конструкции трубы отв. 1,5 м под железную дорогу
3.501.1-177.93.0-3-55 Пример конструкции трубы отв. 3,0 м под автомобильную дорогу
3.501.1-177.93.0-3-56 Пример конструкции трубы отв. 1,5 м на свайном фундаменте под железную дорогу
3.501.1-177.93.0-3-57 Пример конструкции трубы для непучинистых грунтов основания
Разработан: Ленгипротрансмост
Утверждён:24.07.1990 Минтрансстрой (Mintransstroy АВ-294)
Расположен в:Техническая документация Строительство Справочные документы Типовые строительные конструкции, изделия и узлы Общероссийский строительный каталог Строительные конструкции, изделия и узлы зданий и сооружений для всех видов строительства Конструкции и изделия сооружений и оборудования зданий Надземные сооружения Конструкции и сооружения транспорта Дорожные водопропускные и водоотводные сооружения
Заменяет собой:
Чем заменён:
  • Шифр 2119 «Трубы водопропускные железобетонные прямоугольные сборные для железных и автомобильных дорог»
Серия 3.501.1-177.93Серия 3.501.1-177.93Серия 3.501.1-177.93Серия 3.501.1-177.93Серия 3.501.1-177.93Серия 3.501.1-177.93Серия 3.501.1-177.93Серия 3.501.1-177.93Серия 3.501.1-177.93Серия 3.501.1-177.93Серия 3.501.1-177.93Серия 3.501.1-177.93Серия 3.501.1-177.93Серия 3.501.1-177.93Серия 3.501.1-177.93Серия 3.501.1-177.93Серия 3.501.1-177.93Серия 3.501.1-177.93Серия 3.501.1-177.93Серия 3.501.1-177.93Серия 3.501.1-177.93Серия 3.501.1-177.93Серия 3.501.1-177.93Серия 3.501.1-177.93Серия 3.501.1-177.93Серия 3.501.1-177.93Серия 3.501.1-177.93Серия 3.501.1-177.93Серия 3.501.1-177.93Серия 3.501.1-177.93Серия 3.501.1-177.93Серия 3.501.1-177.93Серия 3.501.1-177.93Серия 3.501.1-177.93Серия 3.501.1-177.93Серия 3.501.1-177.93Серия 3.501.1-177.93Серия 3.501.1-177.93Серия 3.501.1-177.93Серия 3.501.1-177.93Серия 3.501.1-177.93Серия 3.501.1-177.93Серия 3.501.1-177.93Серия 3.501.1-177.93Серия 3.501.1-177.93Серия 3.501.1-177.93Серия 3.501.1-177.93Серия 3.501.1-177.93Серия 3.501.1-177.93Серия 3.501.1-177.93Серия 3.501.1-177.93Серия 3.501.1-177.93Серия 3.501.1-177.93Серия 3.501.1-177.93Серия 3.501.1-177.93Серия 3.501.1-177.93Серия 3.501.1-177.93Серия 3.501.1-177.93Серия 3.501.1-177.93Серия 3.501.1-177.93Серия 3.501.1-177.93Серия 3.501.1-177.93Серия 3.501.1-177.93Серия 3.501.1-177.93Серия 3.501.1-177.93Серия 3.501.1-177.93Серия 3.501.1-177.93Серия 3.501.1-177.93Серия 3.501.1-177.93Серия 3.501.1-177.93Серия 3.501.1-177.93Серия 3.501.1-177.93Серия 3.501.1-177.93Серия 3.501.1-177.93Серия 3.501.1-177.93Серия 3.501.1-177.93Серия 3.501.1-177.93Серия 3.501.1-177.93Серия 3.501.1-177.93Серия 3.501.1-177.93Серия 3.501.1-177.93Серия 3.501.1-177.93Серия 3.501.1-177.93Серия 3.501.1-177.93Серия 3.501.1-177.93

© 2013 Ёшкин Кот :-) Карта сайта