Информационная система
«Ёшкин Кот»

Скачать базу одним архивом
Скачать обновления
История создания базы
Карта сайта

Скачать Серия 3.503.1-101 Выпуск 1. Изделия. Рабочие чертежи

Дата актуализации: 10.08.2017

Серия 3.503.1-101

Выпуск 1. Изделия. Рабочие чертежи

Обозначение: Серия 3.503.1-101
Обозначение англ: Series 3.503.1-101
Статус:не определен законодательством
Название рус.:Выпуск 1. Изделия. Рабочие чертежи
Дата добавления в базу:01.09.2013
Дата актуализации:05.05.2017
Дата введения:01.01.1992
Оглавление:3.503.1-101.1-ТТ Технические требования
3.503.1-101.1-1 Деформационный шов 3К8 с резиновым компенсатором К-8. Монтажный пакет МП-3К8-4,0 … МП-3К8-6,0
3.503.1-101.1-2 Монтажный пакет МП-3К8-4,0 … МП-3К8-6,0. Спецификация
3.503.1-101.1-3 Деформационный шов 2К8, 3К8 с резиновым компенсатором К-8. Стык монтажных пакетов
3.503.1-101.1-4 Деформационный шов 2К8, 3К8 с резиновым компенсатором К-8. Узлы
3.503.1-101.1-5 Накладка
3.503.1-101.1-6 Буш
3.503.1-101.1-7 Столик амортизатора
3.503.1-101.1-8 Упор нижней опорной части
3.503.1-101.1-9 Верхняя опорная часть
3.503.1-101.1-10 Нижняя опорная часть
3.503.1-101.1-11 Амортизатор
3.503.1-101.1-12 Деформационный шов 3К8 с резиновым компенсатором К-8. Окаймление ОК-3К8-4,0
3.503.1-101.1-13 Деформационный шов 3К8 с резиновым компенсатором К-8. Окаймление ОК-3К8-5,0
3.503.1-101.1-14 Деформационный шов 3К8 с резиновым компенсатором К-8. Окаймление ОК-3К8-6,0
3.503.1-101.1-15 Окаймление "ОК-3К8-4,0" … ОК-3К8-6,0. Спецификация
3.503.1-101.1-16 Днище ниши
3.503.1-101.1-17 Ребро жесткости
3.503.1-101.1-18 Нижний лист
3.503.1-101.1-19 Нижний лист
3.503.1-101.1-20 Крышка ниши
3.503.1-101.1-21 Кожух ниши
3.503.1-101.1-22 Лист окаймления
3.503.1-101.1-23 Лист окаймления
3.503.1-101.1-24 Упор опорной части
3.503.1-101.1-25РС Окаймление ОК-3К8-4,0 … ОК-3К8-6,0. Ведомость расхода стали
3.503.1-101.1-26 Деформационный шов 3К8 с резиновым компенсатором К-8. Распределитель Р-3К8-4,0 … Р-3К8-6.0
3.503.1-101.1-27 Распределитель Р-3К8-4,0 … Р-3К8-6.0. Спецификация
3.503.1-101.1-28РС Распределитель Р-3К8-4,0 … Р-3К8-6.0. Ведомость расхода стали
3.503.1-101.1-29 Поперечная балка
3.503.1-101.1-30 Опорная пластина поперечной балки
3.503.1-101.1-31 Монтажный пакет МП-3К8-4,0 … МП-3К8-6,0. Ведомость расхода материалов
3.503.1-101.1-32 Деформационный шов 2К8 с резиновым компенсатором К-8. Монтажный пакет МП-2К8-4,0 … МП-2К8-6,0
3.503.1-101.1-33 Монтажный пакет МП-2К8-4,0 … МП-2К8-6,0. Спецификация
3.503.1-101.1-34 Упор амортизатора
3.503.1-101.1-35 Упор нижней опорной части
3.503.1-101.1-36 Деформационный шов 2К8 с резиновым компенсатором К-8. Окаймление ОК-2К8-4,0
3.503.1-101.1-37 Деформационный шов 2К8 с резиновым компенсатором К-8. Окаймление ОК-2К8-5,0
3.503.1-101.1-38 Деформационный шов 2К8 с резиновым компенсатором К-8. Окаймление ОК-2К8-6,0
3.503.1-101.1-39 Окаймление ОК-2К8-4,0 … ОК-2К8-6,0. Спецификация
3.503.1-101.1-40 Днище ниши
3.503.1-101.1-41 Ребро жесткости
3.503.1-101.1-42 Нижний лист
3.503.1-101.1-43 Нижний лист
3.503.1-101.1-44 Кожух ниши
3.503.1-101.1-45 Лист окаймления
3.503.1-101.1-46 Лист окаймления
3.503.1-101.1-47 Скоба упора амортизатора
3.503.1-101.1-48 Анкер
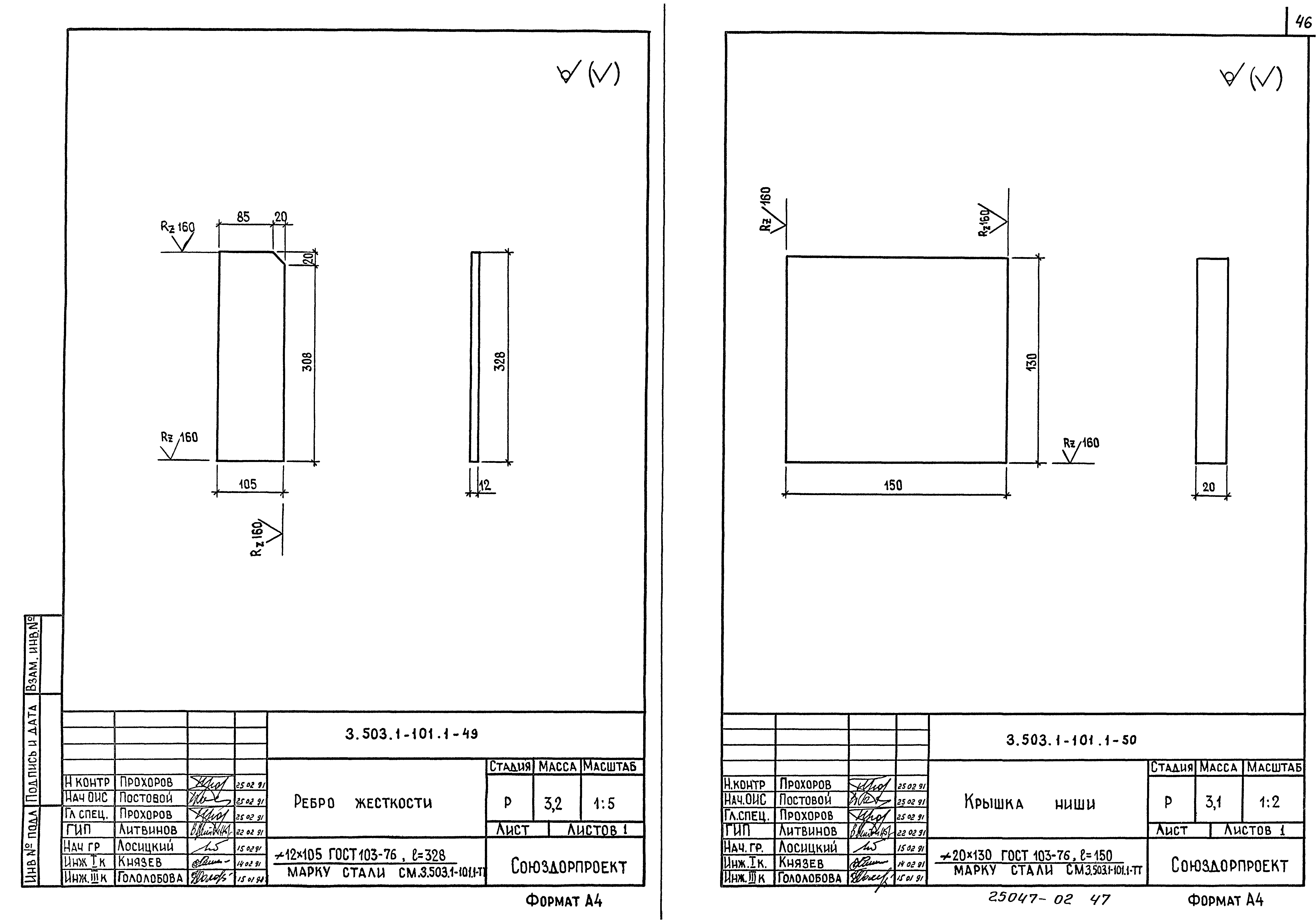
3.503.1-101.1-49 Ребро жесткости
3.503.1-101.1-50 Крышка ниши
3.503.1-101.1-51 Направляющая
3.503.1-101.1-52 Упор опорной части
3.503.1-101.1-53РС Окаймление ОК-2К8-4,0 … ОК-2К8-6,0. Ведомость расхода стали
3.503.1-101.4-54 Деформационный шов 2К8 с резиновым компенсатором К-8. Распределитель Р-2К8-4.0 … Р-2К8-6,0
3.503.1-101.4-55 Распределитель Р-2К8-4,0 … Р-2К8-6,0. Спецификация
3.503.1-101.4-56 РС Распределитель Р-2К8-4,0 … Р-2К8-6,0. Ведомость расхода стали
3.503.1-101.4-57 Продольная балка
3.503.1-101.4-58 Поперечная балка
3.503.1-101.4-59 Направляющая пластина поперечной балки
3.503.1-101.4-60 Упор амортизатора
3.503.1-101.4-61 Лист усиления продольной балки
3.503.1-101.4-62 Опорная пластина поперечной балки
3.503.1-101.4-63 Монтажный пакет МП-2К8-4,0 … МП-2К8-6,0. Ведомость расхода материалов
3.503.1-101.4-64 Деформационный шов с резиновым компенсатором К-8. Окаймление ОК1-1К8-4,0
3.503.1-101.4-65 Деформационный шов с резиновым компенсатором К-8. Окаймление ОК1-1К8-5,0
3.503.1-101.4-66 Деформационный шов с резиновым компенсатором К-8. Окаймление ОК1-1К8-6,0
3.503.1-101.4-67 Окаймление ОК1-1К8-4,0 … ОК1-1К8-6,0. Спецификация
3.503.1-101.4-68РС Окаймление ОК1-1К8-4,0 … ОК1-1К8-6,0. Ведомость расхода стали
3.503.1-101.4-69 Окаймление ОК2-1К8-4,0 … ОК2-1К8-6,0. Спецификация
3.503.1-101.4-70РС Окаймление ОК2-1К8-4,0 … ОК2-1К8-6,0.Ведомость расхода стали
3.503.1-101.4-71 Уголок УГ-1 … УГ-3
3.503.1-101.4-72 Диафрагма Д-1
3.503.1-101.1-73 Анкер А-1
3.503.1-101.1-74 Фиксатор компенсатора
3.503.1-101.1-75 Заклинивающая полоса
3.503.1-101.1-76 Резиновый компенсатор К-8-70м
3.503.1-101.1-77 Компенсатор К-1
Разработан: Союздорпроект Минтрансстроя
Утверждён:06.05.1991 Минтрансстрой СССР (USSR Mintransstroy АВ-83)
Издан: АПП ЦИТП (1991 г. )
Расположен в:Техническая документация Строительство Справочные документы Типовые строительные конструкции, изделия и узлы Общероссийский строительный каталог Строительные конструкции, изделия и узлы зданий и сооружений для всех видов строительства Конструкции и изделия сооружений и оборудования зданий Надземные сооружения Конструкции и сооружения транспорта Пролетные строения мостов, мосты и путепроводы
Серия 3.503.1-101Серия 3.503.1-101Серия 3.503.1-101Серия 3.503.1-101Серия 3.503.1-101Серия 3.503.1-101Серия 3.503.1-101Серия 3.503.1-101Серия 3.503.1-101Серия 3.503.1-101Серия 3.503.1-101Серия 3.503.1-101Серия 3.503.1-101Серия 3.503.1-101Серия 3.503.1-101Серия 3.503.1-101Серия 3.503.1-101Серия 3.503.1-101Серия 3.503.1-101Серия 3.503.1-101Серия 3.503.1-101Серия 3.503.1-101Серия 3.503.1-101Серия 3.503.1-101Серия 3.503.1-101Серия 3.503.1-101Серия 3.503.1-101Серия 3.503.1-101Серия 3.503.1-101Серия 3.503.1-101Серия 3.503.1-101Серия 3.503.1-101Серия 3.503.1-101Серия 3.503.1-101Серия 3.503.1-101Серия 3.503.1-101Серия 3.503.1-101Серия 3.503.1-101Серия 3.503.1-101Серия 3.503.1-101Серия 3.503.1-101Серия 3.503.1-101Серия 3.503.1-101Серия 3.503.1-101Серия 3.503.1-101Серия 3.503.1-101Серия 3.503.1-101Серия 3.503.1-101Серия 3.503.1-101Серия 3.503.1-101Серия 3.503.1-101Серия 3.503.1-101Серия 3.503.1-101Серия 3.503.1-101Серия 3.503.1-101Серия 3.503.1-101Серия 3.503.1-101Серия 3.503.1-101Серия 3.503.1-101Серия 3.503.1-101Серия 3.503.1-101Серия 3.503.1-101Серия 3.503.1-101Серия 3.503.1-101Серия 3.503.1-101

© 2013 Ёшкин Кот :-) Карта сайта