Информационная система
«Ёшкин Кот»

Скачать базу одним архивом
Скачать обновления
История создания базы
Карта сайта

Скачать Серия 3.503.1-101 Выпуск 0. Материалы для проектирования. Конструкции и узлы. Рабочие чертежи

Дата актуализации: 10.08.2017

Серия 3.503.1-101

Выпуск 0. Материалы для проектирования. Конструкции и узлы. Рабочие чертежи

Обозначение: Серия 3.503.1-101
Обозначение англ: Series 3.503.1-101
Статус:не определен законодательством
Название рус.:Выпуск 0. Материалы для проектирования. Конструкции и узлы. Рабочие чертежи
Дата добавления в базу:01.09.2013
Дата актуализации:05.05.2017
Дата введения:01.01.1992
Оглавление:3.503.1-101.0-ПЗ Пояснительная записка
3.503.1-101.0-1 Материалы для конструкций деформационных швов
3.503.1-101.0-2 Характеристики изоляционных материалов
3.503.1-101.0-3 Гидроизоляция проезжей части битумно-бутилкаучуковая мастичная
3.503.1-101.0-4 Гидроизоляция проезжей части битумная мастичная армированная
3.503.1-101.0-5 Гидроизоляция проезжей части оклеечная
3.503.1-101.0-6 Гидроизоляция проезжей части из полиэтиленовой пленки
3.503.1-101.0-7 Гидроизоляция проезжей части из плотного бетона
3.503.1-101.0-8 Гидроизоляция проезжей части. Узлы 1, 2.
3.503.1-101.0-9 Гидроизоляция проезжей части. Узлы 3, 4.
3.503.1-101.0-10 Гидроизоляция проезжей части. Узлы 5, 6
3.503.1-101.0-11 Деформационный шов закрытого типа с неармированным асфальтобетонным покрытием
3.503.1-101.0-12 Деформационный шов закрытого типа с неармированным асфальтобетонным покрытием. Спецификация
3.503.1-101.0-13 Деформационный шов закрытого типа с неармированным асфальтобетонным покрытием. Ведомость расхода материалов
3.503.1-101.0-14 Деформационный шов закрытого типа
3.503.1-101.0-15 Деформационный шов закрытого типа. Спецификация
3.503.1-101.0-16 Деформационный шов закрытого типа. Ведомость расхода материалов
3.503.1-101.0-17 Деформационный шов с резиновым компенсатором К-8
3.503.1-101.0-18 Деформационный шов с резиновым компенсатором К-8. Спецификация
3.503.1-101.0-19 Деформационный шов с резиновым компенсатором К-8. Ведомость расхода материалов
3.503.1-101.0-20 Деформационный шов с резиновым компенсатором К-8. Вариант
3.503.1-101.0-21 Деформационный шов с резиновым компенсатором К-8. Вариант. Спецификация
3.503.1-101.0-22 Деформационный шов с резиновым компенсатором К-8. Вариант. Ведомость расхода материалов
3.503.1-101.0-23 Деформационный шов 2К8 с резиновым компенсатором К-8
3.503.1-101.0-24 Деформационный шов 2К8 с резиновым компенсатором К-8. Спецификация
3.503.1-101.0-25 Деформационный шов 2К8 с резиновым компенсатором К-8. Ведомость расхода материалов
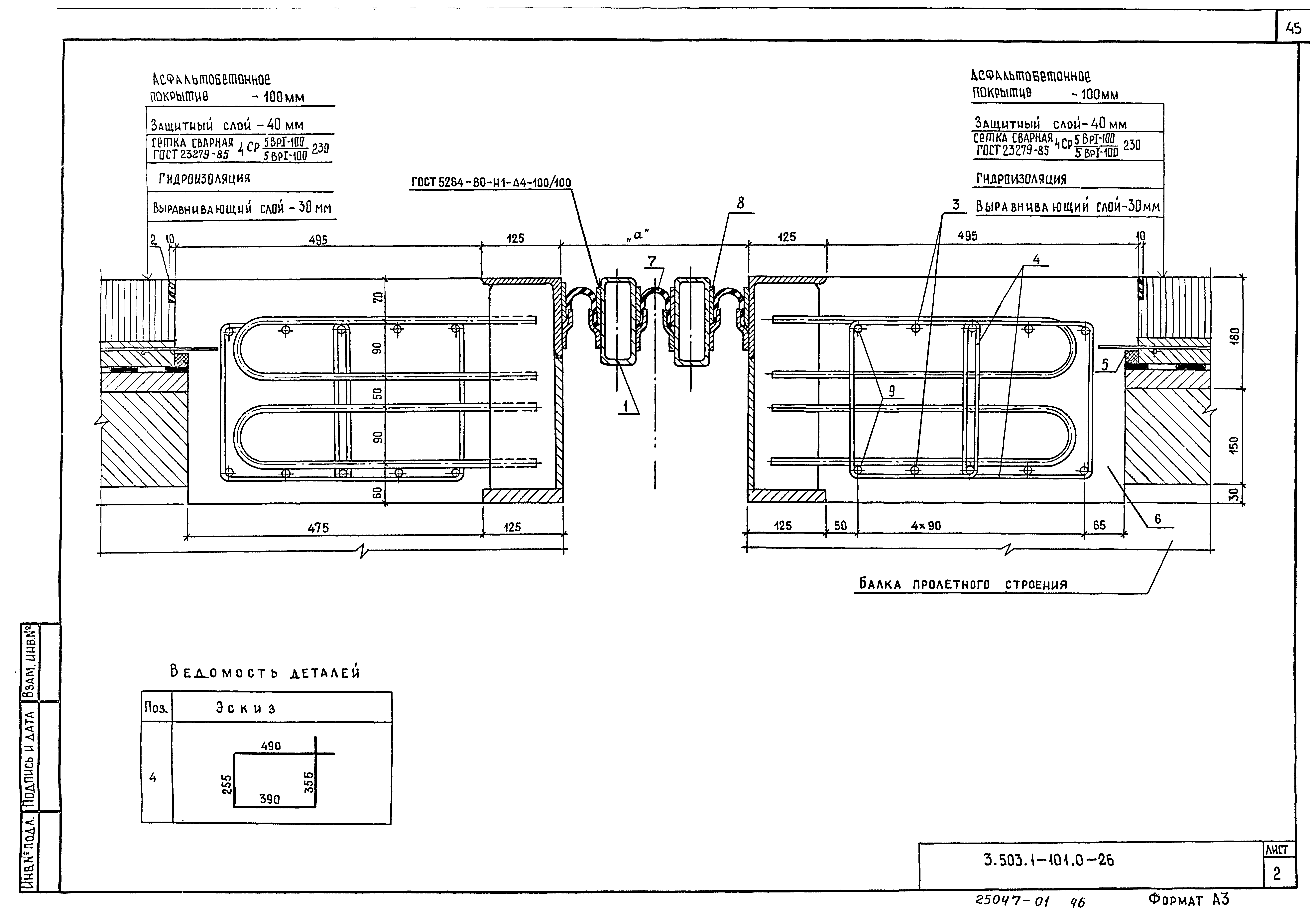
3.503.1-101.0-26 Деформационный шов 3К8 с резиновым компенсатором К-8
3.503.1-101.0-27 Деформационный шов 3К8 с резиновым компенсатором К-8. Спецификация
3.503.1-101.0-28 Деформационный шов 3К8 с резиновым компенсатором К-8. Ведомость расхода материалов
Разработан: Союздорпроект Минтрансстроя
Утверждён:06.05.1991 Минтрансстрой СССР (USSR Mintransstroy АВ-83)
Издан: АПП ЦИТП (1991 г. )
Расположен в:Техническая документация Строительство Справочные документы Типовые строительные конструкции, изделия и узлы Общероссийский строительный каталог Строительные конструкции, изделия и узлы зданий и сооружений для всех видов строительства Конструкции и изделия сооружений и оборудования зданий Надземные сооружения Конструкции и сооружения транспорта Пролетные строения мостов, мосты и путепроводы
Серия 3.503.1-101Серия 3.503.1-101Серия 3.503.1-101Серия 3.503.1-101Серия 3.503.1-101Серия 3.503.1-101Серия 3.503.1-101Серия 3.503.1-101Серия 3.503.1-101Серия 3.503.1-101Серия 3.503.1-101Серия 3.503.1-101Серия 3.503.1-101Серия 3.503.1-101Серия 3.503.1-101Серия 3.503.1-101Серия 3.503.1-101Серия 3.503.1-101Серия 3.503.1-101Серия 3.503.1-101Серия 3.503.1-101Серия 3.503.1-101Серия 3.503.1-101Серия 3.503.1-101Серия 3.503.1-101Серия 3.503.1-101Серия 3.503.1-101Серия 3.503.1-101Серия 3.503.1-101Серия 3.503.1-101Серия 3.503.1-101Серия 3.503.1-101Серия 3.503.1-101Серия 3.503.1-101Серия 3.503.1-101Серия 3.503.1-101Серия 3.503.1-101Серия 3.503.1-101Серия 3.503.1-101Серия 3.503.1-101Серия 3.503.1-101Серия 3.503.1-101Серия 3.503.1-101Серия 3.503.1-101Серия 3.503.1-101Серия 3.503.1-101Серия 3.503.1-101Серия 3.503.1-101Серия 3.503.1-101

© 2013 Ёшкин Кот :-) Карта сайта