Информационная система
«Ёшкин Кот»

Скачать базу одним архивом
Скачать обновления
История создания базы
Карта сайта

Скачать Серия 3.503.1-96 Выпуск 0-2. Лестничные сходы. Материалы для проектирования

Дата актуализации: 10.08.2017

Серия 3.503.1-96

Выпуск 0-2. Лестничные сходы. Материалы для проектирования

Обозначение: Серия 3.503.1-96
Обозначение англ: Series 3.503.1-96
Статус:не определен законодательством
Название рус.:Выпуск 0-2. Лестничные сходы. Материалы для проектирования
Дата добавления в базу:01.09.2013
Дата актуализации:05.05.2017
Дата введения:01.11.1991
Оглавление:3.503.1-96.0-2-ПЗ Пояснительная записка
3.503.1-96.0-2-1НИ Номенклатура изделий
3.503.1-96.0-2-2 План-схема сходов. Высота насыпи Н=4 м, ширина марша b=0,75 м
3.503.1-96.0-2-3 План-схема сходов. Высота насыпи Н=5 м, ширина марша b=0,75 м
3.503.1-96.0-2-4 План-схема сходов. Высота насыпи Н=6 м, ширина марша b=0,75 м
3.503.1-96.0-2-5 План-схема сходов. Высота насыпи Н=7 м, ширина марша b=0,75 м
3.503.1-96.0-2-6 План-схема сходов. Высота насыпи Н=8 м, ширина марша b=0,75 м
3.503.1-96.0-2-7 План-схема сходов. Высота насыпи Н=9 м, ширина марша b=0,75 м
3.503.1-96.0-2-8 План-схема сходов. Высота насыпи Н=10 м, ширина марша b=0,75 м
3.503.1-96.0-2-9 План-схема сходов. Высота насыпи Н=11 м, ширина марша b=0,75 м
3.503.1-96.0-2-10 План-схема сходов. Высота насыпи Н=12 м, ширина марша b=0,75 м
3.503.1-96.0-2-11 План-схема сходов. Высота насыпи Н=4 м, ширина марша b=1,50 м
3.503.1-96.0-2-12 План-схема сходов. Высота насыпи Н=5 м, ширина марша b=1,50 м
3.503.1-96.0-2-13 План-схема сходов. Высота насыпи Н=6 м, ширина марша b=1,50 м
3.503.1-96.0-2-14 План-схема сходов. Высота насыпи Н=7 м, ширина марша b=1,50 м
3.503.1-96.0-2-15 План-схема сходов. Высота насыпи Н=8 м, ширина марша b=1,50 м
3.503.1-96.0-2-16 План-схема сходов. Высота насыпи Н=9 м, ширина марша b=1,50 м
3.503.1-96.0-2-17 План-схема сходов. Высота насыпи Н=10 м, ширина марша b=1,50 м
3.503.1-96.0-2-18 План-схема сходов. Высота насыпи Н=11 м, ширина марша b=1,50 м
3.503.1-96.0-2-19 План-схема сходов. Высота насыпи Н=12 м, ширина марша b=1,50 м
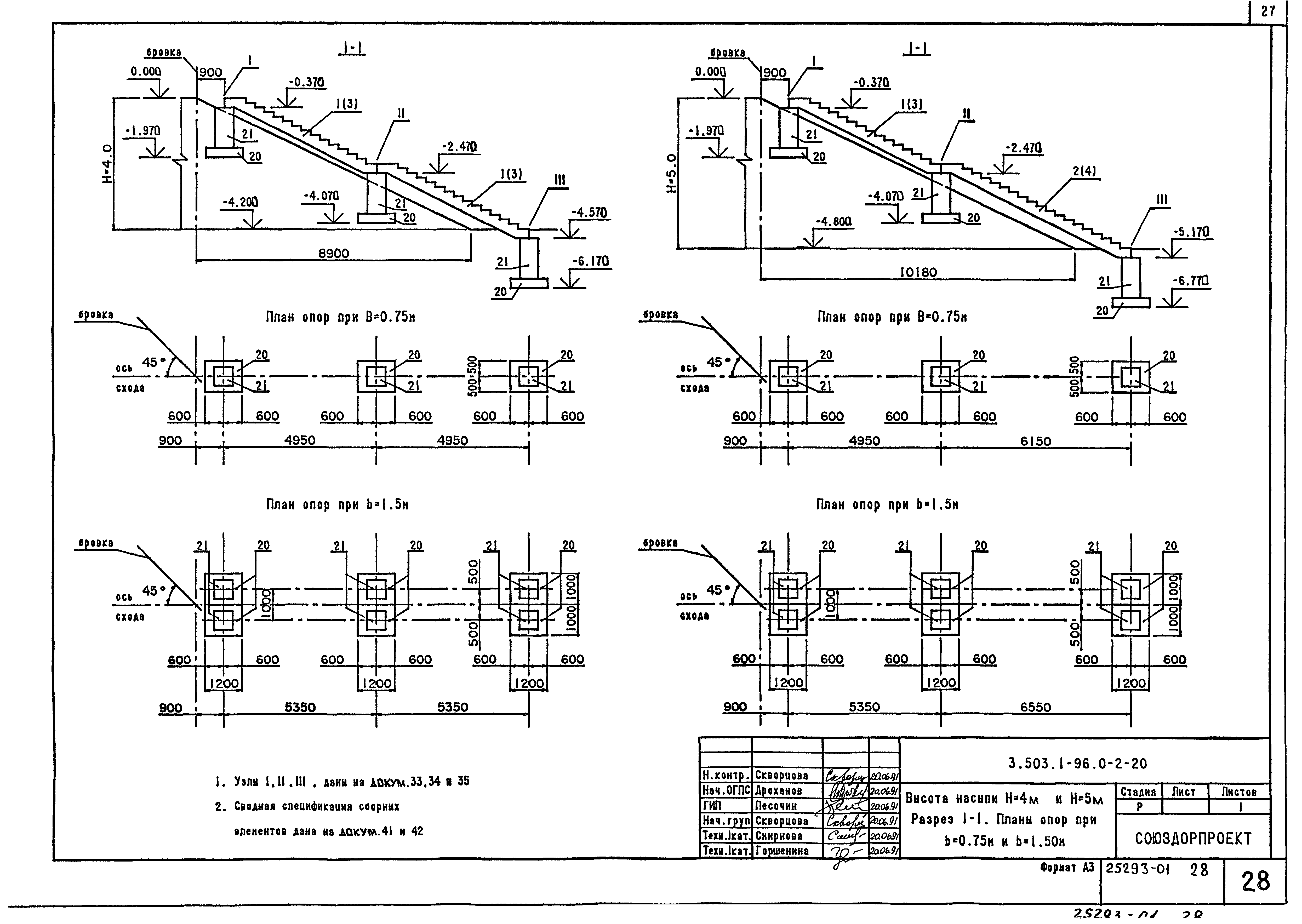
3.503.1-96.0-2-20 Высота насыпи Н=4 м и Н=5 м. Разрез 1-1. Планы опор при b=0,75 м и b=1,50 м
3.503.1-96.0-2-21 Высота насыпи Н=6 м. Разрез 1-1. Планы опор при b=0,75 м и b=1,50 м
3.503.1-96.0-2-22 Высота насыпи Н=7 м. Разрез 1-1. Планы опор при b=0,75 м и b=1,50 м
3.503.1-96.0-2-23 Высота насыпи Н=8 м. Разрез 1-1. План опор при b=0,75 м
3.503.1-96.0-2-24 Высота насыпи Н=8 м. Разрез 1-1. План опор при b=1,50 м
3.503.1-96.0-2-25 Высота насыпи Н=9 м. Разрез 1-1. План опор при b=0,75 м
3.503.1-96.0-2-26 Высота насыпи Н=9 м. Разрез 1-1. План опор при b=1,50 м
3.503.1-96.0-2-27 Высота насыпи Н=10 м. Разрез 1-1. План опор при b=0,75 м
3.503.1-96.0-2-28 Высота насыпи Н=10 м. Разрез 1-1. План опор при b=1,50 м
3.503.1-96.0-2-29 Высота насыпи Н=11 м. Разрез 1-1. План опор при b=0,75 м
3.503.1-96.0-2-30 Высота насыпи Н=11 м. Разрез 1-1. План опор при b=1,50 м
3.503.1-96.0-2-31 Высота насыпи Н=12 м. Разрез 1-1. План опор при b=0,75 м
3.503.1-96.0-2-32 Высота насыпи Н=12 м. Разрез 1-1. План опор при b=1,50 м
3.503.1-96.0-2-33 Узел I
3.503.1-96.0-2-34 Узел II
3.503.1-96.0-2-35 Узел III
3.503.1-96.0-2-36 Пролеты I, IV (ширина схода b=0,75 м). Планы, разрезы
3.503.1-96.0-2-37 Пролеты II, III (ширина схода b=0,75 м). Планы, разрезы
3.503.1-96.0-2-38 Пролеты I, IV (ширина схода b=1,50 м). Планы, разрезы
3.503.1-96.0-2-39 Пролеты II, III (ширина схода b=1,50 м). Планы, разрезы
3.503.1-96.0-2-40 Спецификация сборных элементов на один пролет
3.503.1-96.0-2-41 Сводная спецификация сборных элементов на один сход (ширина схода b=0,75 м)
3.503.1-96.0-2-42 Сводная спецификация сборных элементов на один сход (ширина схода b=1,50 м)
Разработан: Союздорпроект Минтрансстроя
Утверждён:06.05.1991 Минтрансстрой СССР (USSR Mintransstroy АВ-82)
Расположен в:Техническая документация Строительство Справочные документы Типовые строительные конструкции, изделия и узлы Общероссийский строительный каталог Строительные конструкции, изделия и узлы зданий и сооружений для всех видов строительства Конструкции и изделия сооружений и оборудования зданий Надземные сооружения Конструкции и сооружения транспорта Пролетные строения мостов, мосты и путепроводы
Заменяет собой:
Серия 3.503.1-96Серия 3.503.1-96Серия 3.503.1-96Серия 3.503.1-96Серия 3.503.1-96Серия 3.503.1-96Серия 3.503.1-96Серия 3.503.1-96Серия 3.503.1-96Серия 3.503.1-96Серия 3.503.1-96Серия 3.503.1-96Серия 3.503.1-96Серия 3.503.1-96Серия 3.503.1-96Серия 3.503.1-96Серия 3.503.1-96Серия 3.503.1-96Серия 3.503.1-96Серия 3.503.1-96Серия 3.503.1-96Серия 3.503.1-96Серия 3.503.1-96Серия 3.503.1-96Серия 3.503.1-96Серия 3.503.1-96Серия 3.503.1-96Серия 3.503.1-96Серия 3.503.1-96Серия 3.503.1-96Серия 3.503.1-96Серия 3.503.1-96Серия 3.503.1-96Серия 3.503.1-96Серия 3.503.1-96Серия 3.503.1-96Серия 3.503.1-96Серия 3.503.1-96Серия 3.503.1-96Серия 3.503.1-96Серия 3.503.1-96Серия 3.503.1-96Серия 3.503.1-96Серия 3.503.1-96Серия 3.503.1-96Серия 3.503.1-96Серия 3.503.1-96Серия 3.503.1-96Серия 3.503.1-96Серия 3.503.1-96

© 2013 Ёшкин Кот :-) Карта сайта