Информационная система
«Ёшкин Кот»

Скачать базу одним архивом
Скачать обновления
История создания базы
Карта сайта

Скачать Серия 3.503.1-96 Выпуск 1-1. Конструкции сопряжения. Сборные железобетонные элементы. Рабочие чертежи

Дата актуализации: 10.08.2017

Серия 3.503.1-96

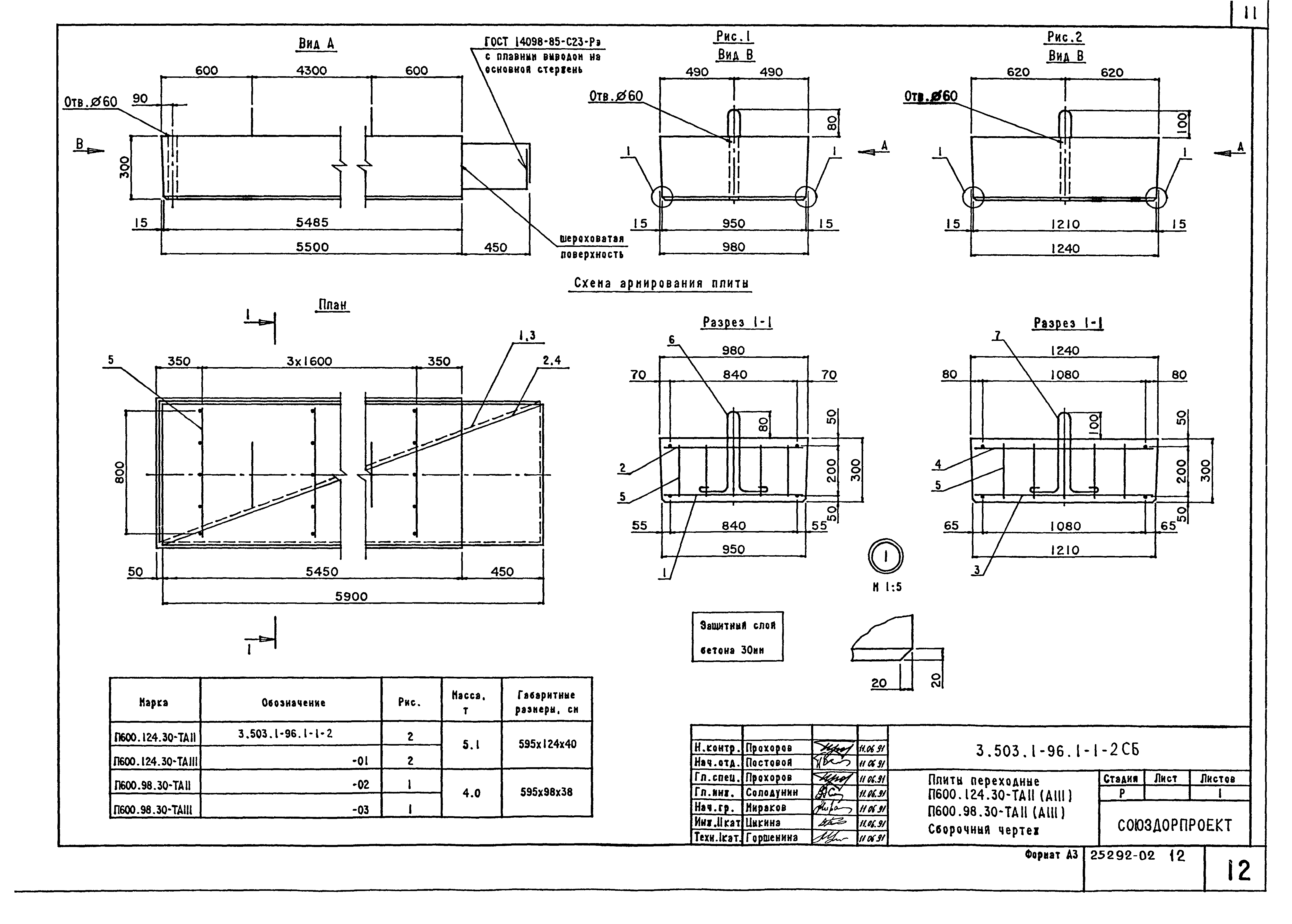
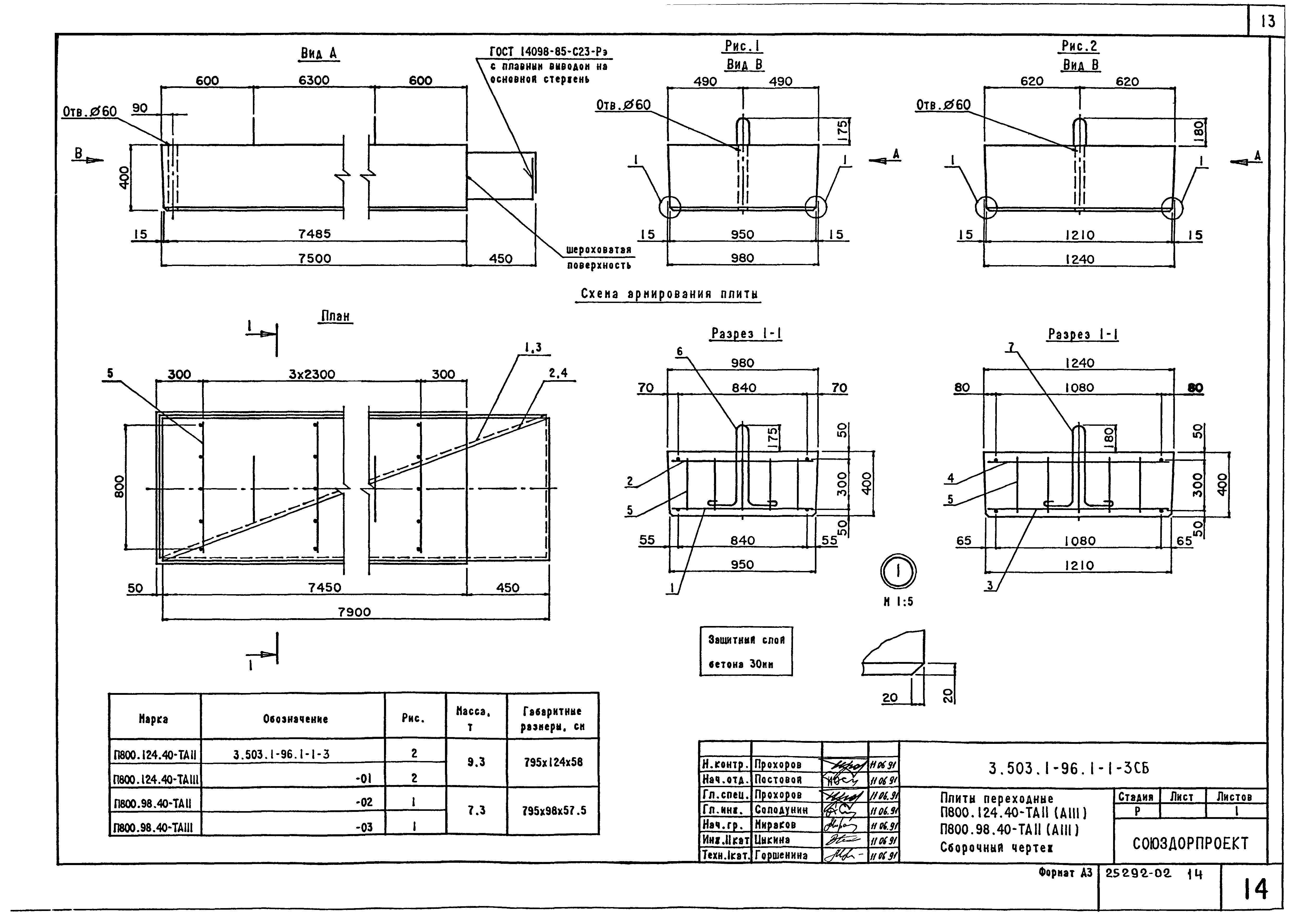
Выпуск 1-1. Конструкции сопряжения. Сборные железобетонные элементы. Рабочие чертежи

Обозначение: Серия 3.503.1-96
Обозначение англ: Series 3.503.1-96
Статус:не определен законодательством
Название рус.:Выпуск 1-1. Конструкции сопряжения. Сборные железобетонные элементы. Рабочие чертежи
Дата добавления в базу:01.09.2013
Дата актуализации:05.05.2017
Дата введения:01.11.1991
Разработан: Союздорпроект Минтрансстроя
Утверждён:06.05.1991 Минтрансстрой СССР (USSR Mintransstroy АВ-82)
Расположен в:Техническая документация Строительство Справочные документы Типовые строительные конструкции, изделия и узлы Общероссийский строительный каталог Строительные конструкции, изделия и узлы зданий и сооружений для всех видов строительства Конструкции и изделия сооружений и оборудования зданий Надземные сооружения Конструкции и сооружения транспорта Пролетные строения мостов, мосты и путепроводы
Заменяет собой:
Серия 3.503.1-96Серия 3.503.1-96Серия 3.503.1-96Серия 3.503.1-96Серия 3.503.1-96Серия 3.503.1-96Серия 3.503.1-96Серия 3.503.1-96Серия 3.503.1-96Серия 3.503.1-96Серия 3.503.1-96Серия 3.503.1-96Серия 3.503.1-96Серия 3.503.1-96Серия 3.503.1-96Серия 3.503.1-96Серия 3.503.1-96Серия 3.503.1-96Серия 3.503.1-96Серия 3.503.1-96Серия 3.503.1-96Серия 3.503.1-96Серия 3.503.1-96Серия 3.503.1-96Серия 3.503.1-96Серия 3.503.1-96Серия 3.503.1-96Серия 3.503.1-96Серия 3.503.1-96Серия 3.503.1-96Серия 3.503.1-96Серия 3.503.1-96Серия 3.503.1-96Серия 3.503.1-96Серия 3.503.1-96Серия 3.503.1-96Серия 3.503.1-96Серия 3.503.1-96Серия 3.503.1-96Серия 3.503.1-96Серия 3.503.1-96Серия 3.503.1-96Серия 3.503.1-96Серия 3.503.1-96Серия 3.503.1-96Серия 3.503.1-96Серия 3.503.1-96Серия 3.503.1-96Серия 3.503.1-96Серия 3.503.1-96Серия 3.503.1-96Серия 3.503.1-96Серия 3.503.1-96Серия 3.503.1-96Серия 3.503.1-96Серия 3.503.1-96Серия 3.503.1-96Серия 3.503.1-96Серия 3.503.1-96Серия 3.503.1-96Серия 3.503.1-96Серия 3.503.1-96Серия 3.503.1-96Серия 3.503.1-96Серия 3.503.1-96Серия 3.503.1-96Серия 3.503.1-96Серия 3.503.1-96Серия 3.503.1-96Серия 3.503.1-96Серия 3.503.1-96Серия 3.503.1-96Серия 3.503.1-96Серия 3.503.1-96Серия 3.503.1-96Серия 3.503.1-96Серия 3.503.1-96Серия 3.503.1-96Серия 3.503.1-96Серия 3.503.1-96Серия 3.503.1-96Серия 3.503.1-96Серия 3.503.1-96Серия 3.503.1-96Серия 3.503.1-96Серия 3.503.1-96Серия 3.503.1-96Серия 3.503.1-96Серия 3.503.1-96

© 2013 Ёшкин Кот :-) Карта сайта