Информационная система
«Ёшкин Кот»

Скачать базу одним архивом
Скачать обновления
История создания базы
Карта сайта

Скачать Серия 3.503.3-83 Выпуск 1. Пролетные строения. Чертежи КМ

Дата актуализации: 10.08.2017

Серия 3.503.3-83

Выпуск 1. Пролетные строения. Чертежи КМ

Обозначение: Серия 3.503.3-83
Обозначение англ: Series 3.503.3-83
Статус:действует
Название рус.:Выпуск 1. Пролетные строения. Чертежи КМ
Дата добавления в базу:01.09.2013
Дата актуализации:05.05.2017
Дата введения:20.11.1987
Оглавление:3.503.3-83.1-01ПЗ Пояснительная записка. Общие данные
3.503.3-83.1-02ПЗ Общий вид пролетного строения. Габарит Г-4,5. Основные данные
3.503.3-83.1-03ПЗ Общий вид пролетного строения. Габарит Г-8. Основные данные
3.503.3-83.1-04ПЗ Детали мостового полотна. Спецификация лесоматериала. Спецификация металлоизделий
3.503.3-83.1-05ПЗ Мостовое полотно переходного пролета
3.503.3-83.1-06ПЗ Монтаж пролетных строений надвижкой
3.503.3-83.1-07ПЗ Расчетный лист
3.503.3-83.1-08КМ Габарит Г-4,5. Общий вид металлоконструкции
3.503.3-83.1-09КМ Габарит Г-4,5. Связи поперечные в пролете. Балка домкратная
3.503.3-83.1-10КМ Габарит Г-4,5. Техническая спецификация металла. Ведомость металлоконструкции по видам профилей. Сводная ведомость монтажных болтов , гаек и шайб
3.503.3-83.1-11КМ Габарит Г-8. Общий вид металлоконструкции
3.503.3-83.1-12КМ Габарит Г-8. Связи поперечные в пролете. Балка домкратная
3.503.3-83.1-13КМ Габарит Г-8. Техническая спецификация металла. Ведомость металлоконструкции по видам профилей. Сводная ведомость монтажных болтов, гаек и шайб
3.503.3-83.1-14КМ Временный монтажный стык при надвижке пролетных строений. Опорные части
3.503.3-83.1-15КМ Временный монтажный стык при надвижке пролетных строений. Опорные части
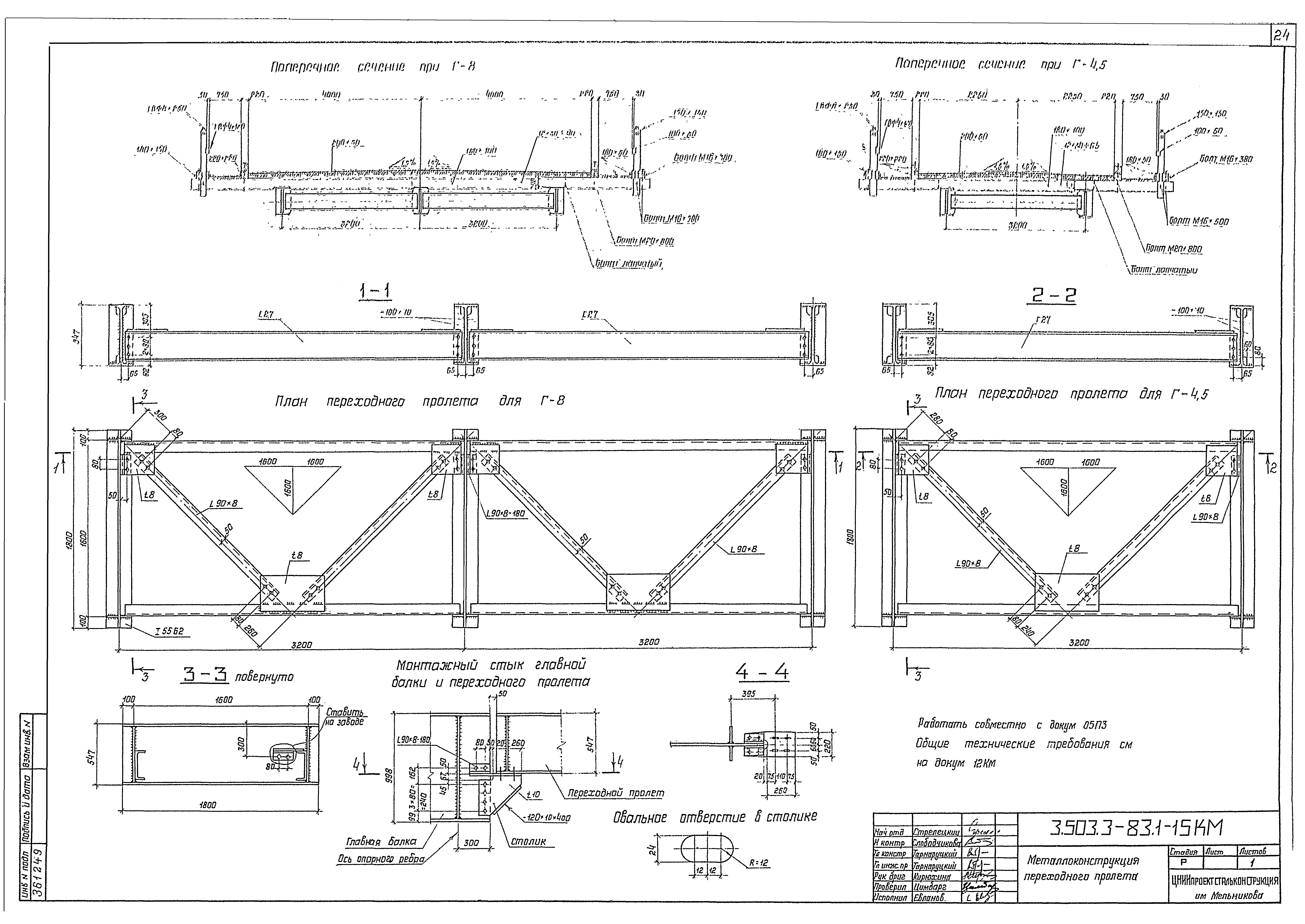
3.503.3-83.1-16КМ Габарит Г-4,5. Переходной пролет. Техническая спецификация металла. Ведомость металлоконструкции по видам профилей. Сводная ведомость монтажных болтов, гаек и шайб
3.503.3-83.1-17КМ Габарит Г-8. Переходной пролет. Техническая спецификация металла. Ведомость металлоконструкции по видам профилей. Сводная ведомость монтажных болтов, гаек и шайб
Разработан: Гипролестранс
ЦНИИпроектстальконструкция Госстроя
Утверждён:12.11.1987 Минлесбумпром СССР (USSR Minlesbumprom 182)
Расположен в:Техническая документация Строительство Справочные документы Типовые строительные конструкции, изделия и узлы Общероссийский строительный каталог Строительные конструкции, изделия и узлы зданий и сооружений для всех видов строительства Конструкции и изделия сооружений и оборудования зданий Надземные сооружения Конструкции и сооружения транспорта Пролетные строения мостов, мосты и путепроводы
Серия 3.503.3-83Серия 3.503.3-83Серия 3.503.3-83Серия 3.503.3-83Серия 3.503.3-83Серия 3.503.3-83Серия 3.503.3-83Серия 3.503.3-83Серия 3.503.3-83Серия 3.503.3-83Серия 3.503.3-83Серия 3.503.3-83Серия 3.503.3-83Серия 3.503.3-83Серия 3.503.3-83Серия 3.503.3-83Серия 3.503.3-83Серия 3.503.3-83Серия 3.503.3-83Серия 3.503.3-83Серия 3.503.3-83Серия 3.503.3-83Серия 3.503.3-83Серия 3.503.3-83Серия 3.503.3-83Серия 3.503.3-83Серия 3.503.3-83

© 2013 Ёшкин Кот :-) Карта сайта