Информационная система
«Ёшкин Кот»

Скачать базу одним архивом
Скачать обновления
История создания базы
Карта сайта

Скачать Серия 3.503.9-43/89 Выпуск 1. Металлоконструкции пролетных строений. Чертежи КМ

Дата актуализации: 10.08.2017

Серия 3.503.9-43/89

Выпуск 1. Металлоконструкции пролетных строений. Чертежи КМ

Обозначение: Серия 3.503.9-43/89
Обозначение англ: Series 3.503.9-43/89
Статус:действует
Название рус.:Выпуск 1. Металлоконструкции пролетных строений. Чертежи КМ
Дата добавления в базу:01.09.2013
Дата актуализации:05.05.2017
Дата введения:15.03.1989
Оглавление:3.503.9-43/89.1-00ТО Техническое описание
3.503.9-43/89.1-01 Техническая спецификация металла. Сводные ведомости болтов, гаек и шайб пролетного строения L=15 м, Г-8
3.503.9-43/89.1-02 Техническая спецификация металла. Сводные ведомости болтов, гаек и шайб пролетного строения L=15 м, Г-10 и Г-11,5
3.503.9-43/89.1-03 Техническая спецификация металла. Сводные ведомости болтов, гаек и шайб пролетного строения L=24 м, Г-8
3.503.9-43/89.1-04 Техническая спецификация металла. Сводные ведомости болтов, гаек и шайб пролетного строения L=24 м, Г-10 и Г-11,5
3.503.9-43/89.1-05 Техническая спецификация металла. Сводные ведомости болтов, гаек и шайб пролетного строения L=33 м, Г-8
3.503.9-43/89.1-06 Техническая спецификация металла. Сводные ведомости болтов, гаек и шайб пролетного строения L=33 м, Г-10 и Г-11,5
3.503.9-43/89.1-07 Техническая спецификация металла. Сводная ведомость болтов, гаек и шайб деформационных швов
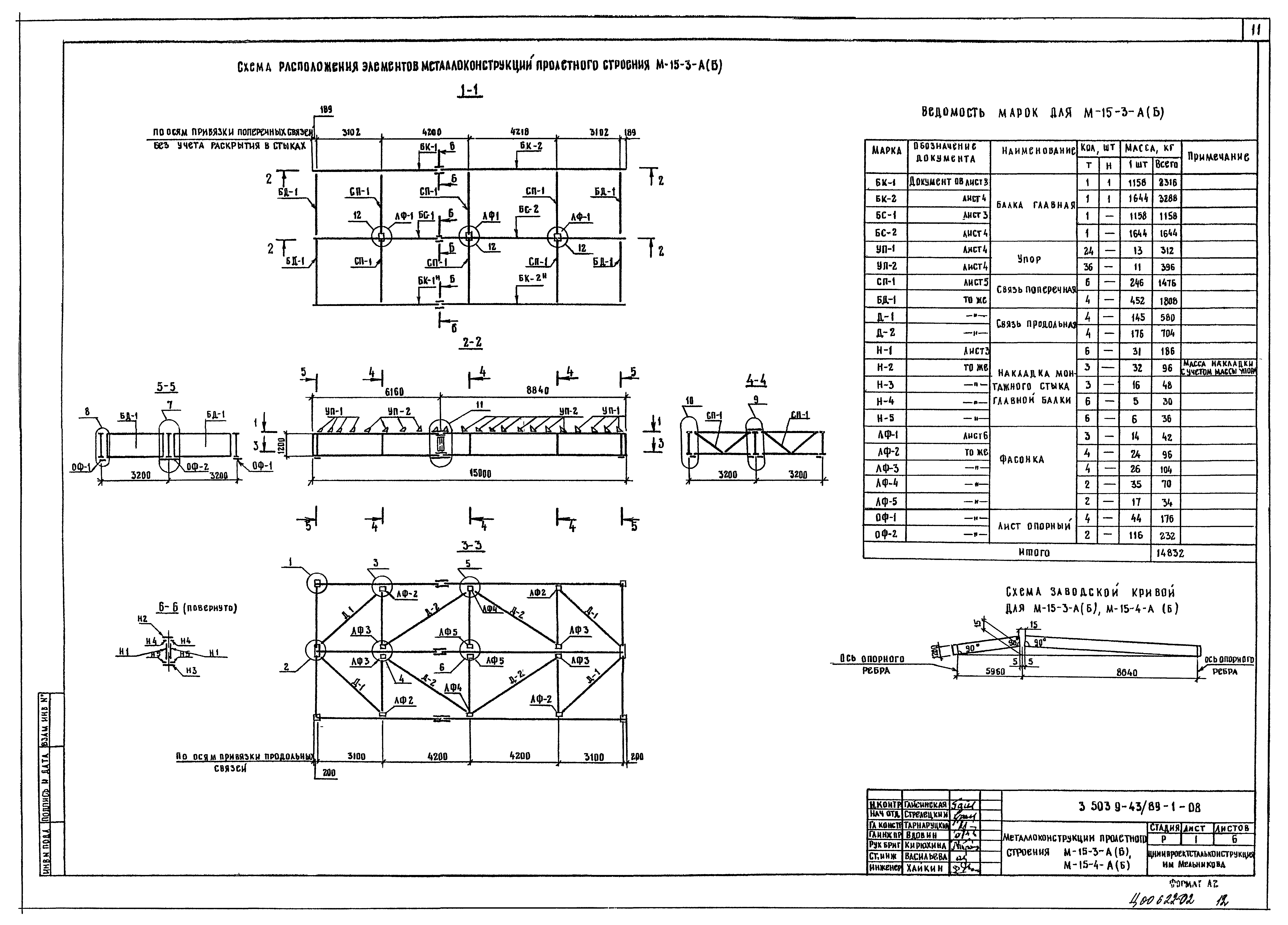
3.503.9-43/89.1-08 Металлоконструкции пролетного строения М-15-3-А(Б), М-15-4-А(Б)
3.503.9-43/89.1-09 Металлоконструкции пролетного строения М-24-3-А(Б), М-24-4-А(Б)
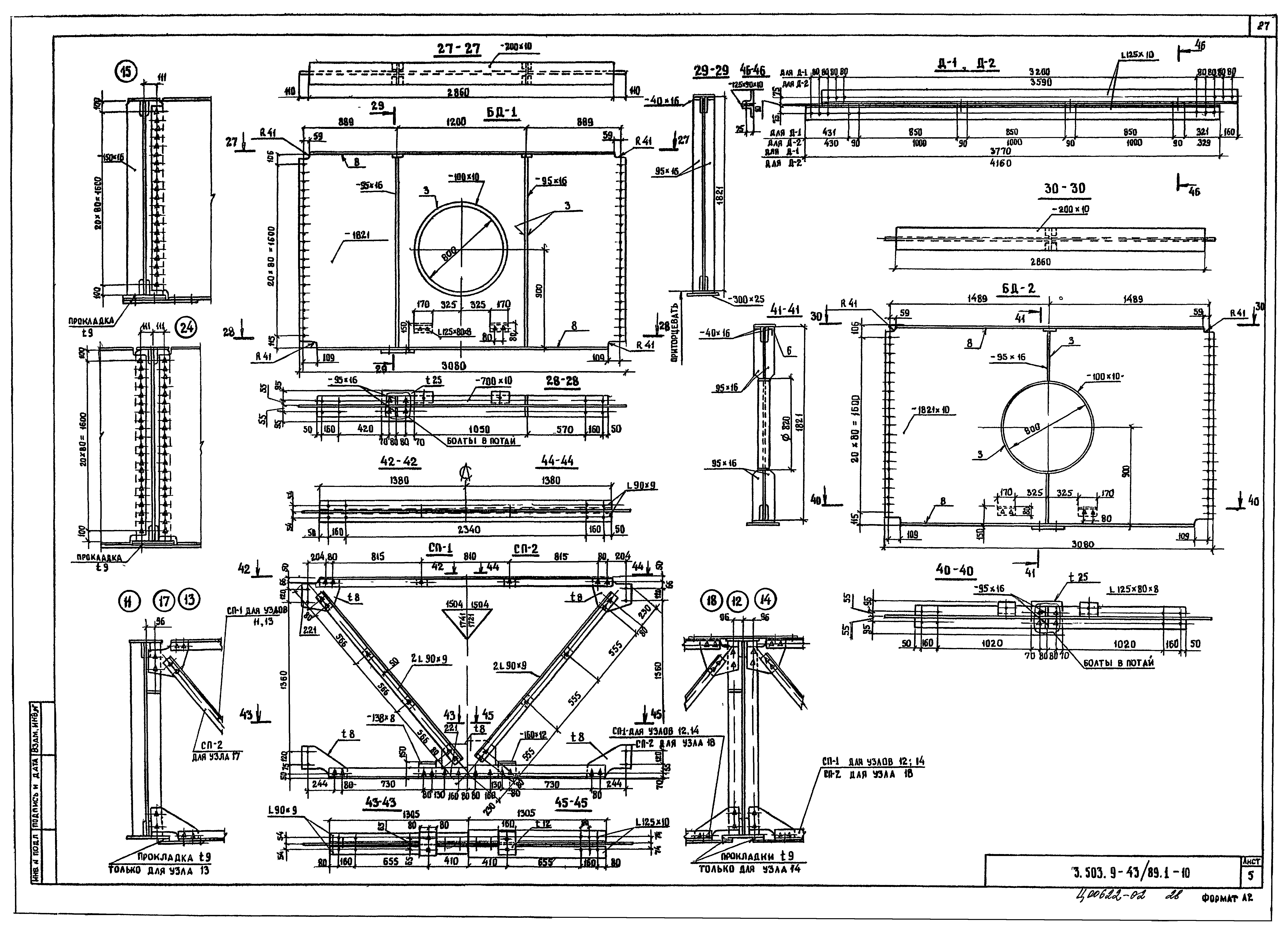
3.503.9-43/89.1-10 Металлоконструкции пролетного строения М-33-3-А(Б), М-33-4-А(Б)
3.503.9-43/89.1-11 Металлоконструкции служебных ходов СХ
3.503.9-43/89.1-12 Металлоконструкции барьерного ограждения ОГ и перильного ограждения ПО
3.503.9-43/89.1-13 Металлоконструкции деформационных швов ДШ
3.503.9-43/89.1-14ТУ Проект технических условий
Разработан: ЦНИИпроектстальконструкция Госстроя
Утверждён:08.12.1988 Министерство автомобильных дорог РСФСР (193)
Расположен в:Техническая документация Строительство Справочные документы Типовые строительные конструкции, изделия и узлы Общероссийский строительный каталог Строительные конструкции, изделия и узлы зданий и сооружений для всех видов строительства Конструкции и изделия сооружений и оборудования зданий Надземные сооружения Конструкции и сооружения транспорта Пролетные строения мостов, мосты и путепроводы
Серия 3.503.9-43/89Серия 3.503.9-43/89Серия 3.503.9-43/89Серия 3.503.9-43/89Серия 3.503.9-43/89Серия 3.503.9-43/89Серия 3.503.9-43/89Серия 3.503.9-43/89Серия 3.503.9-43/89Серия 3.503.9-43/89Серия 3.503.9-43/89Серия 3.503.9-43/89Серия 3.503.9-43/89Серия 3.503.9-43/89Серия 3.503.9-43/89Серия 3.503.9-43/89Серия 3.503.9-43/89Серия 3.503.9-43/89Серия 3.503.9-43/89Серия 3.503.9-43/89Серия 3.503.9-43/89Серия 3.503.9-43/89Серия 3.503.9-43/89Серия 3.503.9-43/89Серия 3.503.9-43/89Серия 3.503.9-43/89Серия 3.503.9-43/89Серия 3.503.9-43/89Серия 3.503.9-43/89Серия 3.503.9-43/89Серия 3.503.9-43/89Серия 3.503.9-43/89Серия 3.503.9-43/89Серия 3.503.9-43/89Серия 3.503.9-43/89Серия 3.503.9-43/89Серия 3.503.9-43/89Серия 3.503.9-43/89

© 2013 Ёшкин Кот :-) Карта сайта