Информационная система
«Ёшкин Кот»

Скачать базу одним архивом
Скачать обновления
История создания базы
Карта сайта

Скачать Серия 3.503.9-43/89 Выпуск 0. Материалы для проектирования. Монолитные конструкции и узлы. Рабочие чертежи

Дата актуализации: 10.08.2017

Серия 3.503.9-43/89

Выпуск 0. Материалы для проектирования. Монолитные конструкции и узлы. Рабочие чертежи

Обозначение: Серия 3.503.9-43/89
Обозначение англ: Series 3.503.9-43/89
Статус:действует
Название рус.:Выпуск 0. Материалы для проектирования. Монолитные конструкции и узлы. Рабочие чертежи
Дата добавления в базу:01.09.2013
Дата актуализации:05.05.2017
Дата введения:15.03.1989
Оглавление:3.503.9-43/89.0-00ТО Техническое описание
3.503.9-43/89.0-01Д Схемы монтажа
3.503.9-43/89.0-02Д Расчетные листы
3.503.9-43/89.0-03НИ Номенклатура изделий
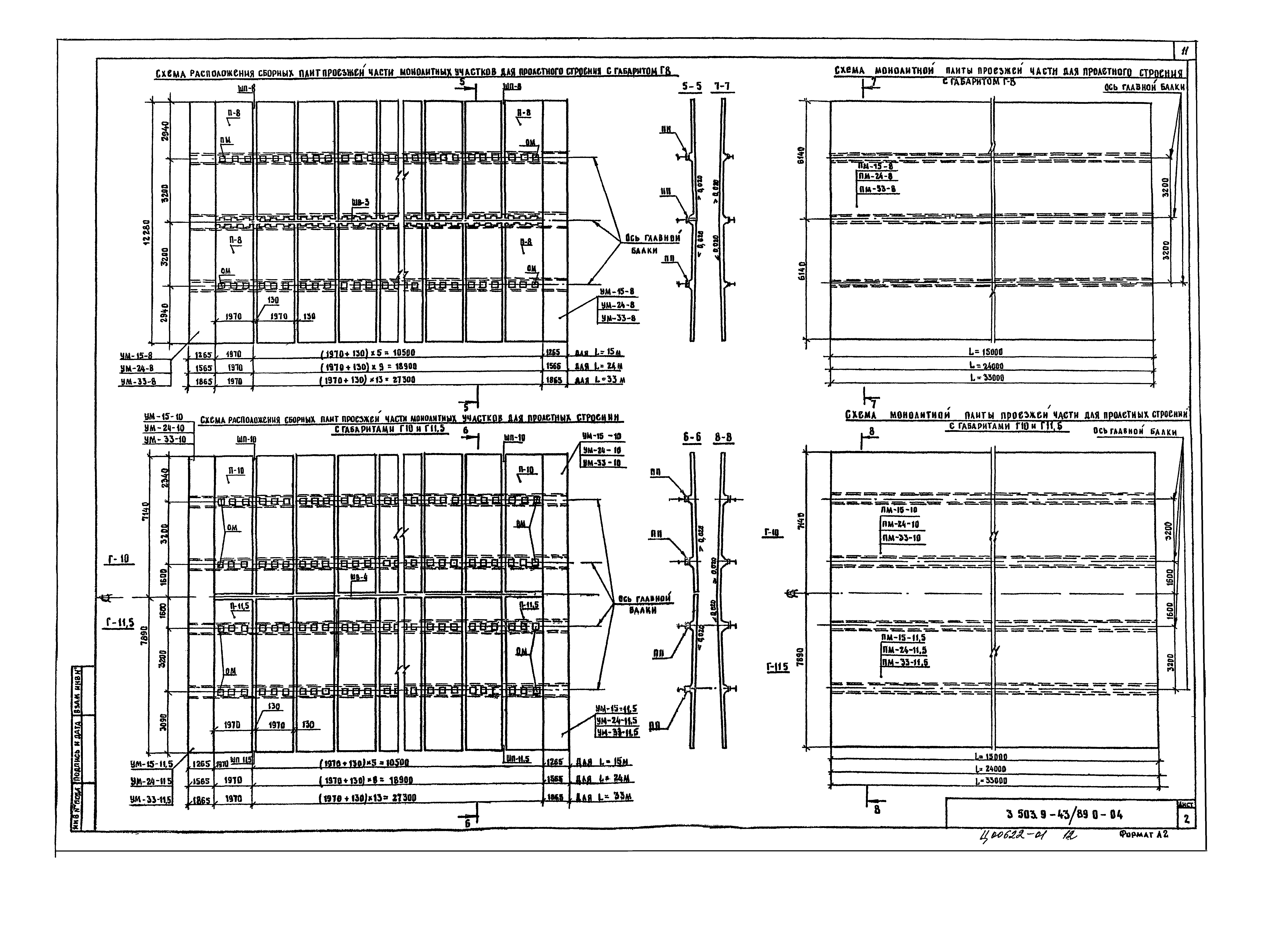
3.503.9-43/89.0-04 Схемы расположения элементов конструкций пролетных строений
3.503.9-43/89.0-05 Схемы расположения элементов барьерного ограждения ОГ и перильного ограждения ПО. Ведомость конструкций пролетных строений
3.503.9-43/89.0-06 Ведомость элементов конструкций пролетного строения
3.503.9-43/89.0-07РС Ведомость расхода стали металлоконструкций пролетного строения
3.503.9-43/89.0-08РМ Ведомость расхода материалов на железобетонную плиту проезжей части
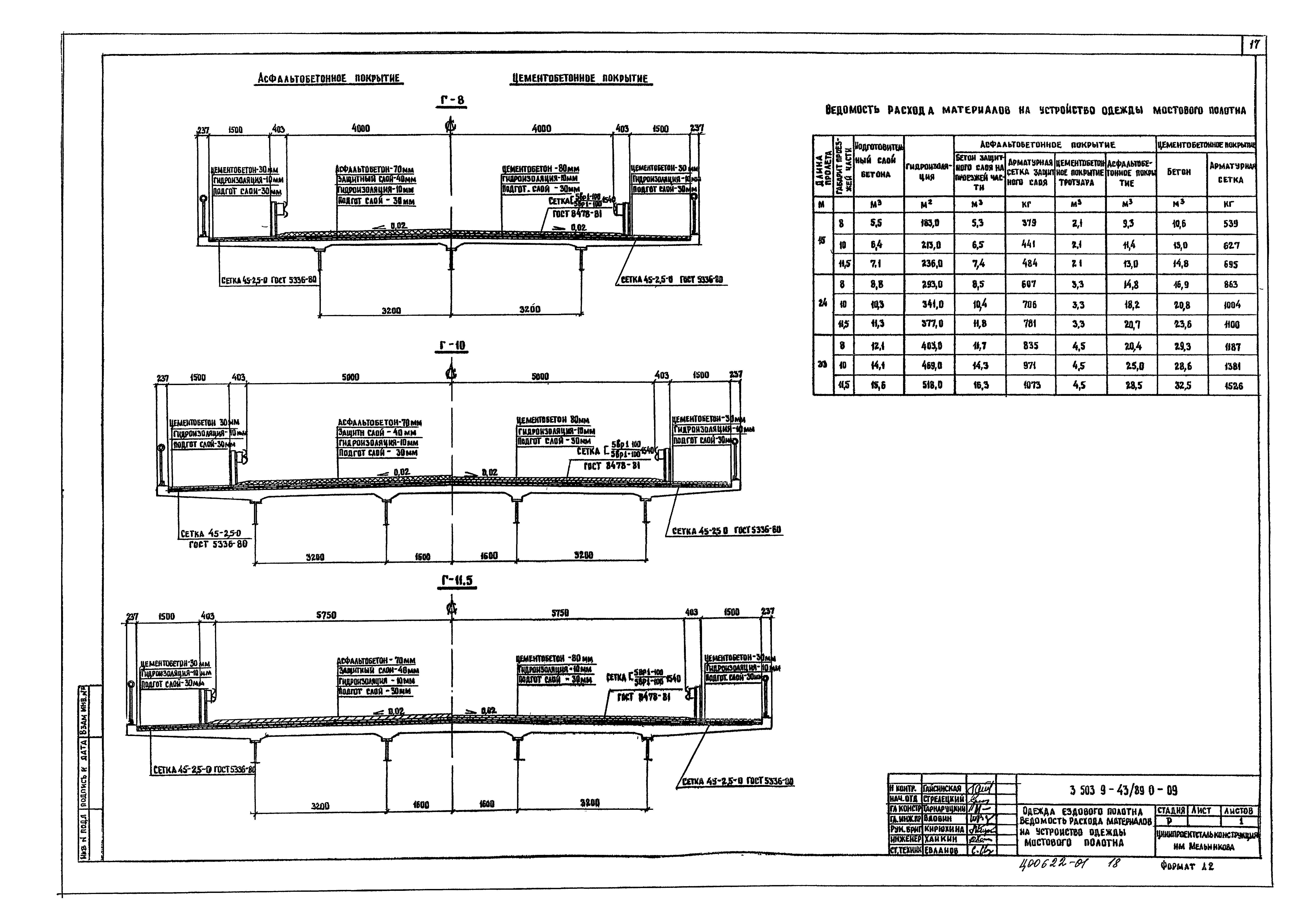
3.503.9-43/89.0-09 Одежда мостового полотна. Ведомость расхода материалов на устройство одежды мостового полотна
3.503.9-43/89.0-10 Поперечные и продольные швы сборной железобетонной плиты проезжей части
3.503.9-43/89.0-11СБ Участки монолитные УМ-15-8; УМ-24-8; УМ-33-8. Сборочные чертежи
3.503.9-43/89.0-12СБ Участки монолитные УМ-15-10; УМ-15-11,5; УМ-24-10; УМ-24-11,5; УМ-33-10; УМ-33-11,5
3.503.9-43/89.0-13СБ Сетки СМ1-15-8; СМ1-24-8; СМ1-33-8. Сборочный чертеж
3.503.9-43/89.0-14СБ Сетки СМ2-15-8; СМ2-24-8; СМ2-33-8. Сборочный чертеж
3.503.9-43/89.0-15СБ Сетки СМ3-15-8; СМ3-24-8; СМ3-33-8. Сборочный чертеж
3.503.9-43/89.0-16СБ Сетки СМ4-15-8; СМ4-24-8; СМ4-33-8. Сборочный чертеж
3.503.9-43/89.0-17СБ Сетки СМ1-15-10; СМ1-24-10; СМ1-33-10. Сборочный чертеж
3.503.9-43/89.0-18СБ Сетки СМ2-15-10; СМ2-24-10; СМ2-33-10. Сборочный чертеж
3.503.9-43/89.0-19СБ Сетки СМ3-15-10; СМ3-24-10; СМ3-33-10. Сборочный чертеж
3.503.9-43/89.0-20СБ Сетки СМ4-15-10; СМ4-24-10; СМ4-33-10. Сборочный чертеж
3.503.9-43/89.0-21СБ Сетки СМ1-15-11,5; СМ1-24-11,5; СМ1-33-11,5. Сборочный чертеж
3.503.9-43/89.0-22СБ Сетки СМ2-15-11,5; СМ2-24-11,5; СМ2-33-11,5. Сборочный чертеж
3.503.9-43/89.0-23СБ Сетки СМ3-15-11,5; СМ3-24-11,5; СМ3-33-11,5. Сборочный чертеж
3.503.9-43/89.0-24СБ Сетки СМ4-15-11,5; СМ4-24-11,5; СМ4-33-11,5. Сборочный чертеж
3.503.9-43/89.0-25 Изделие закладное МН-1
3.503.9-43/89.0-26 Изделие закладное МН-2
3.503.9-43/89.0-27 Изделие закладное МН-3
3.503.9-43/89.0-28 Хомут
3.503.9-43/89.0-29 Хомут
3.503.9-43/89.0-30 Стержень отогнутый
3.503.9-43/89.0-31 Стержень отогнутый
3.503.9-43/89.0-32 Стержень отогнутый
3.503.9-43/89.0-33 Хомут
3.503.9-43/89.0-34 Стержень отогнутый
3.503.9-43/89.0-35 РС Ведомость расхода стали на шов поперечный и продольный
3.503.9-43/89.0-36 РС Ведомость расхода стали на участок монолитный
3.503.9-43/89.0-37СБ Плиты железобетонные монолитные ПМ-15-8; ПМ-15-10; ПМ-15-11,5; ПМ-24-8; ПМ-24-10; ПМ-24-11,5; ПМ-33-8; ПМ-33-10; ПМ-33-11,5. Сборочные чертежи
3.503.9-43/89.0-38СБ Сетка СМ-5-8. Сборочный чертеж
3.503.9-43/89.0-39СБ Сетка СМ-6-8. Сборочный чертеж
3.503.9-43/89.0-40СБ Сетка СМ-7-8. Сборочный чертеж
3.503.9-43/89.0-41СБ Сетка СМ-8-8. Сборочный чертеж
3.503.9-43/89.0-42СБ Сетки СМ-5-10 и СМ5-11,5. Сборочный чертеж
3.503.9-43/89.0-43СБ Сетки СМ-6-10 и СМ6-11,5. Сборочный чертеж
3.503.9-43/89.0-44СБ Сетки СМ-7-10 и СМ7-11,5. Сборочный чертеж
3.503.9-43/89.0-45СБ Сетки СМ-8-10 и СМ8-11,5. Сборочный чертеж
3.503.9-43/89.0-46РС Ведомость расхода стали на плиту монолитную
Разработан: ЦНИИпроектстальконструкция Госстроя
Утверждён:08.12.1988 Министерство автомобильных дорог РСФСР (193)
Расположен в:Техническая документация Строительство Справочные документы Типовые строительные конструкции, изделия и узлы Общероссийский строительный каталог Строительные конструкции, изделия и узлы зданий и сооружений для всех видов строительства Конструкции и изделия сооружений и оборудования зданий Надземные сооружения Конструкции и сооружения транспорта Пролетные строения мостов, мосты и путепроводы
Серия 3.503.9-43/89Серия 3.503.9-43/89Серия 3.503.9-43/89Серия 3.503.9-43/89Серия 3.503.9-43/89Серия 3.503.9-43/89Серия 3.503.9-43/89Серия 3.503.9-43/89Серия 3.503.9-43/89Серия 3.503.9-43/89Серия 3.503.9-43/89Серия 3.503.9-43/89Серия 3.503.9-43/89Серия 3.503.9-43/89Серия 3.503.9-43/89Серия 3.503.9-43/89Серия 3.503.9-43/89Серия 3.503.9-43/89Серия 3.503.9-43/89Серия 3.503.9-43/89Серия 3.503.9-43/89Серия 3.503.9-43/89Серия 3.503.9-43/89Серия 3.503.9-43/89Серия 3.503.9-43/89Серия 3.503.9-43/89Серия 3.503.9-43/89Серия 3.503.9-43/89Серия 3.503.9-43/89Серия 3.503.9-43/89Серия 3.503.9-43/89Серия 3.503.9-43/89Серия 3.503.9-43/89Серия 3.503.9-43/89Серия 3.503.9-43/89Серия 3.503.9-43/89Серия 3.503.9-43/89Серия 3.503.9-43/89Серия 3.503.9-43/89

© 2013 Ёшкин Кот :-) Карта сайта