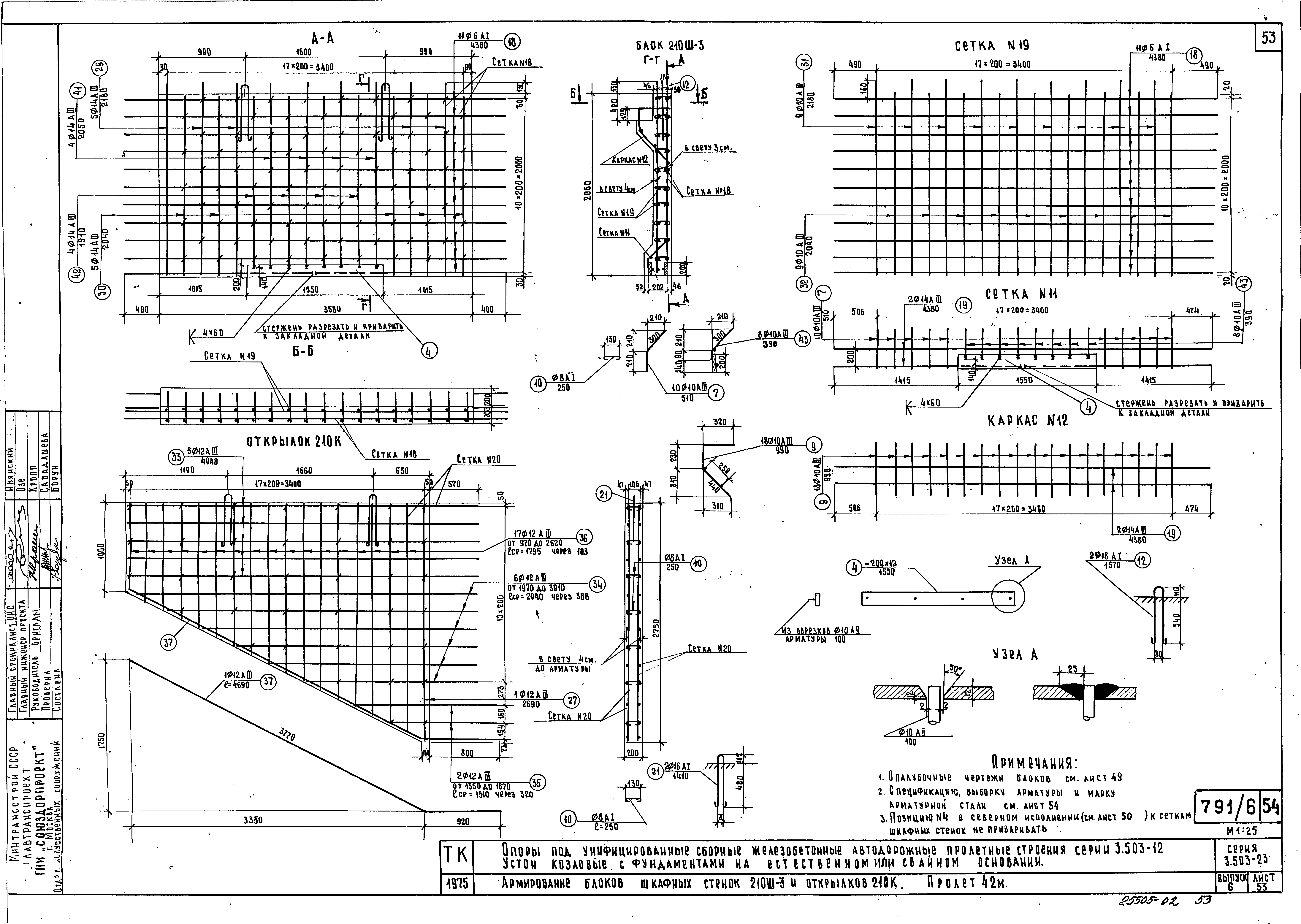
Скачать Серия 3.503-23 Выпуск 6. Устои козловые с фундаментами на естественном или свайном основании под пролетные строения длиной 12-42 мДата актуализации: 10.08.2017 Серия 3.503-23
Выпуск 6. Устои козловые с фундаментами на естественном или свайном основании под пролетные строения длиной 12-42 мОбозначение: | Серия 3.503-23 | Обозначение англ: | Series 3.503-23 | Статус: | действует | Название рус.: | Выпуск 6. Устои козловые с фундаментами на естественном или свайном основании под пролетные строения длиной 12-42 м | Дата добавления в базу: | 01.09.2013 | Дата актуализации: | 05.05.2017 | Разработан: | ГПИ Союздорпроект
| Утверждён: | 12.05.1977 Минтрансстрой СССР (USSR Mintransstroy Б-716)
| Расположен в: |
|
                                                                                                               
|