Информационная система
«Ёшкин Кот»

Скачать базу одним архивом
Скачать обновления
История создания базы
Карта сайта

Скачать Серия 3.503.1-81 Выпуск 2-1. Тротуарные и ограждающие блоки. Рабочие чертежи

Дата актуализации: 10.08.2017

Серия 3.503.1-81

Выпуск 2-1. Тротуарные и ограждающие блоки. Рабочие чертежи

Обозначение: Серия 3.503.1-81
Обозначение англ: Series 3.503.1-81
Статус:не определен законодательством
Название рус.:Выпуск 2-1. Тротуарные и ограждающие блоки. Рабочие чертежи
Дата добавления в базу:01.09.2013
Дата актуализации:05.05.2017
Дата введения:01.11.1988
Оглавление:3.503.1-81.2-1-ТТ Технические требования
3.503.1-81.2-1-1 Блок тротуарный Т 75.15
3.503.1-81.2-1-2 Блок тротуарный Т 75.35
3.503.1-81.2-1-3 Блок тротуарный Т 75.60
3.503.1-81.2-1-4 Блок тротуарный Т 150.15
3.503.1-81.2-1-5 Блок тротуарный Т 150.35
3.503.1-81.2-1-6 Блок тротуарный Т 150.60
3.503.1-81.2-1-7 Блок разделительной полосы РП15-ТАII-1, РП15-ТАIII-1
3.503.1-81.2-1-8 Блок разделительной полосы РП15-ТАII-2, РП15-ТАIII-2
3.503.1-81.2-1-9 Блок разделительной полосы РП60-ТАII-1, РП60-ТАIII-1
3.503.1-81.2-1-10 Блок разделительной полосы РП60-ТАII-2, РП60-ТАIII-2
3.503.1-81.2-1-11 Блок ограждающий ОБ 15
3.503.1-81.2-1-12 Блок ограждающий ОБ 60
3.503.1-81.2-1-13 Блок бордюрный ББ35-ТА II-1, ББ35-ТАIII-1
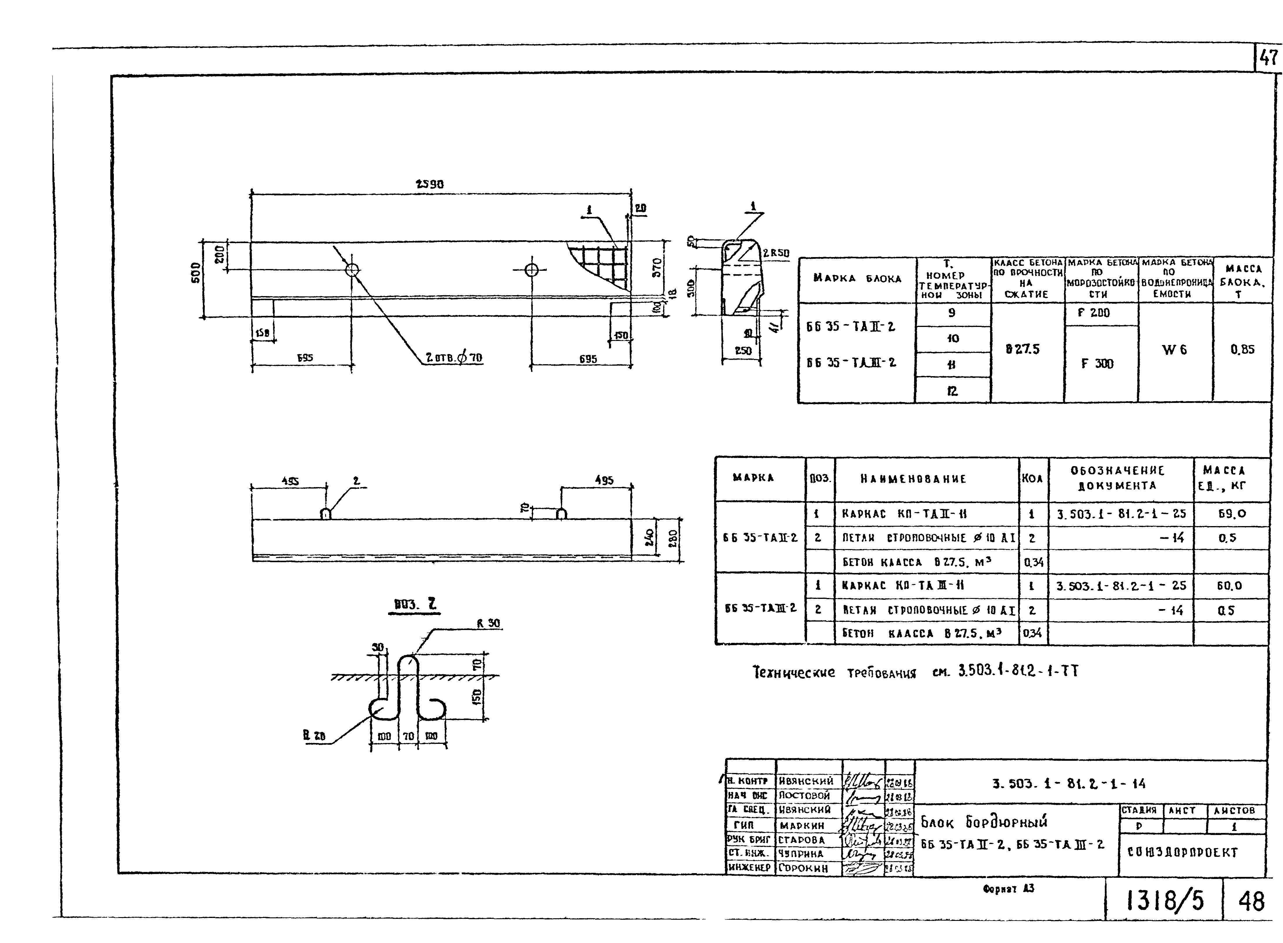
3.503.1-81.2-1-14 Блок бордюрный ББ35-ТА II-2, ББ35-ТАIII-2
3.503.1-81.2-1-15 Блок карнизный К-ТАII-1, K-TAIII-1
3.503.1-81.2-1-16 Блок карнизный К-ТАII-2, K-TAIII-2
3.503.1-81.2-1-17 Каркас КП-ТА II-1, КП-TA III-1
3.503.1-81.2-1-18 Каркас КП-ТА II-2, КП-TA III-2
3.503.1-81.2-1-19 Каркас КП-ТА II-3, КП-TA III-3
3.503.1-81.2-1-20 Каркас КП-ТА II-4, КП-TA III-4
3.503.1-81.2-1-21 Каркас КП-ТА II-5, КП-TA III-5
3.503.1-81.2-1-22 Каркас КП-ТА II-6, КП-TA III-6
3.503.1-81.2-1-23 Каркас КП-ТА II-7, КП-TA III-7
3.503.1-81.2-1-24 Каркас КП-ТА II-8, КП-TA III-8, КП-ТА II-9, КП-TA III-9
3.503.1-81.2-1-25 Каркас КП-ТА II-10, КП-TA III-10, КП-ТА II-11, КП-TA III-11
3.503.1-81.2-1-26 Каркас КП-ТА II-12, КП-ТА III-12
3.503.1-81.2-1-27 Каркас КП-ТА II-13, КП-ТА III-13
3.503.1-81.2-1-28 Сетка С-ТА II-1, C-TA III-1, C-TAII-2, C-TA III-2
3.503.1-81.2-1-29 Сетка С-ТА II-3, C-TA III-3
3.503.1-81.2-1-30 Сетка С-ТА II-4, C-TA III-4
3.503.1-81.2-1-31 Сетка С-ТА II-5, C-TA III-5
3.503.1-81.2-1-32 Сетка С-ТА II-6, C-TA III-6
3.503.1-81.2-1-33 Сетка С-ТА II-7, C-TA III-7
3.503.1-81.2-1-34 Сетка С-ТА II-8, C-TA III-8
3.503.1-81.2-1-35 Сетка С-ТА II-9, C-TA III-9
3.503.1-81.2-1-36 Сетка С-ТА II-10, C-TA III-10
3.503.1-81.2-1-37 Сетка С-ТА II-11, C-TA III-11
3.503.1-81.2-1-38 Сетка С-ТА II-12, C-TA III-12
3.503.1-81.2-1-39 Сетка С-ТА II-13, C-TA III-13
3.503.1-81.2-1-40 Сетка С-ТА II-14, C-TA III-14
3.503.1-81.2-1-41 Сетка С-ТА II-15, C-TA III-15
3.503.1-81.2-1-42 Сетка С-ТА II-16, C-TA III-16
3.503.1-81.2-1-43 Сетка С-ТА II-17, C-TA III-17
3.503.1-81.2-1-44 Сетка С-ТА II-18, C-TA III-18
3.503.1-81.2-1-45 Сетка С-ТА II-19, C-TA III-19
3.503.1-81.2-1-46 Сетка С-ТА II-20, C-TA III-20
3.503.1-81.2-1-47 Сетка С-ТА II-21, C-TA III-21
3.503.1-81.2-1-48 Сетка С-ТА II-22, C-TA III-22
3.503.1-81.2-1-49 Сетка С-ТА II-23, C-TA III-23
3.503.1-81.2-1-50 Сетка С-ТА II-24, C-TA III-24
3.503.1-81.2-1-51 Изделие закладное МН-ТА II-1, MH-TA III-1
3.503.1-81.2-1-52 Изделие закладное МН-ТА II-2, MH-TA III-2
3.503.1-81.2-1-53 Изделие закладное МН-ТА II-3, MH-TA III-3
3.503.1-81.2-1-54 Изделие закладное МН-ТА II-4, MH-TA III-4
3.503.1-81.2-1-55 Изделие закладное МН-ТА II-5, MH-TA III-5
3.503.1-81.2-1-56 Изделие закладное МН-ТА II-6, MH-TA III-6, МН-ТА II-7, MH-TA III-7
3.503.1-81.2-1-57 Изделие закладное МН-ТА II-8, MH-TA III-8
3.503.1-81.2-1-58 Изделие закладное МН-ТА II-9, MH-TA III-9
3.503.1-81.2-1-59 Изделие закладное МН-ТА II-10, MH-TA III-10
3.503.1-81.2-1-60 Изделие закладное МН-ТА II-11, MH-TA III-11
3.503.1-81.2-1-61РС Ведомость расхода стали
Разработан: Союздорпроект Минтрансстроя
Утверждён:11.05.1988 Минтрансстрой СССР (USSR Mintransstroy АВ-311)
Расположен в:Техническая документация Экология ГРАЖДАНСКОЕ СТРОИТЕЛЬСТВО Сооружение мостов Строительство Справочные документы Типовые строительные конструкции, изделия и узлы Общероссийский строительный каталог Строительные конструкции, изделия и узлы зданий и сооружений для всех видов строительства Конструкции и изделия сооружений и оборудования зданий Надземные сооружения Конструкции и сооружения транспорта Пролетные строения мостов, мосты и путепроводы
Заменяет собой:
Серия 3.503.1-81Серия 3.503.1-81Серия 3.503.1-81Серия 3.503.1-81Серия 3.503.1-81Серия 3.503.1-81Серия 3.503.1-81Серия 3.503.1-81Серия 3.503.1-81Серия 3.503.1-81Серия 3.503.1-81Серия 3.503.1-81Серия 3.503.1-81Серия 3.503.1-81Серия 3.503.1-81Серия 3.503.1-81Серия 3.503.1-81Серия 3.503.1-81Серия 3.503.1-81Серия 3.503.1-81Серия 3.503.1-81Серия 3.503.1-81Серия 3.503.1-81Серия 3.503.1-81Серия 3.503.1-81Серия 3.503.1-81Серия 3.503.1-81Серия 3.503.1-81Серия 3.503.1-81Серия 3.503.1-81Серия 3.503.1-81Серия 3.503.1-81Серия 3.503.1-81Серия 3.503.1-81Серия 3.503.1-81Серия 3.503.1-81Серия 3.503.1-81Серия 3.503.1-81Серия 3.503.1-81Серия 3.503.1-81Серия 3.503.1-81Серия 3.503.1-81Серия 3.503.1-81Серия 3.503.1-81Серия 3.503.1-81Серия 3.503.1-81Серия 3.503.1-81Серия 3.503.1-81Серия 3.503.1-81Серия 3.503.1-81Серия 3.503.1-81Серия 3.503.1-81Серия 3.503.1-81Серия 3.503.1-81Серия 3.503.1-81Серия 3.503.1-81Серия 3.503.1-81Серия 3.503.1-81Серия 3.503.1-81Серия 3.503.1-81Серия 3.503.1-81Серия 3.503.1-81Серия 3.503.1-81Серия 3.503.1-81Серия 3.503.1-81Серия 3.503.1-81Серия 3.503.1-81Серия 3.503.1-81Серия 3.503.1-81Серия 3.503.1-81Серия 3.503.1-81Серия 3.503.1-81Серия 3.503.1-81Серия 3.503.1-81Серия 3.503.1-81Серия 3.503.1-81Серия 3.503.1-81Серия 3.503.1-81Серия 3.503.1-81Серия 3.503.1-81Серия 3.503.1-81Серия 3.503.1-81Серия 3.503.1-81Серия 3.503.1-81Серия 3.503.1-81Серия 3.503.1-81Серия 3.503.1-81Серия 3.503.1-81Серия 3.503.1-81Серия 3.503.1-81

© 2013 Ёшкин Кот :-) Карта сайта