Информационная система
«Ёшкин Кот»

Скачать базу одним архивом
Скачать обновления
История создания базы
Карта сайта

Скачать Серия 3.503-50 Выпуск 14. Монтаж пролетных строений. Пролетное строение Lp=63+2х84+63 м. Рабочие чертежи

Дата актуализации: 10.08.2017

Серия 3.503-50

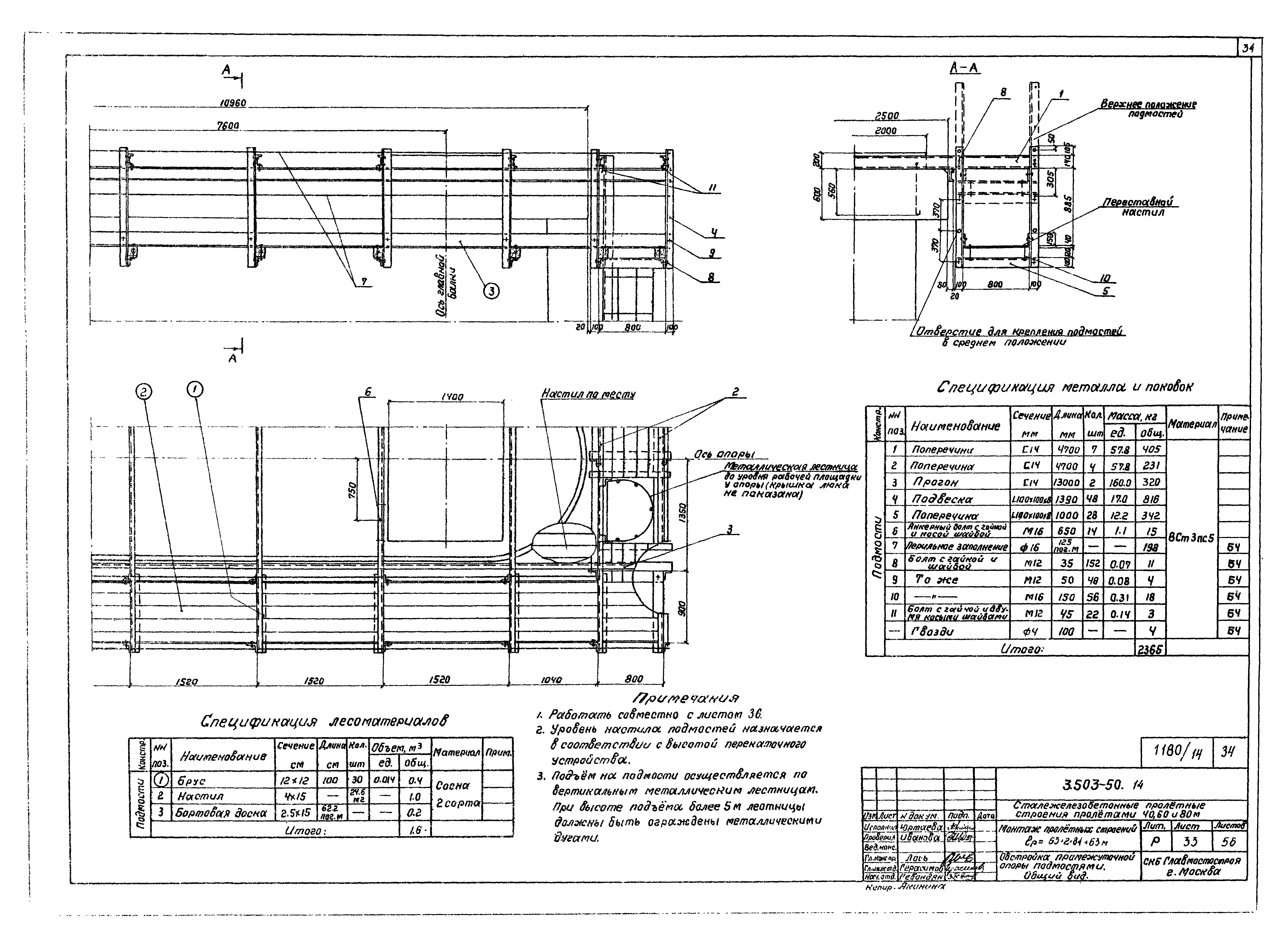
Выпуск 14. Монтаж пролетных строений. Пролетное строение Lp=63+2х84+63 м. Рабочие чертежи

Обозначение: Серия 3.503-50
Обозначение англ: Series 3.503-50
Статус:действует
Название рус.:Выпуск 14. Монтаж пролетных строений. Пролетное строение Lp=63+2х84+63 м. Рабочие чертежи
Дата добавления в базу:01.09.2013
Дата актуализации:05.05.2017
Дата введения:01.07.1981
Область применения:Проект монтажа сталежелезобетонных пролетных строений разработаны СКБ Главмостостроя как составная часть типового проекта сталежелезобетонных пролетных строений автодорожных мостов с ездой поверху пролетами в свету 40, 60, 80 м под габариты Г-10 и Г-11,5 в обычном и северном исполнении, разработанного Ленгипротрансмостом (серия 3.503-50 выпуски 1-8)
Разработан: СКБ Главмостостроя
Утверждён:31.12.1980 Минтрансстрой СССР (USSR Mintransstroy Л-1643)
Расположен в:Техническая документация Строительство Справочные документы Типовые строительные конструкции, изделия и узлы Общероссийский строительный каталог Строительные конструкции, изделия и узлы зданий и сооружений для всех видов строительства Конструкции и изделия сооружений и оборудования зданий Надземные сооружения Конструкции и сооружения транспорта Пролетные строения мостов, мосты и путепроводы
Серия 3.503-50Серия 3.503-50Серия 3.503-50Серия 3.503-50Серия 3.503-50Серия 3.503-50Серия 3.503-50Серия 3.503-50Серия 3.503-50Серия 3.503-50Серия 3.503-50Серия 3.503-50Серия 3.503-50Серия 3.503-50Серия 3.503-50Серия 3.503-50Серия 3.503-50Серия 3.503-50Серия 3.503-50Серия 3.503-50Серия 3.503-50Серия 3.503-50Серия 3.503-50Серия 3.503-50Серия 3.503-50Серия 3.503-50Серия 3.503-50Серия 3.503-50Серия 3.503-50Серия 3.503-50Серия 3.503-50Серия 3.503-50Серия 3.503-50Серия 3.503-50Серия 3.503-50Серия 3.503-50Серия 3.503-50Серия 3.503-50Серия 3.503-50Серия 3.503-50Серия 3.503-50Серия 3.503-50Серия 3.503-50Серия 3.503-50Серия 3.503-50Серия 3.503-50Серия 3.503-50Серия 3.503-50Серия 3.503-50Серия 3.503-50Серия 3.503-50Серия 3.503-50Серия 3.503-50Серия 3.503-50Серия 3.503-50Серия 3.503-50Серия 3.503-50

© 2013 Ёшкин Кот :-) Карта сайта