Информационная система
«Ёшкин Кот»

Скачать базу одним архивом
Скачать обновления
История создания базы
Карта сайта

Скачать Серия 3.503-50 Выпуск 13. Монтаж пролетных строений. Пролетное строение Lp=63+84+63 м. Рабочие чертежи

Дата актуализации: 10.08.2017

Серия 3.503-50

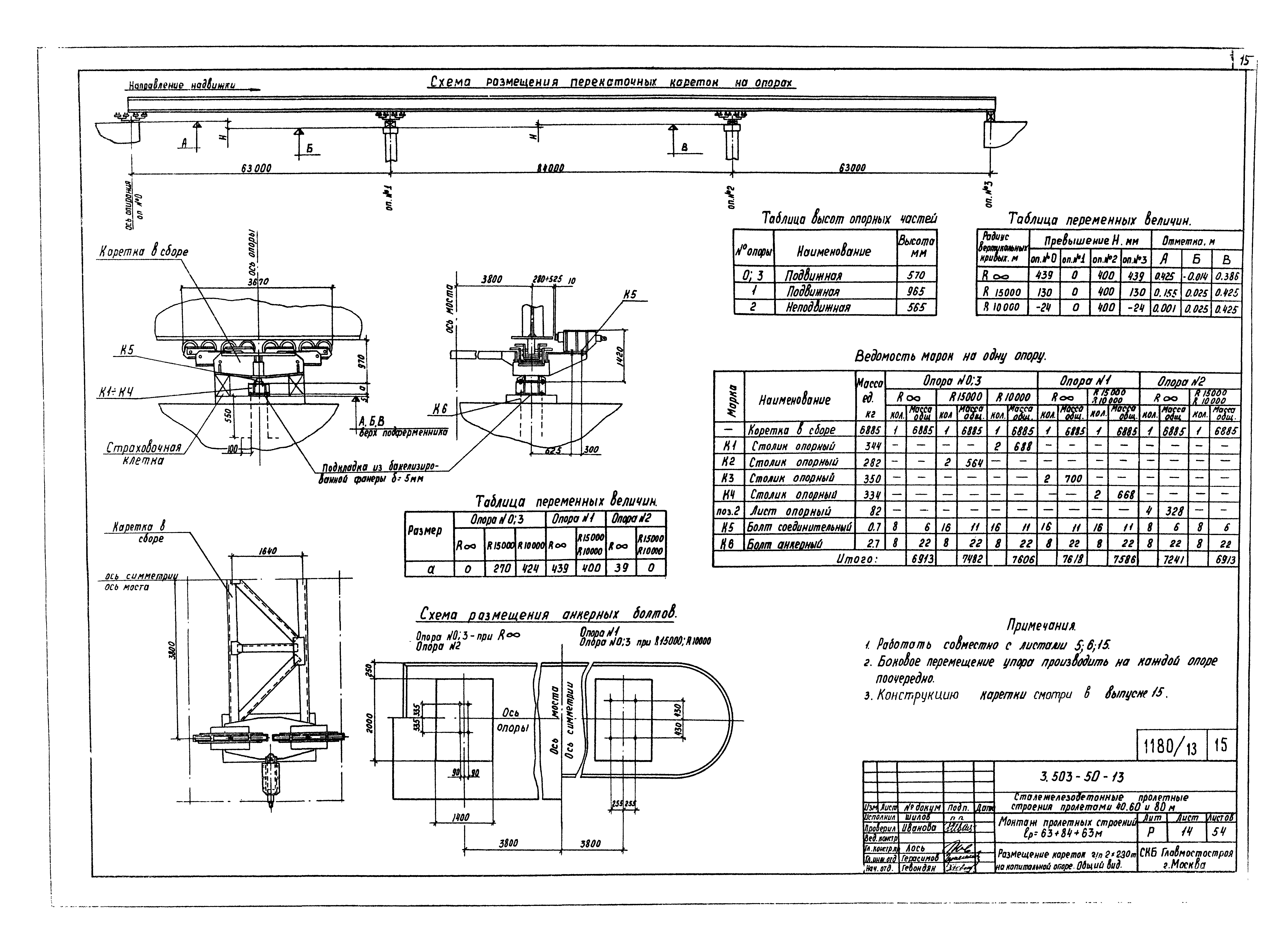
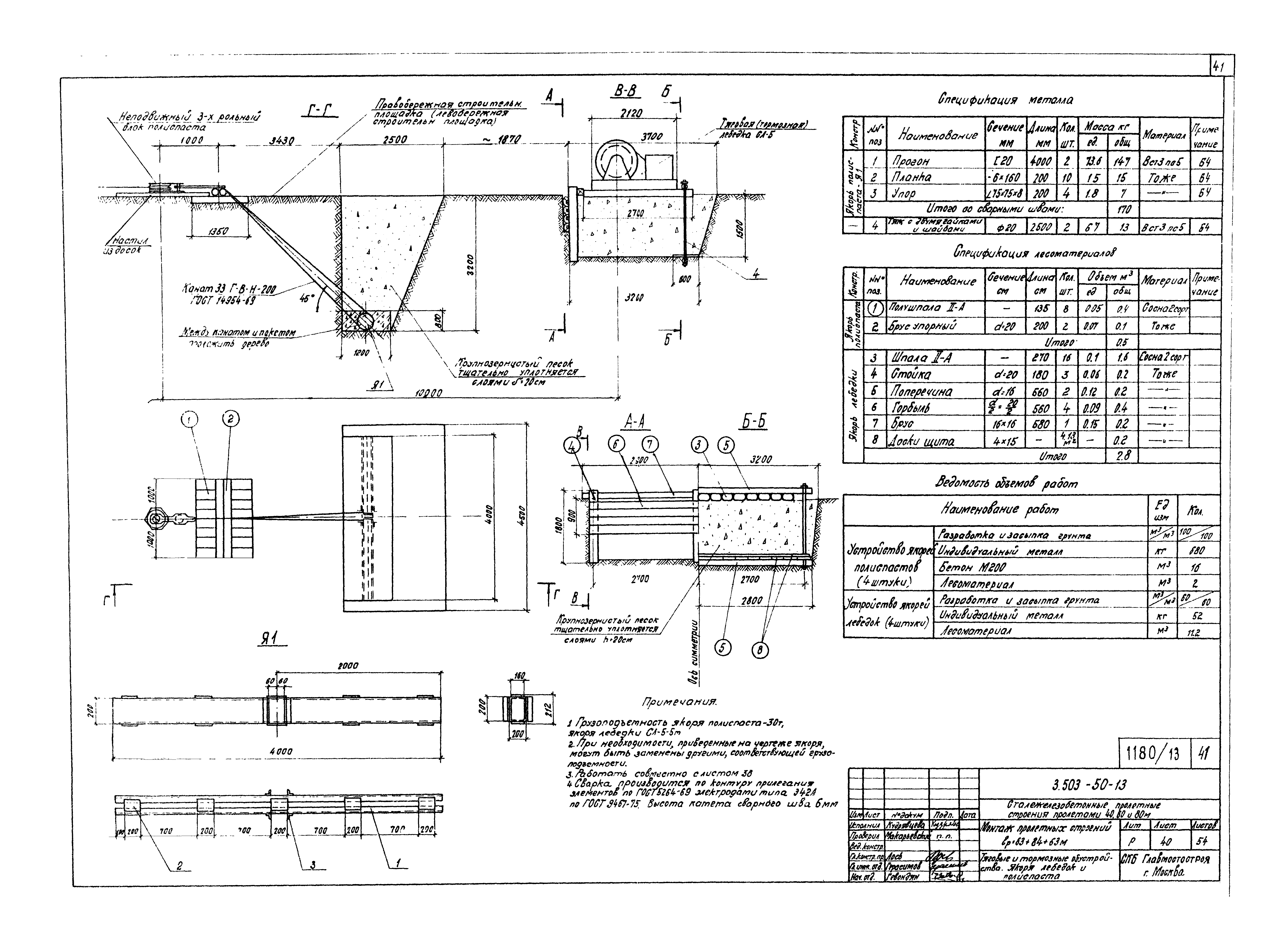
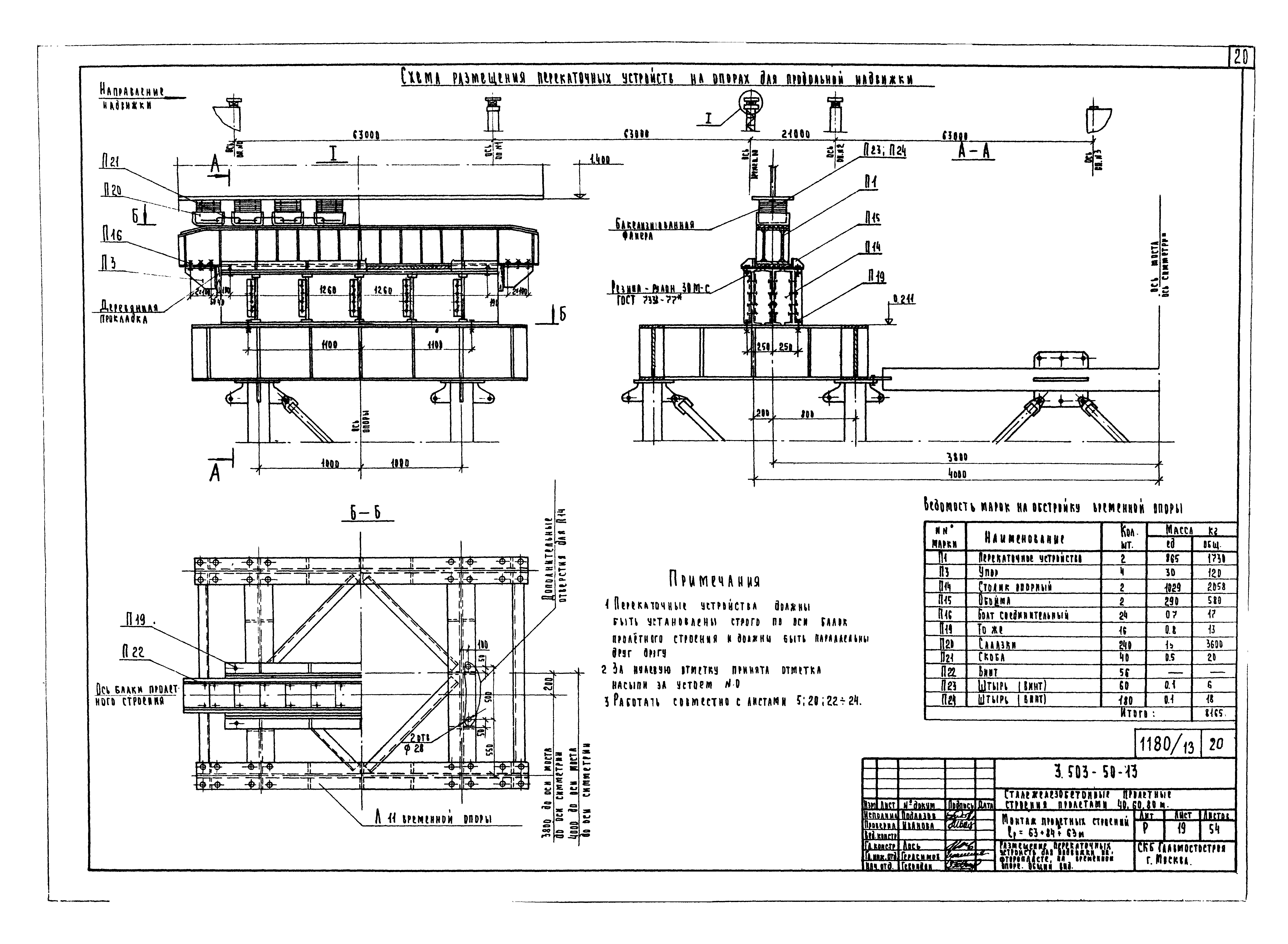
Выпуск 13. Монтаж пролетных строений. Пролетное строение Lp=63+84+63 м. Рабочие чертежи

Обозначение: Серия 3.503-50
Обозначение англ: Series 3.503-50
Статус:действует
Название рус.:Выпуск 13. Монтаж пролетных строений. Пролетное строение Lp=63+84+63 м. Рабочие чертежи
Дата добавления в базу:01.09.2013
Дата актуализации:05.05.2017
Дата введения:01.07.1980
Область применения:Пролетные строения под габариты Г-10 и Г-11,5 предназначены для установки на автодорожных мостах, расположенных на прямых участках дорог III и II категории в плане и профиле, а также на вертикальных кривых наименьших радиусов: выпуклых 10000 м и 15000 м; вогнутых - 3000 м и 5000 м соответственно, эксплуатируемых в районах с расчетной температурой воздуха до минус 40 градусов Цельсия (обычное исполнение) и ниже минус 40 градусов Цельсия (северные климатические зоны IА и IБ - северное исполнение)
Разработан: СКБ Главмостостроя
Утверждён:13.03.1980 Минтрансстрой (Mintransstroy Б-354)
Расположен в:Техническая документация Строительство Справочные документы Типовые строительные конструкции, изделия и узлы Общероссийский строительный каталог Строительные конструкции, изделия и узлы зданий и сооружений для всех видов строительства Конструкции и изделия сооружений и оборудования зданий Надземные сооружения Конструкции и сооружения транспорта Пролетные строения мостов, мосты и путепроводы
Серия 3.503-50Серия 3.503-50Серия 3.503-50Серия 3.503-50Серия 3.503-50Серия 3.503-50Серия 3.503-50Серия 3.503-50Серия 3.503-50Серия 3.503-50Серия 3.503-50Серия 3.503-50Серия 3.503-50Серия 3.503-50Серия 3.503-50Серия 3.503-50Серия 3.503-50Серия 3.503-50Серия 3.503-50Серия 3.503-50Серия 3.503-50Серия 3.503-50Серия 3.503-50Серия 3.503-50Серия 3.503-50Серия 3.503-50Серия 3.503-50Серия 3.503-50Серия 3.503-50Серия 3.503-50Серия 3.503-50Серия 3.503-50Серия 3.503-50Серия 3.503-50Серия 3.503-50Серия 3.503-50Серия 3.503-50Серия 3.503-50Серия 3.503-50Серия 3.503-50Серия 3.503-50Серия 3.503-50Серия 3.503-50Серия 3.503-50Серия 3.503-50Серия 3.503-50Серия 3.503-50Серия 3.503-50Серия 3.503-50Серия 3.503-50Серия 3.503-50Серия 3.503-50Серия 3.503-50Серия 3.503-50Серия 3.503-50

© 2013 Ёшкин Кот :-) Карта сайта