Информационная система
«Ёшкин Кот»

Скачать базу одним архивом
Скачать обновления
История создания базы
Карта сайта

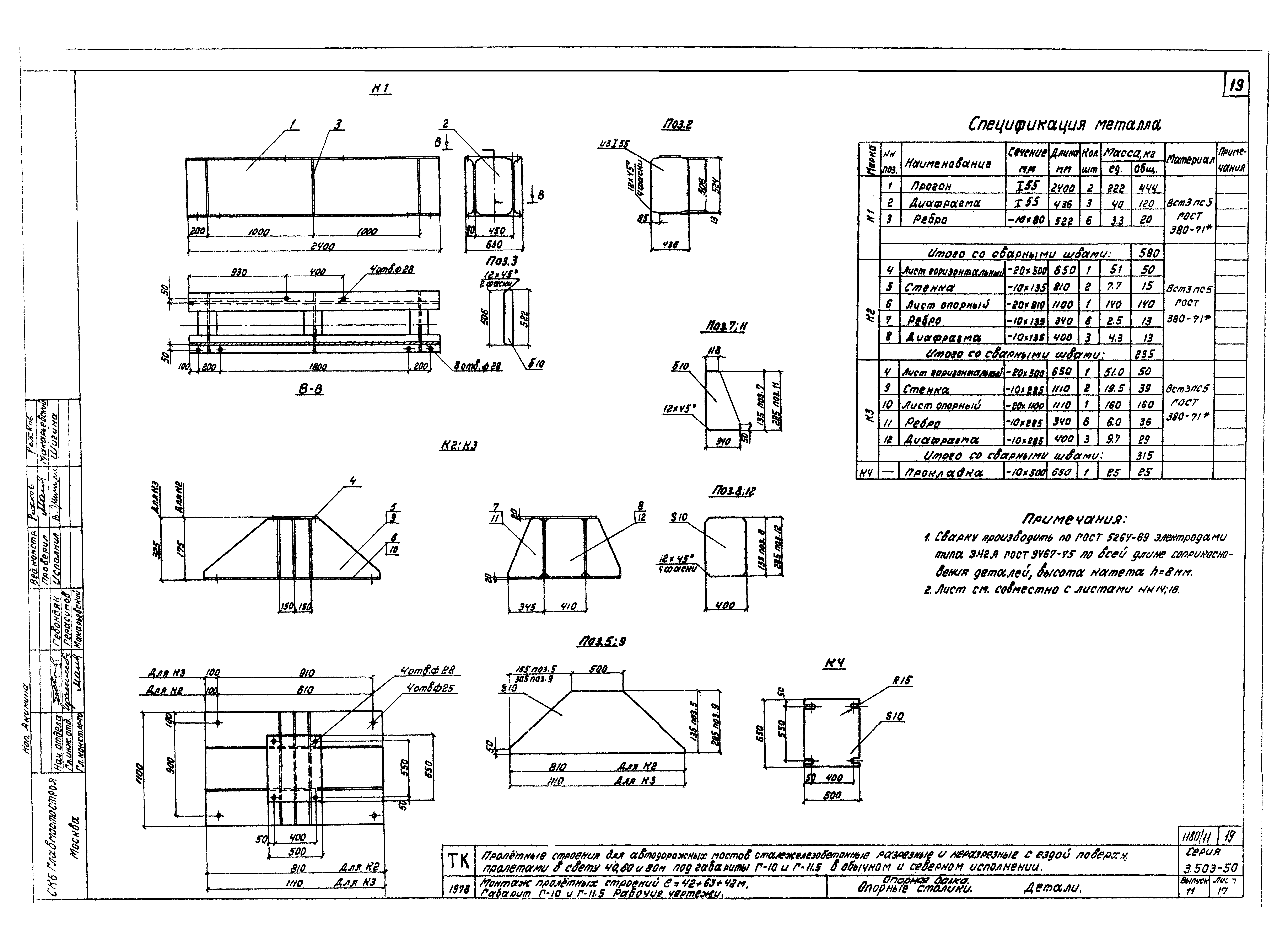
Скачать Серия 3.503-50 Выпуск 11. Монтаж пролетных строений Lp=42+63+42 м. Габариты Г-10 и Г-11.5. Рабочие чертежи

Дата актуализации: 10.08.2017

Серия 3.503-50

Выпуск 11. Монтаж пролетных строений Lp=42+63+42 м. Габариты Г-10 и Г-11.5. Рабочие чертежи

Обозначение: Серия 3.503-50
Обозначение англ: Series 3.503-50
Статус:действует
Название рус.:Выпуск 11. Монтаж пролетных строений Lp=42+63+42 м. Габариты Г-10 и Г-11.5. Рабочие чертежи
Дата добавления в базу:01.09.2013
Дата актуализации:05.05.2017
Дата введения:01.11.1979
Область применения:Пролетные строения под габариты Г-10 и Г-11,5 предназначены для установки на автодорожных мостах, расположенных на прямых участках дорог III и II технической категории в плане и профиле, а также на кривых наименьших радиусов: выпуклых - 10000 м, 15000 м; вогнутых - 3000 м и 5000 м соответственно, эксплуатируемых в районах с расчетной температурой воздуха до минус 40 градусов Цельсия (обычное исполнение) и ниже минус 40 градусов Цельсия (северные климатические зоны А и Б - северное исполнение)
Разработан: СКБ Главмостостроя
Утверждён:29.12.1978 Минтрансстрой (Mintransstroy Л-1628)
Расположен в:Техническая документация Строительство Справочные документы Типовые строительные конструкции, изделия и узлы Общероссийский строительный каталог Строительные конструкции, изделия и узлы зданий и сооружений для всех видов строительства Конструкции и изделия сооружений и оборудования зданий Надземные сооружения Конструкции и сооружения транспорта Пролетные строения мостов, мосты и путепроводы
Серия 3.503-50Серия 3.503-50Серия 3.503-50Серия 3.503-50Серия 3.503-50Серия 3.503-50Серия 3.503-50Серия 3.503-50Серия 3.503-50Серия 3.503-50Серия 3.503-50Серия 3.503-50Серия 3.503-50Серия 3.503-50Серия 3.503-50Серия 3.503-50Серия 3.503-50Серия 3.503-50Серия 3.503-50Серия 3.503-50Серия 3.503-50Серия 3.503-50Серия 3.503-50Серия 3.503-50Серия 3.503-50Серия 3.503-50Серия 3.503-50Серия 3.503-50Серия 3.503-50Серия 3.503-50Серия 3.503-50Серия 3.503-50Серия 3.503-50Серия 3.503-50Серия 3.503-50Серия 3.503-50Серия 3.503-50Серия 3.503-50Серия 3.503-50Серия 3.503-50Серия 3.503-50Серия 3.503-50Серия 3.503-50Серия 3.503-50Серия 3.503-50Серия 3.503-50Серия 3.503-50Серия 3.503-50Серия 3.503-50Серия 3.503-50Серия 3.503-50Серия 3.503-50Серия 3.503-50

© 2013 Ёшкин Кот :-) Карта сайта