Скачать Серия 3.503-50 Выпуск 3. Пролетное строение Lp=42+63+42 м. Габариты Г-10 и Г-11,5. Рабочие чертежиДата актуализации: 10.08.2017 Серия 3.503-50
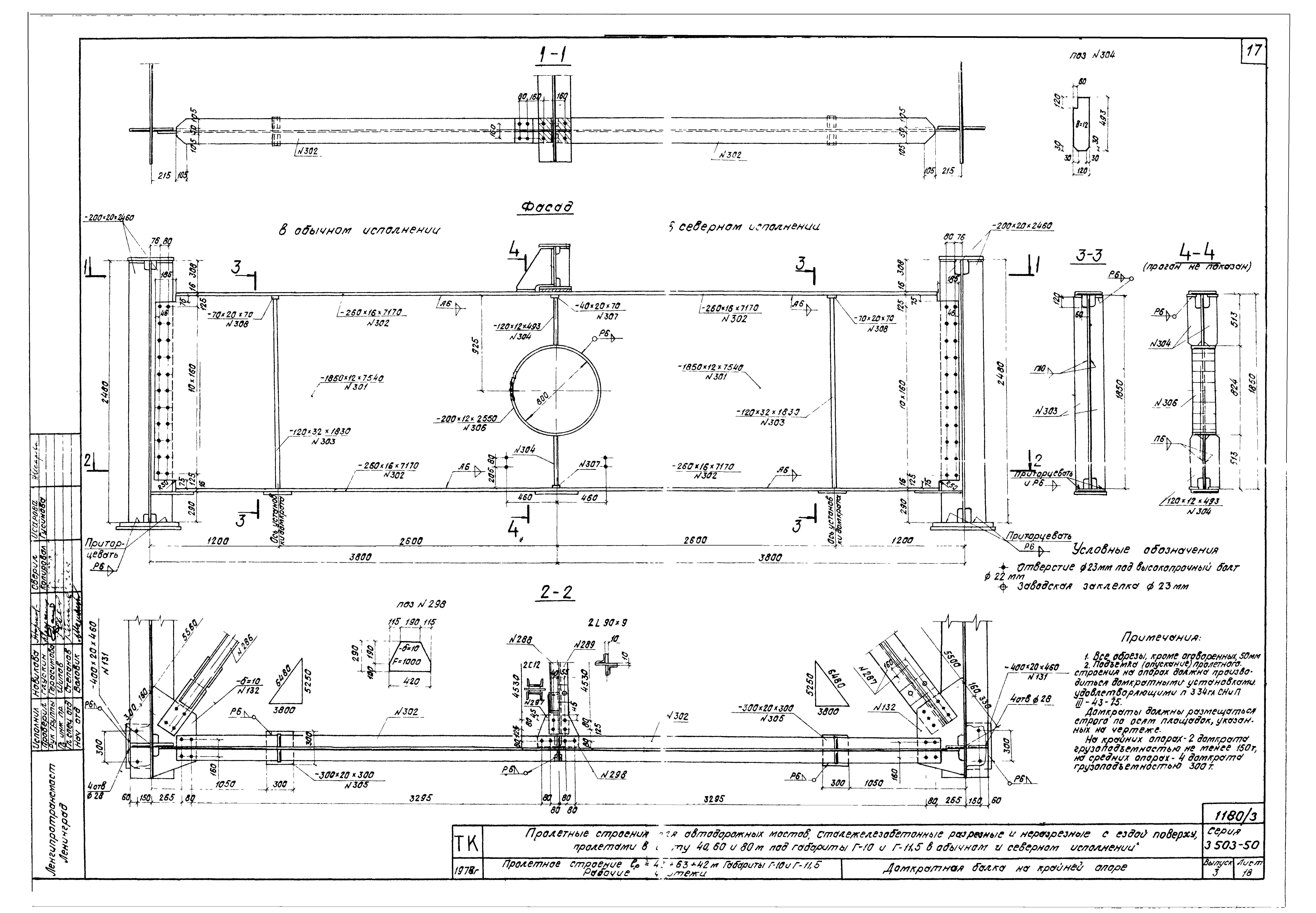
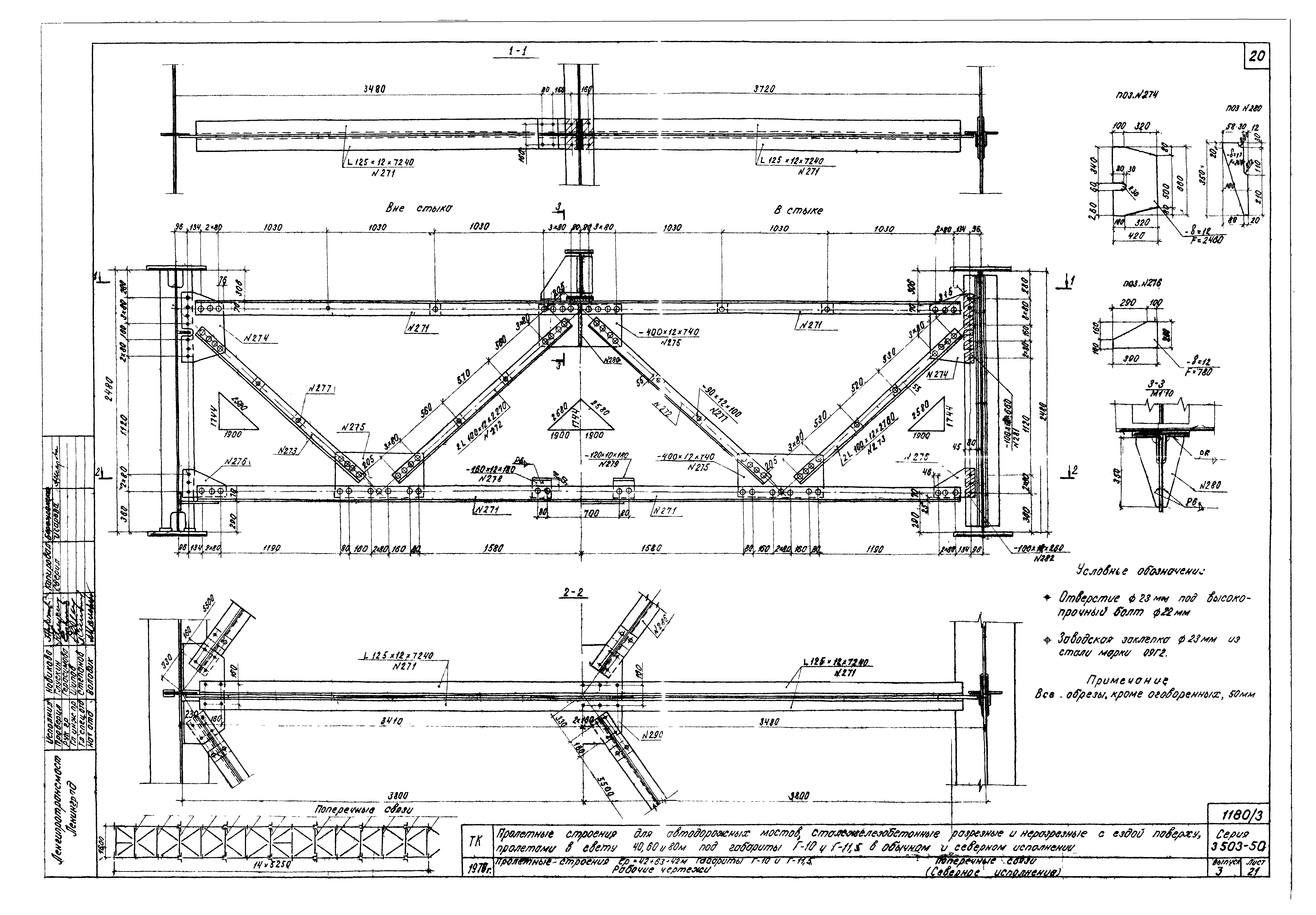
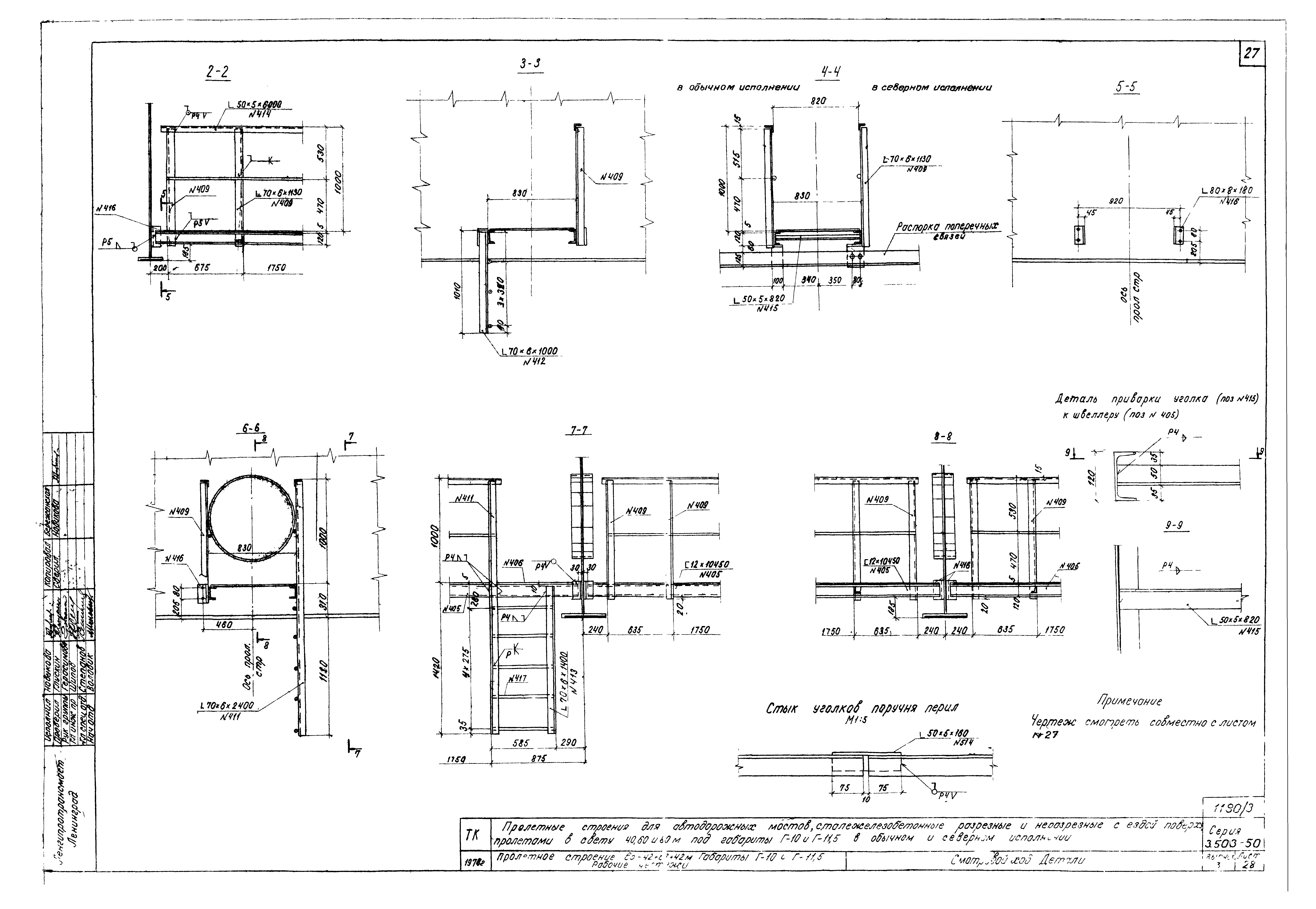
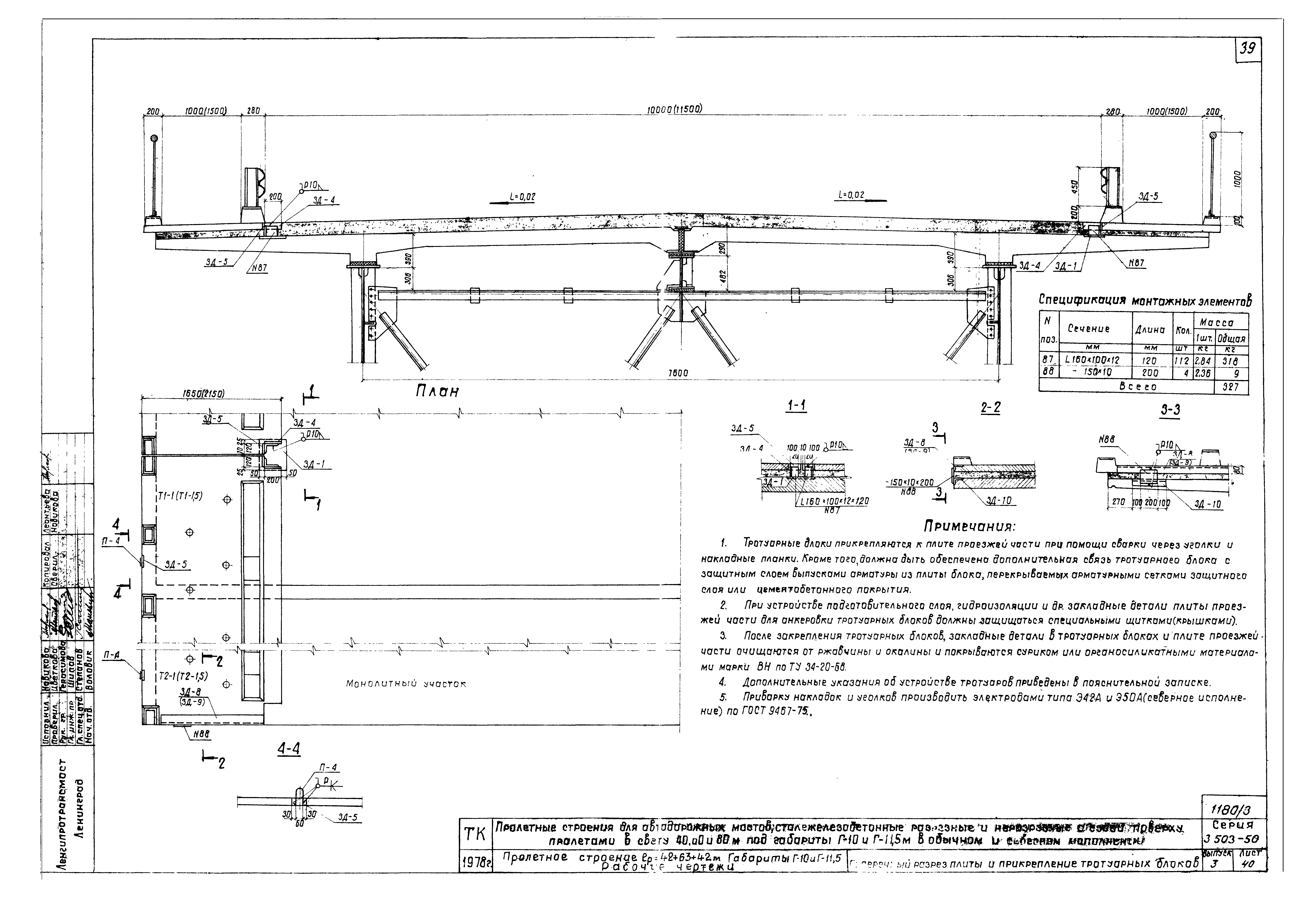
Выпуск 3. Пролетное строение Lp=42+63+42 м. Габариты Г-10 и Г-11,5. Рабочие чертежиОбозначение: | Серия 3.503-50 | Обозначение англ: | Series 3.503-50 | Статус: | не действует | Название рус.: | Выпуск 3. Пролетное строение Lp=42+63+42 м. Габариты Г-10 и Г-11,5. Рабочие чертежи | Дата добавления в базу: | 01.09.2013 | Дата актуализации: | 05.05.2017 | Дата введения: | 01.11.1979 | Дата окончания срока действия: | 01.09.1998 | Область применения: | Пролетное строение Lp=42+63+42 м предназначено для установки на автодорожных мостах, расположенных на прямых (в плане) участках дорог III и II технических категорий, эксплуатируемых в районах с расчетной температурой воздуха до минус 40 градусов Цельсия (обычное исполнение) и ниже минус 40 градусов Цельсия (северные строительно-климатические зоны А и Б) и при сейсмичности районов не выше 6 баллов | Оглавление: | Пояснительная записка Паспорт пролетного строения. Блоки длиной 10,5 и 211,0 м (обычное исполнение) Паспорт пролетного строения. Блоки длиной 10,5 м (северное исполнение) Главные балки. Блоки длиной 10,5 м Главные балки. Блоки длиной 10,5 м (продолжение) Главные балки. Блоки длиной 10,5 м (окончание) Главные балки. Блоки длиной 21,0 м (обычное исполнение) Главные балки. Блоки длиной 21,0 м (обычное исполнение) (продолжение) Стыки главных балок Прогон Прогон (продолжение) Упоры главных балок и прогона (обычное исполнение) Упоры главных балок и прогона (северное исполнение) Домкратная балка на крайней опоре Домкратная балка на средней опоре Поперечные связи (обычное исполнение) Поперечные связи (северное исполнение) Продольные связи (обычное исполнение) Продольные связи (северное исполнение) Продольные связи (северное исполнение) (продолжение) Продольные связи. Сварной вариант (северное исполнение) Указания по изготовлению конструкций и обработке сварных швов Смотровой ход Смотровой ход. Детали Перила Ограждение ездового полотна Строительный подъем Спецификация металла. Блоки длиной 10,5 м (обычное исполнение) Спецификация металла. Блоки длиной 21,0 м (обычное исполнение) Спецификация металла. Блоки длиной 10,5 и 21,0 м (обычное исполнение) (продолжение) Спецификация металла (северное исполнение) Спецификация металла (северное исполнение) (продолжение) Монтажная схема блоков плиты проезда и тротуаров. Стыки блоков Монтажная схема блоков плиты проезда и тротуаров. Стыки блоков (продолжение) Мостовое полотно Поперечный разрез плиты и прикрепление тротуарных блоков Основные положения расчета. Г-10 Основные положения расчета. Г-11,5 Геометрические характеристики сечений и напряжения Расчет стыков главных балок Расчет местной устойчивости вертикальной стенки главных балок Расчет упоров (обычное исполнение) Расчет упоров (северное исполнение) Расчет связей и домкратных балок Последовательность загружения пролетного строения и регулирование усилий Сход на опору Схемы продольной надвижки Монтаж плит проезжей части | Разработан: | Ленгипротрансмост
| Утверждён: | 29.12.1978 Минтрансстрой СССР (USSR Mintransstroy Л-1628)
| Расположен в: |
| Заменяет собой: | |
                                                 
|