Информационная система
«Ёшкин Кот»

Скачать базу одним архивом
Скачать обновления
История создания базы
Карта сайта

Скачать Серия 3.503.9-62 Выпуск 8. Пролетное строение Lp=63+84+63 м. Рабочие чертежи

Дата актуализации: 10.08.2017

Серия 3.503.9-62

Выпуск 8. Пролетное строение Lp=63+84+63 м. Рабочие чертежи

Обозначение: Серия 3.503.9-62
Обозначение англ: Series 3.503.9-62
Статус:действует
Название рус.:Выпуск 8. Пролетное строение Lp=63+84+63 м. Рабочие чертежи
Дата добавления в базу:01.09.2013
Дата актуализации:05.05.2017
Область применения:Пролетное строение Lp=63+84+63 м предназначено для установки на автомобильных мостах, расположенных в плане на прямых участках дорог IV и V технических категорий и может устанавливаться в профиле на площадках, уклонах и выпуклых кривых радиусом 5000 и 10000 м при расчетной сейсмичности не выше 6 баллов во всех климатических районах СССР
Оглавление:3.503.9-62.8-00 Условные обозначения
3.503.9-62.8-00ПЗ Пояснительная записка
3.503.9-62.8-01 Общий вид пролетного строения. Основные данные
3.503.9-62.8-02КМ Общий вид металлоконструкций
3.503.9-62.8-03КМ Монтажные стыки главных балок
3.503.9-62.8-04КМ Монтажные стыки прогона. Узлы
3.503.9-62.8-05КМ Монтажные стыки прогона. Узлы (сварной вариант)
3.503.9-62.8-06КМ Упоры главных балок и прогона (обычное исполнение)
3.503.9-62.8-07КМ Упоры главных балок и прогона (северное исполнение)
3.503.9-62.8-08КМ Домкратная балка на крайней опоре
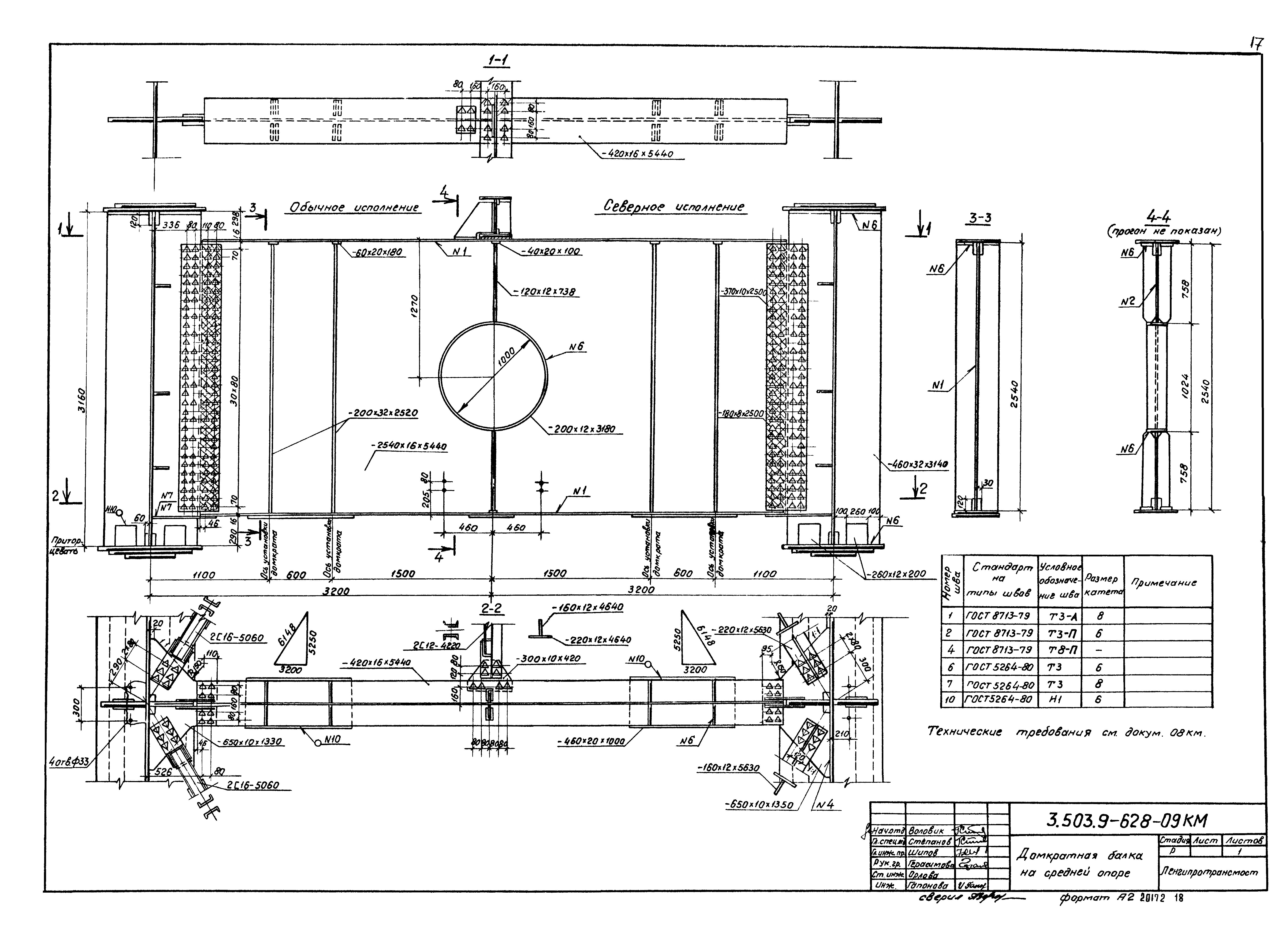
3.503.9-62.8-09КМ Домкратная балка на средней опоре
3.503.9-62.8-10КМ Поперечные связи (обычное исполнение)
3.503.9-62.8-11КМ Поперечные связи (северное исполнение)
3.503.9-62.8-12КМ Узлы и элементы продольных связей
3.503.9-62.8-13КМ Смотровой ход
3.503.9-62.8-14КМ Перила
3.503.9-62.8-15КМ Ограждение ездового полотна
3.503.9-62.8-16 Строительный подъем
3.503.9-62.8-17КМ Техническая спецификация металла (обычное исполнение)
3.503.9-62.8-18КМ Техническая спецификация металла (северное исполнение)
3.503.9-62.8-19 Схемы продольной надвижки
3.503.9-62.8-20 Монтаж плит проезжей части
3.503.9-62.8-21 Последовательность загружения пролетного строения и регулирование усилий
3.503.9-62.8-22 Расчет пролетного строения
3.503.9-62.8-23 Монтажная схема блоков плиты проезда и тротуаров
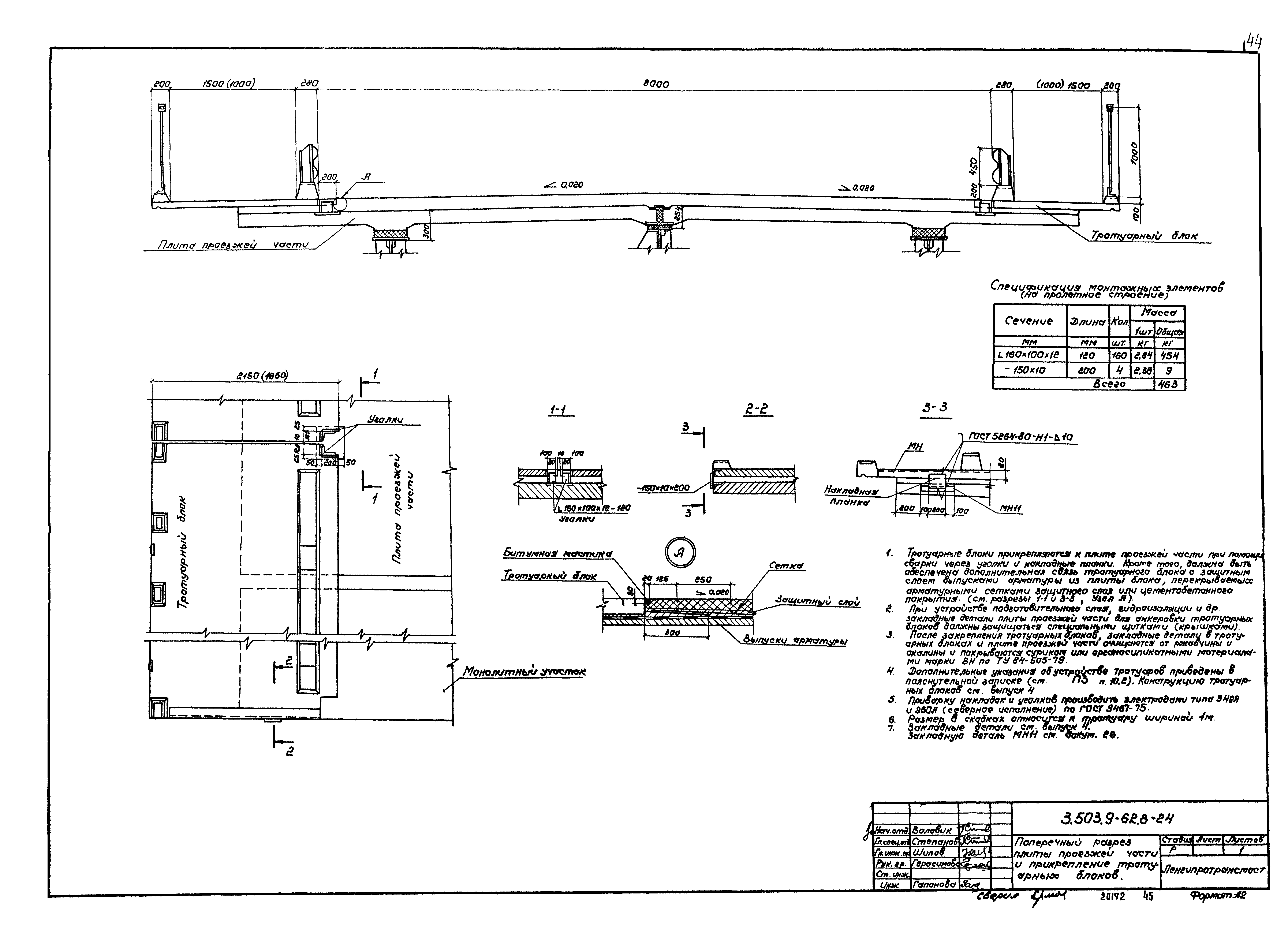
3.503.9-62.8-24 Поперечный разрез плиты проезжей части и прикрепление тротуарных блоков
3.503.9-62.8-25 Мостовое полотно
3.503.9-62.8-26 Монолитный участок железобетонной плиты проезжей части
3.503.9-62.8-27 Водоотводное устройство
3.503.9-62.8-28КМ Деформационный шов перекрываемого типа ПС-80
3.503.9-62.8-29КМ Деформационный шов перекрываемого типа ПС-210
3.503.9-62.8-30ВМ Ведомость потребности в материалах на пролетное строение
Разработан: Ленгипротрансмост
Утверждён:26.11.1984 Минтрансстрой (Mintransstroy ВС-1196)
Расположен в:Техническая документация Строительство Справочные документы Типовые строительные конструкции, изделия и узлы Общероссийский строительный каталог Строительные конструкции, изделия и узлы зданий и сооружений для всех видов строительства Конструкции и изделия сооружений и оборудования зданий Надземные сооружения Конструкции и сооружения транспорта Пролетные строения мостов, мосты и путепроводы
Заменяет собой:
Серия 3.503.9-62Серия 3.503.9-62Серия 3.503.9-62Серия 3.503.9-62Серия 3.503.9-62Серия 3.503.9-62Серия 3.503.9-62Серия 3.503.9-62Серия 3.503.9-62Серия 3.503.9-62Серия 3.503.9-62Серия 3.503.9-62Серия 3.503.9-62Серия 3.503.9-62Серия 3.503.9-62Серия 3.503.9-62Серия 3.503.9-62Серия 3.503.9-62Серия 3.503.9-62Серия 3.503.9-62Серия 3.503.9-62Серия 3.503.9-62Серия 3.503.9-62Серия 3.503.9-62Серия 3.503.9-62Серия 3.503.9-62Серия 3.503.9-62Серия 3.503.9-62Серия 3.503.9-62Серия 3.503.9-62Серия 3.503.9-62Серия 3.503.9-62Серия 3.503.9-62Серия 3.503.9-62Серия 3.503.9-62Серия 3.503.9-62Серия 3.503.9-62Серия 3.503.9-62Серия 3.503.9-62Серия 3.503.9-62Серия 3.503.9-62Серия 3.503.9-62Серия 3.503.9-62Серия 3.503.9-62Серия 3.503.9-62Серия 3.503.9-62Серия 3.503.9-62Серия 3.503.9-62Серия 3.503.9-62Серия 3.503.9-62Серия 3.503.9-62Серия 3.503.9-62Серия 3.503.9-62Серия 3.503.9-62

© 2013 Ёшкин Кот :-) Карта сайта